There are no shipping fees if you buy one of our 2 plan packages "PDF file format" or "5 sets of blueprints + PDF". Shipping charges may apply if you buy additional sets of blueprints.
House plan Cedar grove (3161)
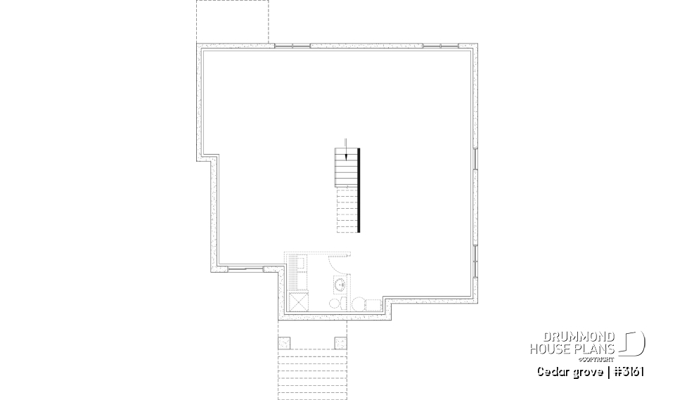
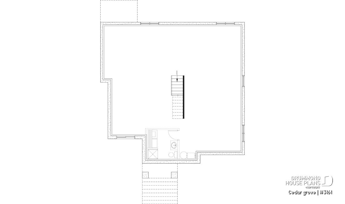
Single-story home model, 2 to 4 bedrooms, office, pantry, mudroom, optionnel finished basement ($)
Other useful information on this plan
Single-Story Transitional Home Plan – Elegance, Comfort, and Everyday Well-Being
Fall in love with this beautifully designed single-story transitional home, where timeless elegance meets modern simplicity. With its calming, zen-inspired atmosphere, this home is perfect for those seeking a harmonious, comfortable, and naturally bright living space.
Its graceful and understated structure exudes softness—an ideal setting to promote everyday serenity. A perfect match for anyone looking to combine functionality and peace of mind in a warm and inviting environment.
Nine-foot ceilings throughout most of the main floor create a true sense of openness and freedom. In the living room, a cathedral ceiling enhances this airy feeling even further, flooding the space with natural light. A true favorite for those who love brightness and volume.
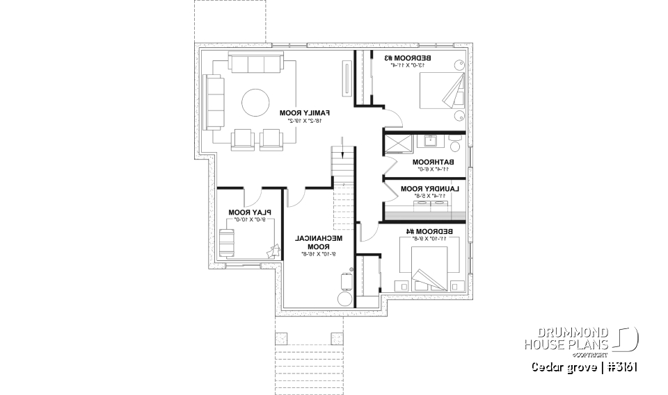
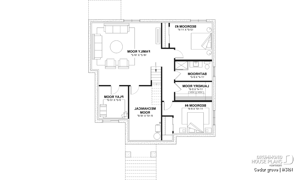
In the basement, eight-foot ceilings ensure the same level of comfort. And with the *finished basement option (available at an additional cost), you can add two more bedrooms, bringing the total to four bedrooms—ideal for growing families or hosting overnight guests in their own dedicated space.
At the heart of the home, the open-concept living area brings together the kitchen, dining room, and living room in one seamless flow. It’s a welcoming space, perfect for lively gatherings or cozy family evenings.
The well-thought-out kitchen includes a functional central island and a generous pantry. Every detail has been considered to make daily life easier—and more enjoyable.
The primary bedroom features a spacious walk-in closet, providing optimal storage while maintaining a clean and minimalist aesthetic.
A bright, versatile office space is also included on the main floor. It can easily be adapted to your lifestyle—as a home office, nursery, or cozy reading nook.
This home plan has been carefully designed to meet your needs today… and in the future. A smart and thoughtful investment in your long-term quality of life.
---
*If you wish to purchase the finished basement plan, as presented on this plan page, please select this option in the shopping cart, in the "Selection of foundation type" section. If you do not select this option, you will receive the unfinished full basement option, at no extra charge.
Distinctive elements
Single-Story Transitional Style Home Offering a Calm, Zen-Like Ambiance
A modest and graceful structure, filled with softness and serenity.
Perfect for those seeking everyday well-being by blending comfort and functionality in a peaceful setting.
Nine-foot ceilings throughout the main floor create a pleasant sense of openness and brightness.
A cathedral ceiling in the living room enhances this spacious feel, letting natural light pour in beautifully.
The basement level, with eight-foot ceilings, offers optimal comfort—even in the home’s lower spaces.
The *finished basement is available as an optional upgrade (additional cost).
It allows for the addition of two extra bedrooms, bringing the total to four bedrooms—ideal for growing families or hosting guests comfortably.
The heart of the home features a central fireplace, and an open-concept layout combining the kitchen, living room, and adjacent dining area.
This creates a warm and harmonious environment that invites connection and ease.
The kitchen is thoughtfully designed, with a functional central island and a pantry for efficient storage.
The primary bedroom includes a spacious walk-in closet, perfect for maximizing space while maintaining a clean, minimalist look.
A bright, flexible office is also included on the main floor—perfect for remote work, a cozy reading nook, or even a nursery, depending on your needs.
This home has been carefully planned to support your lifestyle—today and for years to come.
A smart and serene investment in lasting comfort and quality of life.
---
*If you wish to purchase the finished basement plan, as presented on this plan page, please select this option in the shopping cart, in the "Selection of foundation type" section. If you do not select this option, you will receive the unfinished full basement option, at no extra charge.
Plan feature(s)
Open floor layout, Cathedral ceiling, Ceiling over 8', Walk-in master bed., Island, Fireplace, Double sinks, Separate bath and shower, Mud room, Pantry, Builder, Self-Build
Plan architectural style(s)
. Country, . Farmhouse, Modern farmhouse, Trending, . Modern rustic, Modern Craftsman, . Transitional
Similar plans
Previously Viewed Plans
Thank you for your comment! It must be approved before being put online, please allow a period of 24 hours.
Error with google reCaptcha! Try again
Here is a brief description of our different plan packages. Please select the plan package that suits your needs. You can change the package at the next step, if necessary.
PDF VERSION OF PLAN:
Complete digital version of plan (pdf format) sent by email (original plan format 18" x 24'' or 24" x 36'')
5 copies of plan + PDF:
Includes: 5 copies of plan, plan in PDF format (reduced size version), materials list.
Foundation type
Additional foundation types are available, a fee may apply. Please indicate your choice on the online order form, or to our customer service representative, when placing your house plan order.
If your desired foundation type is not available, please contact our customer service to receive your free plan modification quote.
Explanation of bonus space types
UNFINISHED BONUS ROOM
The bonus rooms are often planned above the garage and are accessible from the house. They are designed to be converted as an office, a laundry area, a bathroom, a library corner or even an additional bedroom for which homeowners must make sure to have a window that complies with current codes & standards.
STORAGE AREA
Often located above the garage, our storage areas are used only as storage and are usually accessible from the garage via a retractable staircase.
Do you like this plan but want it to be modified to suit your needs?
To add a garage, another bedroom, finish the basement or any other modification, click here and let us know about your desired changes and to get your free quote for the modification of your plan.
Conditions of use
Important copyright notice! Please take note of these copyright conditions before printing:
By printing this house plan, cottage or garage or the floorplan(s), you confirm being informed that every house plan on this website is the exclusive property of Drummond House
Plans and is protected by Canadian copyright law. You are aware that these prints cannot be used to build or even obtain a building permit. The graphic representations of these
models are offered by Drummond House Plans for the sole purpose of allowing you to notate modifications of a model and then take it to one of the Drummond House Plans Canadian dealers for
modification of the plan.
The purchase of a house plan, cottage or garage from Drummond House Plans is mandatory if you wish to build any of our models. The plan purchase allows you to build a single unit; you cannot resell or give your plan to anyone once the house, cottage or garage has been built. If you wish to build the same house, cottage or garage more than once, you need to obtain the licence to this effect. Please contact us for more details.
All plans from Drummond House Plans can only be modified by a licensed Drummond House Plan Canadian dealer. If any other business or individual with no affiliation to Drummond House Plans modifies a Drummond House Plan on your behalf, please ensure this business or individual has a licence to modify this specific plan or you will be subject to prosecution on the same level as the business or individual who modified or reproduced the plan.
For more details, do not hesitate to contact u by e-mail or by phone at 1-800-567-1413.
I agree to respect the conditions above to not reproduce, modify or build a model from Drummond House Plans without previously purchasing a complete house plan.















