front - BASE MODEL - Modern small farmhouse with open concept, main floor master suite, cathedral ceiling & opt. finished basement - Cedar Grove 2

front - BASE MODEL

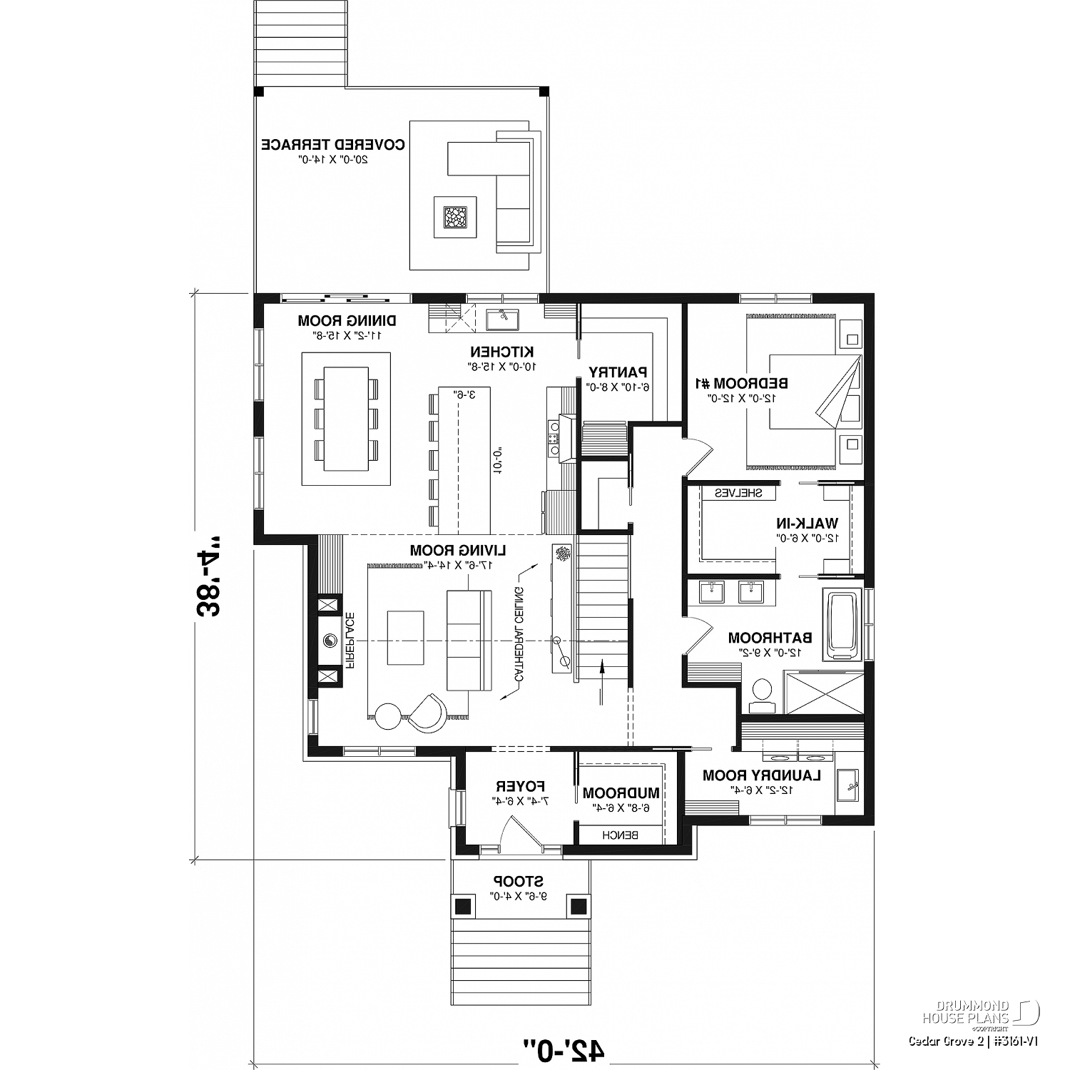
1st level - Modern small farmhouse with open concept, main floor master suite, cathedral ceiling & opt. finished basement - Cedar Grove 2

1st level

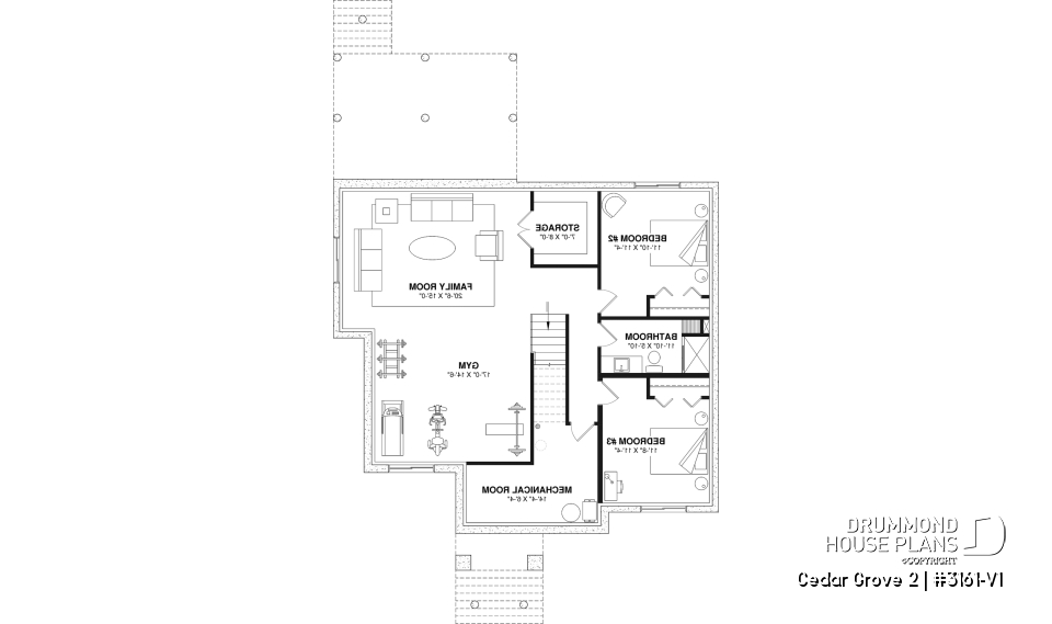
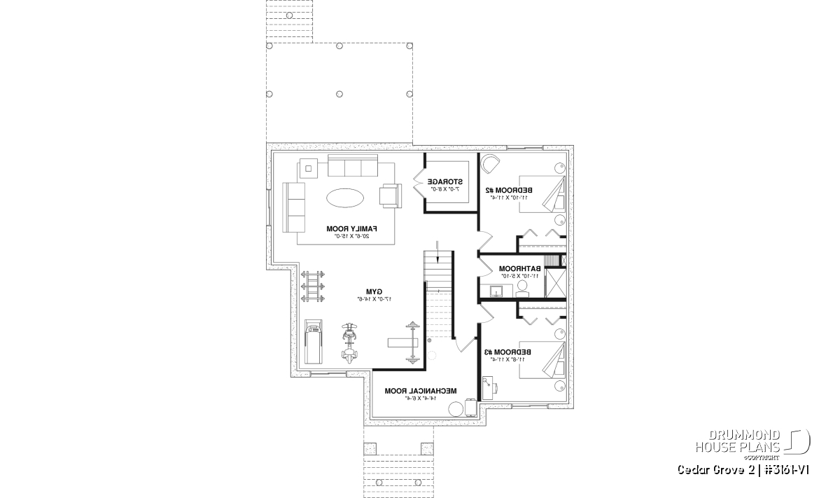
Unfinished basement - Modern small farmhouse with open concept, main floor master suite, cathedral ceiling & opt. finished basement - Cedar Grove 2

Unfinished basement

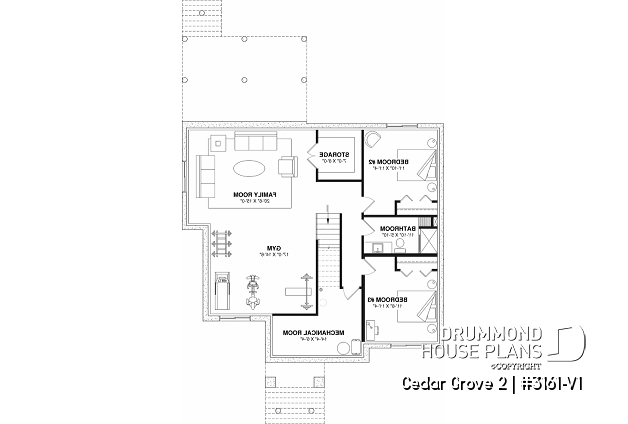
Finished basement (Optional $) - Modern small farmhouse with open concept, main floor master suite, cathedral ceiling & opt. finished basement - Cedar Grove 2

Finished basement (Optional $)

rear elevation - Cedar Grove 2

rear elevation

interior view - Cedar Grove 2

interior view

Cedar Grove 2 House plan 3161-V1

Modern small farmhouse with open concept, main floor master suite, cathedral ceiling & opt. finished basement

Starting from

1515$

Technical details summary Plan #3161-V1
Total living area 1444 sq.ft. Bedroom 1, 2, 3
Full baths 2 Half baths -
Foundation included Unfinished Basement Garage -
Width 42'0" Depth 38'4"

Need help ?

Our experts are here to guide you to make your dream project come to life.

Contact us

Come see us

Visit one of our 30 regional offices.

Our offices

Need a home insurance ?

To get your price, it's just here

Get a quote Advertisement

Additional details

General specifications

Total living area
1444 sq.ft.
1st level
1444 sq.ft.
Unfinished basement
1444 sq.ft.
Finished basement (Optional $)
1444 sq.ft.
Width
42'0"
Depth
38'4"
Ridge height from top of foundation
22'3"
Exterior wall
2 X 6
Other available foundations (a fee may apply)
Finished basement, Floating Slab, Crawl space, Monolithic Slab
Builder price code
C

Rooms specifications

Bedroom(s)
1, 2, 3
Full baths
2
Half baths
-
Garage type
-
Covered porch area
38 sq.ft.

1st level

Rooms
Sizes
Ceiling
Covered porch
9'6" x 4'0"
~ 9'4"
Foyer
7'4" x 6'4"
~ 9'0"
Mud room
6'8" x 6'4"
~ 9'0"
Laundry room
12'2" x 6'4"
~ 9'0"
Living room
17'6" x 14'4"
~ 12'9"
Dining room
11'2" x 15'8"
~ 9'0"
Kitchen
10'0" x 15'8"
~ 9'0"
Pantry
6'10" x 8'0"
~ 9'0"
Kitchen island
10'0" x 3'6"
N/A
Covered deck
20'0" x 14'0"
~ 9'4"
Full bathroom
12'0" x 9'2"
~ 9'0"
Shower
5'6" x 3'0"
N/A
Linen
3'8" x 1'4"
N/A
Bedroom
12'0" x 12'0"
~ 9'0"
Walk-in closet
12'0" x 6'0"
~ 9'0"
Storage
4'8" x 3'2"
~ 9'0"

Unfinished basement

Finished basement (Optional $)

Rooms
Sizes
Ceiling
Mechanical room
14'4" x 6'4"
~ 8'0"
Gym
17'0" x 14'6"
~ 8'0"
Great room or Family room
20'6" x 15'0"
~ 8'0"
Storage
7'0" x 8'0"
~ 8'0"
Bedroom
11'10" x 11'4"
~ 8'0"
Closet
6'6" x 2'0"
~ 8'0"
Bathroom
11'10" x 5'10"
~ 8'0"
Shower
4'0" x 3'0"
N/A
Linen
1'6" x 2'0"
N/A
Bedroom
11'8" x 11'4"
~ 8'0"
Closet
6'6" x 2'0"
~ 8'0"

CEDAR GROVE 2 (#3161-V1) Modern Farmhouse Concept with Beautiful Main Floor Master Suite!

The CEDAR GROVE 2 house plan (#3161-V1) perfectly captures the essence of modern farmhouse living, combining warmth, functionality, and timeless appeal. Designed to meet the needs of today’s families, this thoughtfully planned home offers bright, well-organized living spaces and excellent flexibility for future growth.

From the moment you arrive, the covered front porch creates an inviting first impression while offering practical protection from the elements. Inside, the main floor features 9-foot ceilings, enhancing the sense of openness and natural light throughout. The living room serves as the heart of the home, highlighted by a striking cathedral ceiling, a cozy fireplace, and built-in cabinetry that adds both character and functionality.

The welcoming entryway includes a spacious mudroom with a built-in bench, making daily organization effortless. The main living area flows seamlessly into a bright dining space, open to a functional kitchen with a large central island and walk-in pantry. This open-concept layout is ideal for family life, entertaining, and everyday comfort, allowing for smooth circulation and strong visual connections between spaces.

The primary bedroom, conveniently located on the main floor, offers a private and relaxing retreat. It features a walk-in closet and direct access to the full bathroom, providing both comfort and efficiency. A main-floor laundry room with utility sink, along with a large hallway storage closet, further enhances the practicality of the CEDAR GROVE 2 (#3161-V1).

At the rear of the home, a spacious covered terrace, accessible directly from the dining area, extends the living space outdoors and allows you to enjoy the backyard in all seasons. The unfinished basement, included in the base plan, offers excellent potential for future customization. As an option, it can be finished to include two additional bedrooms, a family room, a bathroom, a gym area, and additional storage, making this home highly adaptable to changing family needs.

With its modern farmhouse style, smart layout, and flexible design, the CEDAR GROVE 2 house plan (#3161-V1) is an excellent choice for homeowners seeking comfort, functionality, and long-term value.

Distinctive elements

Modern farmhouse-style home offering outstanding comfort and a warm, inviting atmosphere.
Designed for families with teens, featuring a bright finished basement with dedicated living space.
Covered front porch that is both welcoming and practical for protection from the elements.
9-foot ceilings throughout the main floor, except for the cathedral ceiling in the living room.
Functional entryway with a spacious mudroom and built-in bench for a comfortable welcome.
Inviting living room featuring a fireplace and built-in cabinetry.
Bright dining area open to the kitchen, creating a fluid and welcoming living space.
Functional kitchen with a central island and walk-in pantry.
Main-floor primary bedroom with a walk-in closet and direct access to the full bathroom.
Convenient main-floor laundry room with utility sink.
Large hallway storage closet for added organization.
Unfinished basement, ready to be customized to suit your needs.
Spacious covered rear terrace, directly accessible from the dining area.
The base plan includes an unfinished basement offering excellent future development potential.
---
*Finished basement (optional) including two additional bedrooms ideal for a large family or guests.
Bathroom with shower and wardrobe storage.
Family room with integrated storage space.
Dedicated gym area and additional storage for a versatile and functional layout.
---
*If you wish to purchase the finished basement plan as shown on this plan’s page, please select this option in the shopping cart under “Select Your Foundation.” If this option is not selected, the plan will include an unfinished basement at no additional cost.

Plan feature(s)

Open floor layout, Fireplace, Ceiling over 8', Island, Covered patios, Mud room, Gound floor laundry room, Master suite on main, Walk-in master bed., Bench seat(s), Pantry, Separate bath and shower, Double sinks, Built-ins, Panoramic view, Self-Build, Builder

Plan architectural style(s)

Farmhouse, American, Modern farmhouse, Transitional, Country, Modern rustic, Modern Craftsman

Similar plans
Logo Drummond House Plans image drummond house plans
The plan Cedar Grove 2 is protected by the copyright law.

The illustrations shown may differ from the detailed construction plans you will receive, as plans are regularly updated to comply with current building codes.

Photos displayed on this page may reflect modifications made by homeowners and may vary from the original plan.

Learn more

A question or a comment on this plan ?

Contact information

Your request

Add your pictures or photos

To add one or more photos, click or drag your files into the area below. You may upload up to eight JPG or JPEG images. This step is optional.

Sorry, your browser does not support file uploads.