There are no shipping fees if you buy one of our 2 plan packages "PDF file format" or "5 sets of blueprints + PDF". Shipping charges may apply if you buy additional sets of blueprints.
House plan Madeline (2447)
Split-entry house plan, economical, garage with storage, 2 to 4 bedrooms, optional finished basement ($)
Other useful information on this plan
Split-entry home plan offering 2 to 4 bedrooms, depending on the finished basement!
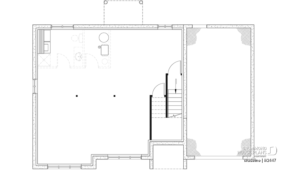
Discover a home with classic American charm, designed to combine comfort, functionality, and warm family living. The split-entry foyer warmly welcomes residents and guests alike, complete with a convenient closet nearby to keep coats and shoes neatly organized.
At the heart of the home, the functional kitchen features a practical island, perfect for meal prep while staying connected with family or guests. It opens directly onto the bright and inviting living room, creating a friendly, open-concept atmosphere ideal for everyday moments or casual entertaining.
The cozy dining nook is enhanced by a charming built-in bench, both stylish and practical, making family dinners or weekend brunches feel extra special. A decorative archway leads to the primary bedroom and full bathroom, which features a relaxing tub and separate shower, offering a true private retreat after a busy day. Natural light floods the living room and primary bedroom, creating a peaceful and uplifting ambiance.
*Optional Finished Basement ($)
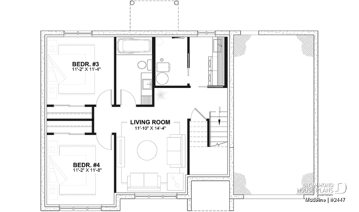
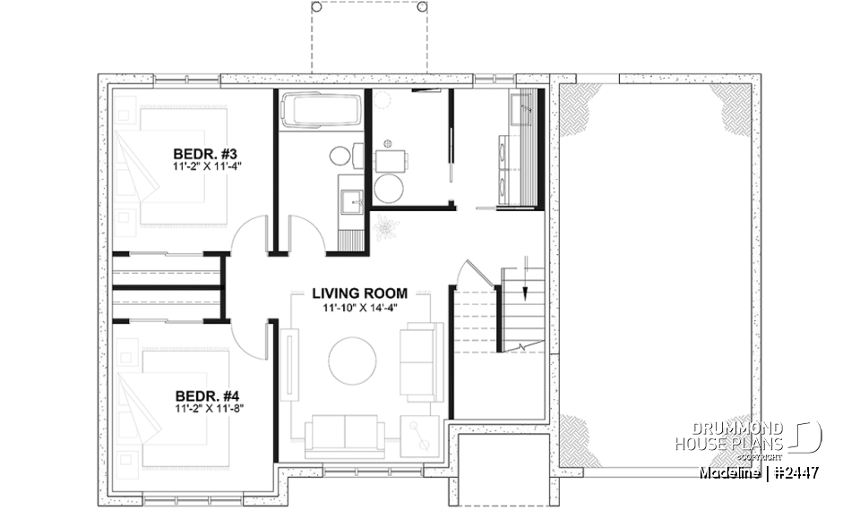
Choosing the finished basement turns this home into a versatile family haven. It offers two additional bedrooms, ideal for teens, guests, or even a home office. A full bathroom, mechanical room, dedicated laundry space, and a spacious family room complete this level—perfect for movie nights, a playroom, or a comfortable relaxation area for the whole family.
This American-style home plan delivers the perfect balance of charm, modern comfort, and thoughtfully designed spaces, meeting the needs of family life while offering plenty of room to welcome and entertain guests with ease.
---
*If you wish to purchase the finished basement plan, as presented on this plan page, please select this option in the shopping cart, in the "Selection of foundation type" section. If you do not select this option, you will receive the unfinished full basement option, at no extra charge.
Distinctive elements
American-Style Home Plan with Garage
Welcoming split-entry foyer with a convenient coat closet nearby.
Functional kitchen with a small island, opening onto the living room for a warm and inviting atmosphere.
Cozy dining nook enhanced by a charming built-in bench.
Decorative archway leading to the primary bedroom and the bathroom, featuring a soaking tub and separate shower.
Abundant natural light in both the primary bedroom and the living room, creating a bright and pleasant ambiance.
*Optional Finished Basement ($):
Adds two additional bedrooms, a bathroom, mechanical room, laundry room, and a spacious family room perfect for hosting or relaxing.
---
*If you wish to purchase the finished basement plan, as presented on this plan page, please select this option in the shopping cart, in the "Selection of foundation type" section. If you do not select this option, you will receive the unfinished full basement option, at no extra charge.
Plan feature(s)
Separate bath and shower, Open floor layout, Island, Bench seat(s), Arch, Builder, Self-Build
Plan architectural style(s)
. Country, . Traditional, . Ranch, Modern farmhouse, . American, . Farmhouse
Similar plans
Previously Viewed Plans
Thank you for your comment! It must be approved before being put online, please allow a period of 24 hours.
Error with google reCaptcha! Try again
Here is a brief description of our different plan packages. Please select the plan package that suits your needs. You can change the package at the next step, if necessary.
PDF VERSION OF PLAN:
Complete digital version of plan (pdf format) sent by email (original plan format 18" x 24'' or 24" x 36'')
5 copies of plan + PDF:
Includes: 5 copies of plan, plan in PDF format (reduced size version), materials list.
Foundation type
Additional foundation types are available, a fee may apply. Please indicate your choice on the online order form, or to our customer service representative, when placing your house plan order.
If your desired foundation type is not available, please contact our customer service to receive your free plan modification quote.
Explanation of bonus space types
UNFINISHED BONUS ROOM
The bonus rooms are often planned above the garage and are accessible from the house. They are designed to be converted as an office, a laundry area, a bathroom, a library corner or even an additional bedroom for which homeowners must make sure to have a window that complies with current codes & standards.
STORAGE AREA
Often located above the garage, our storage areas are used only as storage and are usually accessible from the garage via a retractable staircase.
Do you like this plan but want it to be modified to suit your needs?
To add a garage, another bedroom, finish the basement or any other modification, click here and let us know about your desired changes and to get your free quote for the modification of your plan.
Conditions of use
Important copyright notice! Please take note of these copyright conditions before printing:
By printing this house plan, cottage or garage or the floorplan(s), you confirm being informed that every house plan on this website is the exclusive property of Drummond House
Plans and is protected by Canadian copyright law. You are aware that these prints cannot be used to build or even obtain a building permit. The graphic representations of these
models are offered by Drummond House Plans for the sole purpose of allowing you to notate modifications of a model and then take it to one of the Drummond House Plans Canadian dealers for
modification of the plan.
The purchase of a house plan, cottage or garage from Drummond House Plans is mandatory if you wish to build any of our models. The plan purchase allows you to build a single unit; you cannot resell or give your plan to anyone once the house, cottage or garage has been built. If you wish to build the same house, cottage or garage more than once, you need to obtain the licence to this effect. Please contact us for more details.
All plans from Drummond House Plans can only be modified by a licensed Drummond House Plan Canadian dealer. If any other business or individual with no affiliation to Drummond House Plans modifies a Drummond House Plan on your behalf, please ensure this business or individual has a licence to modify this specific plan or you will be subject to prosecution on the same level as the business or individual who modified or reproduced the plan.
For more details, do not hesitate to contact u by e-mail or by phone at 1-800-567-1413.
I agree to respect the conditions above to not reproduce, modify or build a model from Drummond House Plans without previously purchasing a complete house plan.







