There are no shipping fees if you buy one of our 2 plan packages "PDF file format" or "5 sets of blueprints + PDF". Shipping charges may apply if you buy additional sets of blueprints.
House plan Lianne (3266)
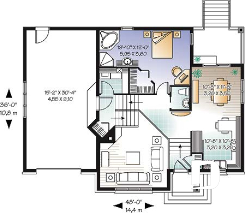
Abundant windows, 17' ceiling, large family room and a garage
Other useful information on this plan
Lots of natural light for this ranch style home with finished basement
.
Distinctive elements
Remarkable living room in half basement with corner fireplace, abundante fenestration and 17ft ceiling. Master suite on mainfloor with walk-in closet, vanity, shower and corner bath.
Plan feature(s)
Master suite on main, Walk-in master bed., Ceiling over 8', Gound floor laundry room, Office / Study / Den, Fireplace, Separate bath and shower, Deck
Plan architectural style(s)
. Traditional, . Ranch
Similar plans
Previously Viewed Plans
Thank you for your comment! It must be approved before being put online, please allow a period of 24 hours.
Error with google reCaptcha! Try again
Here is a brief description of our different plan packages. Please select the plan package that suits your needs. You can change the package at the next step, if necessary.
PDF VERSION OF PLAN:
Complete digital version of plan (pdf format) sent by email (original plan format 18" x 24'' or 24" x 36'')
5 copies of plan + PDF:
Includes: 5 copies of plan, plan in PDF format (reduced size version), materials list.
Foundation type
Additional foundation types are available, a fee may apply. Please indicate your choice on the online order form, or to our customer service representative, when placing your house plan order.
If your desired foundation type is not available, please contact our customer service to receive your free plan modification quote.
Explanation of bonus space types
UNFINISHED BONUS ROOM
The bonus rooms are often planned above the garage and are accessible from the house. They are designed to be converted as an office, a laundry area, a bathroom, a library corner or even an additional bedroom for which homeowners must make sure to have a window that complies with current codes & standards.
STORAGE AREA
Often located above the garage, our storage areas are used only as storage and are usually accessible from the garage via a retractable staircase.
Do you like this plan but want it to be modified to suit your needs?
To add a garage, another bedroom, finish the basement or any other modification, click here and let us know about your desired changes and to get your free quote for the modification of your plan.
Conditions of use
Important copyright notice! Please take note of these copyright conditions before printing:
By printing this house plan, cottage or garage or the floorplan(s), you confirm being informed that every house plan on this website is the exclusive property of Drummond House
Plans and is protected by Canadian copyright law. You are aware that these prints cannot be used to build or even obtain a building permit. The graphic representations of these
models are offered by Drummond House Plans for the sole purpose of allowing you to notate modifications of a model and then take it to one of the Drummond House Plans Canadian dealers for
modification of the plan.
The purchase of a house plan, cottage or garage from Drummond House Plans is mandatory if you wish to build any of our models. The plan purchase allows you to build a single unit; you cannot resell or give your plan to anyone once the house, cottage or garage has been built. If you wish to build the same house, cottage or garage more than once, you need to obtain the licence to this effect. Please contact us for more details.
All plans from Drummond House Plans can only be modified by a licensed Drummond House Plan Canadian dealer. If any other business or individual with no affiliation to Drummond House Plans modifies a Drummond House Plan on your behalf, please ensure this business or individual has a licence to modify this specific plan or you will be subject to prosecution on the same level as the business or individual who modified or reproduced the plan.
For more details, do not hesitate to contact u by e-mail or by phone at 1-800-567-1413.
I agree to respect the conditions above to not reproduce, modify or build a model from Drummond House Plans without previously purchasing a complete house plan.






