There are no shipping fees if you buy one of our 2 plan packages "PDF file format" or "5 sets of blueprints + PDF". Shipping charges may apply if you buy additional sets of blueprints.
House plan Willingdon 3 (3433)
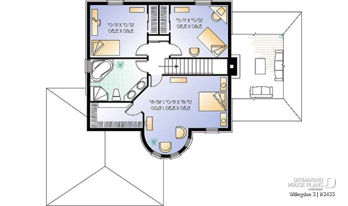
European 3 bedroom house plan with a 2-car garage, 3 bedrooms, home office, sunken living room
Other useful information on this plan
Somptuous 3 bedroom, 2-car garage European style house plan with 9' ceiling on main floor and cathedral in living room
Distinctive elements
Fireplace in family room.
12 foot ceiling in the family room
9 foot ceilings on the rest of the floor.
Plan feature(s)
Fireplace, Cathedral ceiling, Gound floor laundry room, Office / Study / Den, Island, Walk-in master bed., Sunken living room, Separate bath and shower, Double sinks, Ceiling over 8'
Plan architectural style(s)
Similar plans
Previously Viewed Plans
Questions and comments
October 28
Ms Giles
Hello,
Just wondering, could you add one additional bedroom to this plan?
October 28
Customer service
Good day Ms. Giles and thank you for taking the time to write.
An extra bedroom could definitely be added to this plan and I invite you to forward this on line request with the details to which we will respond within two business days with a free estimate.
Please let me know if I can further assist you
Regards
Deb
December 15
Tim Ding
Dear Sir/Madam,
I like this style very much. It's my dream house with such kind of colour. However, I hope that
1. total living area is about 2500 sq. ft
2. add one half baths.
3. prefer to move the Garage to rear.
4. perfer one more bedroom
If you have this ddesign, please let me the link. Thanks and Merry Christmas!
December 16
Customer service
Dear Mr Ding,
Thank you for your interest in Drummond House Plans.
We do not have a version of this plan that includes all of your requirements. However, please note that our plans can easily be modified. To receive a free cost estimate, please visite the "Plan Customization Service" section of our website.
Do not hesitate to contact me again if you need further information. I will gladly answer any questions you may have.
Regards,
Doreen, Customer Service Department
Thank you for your comment! It must be approved before being put online, please allow a period of 24 hours.
Error with google reCaptcha! Try again
Here is a brief description of our different plan packages. Please select the plan package that suits your needs. You can change the package at the next step, if necessary.
PDF VERSION OF PLAN:
Complete digital version of plan (pdf format) sent by email (original plan format 18" x 24'' or 24" x 36'')
5 copies of plan + PDF:
Includes: 5 copies of plan, plan in PDF format (reduced size version), materials list.
Foundation type
Additional foundation types are available, a fee may apply. Please indicate your choice on the online order form, or to our customer service representative, when placing your house plan order.
If your desired foundation type is not available, please contact our customer service to receive your free plan modification quote.
Explanation of bonus space types
UNFINISHED BONUS ROOM
The bonus rooms are often planned above the garage and are accessible from the house. They are designed to be converted as an office, a laundry area, a bathroom, a library corner or even an additional bedroom for which homeowners must make sure to have a window that complies with current codes & standards.
STORAGE AREA
Often located above the garage, our storage areas are used only as storage and are usually accessible from the garage via a retractable staircase.
Do you like this plan but want it to be modified to suit your needs?
To add a garage, another bedroom, finish the basement or any other modification, click here and let us know about your desired changes and to get your free quote for the modification of your plan.
Conditions of use
Important copyright notice! Please take note of these copyright conditions before printing:
By printing this house plan, cottage or garage or the floorplan(s), you confirm being informed that every house plan on this website is the exclusive property of Drummond House
Plans and is protected by Canadian copyright law. You are aware that these prints cannot be used to build or even obtain a building permit. The graphic representations of these
models are offered by Drummond House Plans for the sole purpose of allowing you to notate modifications of a model and then take it to one of the Drummond House Plans Canadian dealers for
modification of the plan.
The purchase of a house plan, cottage or garage from Drummond House Plans is mandatory if you wish to build any of our models. The plan purchase allows you to build a single unit; you cannot resell or give your plan to anyone once the house, cottage or garage has been built. If you wish to build the same house, cottage or garage more than once, you need to obtain the licence to this effect. Please contact us for more details.
All plans from Drummond House Plans can only be modified by a licensed Drummond House Plan Canadian dealer. If any other business or individual with no affiliation to Drummond House Plans modifies a Drummond House Plan on your behalf, please ensure this business or individual has a licence to modify this specific plan or you will be subject to prosecution on the same level as the business or individual who modified or reproduced the plan.
For more details, do not hesitate to contact u by e-mail or by phone at 1-800-567-1413.
I agree to respect the conditions above to not reproduce, modify or build a model from Drummond House Plans without previously purchasing a complete house plan.







October 28
Ms Giles
Hello,
Just wondering, could you add one additional bedroom to this plan?