There are no shipping fees if you buy one of our 2 plan packages "PDF file format" or "5 sets of blueprints + PDF". Shipping charges may apply if you buy additional sets of blueprints.
House plan County View (2835)
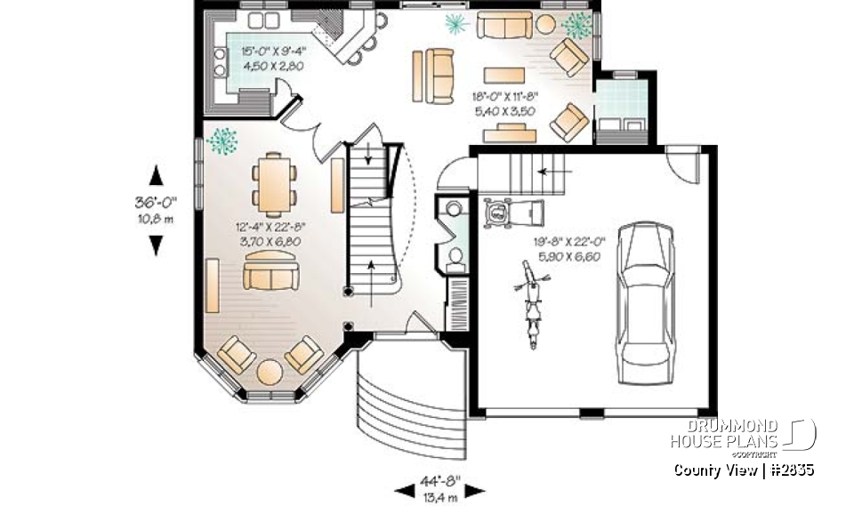
European style home plan with 3 to 4 bedrooms, formal living / dining, family room
Other useful information on this plan
European manor-style home plan with 3 to 4 bedrooms
Even though less than 45 feet wide, this manor style cottage is sure to impress with its stately presence. Two turrets of different volumes are further distinguished by the use of stone, acrylic and wrought iron.
Inside we notice 9 foot ceilings, a great family room with ample lighting, a roomy kitchen and a combined living / dining room. The path to the upper level is a sensuous curved central staircase. On the 2nd floor, a master suite includes a bay window seating alcove, a walk-through closet and a private bathroom with corner bath and shower. Another bathroom is shared between 2 secondary bedrooms and a flex room is suitable as a 4th bedroom or private study.
No comfort is spared in this fine home, right down to the indispensable 2-car garage!
Distinctive elements
Home office or bedroom #4, abundant windows, 9 foot ceiling on main level, balcony on 2nd level, French doors between kitchen and dining/living rooms.
Plan feature(s)
Lunch counter, Ceiling over 8', Master suite upstairs, Separate bath and shower, Gound floor laundry room, Walk-in master bed., Living bonus space, Balcony 2nd floor
Plan architectural style(s)
Similar plans
Previously Viewed Plans
Questions and comments
October 20
Charlie
Is it possible to change the exterior siding to the combination of wood and brick? Would it look nice if adding a porch in the front and adding a covered sun room/deck at the back?
Thanks!
October 20
Customer service
Good day and thank you for your interest in this plan.
We would be happy to provide the details for these or any other changes that you need to this plan to make it conform to your requirements by sending you a free estimate within two business days after receipt of this on line request.
Please let me know if I can further assist you
Regards
Deb
March 25
Sheyi Oseni
i always love your designs,any time i log on, in your site.
AM AN ARCHITECT TOO
March 25
Customer service
Good day
Thank you so much for the kind words, we really appreciate your comment
Have a wonderful day
Deb
February 22
G.Mullin
Is there a heat-loss, heat-gain, duct lay out and HRV available.
February 22
Customer service
Good day and thank you for taking the time to write.
There are no ducts planned as the heating which is forseen in our plans is electric base boards.
In order to obtain the information which you are requesting, it would be best to consult your local contractor.
Please let me know if I can be of further assistance.
Deborah
Thank you for your comment! It must be approved before being put online, please allow a period of 24 hours.
Error with google reCaptcha! Try again
Here is a brief description of our different plan packages. Please select the plan package that suits your needs. You can change the package at the next step, if necessary.
PDF VERSION OF PLAN:
Complete digital version of plan (pdf format) sent by email (original plan format 18" x 24'' or 24" x 36'')
5 copies of plan + PDF:
Includes: 5 copies of plan, plan in PDF format (reduced size version), materials list.
Foundation type
Additional foundation types are available, a fee may apply. Please indicate your choice on the online order form, or to our customer service representative, when placing your house plan order.
If your desired foundation type is not available, please contact our customer service to receive your free plan modification quote.
Explanation of bonus space types
UNFINISHED BONUS ROOM
The bonus rooms are often planned above the garage and are accessible from the house. They are designed to be converted as an office, a laundry area, a bathroom, a library corner or even an additional bedroom for which homeowners must make sure to have a window that complies with current codes & standards.
STORAGE AREA
Often located above the garage, our storage areas are used only as storage and are usually accessible from the garage via a retractable staircase.
Do you like this plan but want it to be modified to suit your needs?
To add a garage, another bedroom, finish the basement or any other modification, click here and let us know about your desired changes and to get your free quote for the modification of your plan.
Conditions of use
Important copyright notice! Please take note of these copyright conditions before printing:
By printing this house plan, cottage or garage or the floorplan(s), you confirm being informed that every house plan on this website is the exclusive property of Drummond House
Plans and is protected by Canadian copyright law. You are aware that these prints cannot be used to build or even obtain a building permit. The graphic representations of these
models are offered by Drummond House Plans for the sole purpose of allowing you to notate modifications of a model and then take it to one of the Drummond House Plans Canadian dealers for
modification of the plan.
The purchase of a house plan, cottage or garage from Drummond House Plans is mandatory if you wish to build any of our models. The plan purchase allows you to build a single unit; you cannot resell or give your plan to anyone once the house, cottage or garage has been built. If you wish to build the same house, cottage or garage more than once, you need to obtain the licence to this effect. Please contact us for more details.
All plans from Drummond House Plans can only be modified by a licensed Drummond House Plan Canadian dealer. If any other business or individual with no affiliation to Drummond House Plans modifies a Drummond House Plan on your behalf, please ensure this business or individual has a licence to modify this specific plan or you will be subject to prosecution on the same level as the business or individual who modified or reproduced the plan.
For more details, do not hesitate to contact u by e-mail or by phone at 1-800-567-1413.
I agree to respect the conditions above to not reproduce, modify or build a model from Drummond House Plans without previously purchasing a complete house plan.









October 20
Charlie
Is it possible to change the exterior siding to the combination of wood and brick? Would it look nice if adding a porch in the front and adding a covered sun room/deck at the back?
Thanks!