There are no shipping fees if you buy one of our 2 plan packages "PDF file format" or "5 sets of blueprints + PDF". Shipping charges may apply if you buy additional sets of blueprints.
House plan Uppsala (6112)
Scandinavian style home, 2 to 4 beds, optional finished basement ($), fireplace, pantry, sheltered terrace
Other useful information on this plan
New exterior for a very popular interior floor plan!
Indeed, new house plan UPPSALA plan (# 6112) offers a Scandinavian-inspired exterior while integrating the interior design of our very popular BARRINGTON 4 plan (# 3153-v3). The latter offers a more Farmhouse style.
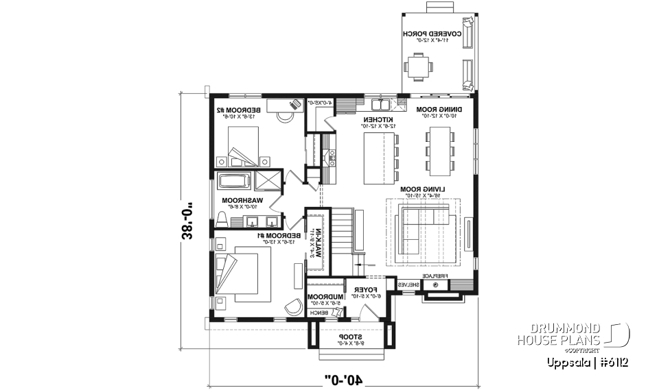
The plan in question here, UPPSALA (# 6112) brings together all the elements sought by families with 2+ children or adolescents. At the entrance, you find yourself in a closed vestibule with a walk-in style mudroom and bench. Then you access the open concept space including the kitchen, dining room and living room. A pantry and a large island are located in the kitchen. The living room has a raised ceiling over 10 'with decorative false beams. All the ground floor, other than the living room, has a 9 'ceiling. The parents' bedroom has a large walk-in closet and is adjacent to a large family bathroom. The latter includes a separate bath and shower as well as 2 sinks. A secondary bedroom is also located on the main floor for a total of 2 bedrooms on this level. In addition, a beautiful sheltered terrace of 11'4 '' x 12'0 '' is accessible from the dining room, convenient for dining outside when the weather is nice!
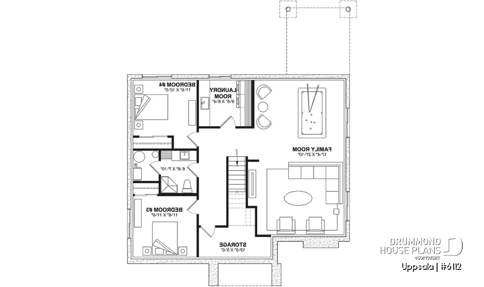
The layout of the basement is provided for in the plan you will receive and offers the following: 2 additional bedrooms, for a total of 4 in all, as well as a laundry room, family room, shower room as well as additional storage space.
For families looking for the comfort of country houses but an avant-garde exterior look, the UPPSALA plan will be a sure favorite !!
Distinctive elements
Trendy Scandinavian style house plan with *optional finished basement ($).
Total of 4 possible bedrooms, 2 bathrooms and 2 living rooms.
9 'ceiling throughout the ground floor except in the living room where it is more than 10'.
Kitchen with large central island and pantry.
Fireplace in the living room with arrangement of shelves.
Walk-in in the parents' bedroom.
Large family bathroom with separate tub and shower, and 2 sinks.
*Finished basement (optional $):
Completely finished basement including a large family space, 2 bedrooms, a shower room, the laundry room and storage.
*If you wish to purchase the finished basement plan, as presented on this plan page, please select this option in the shopping cart, in the "Selection of foundation type" section. If you do not select this option, you will receive the unfinished full basement option, at no extra charge.
Plan feature(s)
Open floor layout, Pantry, Island, Plafond avec fausses poutres, Deck, Walk-in master bed., Mud room, Bench seat(s), Separate bath and shower, Double sinks, Ceiling over 8', Shelves, Fireplace, Game room, Built-ins, Builder, Self-Build
Plan architectural style(s)
. Scandinavian, . Ranch, . Modern / Design, . Contemporary, . Transitional
Similar plans
Previously Viewed Plans
Thank you for your comment! It must be approved before being put online, please allow a period of 24 hours.
Error with google reCaptcha! Try again
Here is a brief description of our different plan packages. Please select the plan package that suits your needs. You can change the package at the next step, if necessary.
PDF VERSION OF PLAN:
Complete digital version of plan (pdf format) sent by email (original plan format 18" x 24'' or 24" x 36'')
5 copies of plan + PDF:
Includes: 5 copies of plan, plan in PDF format (reduced size version), materials list.
Foundation type
Additional foundation types are available, a fee may apply. Please indicate your choice on the online order form, or to our customer service representative, when placing your house plan order.
If your desired foundation type is not available, please contact our customer service to receive your free plan modification quote.
Explanation of bonus space types
UNFINISHED BONUS ROOM
The bonus rooms are often planned above the garage and are accessible from the house. They are designed to be converted as an office, a laundry area, a bathroom, a library corner or even an additional bedroom for which homeowners must make sure to have a window that complies with current codes & standards.
STORAGE AREA
Often located above the garage, our storage areas are used only as storage and are usually accessible from the garage via a retractable staircase.
Do you like this plan but want it to be modified to suit your needs?
To add a garage, another bedroom, finish the basement or any other modification, click here and let us know about your desired changes and to get your free quote for the modification of your plan.
Conditions of use
Important copyright notice! Please take note of these copyright conditions before printing:
By printing this house plan, cottage or garage or the floorplan(s), you confirm being informed that every house plan on this website is the exclusive property of Drummond House
Plans and is protected by Canadian copyright law. You are aware that these prints cannot be used to build or even obtain a building permit. The graphic representations of these
models are offered by Drummond House Plans for the sole purpose of allowing you to notate modifications of a model and then take it to one of the Drummond House Plans Canadian dealers for
modification of the plan.
The purchase of a house plan, cottage or garage from Drummond House Plans is mandatory if you wish to build any of our models. The plan purchase allows you to build a single unit; you cannot resell or give your plan to anyone once the house, cottage or garage has been built. If you wish to build the same house, cottage or garage more than once, you need to obtain the licence to this effect. Please contact us for more details.
All plans from Drummond House Plans can only be modified by a licensed Drummond House Plan Canadian dealer. If any other business or individual with no affiliation to Drummond House Plans modifies a Drummond House Plan on your behalf, please ensure this business or individual has a licence to modify this specific plan or you will be subject to prosecution on the same level as the business or individual who modified or reproduced the plan.
For more details, do not hesitate to contact u by e-mail or by phone at 1-800-567-1413.
I agree to respect the conditions above to not reproduce, modify or build a model from Drummond House Plans without previously purchasing a complete house plan.


















