There are no shipping fees if you buy one of our 2 plan packages "PDF file format" or "5 sets of blueprints + PDF". Shipping charges may apply if you buy additional sets of blueprints.
House plan The Skyway 2 (4935)
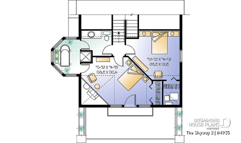
Open floor plan cottage with interior spa area, and 1 or 2 bedroom option
Other useful information on this plan
Truly unique chalet style house
If ever there existed an original house with the appearance of a vacation home in Drummond Designs’ collection, this certainly is it.
Its originality is above all attributable to a not so common exterior, proposing, among others, a large terrace whose very distinct structure with curved supports recalling the prow of certain ships, as well as a turret inspired from the Victorian era for a happy and very dynamic mixing of the different volumes.
Inside, this originality continues with the layout; on the main level, a large sized foyer, an entirely open activities center embellished by abundant windowing, a hot tub space in the turret, and of a kitchen with central island lunch counter, a “must” in this type of home. On the upper level, this trend continues with a choice of two layouts; the first suggests two bedrooms and a complete bathroom within the turret, and a second one, quite as exceptional and suggesting a unique master bedroom with open bathroom and large bathtub in the turret. To be noted here that the two proposed layouts are included with the plan and that, for each of these, some parts in the mezzanine are attributed to the upper bedrooms so as to occupy these slanted ceiling spaces which are otherwise lost and for even more originality.
Distinctive elements
Entirely open activity area on first floor with a spa in the turret. Foyer with large closet. One or two bedrooms on second level. Both options are included with the plan.
Plan feature(s)
Mezzanine, Entrance hall, Gound floor laundry room, Open floor layout, Island, Balcony 2nd floor, Separate bath and shower
Plan architectural style(s)
. Cottage, chalet, cabin, . Vacation and waterfront, . Victorian, . Ski chalets, . A-Frame, . Country, . American, . Traditional, . Mountain
Previously Viewed Plans
Questions and comments
May 01
Saraswattee Latchmoodoo
Hi, I would like to know where is the garage in the plan W4935.
I would also appreciate if you could provide some more photos of the interior, for example, closet, kitchen, bedrooms, etc...
Thanks,
Regards.
May 03
Customer service
Dear Sir,
Thank you for your interest in Drummond House Plans.
There is no garage included in this plan. Please click here to view all the pictures we have available for this plan.
Please contact us again if you need further information. We will gladly answer any questions you may have.
Best Regards,
Customer Service Department
Thank you for your comment! It must be approved before being put online, please allow a period of 24 hours.
Error with google reCaptcha! Try again
Here is a brief description of our different plan packages. Please select the plan package that suits your needs. You can change the package at the next step, if necessary.
PDF VERSION OF PLAN:
Complete digital version of plan (pdf format) sent by email (original plan format 18" x 24'' or 24" x 36'')
5 copies of plan + PDF:
Includes: 5 copies of plan, plan in PDF format (reduced size version), materials list.
Foundation type
Additional foundation types are available, a fee may apply. Please indicate your choice on the online order form, or to our customer service representative, when placing your house plan order.
If your desired foundation type is not available, please contact our customer service to receive your free plan modification quote.
Explanation of bonus space types
UNFINISHED BONUS ROOM
The bonus rooms are often planned above the garage and are accessible from the house. They are designed to be converted as an office, a laundry area, a bathroom, a library corner or even an additional bedroom for which homeowners must make sure to have a window that complies with current codes & standards.
STORAGE AREA
Often located above the garage, our storage areas are used only as storage and are usually accessible from the garage via a retractable staircase.
Do you like this plan but want it to be modified to suit your needs?
To add a garage, another bedroom, finish the basement or any other modification, click here and let us know about your desired changes and to get your free quote for the modification of your plan.
Conditions of use
Important copyright notice! Please take note of these copyright conditions before printing:
By printing this house plan, cottage or garage or the floorplan(s), you confirm being informed that every house plan on this website is the exclusive property of Drummond House
Plans and is protected by Canadian copyright law. You are aware that these prints cannot be used to build or even obtain a building permit. The graphic representations of these
models are offered by Drummond House Plans for the sole purpose of allowing you to notate modifications of a model and then take it to one of the Drummond House Plans Canadian dealers for
modification of the plan.
The purchase of a house plan, cottage or garage from Drummond House Plans is mandatory if you wish to build any of our models. The plan purchase allows you to build a single unit; you cannot resell or give your plan to anyone once the house, cottage or garage has been built. If you wish to build the same house, cottage or garage more than once, you need to obtain the licence to this effect. Please contact us for more details.
All plans from Drummond House Plans can only be modified by a licensed Drummond House Plan Canadian dealer. If any other business or individual with no affiliation to Drummond House Plans modifies a Drummond House Plan on your behalf, please ensure this business or individual has a licence to modify this specific plan or you will be subject to prosecution on the same level as the business or individual who modified or reproduced the plan.
For more details, do not hesitate to contact u by e-mail or by phone at 1-800-567-1413.
I agree to respect the conditions above to not reproduce, modify or build a model from Drummond House Plans without previously purchasing a complete house plan.











May 01
Saraswattee Latchmoodoo
Hi, I would like to know where is the garage in the plan W4935.
I would also appreciate if you could provide some more photos of the interior, for example, closet, kitchen, bedrooms, etc...
Thanks,
Regards.