There are no shipping fees if you buy one of our 2 plan packages "PDF file format" or "5 sets of blueprints + PDF". Shipping charges may apply if you buy additional sets of blueprints.
House plan Sunny Creek (3742)
Two-story home with 5 bedrooms, a game room, and bright, inviting family spaces
Virtual visit
Other useful information on this plan
Bright 5 bedroom Farmhouse home plan!
Discover this stunning two-story Farmhouse-style home plan, designed to perfectly blend rustic charm with modern comfort. From the very first glance, the inviting façade captivates with its elegant mix of stone and board & batten siding, creating a warm, semi-rustic look that feels timeless and welcoming. Whether nestled in the countryside or in a residential neighborhood, this home promises instant curb appeal and an unforgettable first impression.
Step inside and be greeted by 9-foot ceilings on the main floor, while the family room soars to 18’6’’, bathing the back of the home in spectacular natural light. Every moment spent here is an invitation to relax, gather, and create lasting memories. The main front entrance welcomes guests with style, while a side entrance leading to the mudroom makes everyday living effortlessly practical.
At the heart of the home lies the modern, functional kitchen, complete with a large, inviting island—perfect for cooking as a family, sharing coffee with friends, or hosting lively get-togethers. The open-concept layout seamlessly connects the kitchen, dining area, and family room, creating a warm, airy space where laughter and conversation flow naturally. Nearby, the discreetly tucked-away laundry room keeps daily life organized without disturbing the home’s elegance.
For entertainment and family fun, the game room just off the living area is a true delight. Kids will be thrilled to discover a secret little nook hidden under the stairs, a playful touch that makes the space even more special. The master suite on the main floor offers privacy and comfort, featuring a spacious walk-in closet and access to a full bathroom, creating the feel of a private retreat.
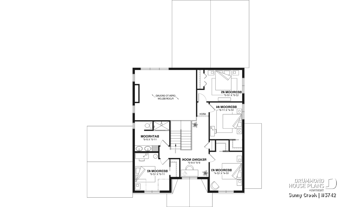
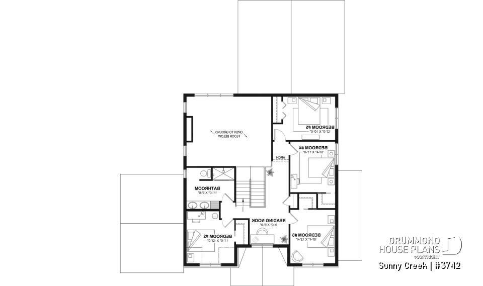
Upstairs, you’ll find four additional bedrooms, each with its own walk-in closet, ideal for large families or welcoming overnight guests. A modern shower room and a practical home office nook complete the second floor, offering functionality for work, study, or creative hobbies.
This plan is designed with a floating slab foundation, with other foundation options available to adapt to your lot and lifestyle. Bright, welcoming, and designed with everyday comfort in mind, this elegant Farmhouse home plan delivers the perfect blend of family living and timeless charm.
Distinctive elements
Two-story Farmhouse-style home plan.
Front façade combining stone and board & batten for a semi-rustic charm.
9' ceilings on the main floor and 18'6'' in the family room, flooding the back of the house with natural light.
Main front entrance and side entrance leading to the mudroom.
Convenient laundry room, discreetly set back from the kitchen.
Kitchen with a large, inviting island, perfect for entertaining.
Open-concept layout connecting kitchen, dining room, and family room for warm family moments.
Game room near the living room, featuring a small hidden nook under the stairs that kids will love.
Master bedroom on the main floor with walk-in closet and access to a full bathroom.
4 bedrooms upstairs, ideal for large families.
Upper floor completed with a shower room and a practical home office nook.
Designed with a floating slab foundation, with other options available in the shopping cart.
Plan feature(s)
Open floor layout, Arch, Shelves, Gound floor laundry room, Deck, Mud room, Panoramic view, Walk-in master bed., Separate bath and shower, Double sinks, Pantry, Ceiling over 8', Cathedral ceiling, Built-ins, Island, Planning desk, Game room
Plan architectural style(s)
Modern farmhouse, . Farmhouse, . Traditional, . American, . Country, . Modern rustic, Modern Craftsman
Similar plans
Previously Viewed Plans
Thank you for your comment! It must be approved before being put online, please allow a period of 24 hours.
Error with google reCaptcha! Try again
Here is a brief description of our different plan packages. Please select the plan package that suits your needs. You can change the package at the next step, if necessary.
PDF VERSION OF PLAN:
Complete digital version of plan (pdf format) sent by email (original plan format 18" x 24'' or 24" x 36'')
5 copies of plan + PDF:
Includes: 5 copies of plan, plan in PDF format (reduced size version), materials list.
Foundation type
Additional foundation types are available, a fee may apply. Please indicate your choice on the online order form, or to our customer service representative, when placing your house plan order.
If your desired foundation type is not available, please contact our customer service to receive your free plan modification quote.
Explanation of bonus space types
UNFINISHED BONUS ROOM
The bonus rooms are often planned above the garage and are accessible from the house. They are designed to be converted as an office, a laundry area, a bathroom, a library corner or even an additional bedroom for which homeowners must make sure to have a window that complies with current codes & standards.
STORAGE AREA
Often located above the garage, our storage areas are used only as storage and are usually accessible from the garage via a retractable staircase.
Do you like this plan but want it to be modified to suit your needs?
To add a garage, another bedroom, finish the basement or any other modification, click here and let us know about your desired changes and to get your free quote for the modification of your plan.
Conditions of use
Important copyright notice! Please take note of these copyright conditions before printing:
By printing this house plan, cottage or garage or the floorplan(s), you confirm being informed that every house plan on this website is the exclusive property of Drummond House
Plans and is protected by Canadian copyright law. You are aware that these prints cannot be used to build or even obtain a building permit. The graphic representations of these
models are offered by Drummond House Plans for the sole purpose of allowing you to notate modifications of a model and then take it to one of the Drummond House Plans Canadian dealers for
modification of the plan.
The purchase of a house plan, cottage or garage from Drummond House Plans is mandatory if you wish to build any of our models. The plan purchase allows you to build a single unit; you cannot resell or give your plan to anyone once the house, cottage or garage has been built. If you wish to build the same house, cottage or garage more than once, you need to obtain the licence to this effect. Please contact us for more details.
All plans from Drummond House Plans can only be modified by a licensed Drummond House Plan Canadian dealer. If any other business or individual with no affiliation to Drummond House Plans modifies a Drummond House Plan on your behalf, please ensure this business or individual has a licence to modify this specific plan or you will be subject to prosecution on the same level as the business or individual who modified or reproduced the plan.
For more details, do not hesitate to contact u by e-mail or by phone at 1-800-567-1413.
I agree to respect the conditions above to not reproduce, modify or build a model from Drummond House Plans without previously purchasing a complete house plan.

















