There are no shipping fees if you buy one of our 2 plan packages "PDF file format" or "5 sets of blueprints + PDF". Shipping charges may apply if you buy additional sets of blueprints.
House plan Romie (3073)
Buy this planFrom 2285$ See prices and options
House plan Romie (3073)
Magnificent farmhouse-style bi-generation house, shared sheltered terrace and laundry room
Buy this plan
Special: Free shipping!
Need help?
Come see us
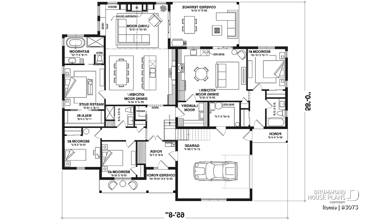
View the size of the rooms and height of the ceilings
| 1st level | ||
|---|---|---|
| Rooms | Sizes | Ceiling |
| Garage | 21'0" x 20'4" | ~ 9'6" |
| Foyer | 8'8" x 7'6" | ~ 9'0" |
| Bedroom | 10'0" x 10'6" | ~ 9'0" |
| Closet | 3'8" x 2'0" | ~ 9'0" |
| Bedroom | 10'6" x 9'2" | ~ 9'0" |
| Closet | 5'0" x 2'0" | ~ 9'0" |
| Linen | 3'2" x 1'8" | ~ 9'0" |
| Bathroom | 8'2" x 6'0" | ~ 9'0" |
| Shower | 4'0" x 2'8" | N/A |
| Linen | 1'8" x 2'8" | N/A |
| Kitchen/dining room | 20'4" x 16'4" | ~ 9'0" |
| Kitchen island | 10'0" x 3'6" | N/A |
| Covered porch | 0'2" x 6'10" | ~ 9'4" |
| Master suite | 11'8" x 13'0" | ~ 9'0" |
| Full bathroom | 11'6" x 7'10" | ~ 9'0" |
| Shower | 5'0" x 3'0" | N/A |
| Linen | 1'0" x 1'6" | N/A |
| Walk-in closet | 11'8" x 4'8" | ~ 9'0" |
| Pantry | 3'0" x 4'0" | ~ 9'0" |
| Living room | 19'10" x 13'0" | ~ 12'2" |
| Covered deck | 20'0" x 13'0" | ~ 9'4" |
| Laundry room | 8'8" x 7'2" | ~ 9'0" |
| Linen | 1'8" x 2'4" | N/A |
| Mechanical room | 8'10" x 7'2" | ~ 9'0" |
| Covered porch | 10'4" x 4'0" | ~ 9'4" |
| Closet | 5'0" x 2'4" | ~ 9'0" |
| Linen | 2'4" x 1'10" | ~ 9'0" |
| Bathroom | 8'2" x 5'6" | ~ 9'0" |
| Bedroom | 11'0" x 11'10" | ~ 9'0" |
| Closet | 5'6" x 2'0" | ~ 9'0" |
| Kitchen/dining room | 20'0" x 15'2" | ~ 9'0" |
| 2nd level | ||
|---|---|---|
| Rooms | Sizes | Ceiling |
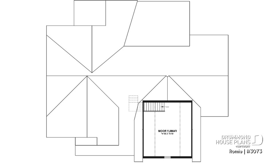
| Great room or Family room | 18'0" x 20'4" | ~ 8'0" |
General specifications
| Total living area | 2717 sq.ft. |
| 1st level | 2327 sq.ft. |
| 2nd level | 390 sq.ft. |
| Width | 65'8" |
| Depth | 58'0" |
| Ridge height from top of foundation | 25'6" |
| Exterior wall | 2 X 6 |
| Foundation type included in the plan | Floating Slab |
| Other available foundations (a fee may apply) | Crawl space, Monolithic Slab |
| Builder price code | MC |
Rooms specifications
| Bedroom(s) | 3, 4 |
| Full baths | 3 |
| Half baths | - |
| Garage type | One-car garage (484 sq.ft.) |
| Living bonus space | - |
| Bonus storage | - |
| Covered porch area | 43 sq.ft. |
| Unit 1 (Main) | Unit 2 (In-Law) | |
| Total living area | 1633 sq.ft. | 784 sq.ft. |
| 1st level | 1633 sq.ft. | 784 sq.ft. |
| Width | 33' 8" | 32' 8" |
| Depth | 51' 10" | 24' 0" |
| Ridge height from top of foundation | 25' 6" | 25' 6" |
| Exterior wall | 2 X 6 | 2 X 6 |
| Foundation type | Floating Slab | Floating Slab |
| Bedroom(s) | 3 | 1 |
| Full baths | 2 | 1 |
| Half baths | - | - |
| Garage type | - | - |
| Living bonus space | - | - |
| Bonus storage | - | - |
General specifications
| Total living area | 2717 sq.ft. |
| 1st level | 2327 sq.ft. |
| 2nd level | 390 sq.ft. |
| Width | 65'8" |
| Depth | 58'0" |
| Ridge height from top of foundation | 25'6" |
| Exterior wall | 2 X 6 |
| Foundation type included in the plan | Floating Slab i |
| Other available foundations (a fee may apply) | Crawl space, Monolithic Slab |
| Builder price code | MC |
Rooms specifications
| Bedroom(s) | 3, 4 |
| Full baths | 3 |
| Half baths | - |
| Garage type | One-car garage (484 sq.ft.) |
| Living bonus space | - i |
| Bonus storage | - i |
| Covered porch area | 43 sq.ft. |
Units specifications
| Unit 1 (Main) | Unit 2 (In-Law) | |
| Total living area | 1633 sq.ft. | 784 sq.ft. |
| 1st level | 1633 sq.ft. | 784 sq.ft. |
| Width | 33' 8" | 32' 8" |
| Depth | 51' 10" | 24' 0" |
| Ridge height from top of foundation | 25' 6" | 25' 6" |
| Exterior wall | 2 X 6 | 2 X 6 |
| Foundation type | Floating Slab | Floating Slab |
| Bedroom(s) | 3 | 1 |
| Full baths | 2 | 1 |
| Half baths | - | - |
| Garage type | - | - |
| Living bonus space | - | - |
| Bonus storage | - | - |
Bathroom
Photos represent a modified version of the original plan and are not available for sale. We invite you to get your free plan modification cost estimate if you would like any changes to the original plan.
Bathroom
Photos represent a modified version of the original plan and are not available for sale. We invite you to get your free plan modification cost estimate if you would like any changes to the original plan.
Kitchen
Photos represent a modified version of the original plan and are not available for sale. We invite you to get your free plan modification cost estimate if you would like any changes to the original plan.
Kitchen
Photos represent a modified version of the original plan and are not available for sale. We invite you to get your free plan modification cost estimate if you would like any changes to the original plan.
Kitchen
Photos represent a modified version of the original plan and are not available for sale. We invite you to get your free plan modification cost estimate if you would like any changes to the original plan.
Home office
Photos represent a modified version of the original plan and are not available for sale. We invite you to get your free plan modification cost estimate if you would like any changes to the original plan.
Living room
Photos represent a modified version of the original plan and are not available for sale. We invite you to get your free plan modification cost estimate if you would like any changes to the original plan.
Living room
Photos represent a modified version of the original plan and are not available for sale. We invite you to get your free plan modification cost estimate if you would like any changes to the original plan.
Dining room
Photos represent a modified version of the original plan and are not available for sale. We invite you to get your free plan modification cost estimate if you would like any changes to the original plan.
Foyer
Photos represent a modified version of the original plan and are not available for sale. We invite you to get your free plan modification cost estimate if you would like any changes to the original plan.
Foyer
Photos represent a modified version of the original plan and are not available for sale. We invite you to get your free plan modification cost estimate if you would like any changes to the original plan.
Utility room/laundry room
Photos represent a modified version of the original plan and are not available for sale. We invite you to get your free plan modification cost estimate if you would like any changes to the original plan.
Expo Habitat de Québec 2014
Construction Maurice Bilodeau
Designer Les Créations RékaGracieuseté
Note: The photos of this house differ from the original plan, from which they come.
Other useful information on this plan
Bi-generation farmhouse plan offering comfort and style!
.
Distinctive elements
Superb intergenerational country farmhouse home style offering accommodations for a family and another for parents or grandparents.
The laundry room as well as the large sheltered terrace are connecting between the 2 accommodations.
9' ceiling for both dwellings, and a cathedral is planned in the living room of accommodation 1 (family).
Appartment 1 (family):
Large sheltered front porch.
Large entrance with coat closet and bench, accessible from the front entrance and the garage.
Split bedroom concept: the two children's bedrooms and shower room are separated from the area where the parents' suite is provided.
The master suite offers a walk-in closet as well as a private bathroom with separate bath and shower.
Pretty decorative arches are present in the bathroom in the master suite, as well as at the access between the entrance and the kitchen.
The kitchen offers a large island as well as a pantry and is open to the dining room and the living room.
The living room offers a fireplace, a cathedral ceiling, a small bench and a planning desk area. In addition, this area also gives access to the sheltered terrace.
Appartment 2 (parents / grandparents):
Entrance with coat closet.
Open concept to the kitchen, dining room and living room.
Access to the sheltered terrace shared with appartment 1.
Master bedroom with closet and beautiful natural light coming from the 3 windows.
Bathroom set back from the activity area.
Simple garage, but good size with storage area and mechanical room.
Plan feature(s)
Cathedral ceiling, Fireplace, Deck, Deck, Pantry, Side load garage, Bench seat(s), Island, Walk-in master bed., Separate bath and shower, Open floor layout, Open floor layout, Built-ins, Oversized garage, Shelves, Split bedrooms, Planning desk, Arch
Similar plans
Previously Viewed Plans
Thank you for your comment! It must be approved before being put online, please allow a period of 24 hours.
Error with google reCaptcha! Try again
Want to modify this plan?
Free plan modification quoteNeed help?
Contact usCome see us
Our 31 regional officesYou may also like
Similar plans
Description
Accommodation 1 (family):
Entrance, kitchen, dining room, living room with office area, master suite with ensuite, 2 additional bedrooms and a shower room.
Connecting laundry room and covered terrace between the two accommodations.
Accommodation 2 (grandparents):
Entrance, kitchen, dining room and living room, bedroom and bathroom.
Garage with mechanical and storage room.
Floating slab. Other foundation options available.
Awards and
Recognition
Here is a brief description of our different plan packages. Please select the plan package that suits your needs. You can change the package at the next step, if necessary.
PDF VERSION OF PLAN:
Complete digital version of plan (pdf format) sent by email (original plan format 18" x 24'' or 24" x 36'')
5 copies of plan + PDF:
Includes: 5 copies of plan, plan in PDF format (reduced size version), materials list.
Foundation type
Additional foundation types are available, a fee may apply. Please indicate your choice on the online order form, or to our customer service representative, when placing your house plan order.
If your desired foundation type is not available, please contact our customer service to receive your free plan modification quote.
Explanation of bonus space types
UNFINISHED BONUS ROOM
The bonus rooms are often planned above the garage and are accessible from the house. They are designed to be converted as an office, a laundry area, a bathroom, a library corner or even an additional bedroom for which homeowners must make sure to have a window that complies with current codes & standards.
STORAGE AREA
Often located above the garage, our storage areas are used only as storage and are usually accessible from the garage via a retractable staircase.
Do you like this plan but want it to be modified to suit your needs?
To add a garage, another bedroom, finish the basement or any other modification, click here and let us know about your desired changes and to get your free quote for the modification of your plan.
Conditions of use
Important copyright notice! Please take note of these copyright conditions before printing:
By printing this house plan, cottage or garage or the floorplan(s), you confirm being informed that every house plan on this website is the exclusive property of Drummond House
Plans and is protected by Canadian copyright law. You are aware that these prints cannot be used to build or even obtain a building permit. The graphic representations of these
models are offered by Drummond House Plans for the sole purpose of allowing you to notate modifications of a model and then take it to one of the Drummond House Plans Canadian dealers for
modification of the plan.
The purchase of a house plan, cottage or garage from Drummond House Plans is mandatory if you wish to build any of our models. The plan purchase allows you to build a single unit; you cannot resell or give your plan to anyone once the house, cottage or garage has been built. If you wish to build the same house, cottage or garage more than once, you need to obtain the licence to this effect. Please contact us for more details.
All plans from Drummond House Plans can only be modified by a licensed Drummond House Plan Canadian dealer. If any other business or individual with no affiliation to Drummond House Plans modifies a Drummond House Plan on your behalf, please ensure this business or individual has a licence to modify this specific plan or you will be subject to prosecution on the same level as the business or individual who modified or reproduced the plan.
For more details, do not hesitate to contact u by e-mail or by phone at 1-800-567-1413.
I agree to respect the conditions above to not reproduce, modify or build a model from Drummond House Plans without previously purchasing a complete house plan.

























