There are no shipping fees if you buy one of our 2 plan packages "PDF file format" or "5 sets of blueprints + PDF". Shipping charges may apply if you buy additional sets of blueprints.
House plan Robin (3621)
ROBIN by Drummond House Plans: Spacious Modern Craftsman Home with Stunning Primary Suite
Other useful information on this plan
Modern Craftsman Plan with 3 to 5 Bedrooms, Private Office and Spacious Double Garage
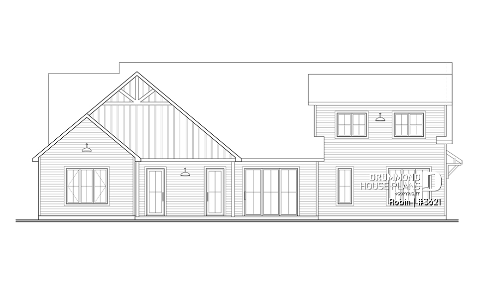
The ROBIN Model (#3621) offers 3,009 sq. ft. of living space spread over two levels, a spacious double garage, and a covered rear porch with a 12'9" ceiling accented by decorative faux beams.
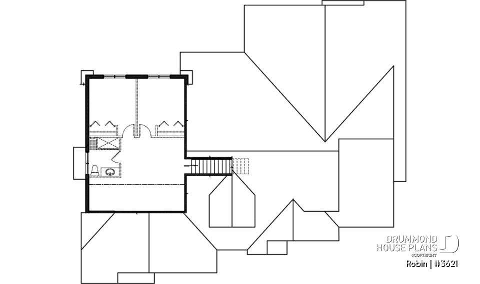
This Modern Craftsman design stands out for its elegant architecture, warm materials, and highly functional layout. Designed for flexibility, it easily adapts to changing family needs, offering three to five bedrooms depending on how the upper level is used—all while maintaining an airy, light-filled atmosphere throughout.
The main floor features 9-foot ceilings that enhance brightness and openness. The family room impresses with a soaring 15'8" cathedral ceiling, creating a dramatic focal point and a true sense of grandeur. The well-designed entryway provides direct access to the mudroom, making daily life simple and organized for busy families.
Comfort and Style for Everyday Living
Two children’s bedrooms on the main floor share a private full bathroom, ideal for young families. The primary suite, set apart for privacy, includes a walk-in closet, large glass shower, and private ensuite with dual sinks, perfectly balancing style and comfort.
At the heart of the home, the bright kitchen features a central island and walk-in pantry, opening onto both the dining area and living room. The living space exudes warmth and elegance, with its central fireplace and cathedral ceiling, making it perfect for family gatherings and entertaining.
Smart Spaces and Outdoor Living
The laundry room, conveniently located on the main level, adds everyday practicality. A private home office, accessible from both the interior and exterior, includes a nearby powder room—ideal for remote work or home-based professionals.
Out back, a large covered and open terrace provides the perfect balance of shade and sunshine, allowing you to enjoy outdoor living all year long. Built on a floating slab foundation, the design also offers optional foundation types to suit your needs.
Blending modern comfort, country charm, and architectural sophistication, the ROBIN Modern Craftsman embodies the perfect harmony of timeless design and contemporary living.
Distinctive elements
Stunning and spacious modern farmhouse, showcasing rich, natural materials and warm textures.
Versatile layout offering 3 to 5 bedrooms, depending on the chosen configuration for the upper level.
Nine-foot ceilings throughout the main floor, except in the family room, where a 15'8" cathedral ceiling creates a striking visual effect.
Functional entryway with direct access to the mudroom, ideal for busy family life.
Two children’s bedrooms on the main floor share a private full bathroom.
Spacious primary suite with walk-in closet, private bathroom, double vanity, and large glass shower.
Inviting kitchen with central island and walk-in pantry, open to the dining area and bright living room.
Living room with central fireplace and cathedral ceiling, creating a warm, welcoming atmosphere.
Large and practical laundry room conveniently located on the main floor.
Private home office, set apart from the main living areas, featuring an independent exterior entrance and adjacent powder room — perfect for remote work or a home-based professional.
Expansive rear terrace combining a covered section and a sun-filled open area, ideal for enjoying the outdoors year-round.
Built on a floating slab foundation, with other foundation options available to suit your needs.
Plan feature(s)
Cathedral ceiling, Master suite on main, Gound floor laundry room, Deck, Mud room, Office / Study / Den, Jack & Jill bath, Walk-in master bed., Double sinks, Separate bath and shower, Sliding barn door(s), Pantry, Island, Open floor layout, Shelves, Game room, Ceiling over 8'
Plan architectural style(s)
. Ranch, . Farmhouse, Modern farmhouse, . Craftsman / Northwest, Modern Craftsman, . American, . Country, . Transitional, . Modern rustic
Similar plans
Previously Viewed Plans
Thank you for your comment! It must be approved before being put online, please allow a period of 24 hours.
Error with google reCaptcha! Try again
Here is a brief description of our different plan packages. Please select the plan package that suits your needs. You can change the package at the next step, if necessary.
PDF VERSION OF PLAN:
Complete digital version of plan (pdf format) sent by email (original plan format 18" x 24'' or 24" x 36'')
5 copies of plan + PDF:
Includes: 5 copies of plan, plan in PDF format (reduced size version), materials list.
Foundation type
Additional foundation types are available, a fee may apply. Please indicate your choice on the online order form, or to our customer service representative, when placing your house plan order.
If your desired foundation type is not available, please contact our customer service to receive your free plan modification quote.
Explanation of bonus space types
UNFINISHED BONUS ROOM
The bonus rooms are often planned above the garage and are accessible from the house. They are designed to be converted as an office, a laundry area, a bathroom, a library corner or even an additional bedroom for which homeowners must make sure to have a window that complies with current codes & standards.
STORAGE AREA
Often located above the garage, our storage areas are used only as storage and are usually accessible from the garage via a retractable staircase.
Do you like this plan but want it to be modified to suit your needs?
To add a garage, another bedroom, finish the basement or any other modification, click here and let us know about your desired changes and to get your free quote for the modification of your plan.
Conditions of use
Important copyright notice! Please take note of these copyright conditions before printing:
By printing this house plan, cottage or garage or the floorplan(s), you confirm being informed that every house plan on this website is the exclusive property of Drummond House
Plans and is protected by Canadian copyright law. You are aware that these prints cannot be used to build or even obtain a building permit. The graphic representations of these
models are offered by Drummond House Plans for the sole purpose of allowing you to notate modifications of a model and then take it to one of the Drummond House Plans Canadian dealers for
modification of the plan.
The purchase of a house plan, cottage or garage from Drummond House Plans is mandatory if you wish to build any of our models. The plan purchase allows you to build a single unit; you cannot resell or give your plan to anyone once the house, cottage or garage has been built. If you wish to build the same house, cottage or garage more than once, you need to obtain the licence to this effect. Please contact us for more details.
All plans from Drummond House Plans can only be modified by a licensed Drummond House Plan Canadian dealer. If any other business or individual with no affiliation to Drummond House Plans modifies a Drummond House Plan on your behalf, please ensure this business or individual has a licence to modify this specific plan or you will be subject to prosecution on the same level as the business or individual who modified or reproduced the plan.
For more details, do not hesitate to contact u by e-mail or by phone at 1-800-567-1413.
I agree to respect the conditions above to not reproduce, modify or build a model from Drummond House Plans without previously purchasing a complete house plan.




















