There are no shipping fees if you buy one of our 2 plan packages "PDF file format" or "5 sets of blueprints + PDF". Shipping charges may apply if you buy additional sets of blueprints.
House plan Hanout (2825)
Modern Crafstman-style home with soaring cathedral ceiling, bright mezzanine, and natural light
Other useful information on this plan
Modern Nordic-Style Home with Cathedral Ceiling and Bright Mezzanine
This modern Nordic-style two-story home captures attention with its clean lines and timeless architecture. Featuring an attached garage and a covered front porch, it perfectly balances beauty and practicality. Every detail has been designed to create a living space that is both functional and inspiring — ideal for today’s modern families.
As soon as you enter, you’re greeted by a well-organized foyer, accessible from both the front door and the garage. A handy built-in bench and a spacious closet make daily routines simple and efficient. The layout flows naturally toward the living room, enhanced by a cathedral ceiling soaring over 17 feet high. This impressive height floods the space with light and air, creating an inviting atmosphere. A graceful archway between the foyer and living room adds a subtle touch of charm.
The kitchen and dining area are bathed in natural light, forming the heart of the home. The kitchen is both stylish and practical, featuring a large 5'10" x 6'8" walk-in pantry and a central island with a lunch counter — perfect for cooking and entertaining at once. A convenient powder room nearby includes stacked washer and dryer units, adding functionality without sacrificing style.
Upstairs, a bright mezzanine overlooks the main floor, amplifying the sense of openness. Three generously sized bedrooms and a spacious bathroom with a double vanity, separate shower, and bathtub provide comfort and privacy for the entire family.
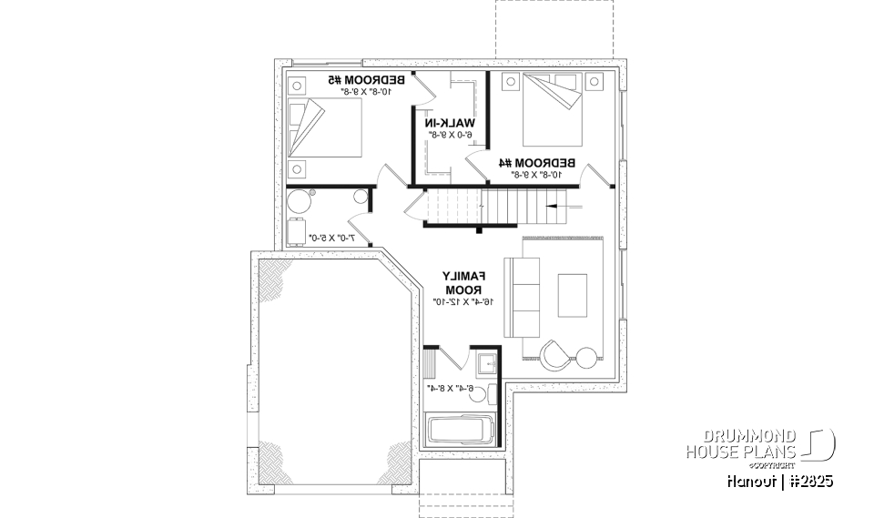
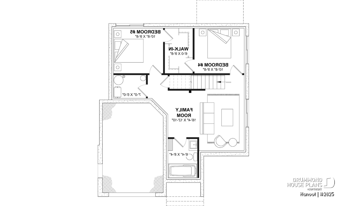
The fully finished basement expands the possibilities: two bedrooms connected by a shared walk-in closet, a family or game room, a modern bathroom, and a mechanical room complete the layout.
A perfect blend of Nordic design, natural light, and smart functionality, this home offers a lifestyle that is modern, cozy, and timeless — a signature of Drummond House Plans.
Distinctive elements
Modern Craftsman-style two-story home with attached garage.
Covered front porch, ideal for rainy or snowy days.
Front and garage entries with a convenient bench and large coat closet.
Charming arch detail between the foyer and living room.
Cathedral ceiling over 17 feet high in the living room for a bright, airy feel.
Functional kitchen with a spacious 5'10" x 6'8" walk-in pantry and a handy lunch counter for cooking and entertaining.
Kitchen and dining area filled with natural light.
Convenient powder room set apart from the kitchen, including stacked washer and dryer.
Upstairs mezzanine adding openness and character to the main floor.
Three well-sized bedrooms on the upper level, ideal for family living.
Spacious bathroom with double vanity, separate tub, and shower.
Fully finished basement.
Two bedrooms connected by a large walk-in closet.
Family room or playroom, perfect for kids.
Additional bathroom and mechanical room.
Garage connected directly to the main entry, near the coat closet.
Plan feature(s)
Mezzanine, Gound floor laundry room, Lunch counter, Walk-in master bed., Pantry, Panoramic view, Bath in the shower, Double sinks, Cathedral ceiling, Bench seat(s), Arch
Plan architectural style(s)
Modern Craftsman, . Craftsman / Northwest, . Traditional, . Country, . Modern rustic
Similar plans
Previously Viewed Plans
Thank you for your comment! It must be approved before being put online, please allow a period of 24 hours.
Error with google reCaptcha! Try again
Here is a brief description of our different plan packages. Please select the plan package that suits your needs. You can change the package at the next step, if necessary.
PDF VERSION OF PLAN:
Complete digital version of plan (pdf format) sent by email (original plan format 18" x 24'' or 24" x 36'')
5 copies of plan + PDF:
Includes: 5 copies of plan, plan in PDF format (reduced size version), materials list.
Foundation type
Additional foundation types are available, a fee may apply. Please indicate your choice on the online order form, or to our customer service representative, when placing your house plan order.
If your desired foundation type is not available, please contact our customer service to receive your free plan modification quote.
Explanation of bonus space types
UNFINISHED BONUS ROOM
The bonus rooms are often planned above the garage and are accessible from the house. They are designed to be converted as an office, a laundry area, a bathroom, a library corner or even an additional bedroom for which homeowners must make sure to have a window that complies with current codes & standards.
STORAGE AREA
Often located above the garage, our storage areas are used only as storage and are usually accessible from the garage via a retractable staircase.
Do you like this plan but want it to be modified to suit your needs?
To add a garage, another bedroom, finish the basement or any other modification, click here and let us know about your desired changes and to get your free quote for the modification of your plan.
Conditions of use
Important copyright notice! Please take note of these copyright conditions before printing:
By printing this house plan, cottage or garage or the floorplan(s), you confirm being informed that every house plan on this website is the exclusive property of Drummond House
Plans and is protected by Canadian copyright law. You are aware that these prints cannot be used to build or even obtain a building permit. The graphic representations of these
models are offered by Drummond House Plans for the sole purpose of allowing you to notate modifications of a model and then take it to one of the Drummond House Plans Canadian dealers for
modification of the plan.
The purchase of a house plan, cottage or garage from Drummond House Plans is mandatory if you wish to build any of our models. The plan purchase allows you to build a single unit; you cannot resell or give your plan to anyone once the house, cottage or garage has been built. If you wish to build the same house, cottage or garage more than once, you need to obtain the licence to this effect. Please contact us for more details.
All plans from Drummond House Plans can only be modified by a licensed Drummond House Plan Canadian dealer. If any other business or individual with no affiliation to Drummond House Plans modifies a Drummond House Plan on your behalf, please ensure this business or individual has a licence to modify this specific plan or you will be subject to prosecution on the same level as the business or individual who modified or reproduced the plan.
For more details, do not hesitate to contact u by e-mail or by phone at 1-800-567-1413.
I agree to respect the conditions above to not reproduce, modify or build a model from Drummond House Plans without previously purchasing a complete house plan.










