There are no shipping fees if you buy one of our 2 plan packages "PDF file format" or "5 sets of blueprints + PDF". Shipping charges may apply if you buy additional sets of blueprints.
House plan Gulf Breeze (2266)
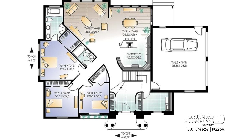
3 bedroom, 2 bathroom house plan with master suite, 2-car garage, large open concept
Other useful information on this plan
Fluid 3 bedrooms, 2 bathrooms affordable house plan, Florida style
Two pairs of stately columns anchor the dramatically vaulted entry of this fine single-level home. Flanked by two generous closets, the sunken entry rises up to the flowing floorplan.
Family and guests will enjoy the gently defined open plan. The eye carries to a partially vaulted living room which echoes the grandeur of the entry. A generous kitchen and island allow for comfortable prep and light snacks and the dining area is easily serviced by the kitchen or covered grilling deck.
The master suite is designed for comfort with walk-in closet and private bathroom with double-sink vanity, soaker tub and independent shower. Two secondary bedrooms share a hall bath.
A side-loading two car garage and discreet laundry room complete the fine amenities.
Distinctive elements
Side load garage, special ceiling treatments, double doors to master suite, double sinks in master suite bathroom, walk-in closet in one of the secondary bedrooms, abundant and special fenestration, front entry has large columns.
Plan feature(s)
Master suite upstairs, Side entry garage, Gound floor laundry room, Island, Walk-in master bed., Gound floor laundry room, Separate bath and shower, Double sinks, Deck
Plan architectural style(s)
. Mediterranean, . Florida
Similar plans
Previously Viewed Plans
Questions and comments
September 23
Roy Idrach
Can you please tell me the diameter and length of the columns on the entrance and how big is this porch. I just want to know to see how much they cost.
Thanks
Roy S.
September 23
Customer service
Good day Mr. Idrach and thank you for your interest in this plan.
The (4) columns are 12" in diameter x 12' tall and the whole porch is 15'8" at the outside x 5'2" deep.
Please let me know if you have any other questions or comments.
Regards
Deb
January 23
Tom Reid
Is it possible to build this plan on one level without steps from foyer to living area, eliminating the vaulted ceilings in front foyer. What is the pitch of the main roof. Thanks, Tom
January 23
Customer service
Good day and thank you for taking the time to write.
The roof pitch is 9/12 everywhere.
The modification of which you speak is possible with the help of our modification specialists.
Please let me know if I can be of futher assistance.
Regards
Deborah
April 26
Kelly Byzitter
Is it possible to get a little more info on this plan; such as dimensions and roof lines (vaults, etc). We like the plan but the builder needs more to give us a quote.
April 28
Customer service
Dear Mrs Byzitter,
Thank you for your interest in Drummond House Plans.
We have sent you all the information available by email.
Do not hesitate to contact us if you need more information. We will gladly answer any questions you may have.
Best Regards,
Customer Service Department
Thank you for your comment! It must be approved before being put online, please allow a period of 24 hours.
Error with google reCaptcha! Try again
Here is a brief description of our different plan packages. Please select the plan package that suits your needs. You can change the package at the next step, if necessary.
PDF VERSION OF PLAN:
Complete digital version of plan (pdf format) sent by email (original plan format 18" x 24'' or 24" x 36'')
5 copies of plan + PDF:
Includes: 5 copies of plan, plan in PDF format (reduced size version), materials list.
Foundation type
Additional foundation types are available, a fee may apply. Please indicate your choice on the online order form, or to our customer service representative, when placing your house plan order.
If your desired foundation type is not available, please contact our customer service to receive your free plan modification quote.
Explanation of bonus space types
UNFINISHED BONUS ROOM
The bonus rooms are often planned above the garage and are accessible from the house. They are designed to be converted as an office, a laundry area, a bathroom, a library corner or even an additional bedroom for which homeowners must make sure to have a window that complies with current codes & standards.
STORAGE AREA
Often located above the garage, our storage areas are used only as storage and are usually accessible from the garage via a retractable staircase.
Do you like this plan but want it to be modified to suit your needs?
To add a garage, another bedroom, finish the basement or any other modification, click here and let us know about your desired changes and to get your free quote for the modification of your plan.
Conditions of use
Important copyright notice! Please take note of these copyright conditions before printing:
By printing this house plan, cottage or garage or the floorplan(s), you confirm being informed that every house plan on this website is the exclusive property of Drummond House
Plans and is protected by Canadian copyright law. You are aware that these prints cannot be used to build or even obtain a building permit. The graphic representations of these
models are offered by Drummond House Plans for the sole purpose of allowing you to notate modifications of a model and then take it to one of the Drummond House Plans Canadian dealers for
modification of the plan.
The purchase of a house plan, cottage or garage from Drummond House Plans is mandatory if you wish to build any of our models. The plan purchase allows you to build a single unit; you cannot resell or give your plan to anyone once the house, cottage or garage has been built. If you wish to build the same house, cottage or garage more than once, you need to obtain the licence to this effect. Please contact us for more details.
All plans from Drummond House Plans can only be modified by a licensed Drummond House Plan Canadian dealer. If any other business or individual with no affiliation to Drummond House Plans modifies a Drummond House Plan on your behalf, please ensure this business or individual has a licence to modify this specific plan or you will be subject to prosecution on the same level as the business or individual who modified or reproduced the plan.
For more details, do not hesitate to contact u by e-mail or by phone at 1-800-567-1413.
I agree to respect the conditions above to not reproduce, modify or build a model from Drummond House Plans without previously purchasing a complete house plan.





September 23
Roy Idrach
Can you please tell me the diameter and length of the columns on the entrance and how big is this porch. I just want to know to see how much they cost.
Thanks
Roy S.