There are no shipping fees if you buy one of our 2 plan packages "PDF file format" or "5 sets of blueprints + PDF". Shipping charges may apply if you buy additional sets of blueprints.
House plan Dempsey 2 (3452-V1)
3 to 4 bedroom American Country house plan with bonus space, garage and home office
Other useful information on this plan
Great Country style home with 3 to 4 bedrooms and home office!
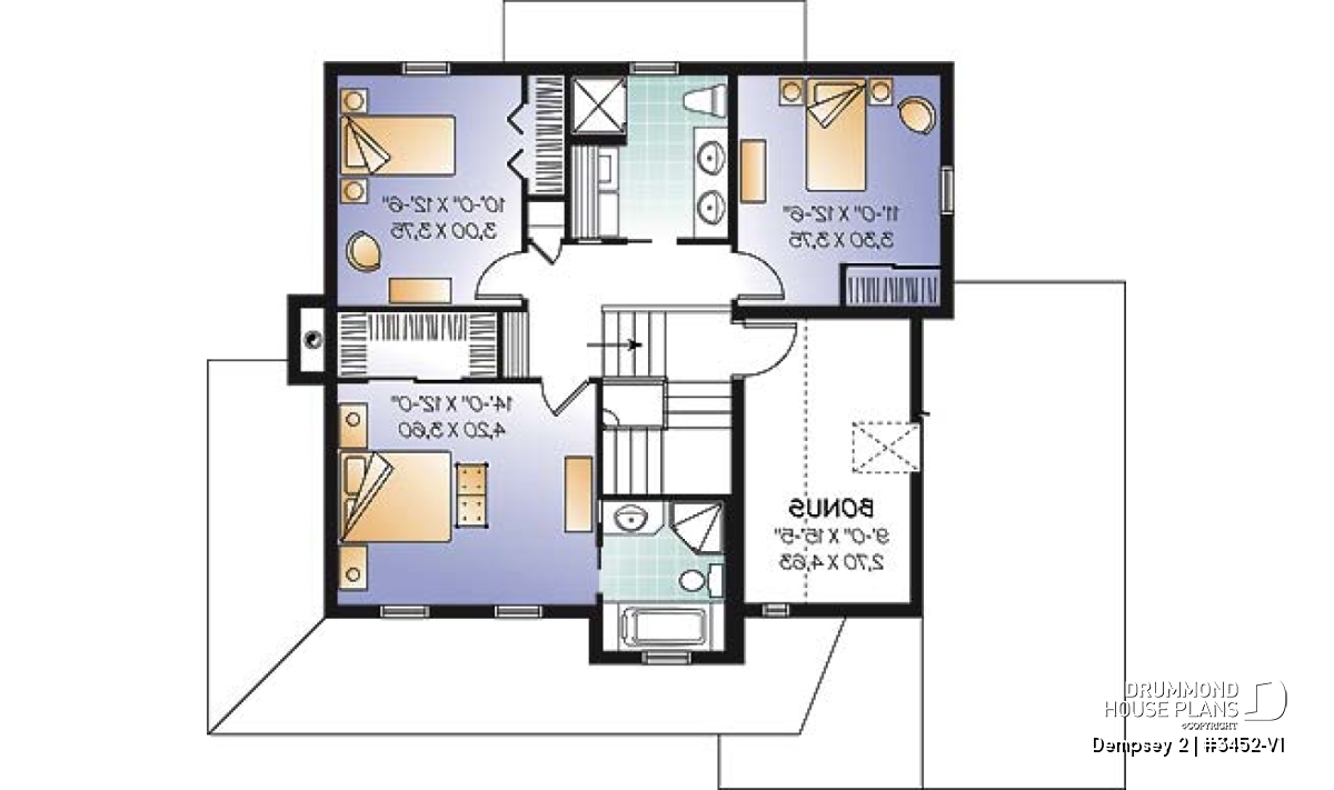
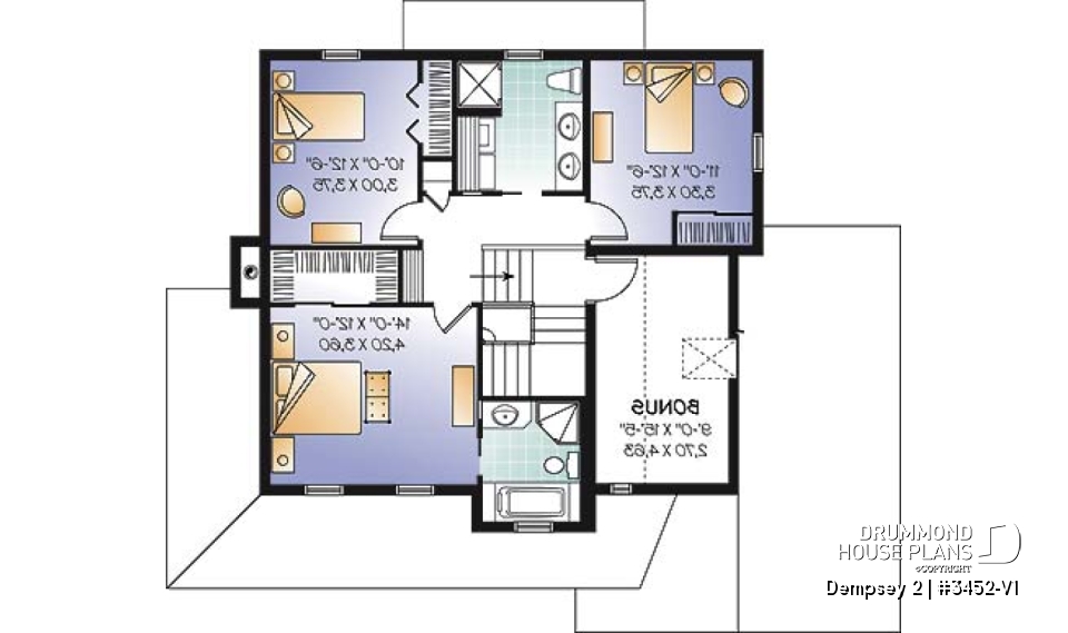
This house is an attractive version of an already well-liked plan. Have you ever noticed original plan number 3452? You then should really like this model 3452-V1 for which the reversed approach proposes both for the exterior, an enlarged garage by four (4) feet and deeper by two (2) feet, plus an extended porch along the side, steel sheet metal roofing that has been pre-painted. On the inside, a fireplace has been designed between the dining room and the family room along with an 8’-6” ceiling on the first level. Still regarding the interior, this model preserves the excellent assets from the original plan such as the landing at the main entrance or the vast well-lit family room that is completely open-aired and suggests a kitchen with a central lunch counter. Not forgetting that on the first floor, a home office adjoining the kitchen is offered as well as a large exterior terrace which has a cold room beneath it. On the second floor, the assets refer to a large bonus space designed over the garage and especially the three (3) large bedrooms, one being the master suite with a private bath and walk-in closet. Here, the laundry room is adjacent to the shower room which has become more and more appreciated on this level. The parents as well as the children truly find there comfort in these rooms.
Distinctive elements
8'-6" ceiling on 1st level. Large front porch and hallway in main entrance. Attractive kitchen with nice lunch island. Adjoining fireplace to living room and dining room. Home office on 1st floor that can be used as a laundry room. Master bedroom with walk-in closet and private bathroom. Shower room combined with laundry room for secondary bedrooms.
Plan feature(s)
Fireplace, Living bonus space, Master suite upstairs, Office / Study / Den, Entrance hall, Sloped ceiling, Game room, Island, Warparound, Open floor layout, Separate bath and shower, Double sinks, Second floor laundry room, Ceiling over 8', Walk-in master bed.
Plan architectural style(s)
. Country, . A-Frame, . Traditional, . Colonial, . American
Similar plans
Previously Viewed Plans
Thank you for your comment! It must be approved before being put online, please allow a period of 24 hours.
Error with google reCaptcha! Try again
Here is a brief description of our different plan packages. Please select the plan package that suits your needs. You can change the package at the next step, if necessary.
PDF VERSION OF PLAN:
Complete digital version of plan (pdf format) sent by email (original plan format 18" x 24'' or 24" x 36'')
5 copies of plan + PDF:
Includes: 5 copies of plan, plan in PDF format (reduced size version), materials list.
Foundation type
Additional foundation types are available, a fee may apply. Please indicate your choice on the online order form, or to our customer service representative, when placing your house plan order.
If your desired foundation type is not available, please contact our customer service to receive your free plan modification quote.
Explanation of bonus space types
UNFINISHED BONUS ROOM
The bonus rooms are often planned above the garage and are accessible from the house. They are designed to be converted as an office, a laundry area, a bathroom, a library corner or even an additional bedroom for which homeowners must make sure to have a window that complies with current codes & standards.
STORAGE AREA
Often located above the garage, our storage areas are used only as storage and are usually accessible from the garage via a retractable staircase.
Do you like this plan but want it to be modified to suit your needs?
To add a garage, another bedroom, finish the basement or any other modification, click here and let us know about your desired changes and to get your free quote for the modification of your plan.
Conditions of use
Important copyright notice! Please take note of these copyright conditions before printing:
By printing this house plan, cottage or garage or the floorplan(s), you confirm being informed that every house plan on this website is the exclusive property of Drummond House
Plans and is protected by Canadian copyright law. You are aware that these prints cannot be used to build or even obtain a building permit. The graphic representations of these
models are offered by Drummond House Plans for the sole purpose of allowing you to notate modifications of a model and then take it to one of the Drummond House Plans Canadian dealers for
modification of the plan.
The purchase of a house plan, cottage or garage from Drummond House Plans is mandatory if you wish to build any of our models. The plan purchase allows you to build a single unit; you cannot resell or give your plan to anyone once the house, cottage or garage has been built. If you wish to build the same house, cottage or garage more than once, you need to obtain the licence to this effect. Please contact us for more details.
All plans from Drummond House Plans can only be modified by a licensed Drummond House Plan Canadian dealer. If any other business or individual with no affiliation to Drummond House Plans modifies a Drummond House Plan on your behalf, please ensure this business or individual has a licence to modify this specific plan or you will be subject to prosecution on the same level as the business or individual who modified or reproduced the plan.
For more details, do not hesitate to contact u by e-mail or by phone at 1-800-567-1413.
I agree to respect the conditions above to not reproduce, modify or build a model from Drummond House Plans without previously purchasing a complete house plan.






