There are no shipping fees if you buy one of our 2 plan packages "PDF file format" or "5 sets of blueprints + PDF". Shipping charges may apply if you buy additional sets of blueprints.
House plan Bridge 2 (3893-V1)
3 to 5 bedroom Modern Farmhouse house plan, home office, garage, 2.5 baths, 2 large terraces
Other useful information on this plan
Modern farmhouse house plan offering 3+ bedrooms, home office, mudroom, pantry and more!
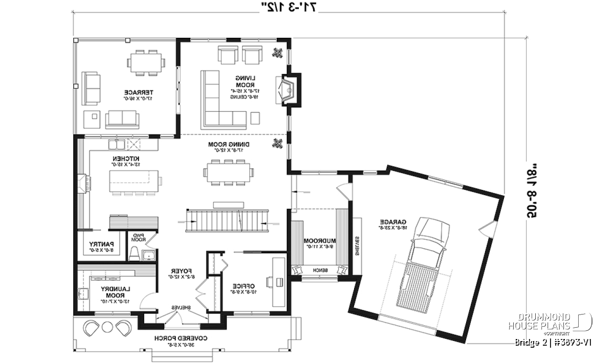
Discover our bright BRIDGE 2 farmhouse-style house plan (# 3893-V1) with garage, offering a comfortable 3313 of heated sq.ft., in addition to an unfinished walkout basement, adding when finished, an extra 1435 sq.ft.
The ground floor and the second floor have 9 "high ceilings, except in the living room, where there is a ceiling of almost 20" high. The sheltered front balcony opens onto a large entrance hall with large guest closet on the left and a large laundry room on the right. There is also a large mudroom located near the garage access, which will certainly be very practical for the family. A home office is set up at the front of the house and set back from the living spaces. The kitchen has a walk-in pantry and a large island, as well as a coffee bar-type counter. The dining room is open to the kitchen on one side, and the living room on the other. The latter is an impressive height of almost 20 "with fireplace and plenty of natural light and also gives access to the large terrace of 17" x 16 ".
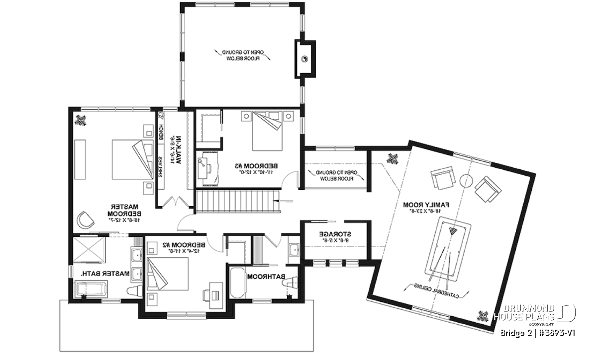
Upstairs offers a large master suite with walk-in closet and private bathroom, with double sink, separate bath and shower. The two secondary bedrooms each have a walk-in closet and share a bathroom. A storage room (or small gym) as well as a large games room are also located upstairs. Note that a small mezzanine is also located upstairs and overlooking the entrance to the garage, thus giving a great amplitude to this space!
The garage is simple and large in size and could easily be doubled as needed, via our online plan modification service or in one of our 26 regional offices in Canada.
Distinctive elements
Bright modern farmhouse home plan with garage.
Possibility of 3 to 5 bedrooms.
Catwalk between bedroom area and family/gameroom.
9' ceiling on main and second floors, except living room (20' ceiling).
Large laundry room on main floor.
Kitchen with large walk-in pantry, and island.
Living room with 2-story ceiling and fireplace.
Balcony near kitchen.
Master suite with ensuite and large walk-in closet.
One of the 2 secondary bedrooms has direct access to bathroom room.
Large family room and game room (or bedroom # 4).
Foundation included: unfinished walkout basement. Many other foundation options are available, please contact us for more information.
House plan with interior passerelle.
*Cabana plan from this collection: #1920 (Casita)
Plan feature(s)
Cathedral ceiling, Ceiling over 8', Open floor layout, Office / Study / Den, Gound floor laundry room, Mud room, Pantry, Island, Fireplace, Game room, Master suite upstairs, Separate bath and shower, Double sinks, Coffee bar, Bench seat(s), Deck, Access to basement from exterior
Plan architectural style(s)
Modern farmhouse, . American, . Farmhouse, . Transitional, . Modern rustic, . Vacation and waterfront, Modern Craftsman, . Country, . Traditional, . L-Shaped
Similar plans
Previously Viewed Plans
Thank you for your comment! It must be approved before being put online, please allow a period of 24 hours.
Error with google reCaptcha! Try again
Here is a brief description of our different plan packages. Please select the plan package that suits your needs. You can change the package at the next step, if necessary.
PDF VERSION OF PLAN:
Complete digital version of plan (pdf format) sent by email (original plan format 18" x 24'' or 24" x 36'')
5 copies of plan + PDF:
Includes: 5 copies of plan, plan in PDF format (reduced size version), materials list.
Foundation type
Additional foundation types are available, a fee may apply. Please indicate your choice on the online order form, or to our customer service representative, when placing your house plan order.
If your desired foundation type is not available, please contact our customer service to receive your free plan modification quote.
Explanation of bonus space types
UNFINISHED BONUS ROOM
The bonus rooms are often planned above the garage and are accessible from the house. They are designed to be converted as an office, a laundry area, a bathroom, a library corner or even an additional bedroom for which homeowners must make sure to have a window that complies with current codes & standards.
STORAGE AREA
Often located above the garage, our storage areas are used only as storage and are usually accessible from the garage via a retractable staircase.
Do you like this plan but want it to be modified to suit your needs?
To add a garage, another bedroom, finish the basement or any other modification, click here and let us know about your desired changes and to get your free quote for the modification of your plan.
Conditions of use
Important copyright notice! Please take note of these copyright conditions before printing:
By printing this house plan, cottage or garage or the floorplan(s), you confirm being informed that every house plan on this website is the exclusive property of Drummond House
Plans and is protected by Canadian copyright law. You are aware that these prints cannot be used to build or even obtain a building permit. The graphic representations of these
models are offered by Drummond House Plans for the sole purpose of allowing you to notate modifications of a model and then take it to one of the Drummond House Plans Canadian dealers for
modification of the plan.
The purchase of a house plan, cottage or garage from Drummond House Plans is mandatory if you wish to build any of our models. The plan purchase allows you to build a single unit; you cannot resell or give your plan to anyone once the house, cottage or garage has been built. If you wish to build the same house, cottage or garage more than once, you need to obtain the licence to this effect. Please contact us for more details.
All plans from Drummond House Plans can only be modified by a licensed Drummond House Plan Canadian dealer. If any other business or individual with no affiliation to Drummond House Plans modifies a Drummond House Plan on your behalf, please ensure this business or individual has a licence to modify this specific plan or you will be subject to prosecution on the same level as the business or individual who modified or reproduced the plan.
For more details, do not hesitate to contact u by e-mail or by phone at 1-800-567-1413.
I agree to respect the conditions above to not reproduce, modify or build a model from Drummond House Plans without previously purchasing a complete house plan.

































