There are no shipping fees if you buy one of our 2 plan packages "PDF file format" or "5 sets of blueprints + PDF". Shipping charges may apply if you buy additional sets of blueprints.
House plan Belcourt 2 (3820-V1)
Farmhouse style houseplan, affordable construction, 3 bedrooms, garage, covered balcony
Other useful information on this plan
Country home with 3 bedrooms, mudroom and a planning desk!
The already popular model, cottage 3820, whose exterior and interior photos are available on our site for you to enjoy, offers even more features which may increase the appeal of model version 3820-V1 over its predecessor. Enlargement of the floor plan adds comfort and the much enhanced size of the garage offers a new dimension to the practical space.
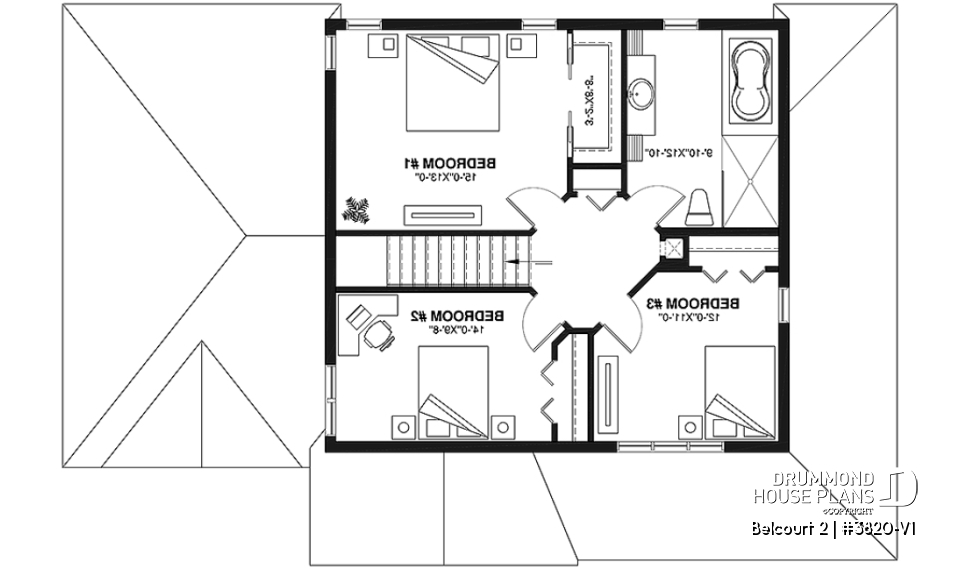
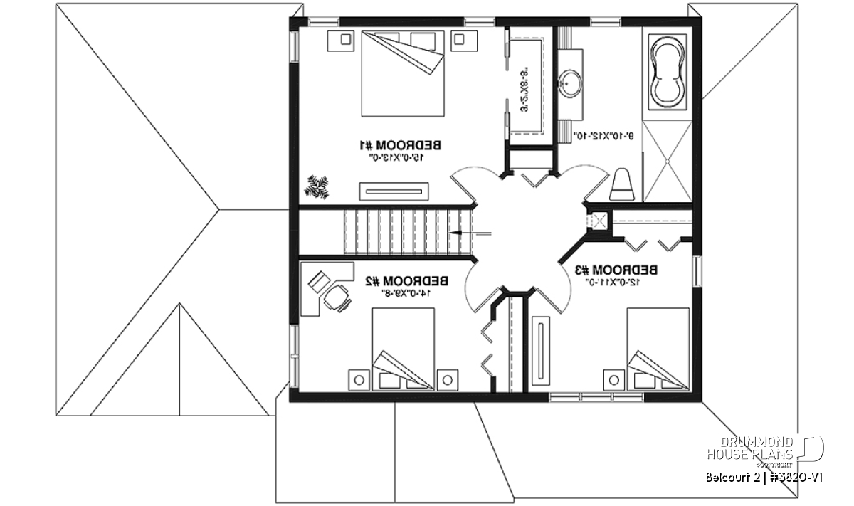
On the first floor there is larger entrance foyer, complete with its own walk-in closet. The family room has increased in size on the width and the depth and the kitchen also benefits from the additional width. The dining area now has room for built ins on either side of the window, between which is the perfect place to nestle a computer corner. All of the bedrooms upstairs are larger and the bathroom’s shower size has grown to 44” x 72”.
The enhanced garage accommodates a 10’ wide door and offers additional storage space, all features that give this plan more to love!
Distinctive elements
Comfortable main entrance foyer with a walk-in closet.
Partial cathedral ceiling in the living room.
Large dining room with abundant windows and a computer area.
Large kitchen with access to the garage.
Garage has direct access to basement. Three bedrooms on 2nd floor including master bedroom with walk-in closet.
Large bathroom with independant 44" x 72" shower.
Plan feature(s)
Basement access from garage, Separate bath and shower, Walk-in master bed., Gound floor laundry room, Lunch counter, Mud room, Planning desk, Cathedral ceiling
Plan architectural style(s)
. Country, . American, . Farmhouse, . Traditional
Similar plans
Previously Viewed Plans
Questions and comments
May 12
vicki
Can the upstairs bedroom (next to bathroom)and the bathroom be made smaller to allow a master ensuite?
May 13
Customer service
Dear Vicki,
Thank you for your interest in Drummond House Plans.
All of our plans can easily be modified. To receive a Free Cost Estimate, you can visit the "Plan modification services" section of our website or contact our Modification Department at 1-800-567-5267.
Do not hesitate to contact me again if you need further information.
Best Regards,
France, Customer Service Department
Thank you for your comment! It must be approved before being put online, please allow a period of 24 hours.
Error with google reCaptcha! Try again
Here is a brief description of our different plan packages. Please select the plan package that suits your needs. You can change the package at the next step, if necessary.
PDF VERSION OF PLAN:
Complete digital version of plan (pdf format) sent by email (original plan format 18" x 24'' or 24" x 36'')
5 copies of plan + PDF:
Includes: 5 copies of plan, plan in PDF format (reduced size version), materials list.
Foundation type
Additional foundation types are available, a fee may apply. Please indicate your choice on the online order form, or to our customer service representative, when placing your house plan order.
If your desired foundation type is not available, please contact our customer service to receive your free plan modification quote.
Explanation of bonus space types
UNFINISHED BONUS ROOM
The bonus rooms are often planned above the garage and are accessible from the house. They are designed to be converted as an office, a laundry area, a bathroom, a library corner or even an additional bedroom for which homeowners must make sure to have a window that complies with current codes & standards.
STORAGE AREA
Often located above the garage, our storage areas are used only as storage and are usually accessible from the garage via a retractable staircase.
Do you like this plan but want it to be modified to suit your needs?
To add a garage, another bedroom, finish the basement or any other modification, click here and let us know about your desired changes and to get your free quote for the modification of your plan.
Conditions of use
Important copyright notice! Please take note of these copyright conditions before printing:
By printing this house plan, cottage or garage or the floorplan(s), you confirm being informed that every house plan on this website is the exclusive property of Drummond House
Plans and is protected by Canadian copyright law. You are aware that these prints cannot be used to build or even obtain a building permit. The graphic representations of these
models are offered by Drummond House Plans for the sole purpose of allowing you to notate modifications of a model and then take it to one of the Drummond House Plans Canadian dealers for
modification of the plan.
The purchase of a house plan, cottage or garage from Drummond House Plans is mandatory if you wish to build any of our models. The plan purchase allows you to build a single unit; you cannot resell or give your plan to anyone once the house, cottage or garage has been built. If you wish to build the same house, cottage or garage more than once, you need to obtain the licence to this effect. Please contact us for more details.
All plans from Drummond House Plans can only be modified by a licensed Drummond House Plan Canadian dealer. If any other business or individual with no affiliation to Drummond House Plans modifies a Drummond House Plan on your behalf, please ensure this business or individual has a licence to modify this specific plan or you will be subject to prosecution on the same level as the business or individual who modified or reproduced the plan.
For more details, do not hesitate to contact u by e-mail or by phone at 1-800-567-1413.
I agree to respect the conditions above to not reproduce, modify or build a model from Drummond House Plans without previously purchasing a complete house plan.








May 12
vicki
Can the upstairs bedroom (next to bathroom)and the bathroom be made smaller to allow a master ensuite?