There are no shipping fees if you buy one of our 2 plan packages "PDF file format" or "5 sets of blueprints + PDF". Shipping charges may apply if you buy additional sets of blueprints.
House plan Beausejour 5 (4571-V3)
Farmhouse with up to 5 bedrooms, great covered rear deck, perfect family home plan, optional finished basement
Other useful information on this plan
Family home plan featuring up to 5 bedrooms!
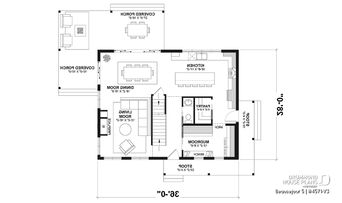
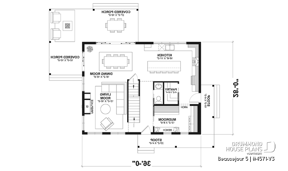
The BEAUSEJOUR 5 house plan (# 4571-V3) offers 2826 square feet on 3 floors. It should be noted that all the ceilings on the ground floor are 9 'high and that there are sloping ceilings in the master bedroom and also in bedroom # 2.
The front entrance of the house opens on 2 floors and faces a corridor in which there is, set back from the common areas, a practical half bath (powder room). Immediately to the left a large mudroom is available for storing the family's coats, but also a bench and a laundry room portion is located in this large space. The kitchen is at the back of the house and has a very large island, which can easily accommodate 4 to 5 people, in addition to a pantry. The latter is near the side entrance of the house, convenient for quickly tidying up food when returning from the grocery store! The living room is open to the dining room, and offers a fireplace.
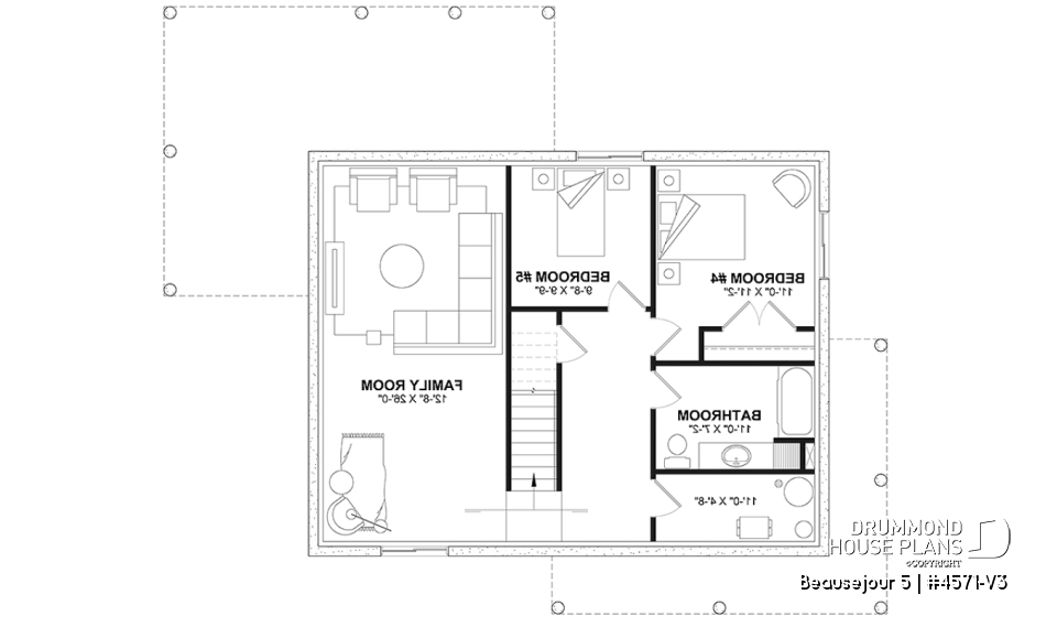
The second floor includes the master bedrooms and 2 secondary bedrooms. The parents' bedroom includes a large walk-in closet. The bathroom offers a separate bath and shower as well as 2 sinks, quite practical for busy mornings!
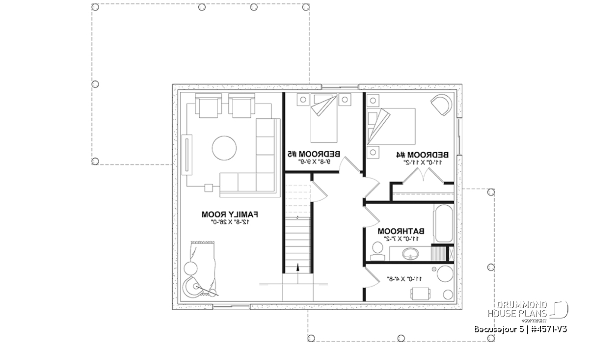
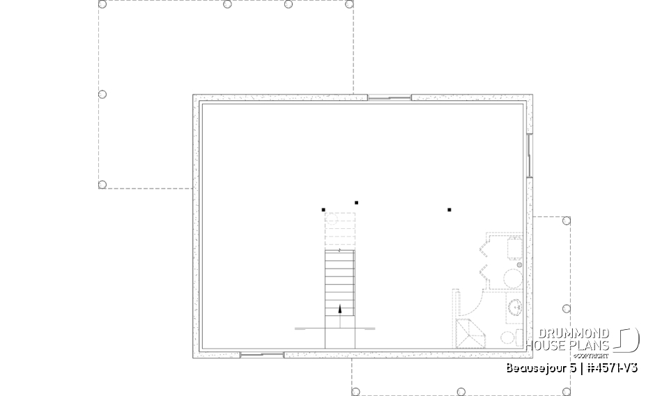
The *optional basement ($) is designed for large families by offering 2 additional bedrooms, a full bathroom and a large family room or playroom!
This house is perfect for families with 2+ children (or teenagers) with its 2 family rooms and 5 bedrooms!!
*If you wish to purchase the finished basement plan, as presented on this plan page, please select this option in the shopping cart, in the "Selection of foundation type" section. If you do not select this option, you will receive the unfinished full basement option, at no extra charge.
Distinctive elements
Superb trendy country house with optional finished basement ($).
Entrance open on 2 floors.
Large mudroom including a laundry area.
Kitchen with very large island and pantry.
Half bath.
Living room with fireplace.
Large sheltered porch at the back.
Master bedroom upstairs with walk-in closet.
Large family bathroom upstairs with separate tub and shower.
*Optional finished basement offering 2 good size bedrooms, bathroom and a large family room.
*If you wish to purchase the finished basement plan, as presented on this plan page, please select this option in the shopping cart, in the "Selection of foundation type" section. If you do not select this option, you will receive the unfinished full basement option, at no extra charge.
Plan feature(s)
Split bedrooms, 2-Story foyer, Warparound, Gound floor laundry room, Master suite upstairs, Walk-in master bed., Mud room, Bench seat(s), Pantry, Island, Fireplace, Ceiling over 8', Deck, Separate bath and shower, Double sinks, Sloped ceiling, Arch
Plan architectural style(s)
. Country, . American, . Farmhouse, . Canadian, Modern farmhouse, . Cape Cod, . Traditional, . Modern rustic, . Rustic
Similar plans
Previously Viewed Plans
Thank you for your comment! It must be approved before being put online, please allow a period of 24 hours.
Error with google reCaptcha! Try again
Here is a brief description of our different plan packages. Please select the plan package that suits your needs. You can change the package at the next step, if necessary.
PDF VERSION OF PLAN:
Complete digital version of plan (pdf format) sent by email (original plan format 18" x 24'' or 24" x 36'')
5 copies of plan + PDF:
Includes: 5 copies of plan, plan in PDF format (reduced size version), materials list.
Foundation type
Additional foundation types are available, a fee may apply. Please indicate your choice on the online order form, or to our customer service representative, when placing your house plan order.
If your desired foundation type is not available, please contact our customer service to receive your free plan modification quote.
Explanation of bonus space types
UNFINISHED BONUS ROOM
The bonus rooms are often planned above the garage and are accessible from the house. They are designed to be converted as an office, a laundry area, a bathroom, a library corner or even an additional bedroom for which homeowners must make sure to have a window that complies with current codes & standards.
STORAGE AREA
Often located above the garage, our storage areas are used only as storage and are usually accessible from the garage via a retractable staircase.
Do you like this plan but want it to be modified to suit your needs?
To add a garage, another bedroom, finish the basement or any other modification, click here and let us know about your desired changes and to get your free quote for the modification of your plan.
Conditions of use
Important copyright notice! Please take note of these copyright conditions before printing:
By printing this house plan, cottage or garage or the floorplan(s), you confirm being informed that every house plan on this website is the exclusive property of Drummond House
Plans and is protected by Canadian copyright law. You are aware that these prints cannot be used to build or even obtain a building permit. The graphic representations of these
models are offered by Drummond House Plans for the sole purpose of allowing you to notate modifications of a model and then take it to one of the Drummond House Plans Canadian dealers for
modification of the plan.
The purchase of a house plan, cottage or garage from Drummond House Plans is mandatory if you wish to build any of our models. The plan purchase allows you to build a single unit; you cannot resell or give your plan to anyone once the house, cottage or garage has been built. If you wish to build the same house, cottage or garage more than once, you need to obtain the licence to this effect. Please contact us for more details.
All plans from Drummond House Plans can only be modified by a licensed Drummond House Plan Canadian dealer. If any other business or individual with no affiliation to Drummond House Plans modifies a Drummond House Plan on your behalf, please ensure this business or individual has a licence to modify this specific plan or you will be subject to prosecution on the same level as the business or individual who modified or reproduced the plan.
For more details, do not hesitate to contact u by e-mail or by phone at 1-800-567-1413.
I agree to respect the conditions above to not reproduce, modify or build a model from Drummond House Plans without previously purchasing a complete house plan.




























