There are no shipping fees if you buy one of our 2 plan packages "PDF file format" or "5 sets of blueprints + PDF". Shipping charges may apply if you buy additional sets of blueprints.
House plan Altair 2 (3714-V1)
Two-story contemporary home plan with garage, open dining and living concept with central fireplace, 3 beds
Other useful information on this plan
Affordable contemporary cottage house plan with garage and 3 bedrooms
Inspired from our house plan # 3714, a garage has simply been added. This house plan # 3714-V1 by Drummond House Plans, also called Altaire 2, is an affordable and modern style home with a contemporary approach and very popular architectural style facade. Its open space allows for natural light to flow in and brighten the entire floor.
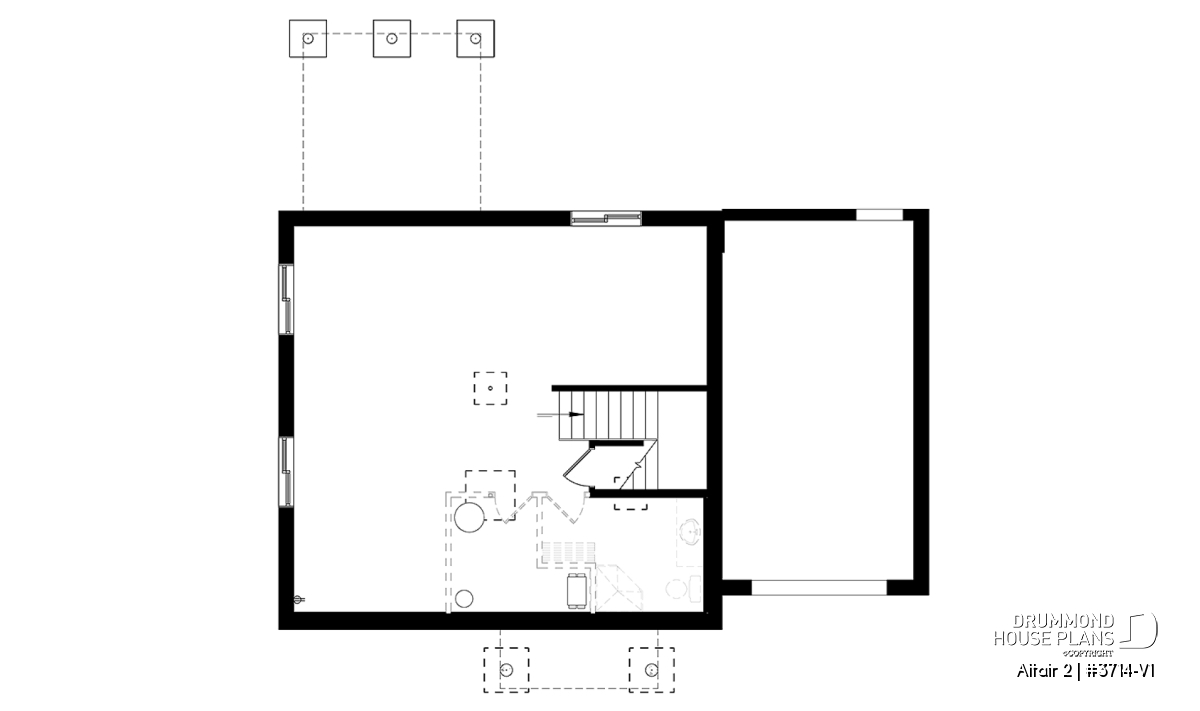
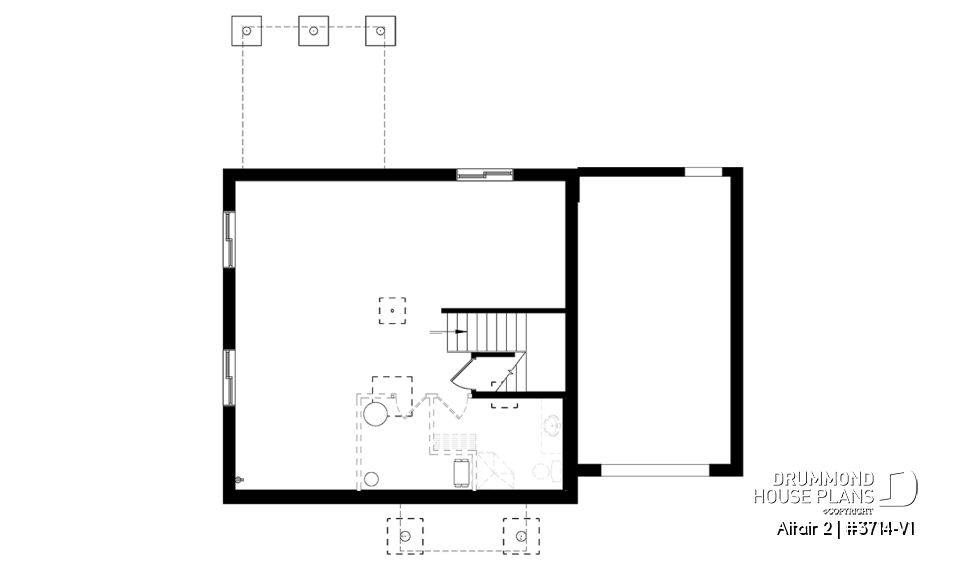
On the ground floor, we first notice an entrance with large coat closet of more than 6’ x 2’ as well as a laundry and half bath area that is set back from the other rooms. Afterwards, the main area opens up entirely exposing beautiful spaces including a living room that shares a three-sided fireplace along with the dining room and triple patio door. It also offers a remarkable kitchen with excellent storage, central kitchen island of 7’ x 3’ and triple window above the sink to maximize natural light.
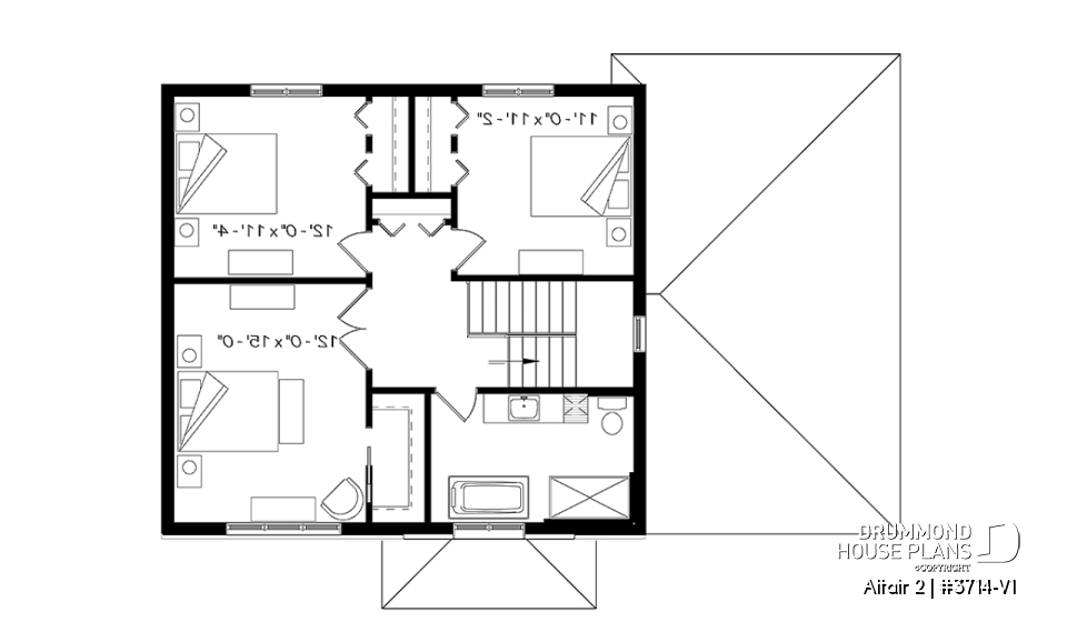
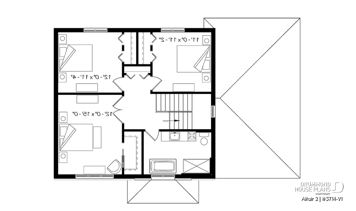
Upstairs, you will be pleasantly pleased by the format of the three rooms. The smaller one is 11’ x 11’ and the master bedroom offers a walk-in closet. There is also a full bathroom with separate shower that is 51 "x 34", a large vanity and laundry chute that will be sure to be much appreciated.
A version of this plan without a garage is also available, see plan 3714 for more details or contact us.
If you wish to make any adjustments or modifications to this home, contact us to obtain your free estimate. Other foundation options are available.
Distinctive elements
Trendy contemporary two-story home with 3 bedrooms and one-car garage.
Open entry with large coat closet.
Open concept kitchen, dining and living room with 3-sided fireplace.
Kitchen with 81" x 34" lunch island, triple window above the sink and 3ft x 2 ft pantry. 12ft. x 15ft. Master bedroom with walk-in closet.
Two secondary bedrooms can accommodate a double bed.
Beautiful, well-organized bathroom with separate shower, bath, toilet and discreet laundry chute.
Plan feature(s)
Gound floor laundry room, Island, Laundry chute, Fireplace, Open floor layout, Walk-in master bed., Separate bath and shower, Builder
Plan architectural style(s)
. Contemporary, . Modern / Design, . Transitional
Similar plans
Previously Viewed Plans
Thank you for your comment! It must be approved before being put online, please allow a period of 24 hours.
Error with google reCaptcha! Try again
Here is a brief description of our different plan packages. Please select the plan package that suits your needs. You can change the package at the next step, if necessary.
PDF VERSION OF PLAN:
Complete digital version of plan (pdf format) sent by email (original plan format 18" x 24'' or 24" x 36'')
5 copies of plan + PDF:
Includes: 5 copies of plan, plan in PDF format (reduced size version), materials list.
Foundation type
Additional foundation types are available, a fee may apply. Please indicate your choice on the online order form, or to our customer service representative, when placing your house plan order.
If your desired foundation type is not available, please contact our customer service to receive your free plan modification quote.
Explanation of bonus space types
UNFINISHED BONUS ROOM
The bonus rooms are often planned above the garage and are accessible from the house. They are designed to be converted as an office, a laundry area, a bathroom, a library corner or even an additional bedroom for which homeowners must make sure to have a window that complies with current codes & standards.
STORAGE AREA
Often located above the garage, our storage areas are used only as storage and are usually accessible from the garage via a retractable staircase.
Do you like this plan but want it to be modified to suit your needs?
To add a garage, another bedroom, finish the basement or any other modification, click here and let us know about your desired changes and to get your free quote for the modification of your plan.
Conditions of use
Important copyright notice! Please take note of these copyright conditions before printing:
By printing this house plan, cottage or garage or the floorplan(s), you confirm being informed that every house plan on this website is the exclusive property of Drummond House
Plans and is protected by Canadian copyright law. You are aware that these prints cannot be used to build or even obtain a building permit. The graphic representations of these
models are offered by Drummond House Plans for the sole purpose of allowing you to notate modifications of a model and then take it to one of the Drummond House Plans Canadian dealers for
modification of the plan.
The purchase of a house plan, cottage or garage from Drummond House Plans is mandatory if you wish to build any of our models. The plan purchase allows you to build a single unit; you cannot resell or give your plan to anyone once the house, cottage or garage has been built. If you wish to build the same house, cottage or garage more than once, you need to obtain the licence to this effect. Please contact us for more details.
All plans from Drummond House Plans can only be modified by a licensed Drummond House Plan Canadian dealer. If any other business or individual with no affiliation to Drummond House Plans modifies a Drummond House Plan on your behalf, please ensure this business or individual has a licence to modify this specific plan or you will be subject to prosecution on the same level as the business or individual who modified or reproduced the plan.
For more details, do not hesitate to contact u by e-mail or by phone at 1-800-567-1413.
I agree to respect the conditions above to not reproduce, modify or build a model from Drummond House Plans without previously purchasing a complete house plan.









