There are no shipping fees if you buy one of our 2 plan packages "PDF file format" or "5 sets of blueprints + PDF". Shipping charges may apply if you buy additional sets of blueprints.
House plan Albert 2 (3074-V1)
Buy this planFrom 2615$ See prices and options
House plan Albert 2 (3074-V1)
Semi-detached model with garage on one side, 3 bedrooms and 2 bathrooms per unit, open concept
Buy this plan
Special: Free shipping!
Need help?
Come see us
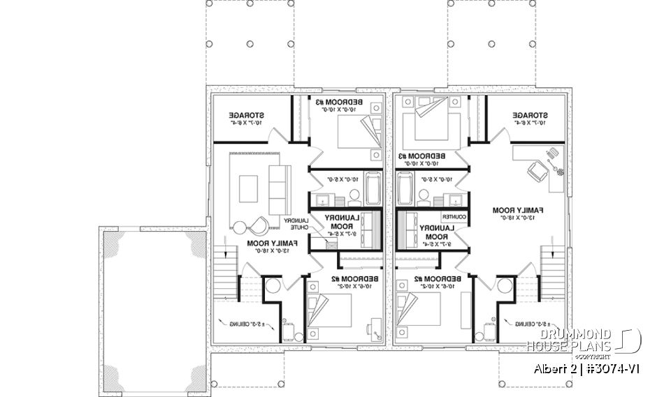
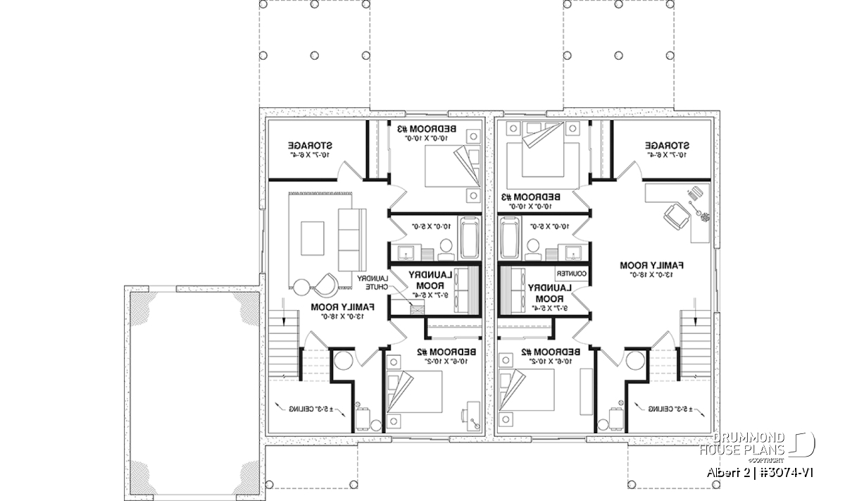
View the size of the rooms and height of the ceilings
| 1st level | ||
|---|---|---|
| Rooms | Sizes | Ceiling |
| Terrace | 12'0" x 12'0" | N/A |
| Terrace | 12'0" x 12'0" | N/A |
| Kitchen | 10'0" x 12'9" | ~ 9'0" |
| Kitchen island | 6'0" x 3'0" | N/A |
| Kitchen | 11'8" x 12'9" | ~ 9'0" |
| Kitchen island | 8'0" x 3'0" | N/A |
| Living room | 12'0" x 13'0" | ~ 9'0" |
| Bedroom | 11'9" x 12'6" | ~ 9'0" |
| Closet | 5'9" x 2'0" | ~ 9'0" |
| Closet | 5'5" x 2'0" | ~ 9'0" |
| Foyer | 7'0" x 6'0" | ~ 12'4" |
| Closet | 5'9" x 2'0" | ~ 12'4" |
| Foyer | 7'0" x 6'0" | ~ 12'4" |
| Closet | 5'9" x 2'0" | ~ 12'4" |
| Pantry | 4'4" x 3'0" | ~ 9'0" |
| Covered porch | 10'0" x 5'0" | ~ 9'0" |
| Covered porch | 10'0" x 5'0" | ~ 9'0" |
| Dining room | 12'8" x 10'0" | ~ 9'0" |
| Dining room | 11'0" x 10'0" | ~ 9'0" |
| Full bathroom | 11'9" x 8'4" | ~ 9'0" |
| Shower | 4'0" x 3'0" | N/A |
| Linen | 1'6" x 1'10" | N/A |
| Full bathroom | 10'9" x 8'4" | ~ 9'0" |
| Shower | 4'0" x 3'0" | N/A |
| Linen | 2'10" x 1'0" | N/A |
| Living room | 12'4" x 13'0" | ~ 9'0" |
| Master suite | 10'9" x 12'6" | ~ 9'0" |
| Walk-in closet | 9'0" x 5'4" | ~ 9'0" |
| Garage | 14'0" x 22'0" | ~ 11'6" |
| Basement | ||
|---|---|---|
| Rooms | Sizes | Ceiling |
| Laundry room | 9'7" x 5'4" | ~ 8'0" |
| Laundry room | 9'7" x 5'4" | ~ 8'0" |
| Bedroom | 10'6" x 10'2" | ~ 8'0" |
| Closet | 6'0" x 2'0" | ~ 8'0" |
| Bedroom | 10'6" x 10'2" | ~ 8'0" |
| Closet | 6'0" x 2'0" | ~ 8'0" |
| Bedroom | 10'0" x 10'0" | ~ 8'0" |
| Closet | 6'4" x 2'0" | ~ 8'0" |
| Bedroom | 10'0" x 10'0" | ~ 8'0" |
| Closet | 6'4" x 2'0" | ~ 8'0" |
| Mechanical room | 5'4" x 9'0" | ~ 8'0" |
| Mechanical room | 5'4" x 9'0" | ~ 8'0" |
| Storage | 10'7" x 6'4" | ~ 8'0" |
| Storage | 10'7" x 6'4" | ~ 8'0" |
| Storage | 9'0" x 5'5" | ~ 5'3" |
| Storage | 9'0" x 5'5" | ~ 5'3" |
| Bathroom | 10'0" x 5'0" | ~ 8'0" |
| Linen | 1'4" x 1'4" | N/A |
| Bathroom | 10'0" x 5'0" | ~ 8'0" |
| Linen | 1'4" x 1'4" | N/A |
| Great room or Family room | 13'0" x 18'0" | ~ 8'0" |
| Great room or Family room | 13'0" x 18'0" | ~ 8'0" |
General specifications
| Total living area | 3600 sq.ft. |
| 1st level | 1800 sq.ft. |
| Basement | 1800 sq.ft. |
| Width | 64'8" |
| Depth | 42'4" |
| Ridge height from top of foundation | 25'9" |
| Exterior wall | 2 X 6 |
| Foundation type included in the plan | Finished basement |
| Other available foundations (a fee may apply) | Unfinished Basement |
| Builder price code | ME |
Rooms specifications
| Bedroom(s) | 3 |
| Full baths | 2 |
| Half baths | - |
| Garage type | One-car garage (358 sq.ft.) |
| Living bonus space | - |
| Bonus storage | - |
| Covered porch area | 100 sq.ft. |
| UNIT 1 (LEFT) | UNIT 2 (RIGHT) | |
| Total living area | 1800 sq.ft. | 1800 sq.ft. |
| Basement | 900 sq.ft. | 900 sq.ft. |
| 1st level | 900 sq.ft. | 900 sq.ft. |
| Width | 25' 0" | 39' 8" |
| Depth | 36' 0" | 42' 4" |
| Ridge height from top of foundation | 25' 9" | 25' 9" |
| Exterior wall | 2 X 6 | 2 X 6 |
| Foundation type | Finished basement | Finished basement |
| Bedroom(s) | 3 | 3 |
| Full baths | 2 | 2 |
| Half baths | - | - |
| Garage type | - | One-car garage (358 sq.ft.) |
| Living bonus space | - | - |
| Bonus storage | - | - |
General specifications
| Total living area | 3600 sq.ft. |
| 1st level | 1800 sq.ft. |
| Basement | 1800 sq.ft. |
| Width | 64'8" |
| Depth | 42'4" |
| Ridge height from top of foundation | 25'9" |
| Exterior wall | 2 X 6 |
| Foundation type included in the plan | Finished basement i |
| Other available foundations (a fee may apply) | Unfinished Basement |
| Builder price code | ME |
Rooms specifications
| Bedroom(s) | 3 |
| Full baths | 2 |
| Half baths | - |
| Garage type | One-car garage (358 sq.ft.) |
| Living bonus space | - i |
| Bonus storage | - i |
| Covered porch area | 100 sq.ft. |
Units specifications
| UNIT 1 (LEFT) | UNIT 2 (RIGHT) | |
| Total living area | 1800 sq.ft. | 1800 sq.ft. |
| Basement | 900 sq.ft. | 900 sq.ft. |
| 1st level | 900 sq.ft. | 900 sq.ft. |
| Width | 25' 0" | 39' 8" |
| Depth | 36' 0" | 42' 4" |
| Ridge height from top of foundation | 25' 9" | 25' 9" |
| Exterior wall | 2 X 6 | 2 X 6 |
| Foundation type | Finished basement | Finished basement |
| Bedroom(s) | 3 | 3 |
| Full baths | 2 | 2 |
| Half baths | - | - |
| Garage type | - | One-car garage (358 sq.ft.) |
| Living bonus space | - | - |
| Bonus storage | - | - |
Kitchen
Photos represent a modified version of the original plan and are not available for sale. We invite you to get your free plan modification cost estimate if you would like any changes to the original plan.
Bathroom
Photos represent a modified version of the original plan and are not available for sale. We invite you to get your free plan modification cost estimate if you would like any changes to the original plan.
Bathroom
Photos represent a modified version of the original plan and are not available for sale. We invite you to get your free plan modification cost estimate if you would like any changes to the original plan.
Kitchen
Photos represent a modified version of the original plan and are not available for sale. We invite you to get your free plan modification cost estimate if you would like any changes to the original plan.
Kitchen
Photos represent a modified version of the original plan and are not available for sale. We invite you to get your free plan modification cost estimate if you would like any changes to the original plan.
Living room
Photos represent a modified version of the original plan and are not available for sale. We invite you to get your free plan modification cost estimate if you would like any changes to the original plan.
Living room
Photos represent a modified version of the original plan and are not available for sale. We invite you to get your free plan modification cost estimate if you would like any changes to the original plan.
Dining room
Photos represent a modified version of the original plan and are not available for sale. We invite you to get your free plan modification cost estimate if you would like any changes to the original plan.
Dining room
Photos represent a modified version of the original plan and are not available for sale. We invite you to get your free plan modification cost estimate if you would like any changes to the original plan.
Dining room
Photos represent a modified version of the original plan and are not available for sale. We invite you to get your free plan modification cost estimate if you would like any changes to the original plan.
Other useful information on this plan
Very trendy Modern Craftsman look for this semi-detached house offering 3 bedrooms and 2 bathrooms per accommodation!
The ALBERT 2 house plan (semi-detached plan #3074-V1) offers a total of 3,600 sq. ft. on the ground floor and fully finished basement. Each of the dwellings have a total of 1,800 sq. ft. on the ground floor and finished basement. The big difference compared to its original model (ALBERT) is the added garage to the right unit. The modern yet rustic style will attract the eye as much in the countryside as in new residential areas! Also note that both dwellings offer 9' high ceilings on the main floor.
For both dwellings, the ground floor opens onto a split-type entrance, allowing the basement rooms bellow to receive beautiful natural light through the windows. The master bedroom is located on the ground floor and has access to the large full bathroom which is also on this level. The latter offers a bath and a separate shower.
The kitchen with island is open to the living room and are both located at the back of the house for the dwelling on the left (1). The dining room is central for apartment 1, and at the back of the house for apartment 2. The latter offers a different layout for the ground floor which allowed us to add a pantry (still in apartment 2).
The finished daylight basements are identical and each include 2 additionnal bedrooms, a bathroom, the laundry room and a storage area. If necessary, we can modify the plan to accommodate the specific needs of your family.
Let yourself be charmed by the beauty of this warm exterior design and the comfort of the interior layout designed to please all types of families!
Distinctive elements
Country style semi-detached house plan.
Right unit with a one-car garage.
Highly sought-after warm rustic style look
Finished daylight basement, for a total of 3 bedrooms and 2 bathrooms per unit.
Two (2) different floor plans for the ground floor.
Master bedroom with access to the bathroom (dwelling 1).
Pantry provided for unit 2.
Open area to the kitchen, dining room and living room, for both dwellings.
Beautiful natural light accessible from the rear area of the house.
Plan feature(s)
Open floor layout, Separate bath and shower, Split bedrooms, Island, Entrance hall, Walk-in master bed., Pantry, Ceiling over 8', Pantry, Shelves
Plan architectural style(s)
. Modern rustic, Modern Craftsman, . Mountain, . Rustic, . Scandinavian, . Transitional, . Country, . European, Tudor
Similar plans
Previously Viewed Plans
Thank you for your comment! It must be approved before being put online, please allow a period of 24 hours.
Error with google reCaptcha! Try again
Want to modify this plan?
Free plan modification quoteNeed help?
Contact usCome see us
Our 31 regional officesYou may also like
Similar plans
Description
Ground floor:
Split entrance, master bedroom, full bathroom, dining room, kitchen and living room.
Finished daylight basement:
2 secondary bedrooms, family room, bathroom, laundry room and storage.
One-car garage for the right unit.
Awards and
Recognition
Here is a brief description of our different plan packages. Please select the plan package that suits your needs. You can change the package at the next step, if necessary.
PDF VERSION OF PLAN:
Complete digital version of plan (pdf format) sent by email (original plan format 18" x 24'' or 24" x 36'')
5 copies of plan + PDF:
Includes: 5 copies of plan, plan in PDF format (reduced size version), materials list.
Foundation type
Additional foundation types are available, a fee may apply. Please indicate your choice on the online order form, or to our customer service representative, when placing your house plan order.
If your desired foundation type is not available, please contact our customer service to receive your free plan modification quote.
Explanation of bonus space types
UNFINISHED BONUS ROOM
The bonus rooms are often planned above the garage and are accessible from the house. They are designed to be converted as an office, a laundry area, a bathroom, a library corner or even an additional bedroom for which homeowners must make sure to have a window that complies with current codes & standards.
STORAGE AREA
Often located above the garage, our storage areas are used only as storage and are usually accessible from the garage via a retractable staircase.
Do you like this plan but want it to be modified to suit your needs?
To add a garage, another bedroom, finish the basement or any other modification, click here and let us know about your desired changes and to get your free quote for the modification of your plan.
Conditions of use
Important copyright notice! Please take note of these copyright conditions before printing:
By printing this house plan, cottage or garage or the floorplan(s), you confirm being informed that every house plan on this website is the exclusive property of Drummond House
Plans and is protected by Canadian copyright law. You are aware that these prints cannot be used to build or even obtain a building permit. The graphic representations of these
models are offered by Drummond House Plans for the sole purpose of allowing you to notate modifications of a model and then take it to one of the Drummond House Plans Canadian dealers for
modification of the plan.
The purchase of a house plan, cottage or garage from Drummond House Plans is mandatory if you wish to build any of our models. The plan purchase allows you to build a single unit; you cannot resell or give your plan to anyone once the house, cottage or garage has been built. If you wish to build the same house, cottage or garage more than once, you need to obtain the licence to this effect. Please contact us for more details.
All plans from Drummond House Plans can only be modified by a licensed Drummond House Plan Canadian dealer. If any other business or individual with no affiliation to Drummond House Plans modifies a Drummond House Plan on your behalf, please ensure this business or individual has a licence to modify this specific plan or you will be subject to prosecution on the same level as the business or individual who modified or reproduced the plan.
For more details, do not hesitate to contact u by e-mail or by phone at 1-800-567-1413.
I agree to respect the conditions above to not reproduce, modify or build a model from Drummond House Plans without previously purchasing a complete house plan.























