There are no shipping fees if you buy one of our 2 plan packages "PDF file format" or "5 sets of blueprints + PDF". Shipping charges may apply if you buy additional sets of blueprints.
Garage plan Crossroads (6978)
30x36 Country-Style Spacious 2-Car Garage with Loft Storage, Half Bath, Workshop Space and Covered Porch
Virtual visit
Other useful information on this plan
Charming Country-Style Garage Plan with Spacious Storage & Flexible Layout
This beautifully designed country-style garage brings together generous parking, smart storage solutions, and warm farmhouse charm—all within a versatile and highly functional layout. With its graceful covered porch, timeless cottage-inspired exterior, and thoughtful interior planning, it is the ideal addition for homeowners seeking both practicality and character.
Measuring an impressive 30' x 36', this garage offers 1,050 sq.ft. of ground-level space, perfectly suited for parking two vehicles while still leaving ample room for seasonal equipment, tools, or recreational gear. The covered balcony adds a welcoming touch, providing a sheltered outdoor spot ideal for relaxing or tending to plants.
Inside, the main level includes a convenient powder room, making long days spent gardening, working, or tinkering in the workshop area even more comfortable. The open floor layout ensures smooth movement throughout, allowing the space to adapt easily to hobbies, storage, or light mechanical tasks. Whether you need a place for ATVs, snowmobiles, bikes, or patio furniture, this garage offers the flexibility you need.
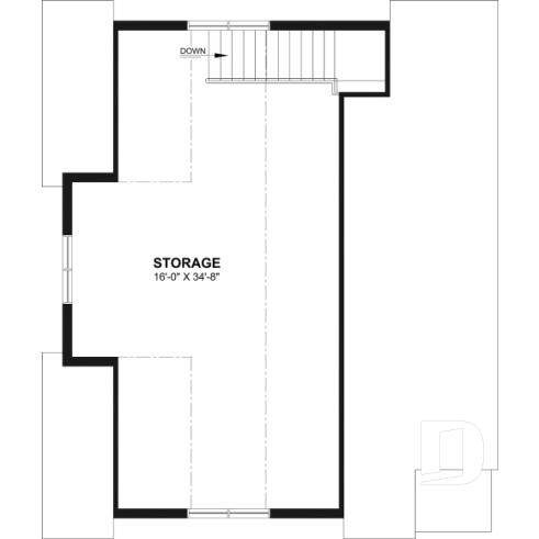
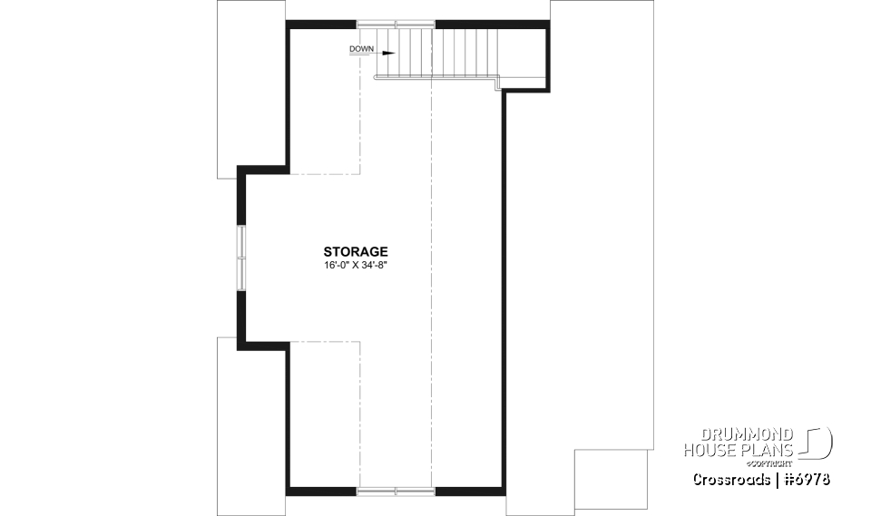
A major advantage of this design is the 632 sq.ft. upper-level storage area, accessible by a full staircase rather than a simple hatch. This ensures safer, easier access to large or bulky items and provides exceptional room for long-term storage—holiday décor, sports equipment, or even a future hobby loft.
Built on a floating slab foundation, the structure is durable and cost-efficient, though other foundation options can be selected to match your property’s requirements. The overall layout provides generous vehicle clearance along with dedicated space for gardening tools, a potting area, or a small workshop where creativity can flourish.
Combining beauty, efficiency, and adaptability, this garage plan is a fantastic solution for homeowners seeking a harmonious blend of farmhouse spirit and everyday usefulness. With its warm architectural style and intelligently designed spaces, it enhances any property while offering long-lasting value and comfort.
Distinctive elements
Garage Plan with Integrated Storage in a Thoughtfully Designed and Elegant Layout
A warm, country-inspired style that blends beautifully with farmhouse and cottage architecture.
A charming covered porch offers a practical and welcoming outdoor space.
A convenient half-bath on the main level is ideal for outdoor work and activities.
Generous 30' x 36' dimensions provide a versatile, well-organized, and easy-to-customize layout.
A spacious 1,050 sq.ft. main floor is perfect for storage, seasonal projects, or a dedicated workshop.
An additional 632 sq.ft. accessible by staircase allows you to maximize storage with ease.
Floating-slab foundation, with other foundation options available to suit your needs and site conditions.
Ample space to comfortably accommodate two cars as well as recreational or seasonal vehicles.
Plan feature(s)
Living bonus space, Oversized garage, Ceiling over 8'
Plan architectural style(s)
Modern farmhouse, . American, . Farmhouse, . Traditional, . Country, . Cape Cod, . Modern rustic, Modern Craftsman
Similar plans
Previously Viewed Plans
Thank you for your comment! It must be approved before being put online, please allow a period of 24 hours.
Error with google reCaptcha! Try again
Here is a brief description of our different plan packages. Please select the plan package that suits your needs. You can change the package at the next step, if necessary.
PDF VERSION OF PLAN:
Complete digital version of plan (pdf format) sent by email (original plan format 18" x 24'' or 24" x 36'')
5 copies of plan + PDF:
Includes: 5 copies of plan, plan in PDF format (reduced size version), materials list.
Foundation type
Additional foundation types are available, a fee may apply. Please indicate your choice on the online order form, or to our customer service representative, when placing your house plan order.
If your desired foundation type is not available, please contact our customer service to receive your free plan modification quote.
Explanation of bonus space types
UNFINISHED BONUS ROOM
The bonus rooms are often planned above the garage and are accessible from the house. They are designed to be converted as an office, a laundry area, a bathroom, a library corner or even an additional bedroom for which homeowners must make sure to have a window that complies with current codes & standards.
STORAGE AREA
Often located above the garage, our storage areas are used only as storage and are usually accessible from the garage via a retractable staircase.
Do you like this plan but want it to be modified to suit your needs?
To add a garage, another bedroom, finish the basement or any other modification, click here and let us know about your desired changes and to get your free quote for the modification of your plan.
Conditions of use
Important copyright notice! Please take note of these copyright conditions before printing:
By printing this house plan, cottage or garage or the floorplan(s), you confirm being informed that every house plan on this website is the exclusive property of Drummond House
Plans and is protected by Canadian copyright law. You are aware that these prints cannot be used to build or even obtain a building permit. The graphic representations of these
models are offered by Drummond House Plans for the sole purpose of allowing you to notate modifications of a model and then take it to one of the Drummond House Plans Canadian dealers for
modification of the plan.
The purchase of a house plan, cottage or garage from Drummond House Plans is mandatory if you wish to build any of our models. The plan purchase allows you to build a single unit; you cannot resell or give your plan to anyone once the house, cottage or garage has been built. If you wish to build the same house, cottage or garage more than once, you need to obtain the licence to this effect. Please contact us for more details.
All plans from Drummond House Plans can only be modified by a licensed Drummond House Plan Canadian dealer. If any other business or individual with no affiliation to Drummond House Plans modifies a Drummond House Plan on your behalf, please ensure this business or individual has a licence to modify this specific plan or you will be subject to prosecution on the same level as the business or individual who modified or reproduced the plan.
For more details, do not hesitate to contact u by e-mail or by phone at 1-800-567-1413.
I agree to respect the conditions above to not reproduce, modify or build a model from Drummond House Plans without previously purchasing a complete house plan.






