There are no shipping fees if you buy one of our 2 plan packages "PDF file format" or "5 sets of blueprints + PDF". Shipping charges may apply if you buy additional sets of blueprints.
Garage plan The Housemate (3981)
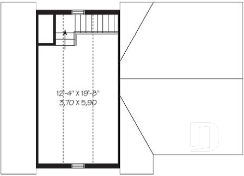
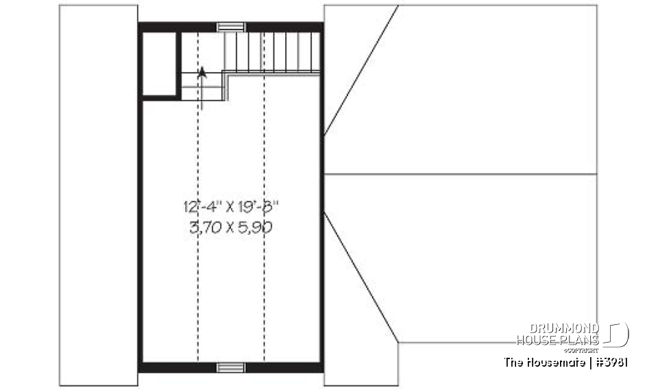
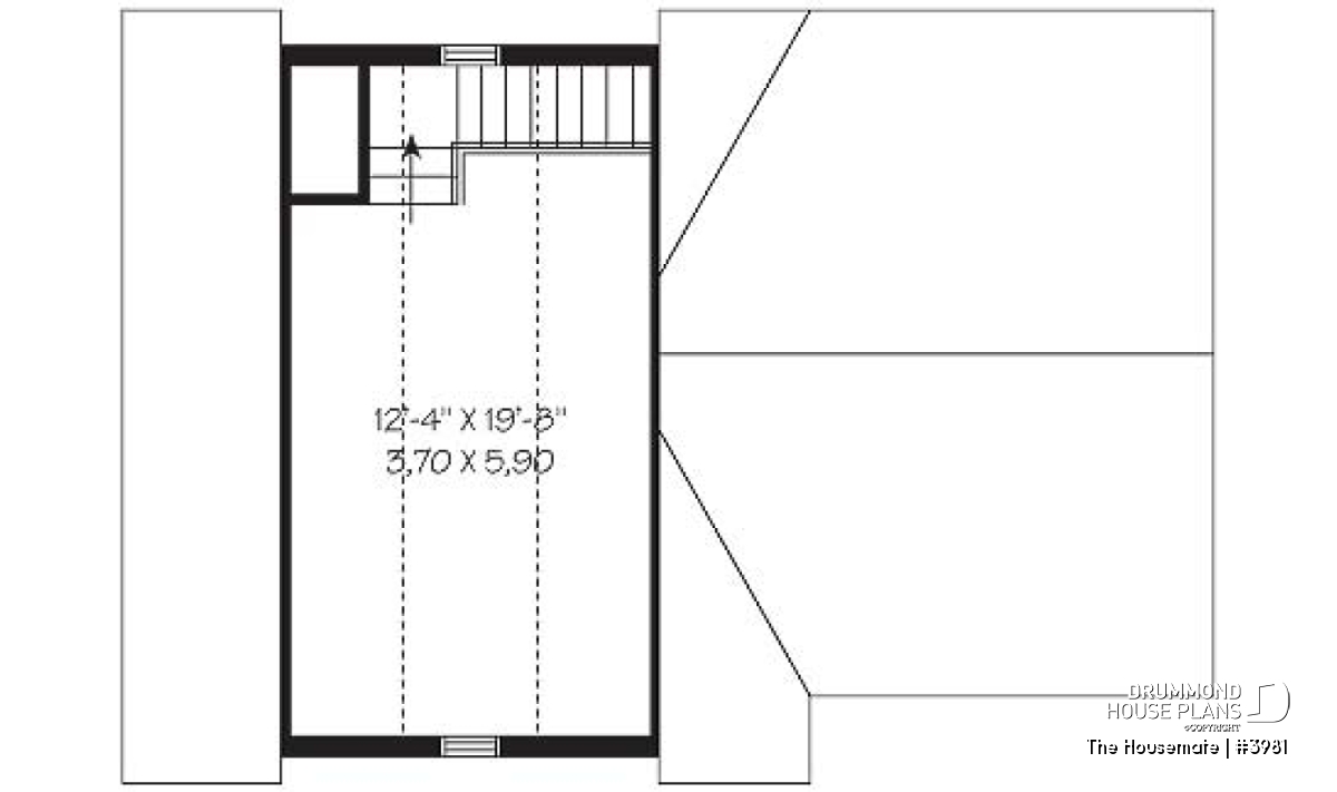
3-car garage plan, with storage room in second floor
Other useful information on this plan
Construction plan of 3-car garage with unfinished second floor, for storage!
.
Distinctive elements
Beautiful country style garage plan.
34' x 24' triple garage plan, two-storey.
Total of 1027 sq.ft, 776 sq.ft. on main floor and 251 sq.ft. on second floor for storage.
9'6'' ceiling height.
Insulated walls and on floating slab.
Side door and a window at the back.
Plan feature(s)
Sloped ceiling
Plan architectural style(s)
. American, . Craftsman / Northwest, . Cape Cod, . Traditional, . Country
Similar plans
Previously Viewed Plans
Questions and comments
January 28
Jodi Graham
Can you please tell me what the pitch of the front gable is? Thanks
January 28
Customer service
Good day and thank you for taking the time to write
Both primary and secondary roof pitches are 12/12 for this garage.
Please let me know if you have any other questions or comments
Regards
Deborah
September 07
Marianne
Hello,
I am interested in purchasing the material package for this garage. Please provide me with a cost for the material package.
Thank you,
Marianne
September 07
Customer service
Good day and thank you for your interest in our plans.
The materials list for this plan is available at $55. plus shipping charge for paper copies. If you wish to purchase the materials list alone, you will need to place your order via telephone during regular business hours as the on line order will want to link the list to the plan.
We also offer it in PDF version which can be delivered at no extra charge via Email.
Since we do no actual construction, we do not offer packages of materials but you will be able to approach local suppliers in order to obtain pricing for the materials required to build this garage.
Please let me know if I can further assist you.
Thank you for your comment! It must be approved before being put online, please allow a period of 24 hours.
Error with google reCaptcha! Try again
Here is a brief description of our different plan packages. Please select the plan package that suits your needs. You can change the package at the next step, if necessary.
PDF VERSION OF PLAN:
Complete digital version of plan (pdf format) sent by email (original plan format 18" x 24'' or 24" x 36'')
5 copies of plan + PDF:
Includes: 5 copies of plan, plan in PDF format (reduced size version), materials list.
Foundation type
Additional foundation types are available, a fee may apply. Please indicate your choice on the online order form, or to our customer service representative, when placing your house plan order.
If your desired foundation type is not available, please contact our customer service to receive your free plan modification quote.
Explanation of bonus space types
UNFINISHED BONUS ROOM
The bonus rooms are often planned above the garage and are accessible from the house. They are designed to be converted as an office, a laundry area, a bathroom, a library corner or even an additional bedroom for which homeowners must make sure to have a window that complies with current codes & standards.
STORAGE AREA
Often located above the garage, our storage areas are used only as storage and are usually accessible from the garage via a retractable staircase.
Do you like this plan but want it to be modified to suit your needs?
To add a garage, another bedroom, finish the basement or any other modification, click here and let us know about your desired changes and to get your free quote for the modification of your plan.
Conditions of use
Important copyright notice! Please take note of these copyright conditions before printing:
By printing this house plan, cottage or garage or the floorplan(s), you confirm being informed that every house plan on this website is the exclusive property of Drummond House
Plans and is protected by Canadian copyright law. You are aware that these prints cannot be used to build or even obtain a building permit. The graphic representations of these
models are offered by Drummond House Plans for the sole purpose of allowing you to notate modifications of a model and then take it to one of the Drummond House Plans Canadian dealers for
modification of the plan.
The purchase of a house plan, cottage or garage from Drummond House Plans is mandatory if you wish to build any of our models. The plan purchase allows you to build a single unit; you cannot resell or give your plan to anyone once the house, cottage or garage has been built. If you wish to build the same house, cottage or garage more than once, you need to obtain the licence to this effect. Please contact us for more details.
All plans from Drummond House Plans can only be modified by a licensed Drummond House Plan Canadian dealer. If any other business or individual with no affiliation to Drummond House Plans modifies a Drummond House Plan on your behalf, please ensure this business or individual has a licence to modify this specific plan or you will be subject to prosecution on the same level as the business or individual who modified or reproduced the plan.
For more details, do not hesitate to contact u by e-mail or by phone at 1-800-567-1413.
I agree to respect the conditions above to not reproduce, modify or build a model from Drummond House Plans without previously purchasing a complete house plan.








January 28
Jodi Graham
Can you please tell me what the pitch of the front gable is? Thanks