There are no shipping fees if you buy one of our 2 plan packages "PDF file format" or "5 sets of blueprints + PDF". Shipping charges may apply if you buy additional sets of blueprints.
House plan The Wakefield 2 (2686)
2-car garage French country house plan, 3-4 bedrooms, sun room, home office, huge kitchen island and fireplace
Other useful information on this plan
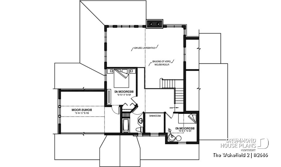
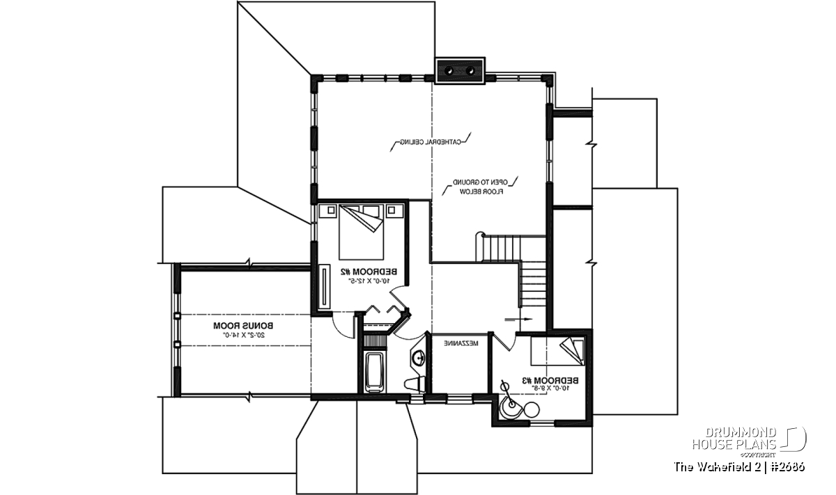
Remarkable 3 to 4 bedrooms, French country style house plan with a large bonus room!
Families bask in all the attractions of 2111 sq. ft, from windowing to French doors. Main-floor features cathedral ceilings in dining room and formal living room (with fireplace), sun-loving solarium, great kitchen, half-bath, and master suite with private bath. Second level includes home office with built-ins, airy mezzanine, an additional bedroom, full bath, bonus room above the garage.
Distinctive elements
Built-ins, office or 3rd bedroom, mezzanine, solarium, double sinks in master bathroom, cathedral ceiling, special ceiling treatments, abundant fenestration, access to basement from garage, bonus area over garage, front, side and rear balconies, French doors to secondary bedroom on 2nd level.
Plan feature(s)
Fireplace, Mezzanine, Side entry garage, Island, Deck, Gound floor laundry room, Cathedral ceiling, Panoramic view, Office / Study / Den, Walk-in master bed., Open floor layout, Basement access from garage, Sunroom, Living bonus space, Separate bath and shower, Double sinks, Master suite on main
Plan architectural style(s)
French Country, . Traditional, . Vacation and waterfront, . Craftsman / Northwest, . Farmhouse, . Mountain, . European, . American, . Country, Modern French Country
Similar plans
Previously Viewed Plans
Questions and comments
February 10
Regina Robinson
lovely house plans
February 10
Customer service
Thank you for the encouraging words and have a wonderful day!
January 17
Dianne Hensley
Love this plan. Are there some of these homes built on the east coast USA?
January 17
Customer service
Good day Ms. Hensley and thank you for the wonderful comment.
For confidentiality reasons, you can understand that I am unable to share client addresses with you and since we do no actual building there are no model homes of our plans that you could visit.
I apologize for being unable to give you a positive answer but will be happy to answer any other questions that you might have.
Regards
Deborah
Thank you for your comment! It must be approved before being put online, please allow a period of 24 hours.
Error with google reCaptcha! Try again
Here is a brief description of our different plan packages. Please select the plan package that suits your needs. You can change the package at the next step, if necessary.
PDF VERSION OF PLAN:
Complete digital version of plan (pdf format) sent by email (original plan format 18" x 24'' or 24" x 36'')
5 copies of plan + PDF:
Includes: 5 copies of plan, plan in PDF format (reduced size version), materials list.
Foundation type
Additional foundation types are available, a fee may apply. Please indicate your choice on the online order form, or to our customer service representative, when placing your house plan order.
If your desired foundation type is not available, please contact our customer service to receive your free plan modification quote.
Explanation of bonus space types
UNFINISHED BONUS ROOM
The bonus rooms are often planned above the garage and are accessible from the house. They are designed to be converted as an office, a laundry area, a bathroom, a library corner or even an additional bedroom for which homeowners must make sure to have a window that complies with current codes & standards.
STORAGE AREA
Often located above the garage, our storage areas are used only as storage and are usually accessible from the garage via a retractable staircase.
Do you like this plan but want it to be modified to suit your needs?
To add a garage, another bedroom, finish the basement or any other modification, click here and let us know about your desired changes and to get your free quote for the modification of your plan.
Conditions of use
Important copyright notice! Please take note of these copyright conditions before printing:
By printing this house plan, cottage or garage or the floorplan(s), you confirm being informed that every house plan on this website is the exclusive property of Drummond House
Plans and is protected by Canadian copyright law. You are aware that these prints cannot be used to build or even obtain a building permit. The graphic representations of these
models are offered by Drummond House Plans for the sole purpose of allowing you to notate modifications of a model and then take it to one of the Drummond House Plans Canadian dealers for
modification of the plan.
The purchase of a house plan, cottage or garage from Drummond House Plans is mandatory if you wish to build any of our models. The plan purchase allows you to build a single unit; you cannot resell or give your plan to anyone once the house, cottage or garage has been built. If you wish to build the same house, cottage or garage more than once, you need to obtain the licence to this effect. Please contact us for more details.
All plans from Drummond House Plans can only be modified by a licensed Drummond House Plan Canadian dealer. If any other business or individual with no affiliation to Drummond House Plans modifies a Drummond House Plan on your behalf, please ensure this business or individual has a licence to modify this specific plan or you will be subject to prosecution on the same level as the business or individual who modified or reproduced the plan.
For more details, do not hesitate to contact u by e-mail or by phone at 1-800-567-1413.
I agree to respect the conditions above to not reproduce, modify or build a model from Drummond House Plans without previously purchasing a complete house plan.










February 10
Regina Robinson
lovely house plans