There are no shipping fees if you buy one of our 2 plan packages "PDF file format" or "5 sets of blueprints + PDF". Shipping charges may apply if you buy additional sets of blueprints.
                                                                                                                                                                                                                                                                                                                                                                                                                                                                                                                                                                                                                                                                                                                                                                          House plan The Quarry  (3828)                
                                      
                                  
              
              
                            
              
              Other useful information on this plan
Country Cottage with a European Flair
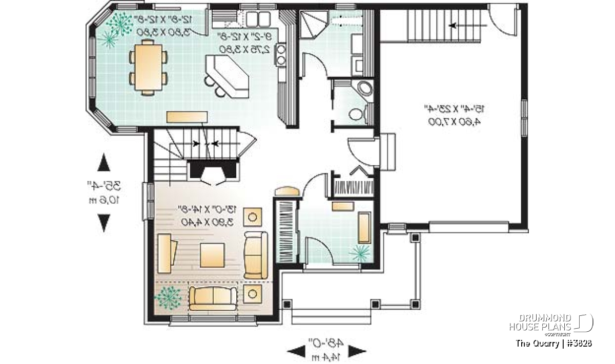
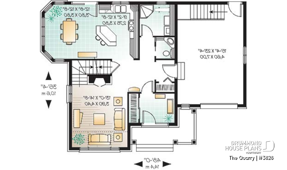
Designed with European spirit with the use of brick/stone on the main façade and partially at the base of the right façade, this blended with rough-cast coating on other facades as well as the gables and dormers, come together for a look that comes together very well.  The garage of interesting format includes stairs to the basement and, despite a three way sloping roof, offers a most attractive room above with a dormer and excellent storage.
On the main level, two entrance closets, the largest of which is in the entrance foyer, will be much appreciated as will be the independent laundry with shower facilities and a separate half-bath.   The kitchen with its island lunch counter and the dining room both swim in natural light provided by the well fenestrated dining room projection to the right.  The living room for its part is organized around a fireplace around which stairs to the second level wrap around and which also receives a good dose of natural light coming from the large front window and also from another on the right side.
On the second level, a very spacious master bedroom with large walk-in closet and double glass doors providing natural light to the hallway, a beautiful bathroom, a second bedroom and a third bedroom with sloping ceiling and dormer, complete very well the upper level.
Distinctive elements
Fireplace and partial cathedral ceiling in the living room. Kitchen/dining room with central island/lunch counter and abundant fenestration. Bedroom 1 with walk-in closet. Access to the basement from the garage.
Plan feature(s)
Fireplace, Cathedral ceiling, Entrance hall, Island, Gound floor laundry room, His/Hers walk-in, Separate bath and shower, Double sinks, Sloped ceiling
Plan architectural style(s)
. Country, . European, . Manors and small castles
Similar plans
Previously Viewed Plans
Questions and comments
February 05
Julia
good day, 
could you pls tell me what is the difference between PLAN W3828 - THE QUARRY 1 and W6828  THE QUARRY 2 models?
thank  lot!
February 05
Customer service
Good day and thank you for taking the time to write. 
These two plans are almost the same except to the configuration of the stairs.
Due to the IRC American building codes the "wedge" shapes stairs of this plan do not conform and plan 6828 was created with this requirement in mind. If you are building elsewhere, the choice is yours as this is not a requirement outside of the U.S. so you can purchase the plan that most suits your taste.
Please let me know if I can assist you in any other way.
Regards
Deb
January 04
bill hayden
can you tell me what type of stone is that on house plan #w3828 the Quarry 1?
January 04
Customer service
Good day Mr. Hayden and thank you for your interest in our plans.
Unfortunately, I have limited information with regards to the actual materials used in the construction of our designs and can only tell you that it is a Dufferin stone/brick which is used.
Please don't hesitate to contact me if you have any other questions or comments.
Regards
Deborah
Thank you for your comment! It must be approved before being put online, please allow a period of 24 hours.
Error with google reCaptcha! Try again
Here is a brief description of our different plan packages. Please select the plan package that suits your needs. You can change the package at the next step, if necessary.
PDF VERSION OF PLAN:
Complete digital version of plan (pdf format) sent by email (original plan format 18" x 24'' or 24" x 36'')
5 copies of plan + PDF:
Includes: 5 copies of plan, plan in PDF format (reduced size version), materials list.
Foundation type
Additional foundation types are available, a fee may apply. Please indicate your choice on the online order form, or to our customer service representative, when placing your house plan order.
If your desired foundation type is not available, please contact our customer service to receive your free plan modification quote.
Explanation of bonus space types
UNFINISHED BONUS ROOM
The bonus rooms are often planned above the garage and are accessible from the house. They are designed to be converted as an office, a laundry area, a bathroom, a library corner or even an additional bedroom for which homeowners must make sure to have a window that complies with current codes & standards.
STORAGE AREA
Often located above the garage, our storage areas are used only as storage and are usually accessible from the garage via a retractable staircase.
Do you like this plan but want it to be modified to suit your needs?
To add a garage, another bedroom, finish the basement or any other modification, click here and let us know about your desired changes and to get your free quote for the modification of your plan.
Conditions of use
Important copyright notice! Please take note of these copyright conditions before printing:
        By printing this house plan, cottage or garage or the floorplan(s), you confirm being informed that every house plan on this website is the exclusive property of Drummond House
          Plans and is protected by Canadian copyright law. You are aware that these prints cannot be used to build or even obtain a building permit. The graphic representations of these
        models are offered by Drummond House Plans for the sole purpose of allowing you to notate modifications of a model and then take it to one of the Drummond House Plans Canadian dealers for
        modification of the plan.
The purchase of a house plan, cottage or garage from Drummond House Plans is mandatory if you wish to build any of our models. The plan purchase allows you to build a single unit; you cannot resell or give your plan to anyone once the house, cottage or garage has been built. If you wish to build the same house, cottage or garage more than once, you need to obtain the licence to this effect. Please contact us for more details.
All plans from Drummond House Plans can only be modified by a licensed Drummond House Plan Canadian dealer. If any other business or individual with no affiliation to Drummond House Plans modifies a Drummond House Plan on your behalf, please ensure this business or individual has a licence to modify this specific plan or you will be subject to prosecution on the same level as the business or individual who modified or reproduced the plan.
For more details, do not hesitate to contact u by e-mail or by phone at 1-800-567-1413.
I agree to respect the conditions above to not reproduce, modify or build a model from Drummond House Plans without previously purchasing a complete house plan.





                          
                          
                          

                            
                            






                                  
                                  
                                  
                                  
                                  
                                  
                                  
                              
                        
                        
                        
                        
                        
                        
                        
                        
                        
                        
                        
              
              
              
              
              
              
              
              
              
              
February 05
Julia
good day,
could you pls tell me what is the difference between PLAN W3828 - THE QUARRY 1 and W6828 THE QUARRY 2 models?
thank lot!