There are no shipping fees if you buy one of our 2 plan packages "PDF file format" or "5 sets of blueprints + PDF". Shipping charges may apply if you buy additional sets of blueprints.

House plan The Mallory 3 (3056-V2)
Buy this planFrom 2300$ See prices and options
House plan The Mallory 3 (3056-V2)
Contemporary semi-detached house plan, optional finished basement ($), 3 to 4+ beds + office in each unit
Buy this plan
Special: Free shipping!
Need help?
Come see us
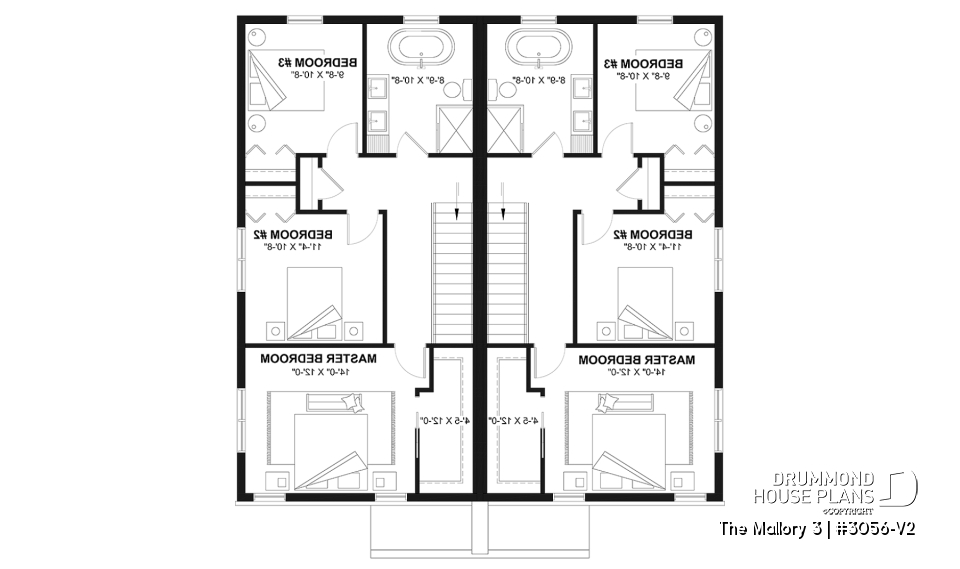
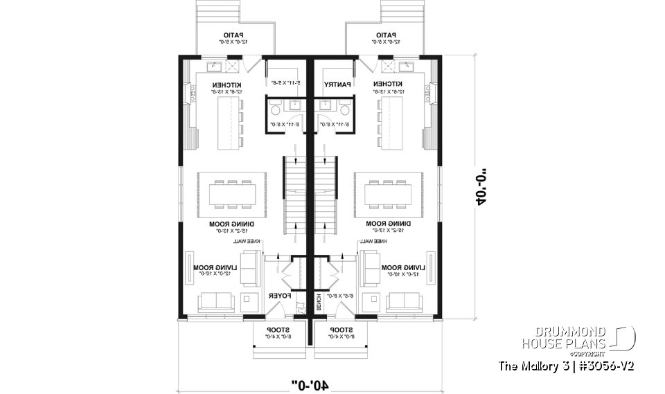
1st level
2nd level
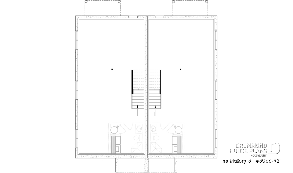
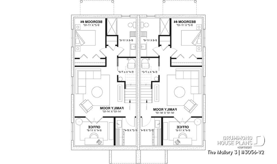
Unfinished basement
Finished basement (Optional $)




View the size of the rooms and height of the ceilings
Finished basement (Optional $) | ||
---|---|---|
Rooms | Sizes | Ceiling |
Home office | 8'4" x 11'8" | ~ 8'0" |
Home office | 8'4" x 11'8" | ~ 8'0" |
Laundry room | 6'2" x 8'4" | ~ 8'0" |
Laundry room | 6'2" x 8'4" | ~ 8'0" |
Great room or Family room | 14'10" x 14'10" | ~ 8'0" |
Great room or Family room | 14'10" x 14'10" | ~ 8'0" |
Bedroom | 9'2" x 11'10" | ~ 8'0" |
Closet | 9'2" x 2'0" | ~ 8'0" |
Bedroom | 9'2" x 11'10" | ~ 8'0" |
Closet | 9'2" x 2'0" | ~ 8'0" |
Storage | 3'2" x 2'7" | ~ 8'0" |
Storage | 3'2" x 2'7" | ~ 8'0" |
Bathroom | 8'8" x 11'6" | ~ 8'0" |
Shower | 5'0" x 3'0" | N/A |
Linen | 1'6" x 1'10" | N/A |
Bathroom | 8'8" x 11'6" | ~ 8'0" |
Shower | 5'0" x 3'0" | N/A |
Linen | 1'6" x 1'10" | N/A |
Mechanical room | 5'4" x 7'0" | ~ 8'0" |
Mechanical room | 5'4" x 7'0" | ~ 8'0" |
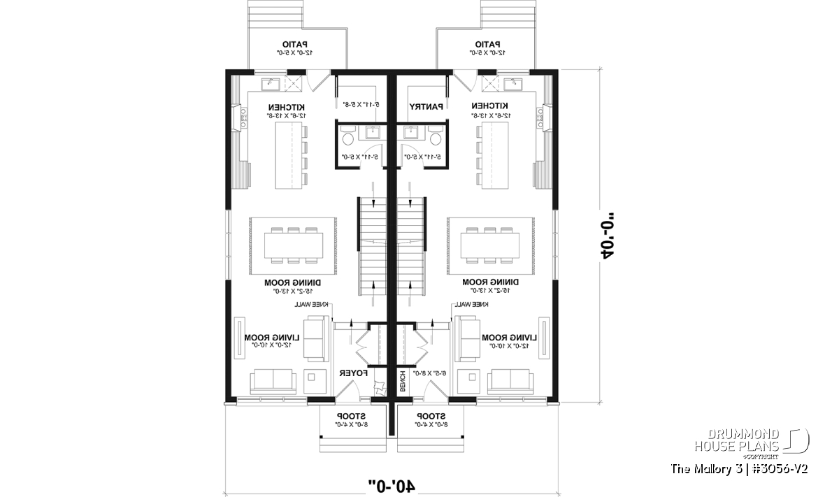
1st level | ||
---|---|---|
Rooms | Sizes | Ceiling |
Porch | 8'0" x 4'0" | N/A |
Porch | 8'0" x 4'0" | N/A |
Foyer | 6'5" x 8'0" | ~ 9'6" |
Closet | 4'10" x 2'0" | ~ 9'6" |
Foyer | 6'5" x 8'0" | ~ 9'6" |
Closet | 4'10" x 2'0" | ~ 9'6" |
Living room | 12'0" x 10'0" | ~ 8'0" |
Living room | 12'0" x 10'0" | ~ 8'0" |
Dining room | 15'2" x 13'0" | ~ 8'0" |
Dining room | 15'2" x 13'0" | ~ 8'0" |
Powder room | 5'11" x 5'0" | ~ 8'0" |
Powder room | 5'11" x 5'0" | ~ 8'0" |
Kitchen | 12'6" x 13'8" | N/A |
Kitchen | 12'6" x 13'8" | ~ 8'0" |
Pantry | 5'11" x 5'8" | ~ 8'0" |
Pantry | 5'11" x 5'8" | ~ 8'0" |
Terrace | 12'0" x 5'0" | N/A |
Terrace | 12'0" x 5'0" | N/A |
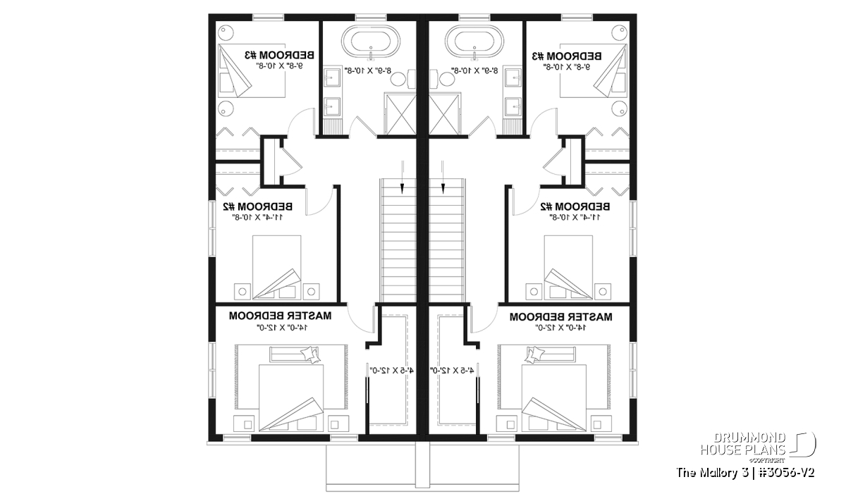
2nd level | ||
---|---|---|
Rooms | Sizes | Ceiling |
Bedroom | 14'0" x 12'0" | ~ 8'0" |
Walk-in closet | 4'5" x 12'0" | ~ 8'0" |
Bedroom | 14'0" x 12'0" | ~ 8'0" |
Walk-in closet | 4'5" x 12'0" | ~ 8'0" |
Bedroom | 11'4" x 10'8" | ~ 8'0" |
Closet | 4'2" x 2'0" | ~ 8'0" |
Bedroom | 11'4" x 10'8" | ~ 8'0" |
Closet | 4'2" x 2'0" | ~ 8'0" |
Closet | 4'4" x 1'6" | ~ 8'0" |
Closet | 4'4" x 1'6" | ~ 8'0" |
Bedroom | 9'8" x 10'8" | ~ 8'0" |
Closet | 4'2" x 2'0" | ~ 8'0" |
Bedroom | 9'8" x 10'8" | ~ 8'0" |
Closet | 4'2" x 2'0" | ~ 8'0" |
Full bathroom | 8'9" x 10'8" | ~ 8'0" |
Shower | 4'0" x 3'0" | N/A |
Linen | 1'6" x 1'10" | N/A |
Full bathroom | 8'9" x 10'8" | ~ 8'0" |
Linen | 1'6" x 1'10" | N/A |
Shower | 4'0" x 3'0" | N/A |
Unfinished basement |
---|
General specifications
Total living area | 3226 sq.ft. |
1st level | 1613 sq.ft. |
2nd level | 1613 sq.ft. |
Unfinished basement | 1613 sq.ft. |
Finished basement (Optional $) | 1613 sq.ft. |
Width | 40'0" |
Depth | 40'4" |
Ridge height from top of foundation | 29'6" |
Exterior wall | 2 X 6 |
Foundation type included in the plan | Unfinished Basement |
Other available foundations (a fee may apply) | Finished basement, Floating Slab, Crawl space, Monolithic Slab |
Builder price code | MD |
Rooms specifications
Bedroom(s) | 3, 4, 5 |
Full baths | 2 |
Half baths | 1 |
Garage type | - |
Living bonus space | - |
Bonus storage | - |
Covered porch area | 64 sq.ft. |
Right Unit | Left Unit | |
Total living area | 1614 sq.ft. | 1614 sq.ft. |
1st level | 807 sq.ft. | 807 sq.ft. |
2nd level | 807 sq.ft. | 807 sq.ft. |
Finished basement (Optional $) | 807 sq.ft. | 807 sq.ft. |
Width | 20' 0" | 20' 0" |
Depth | 40' 4" | 40' 4" |
Ridge height from top of foundation | 29' 6" | 29' 6" |
Exterior wall | 2 X 6 | 2 X 6 |
Foundation type | Unfinished Basement | Unfinished Basement |
Bedroom(s) | 4 | 4 |
Full baths | 2 | 2 |
Half baths | 1 | 1 |
Garage type | - | - |
Living bonus space | - | - |
Bonus storage | - | - |
General specifications
Total living area | 3226 sq.ft. |
Finished basement (Optional $) | 1613 sq.ft. |
1st level | 1613 sq.ft. |
2nd level | 1613 sq.ft. |
Unfinished basement | 1613 sq.ft. |
Width | 40'0" |
Depth | 40'4" |
Ridge height from top of foundation | 29'6" |
Exterior wall | 2 X 6 |
Foundation type included in the plan | Unfinished Basement i |
Other available foundations (a fee may apply) | Finished basement, Floating Slab, Crawl space, Monolithic Slab |
Builder price code | MD |
Rooms specifications
Bedroom(s) | 3, 4, 5 |
Full baths | 2 |
Half baths | 1 |
Garage type | - |
Living bonus space | - i |
Bonus storage | - i |
Covered porch area | 64 sq.ft. |
Units specifications
Right Unit | Left Unit | |
Total living area | 1614 sq.ft. | 1614 sq.ft. |
1st level | 807 sq.ft. | 807 sq.ft. |
2nd level | 807 sq.ft. | 807 sq.ft. |
Finished basement (Optional $) | 807 sq.ft. | 807 sq.ft. |
Width | 20' 0" | 20' 0" |
Depth | 40' 4" | 40' 4" |
Ridge height from top of foundation | 29' 6" | 29' 6" |
Exterior wall | 2 X 6 | 2 X 6 |
Foundation type | Unfinished Basement | Unfinished Basement |
Bedroom(s) | 4 | 4 |
Full baths | 2 | 2 |
Half baths | 1 | 1 |
Garage type | - | - |
Living bonus space | - | - |
Bonus storage | - | - |
Dining room
Photos represent a modified version of the original plan and are not available for sale. We invite you to get your free plan modification cost estimate if you would like any changes to the original plan.
Kitchen
Photos represent a modified version of the original plan and are not available for sale. We invite you to get your free plan modification cost estimate if you would like any changes to the original plan.
Dining room
Photos represent a modified version of the original plan and are not available for sale. We invite you to get your free plan modification cost estimate if you would like any changes to the original plan.
Sitting room
Photos represent a modified version of the original plan and are not available for sale. We invite you to get your free plan modification cost estimate if you would like any changes to the original plan.




Other useful information on this plan
Superb semi-detached house offering 4+ bedrooms + office, as well as 2.5 bathrooms, per unit!
This new contemporary semi-detached house, will delight families with 2+ children.
It offers a total living area of approx. 2420 sq.ft. arranged on *3 floors, for each unit. In addition, the 2 units are "mirror" replicas, therefore offering the same spaces, but reversed.
You like this plan but would like to make some changes? please contact us to get your free modification quote, and you will get exactly what you are looking for!
Two other versions of this plan are also available. See plans 3056 and 3056-V1 for more details.
*If you wish to purchase the finished basement plan, please select this option in the shopping cart, in the "Selection of foundation type" section. If you do not select this option, you will receive the unfinished full basement option, at no extra charge.
Distinctive elements
Contemporary style for this semi-detached home or single family duplex, with finished basement.
FOR BOTH UNITS:
Sheltered front porch.
Entrance with ceiling at 9'-6'' while all other ceilings are at 8'.
Open concept ground floor.
Large island and pantry in the kitchen.
Beautiful windows in the living room and dining room.
Practical half bath, set back from the common area.
Parents' bedroom provided with walk-in closet.
3 bedrooms upstairs, share a full bathroom. The latter offers a bath and a separate shower as well as double vanity.
*Finished basement (optional $):
Finished basement with additional bedroom, office, family room, shower room and laundry room.
Possibility of converting the basement office into a small bedroom (for a total of 5 bedrooms if necessary).
*If you wish to purchase the finished basement plan, please select this option in the shopping cart, in the "Selection of foundation type" section. If you do not select this option, you will receive the unfinished full basement option, at no extra charge.
Plan feature(s)
Island, Pantry, Walk-in master bed., Separate bath and shower, Shelves, Bench seat(s), Double sinks
Plan architectural style(s)
. Contemporary, . Traditional, . Modern / Design
Similar plans
Previously Viewed Plans
Thank you for your comment! It must be approved before being put online, please allow a period of 24 hours.
Error with google reCaptcha! Try again
Want to modify this plan?
Free plan modification quoteNeed help?
Contact usCome see us
Our 31 regional officesYou may also like
Similar plans
Description
FOR BOTH UNITS:
Ground floor:
Entrance, kitchen, dining room, living room, half bath.
Second floor:
3 bedrooms, full bathroom, laundry, linen closet.
*Finished basement (optional $):
One bedroom, home office (or bedroom #5), family room, shower room, storage, laundry room.
*If you wish to purchase the finished basement plan, please select this option in the shopping cart, in the "Selection of foundation type" section. If you do not select this option, you will receive the unfinished full basement option, at no extra charge.
Awards and
Recognition










Here is a brief description of our different plan packages. Please select the plan package that suits your needs. You can change the package at the next step, if necessary.
PDF VERSION OF PLAN:
Complete digital version of plan (pdf format) sent by email (original plan format 18" x 24'' or 24" x 36'')
5 copies of plan + PDF:
Includes: 5 copies of plan, plan in PDF format (reduced size version), materials list.
Foundation type
Additional foundation types are available, a fee may apply. Please indicate your choice on the online order form, or to our customer service representative, when placing your house plan order.
If your desired foundation type is not available, please contact our customer service to receive your free plan modification quote.
Explanation of bonus space types
UNFINISHED BONUS ROOM
The bonus rooms are often planned above the garage and are accessible from the house. They are designed to be converted as an office, a laundry area, a bathroom, a library corner or even an additional bedroom for which homeowners must make sure to have a window that complies with current codes & standards.
STORAGE AREA
Often located above the garage, our storage areas are used only as storage and are usually accessible from the garage via a retractable staircase.
Do you like this plan but want it to be modified to suit your needs?
To add a garage, another bedroom, finish the basement or any other modification, click here and let us know about your desired changes and to get your free quote for the modification of your plan.
Conditions of use
Important copyright notice! Please take note of these copyright conditions before printing:
By printing this house plan, cottage or garage or the floorplan(s), you confirm being informed that every house plan on this website is the exclusive property of Drummond House
Plans and is protected by Canadian copyright law. You are aware that these prints cannot be used to build or even obtain a building permit. The graphic representations of these
models are offered by Drummond House Plans for the sole purpose of allowing you to notate modifications of a model and then take it to one of the Drummond House Plans Canadian dealers for
modification of the plan.
The purchase of a house plan, cottage or garage from Drummond House Plans is mandatory if you wish to build any of our models. The plan purchase allows you to build a single unit; you cannot resell or give your plan to anyone once the house, cottage or garage has been built. If you wish to build the same house, cottage or garage more than once, you need to obtain the licence to this effect. Please contact us for more details.
All plans from Drummond House Plans can only be modified by a licensed Drummond House Plan Canadian dealer. If any other business or individual with no affiliation to Drummond House Plans modifies a Drummond House Plan on your behalf, please ensure this business or individual has a licence to modify this specific plan or you will be subject to prosecution on the same level as the business or individual who modified or reproduced the plan.
For more details, do not hesitate to contact u by e-mail or by phone at 1-800-567-1413.
I agree to respect the conditions above to not reproduce, modify or build a model from Drummond House Plans without previously purchasing a complete house plan.