There are no shipping fees if you buy one of our 2 plan packages "PDF file format" or "5 sets of blueprints + PDF". Shipping charges may apply if you buy additional sets of blueprints.
House plan The Bunting 2 (2180-V1)
Compact and charming Cape Cod style home, bench seat in kitchen, optional finished basement ($), affordable
Virtual visit
Other useful information on this plan
Small, economical Country style house plan offering 1 to 3 bedrooms and a kitchen with wonderful seating area!
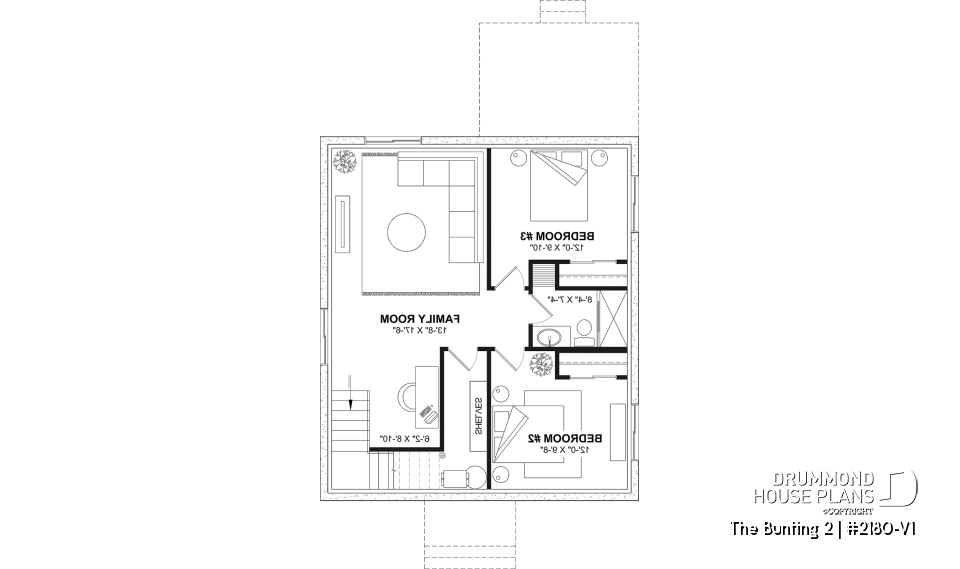
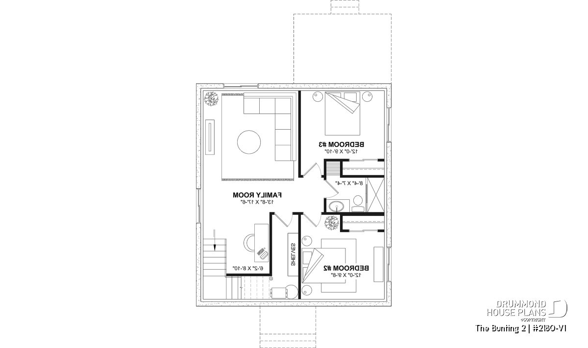
The BATISCAN 2 house plan (plan #2180-V1) offers a total of 896 square feet on each floor (ground floor and basement if finished). You can therefore choose to convert the basement into 2 bedrooms, shower room, family room, storage and office, or simply take the floating slab option or other, if you do not want a basement.
*Basement options are available in our shopping cart.
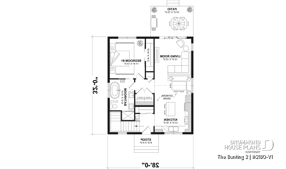
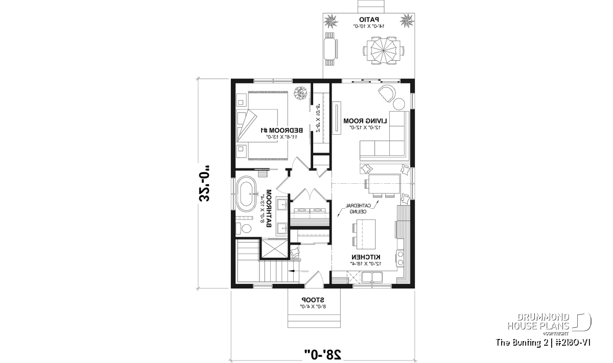
The ground floor opens onto the front entrance with coat closet, as well as a small bench, practical for putting on your shoes. In addition, the kitchen on the left is open to the living room and this entire area is designed with cathedral ceilings, creating a magnitude effet despite the small space!
The kitchen is fitted with a 2-seater island as well as a dining room with a corner seating area: ideal for saving space while still having a table! The living room receives beautiful natural light allowed by the triple patio door overlooking the backyard.
The master bedroom is located on the ground floor and offers a large closet as well as private access to the full bathroom. The latter includes 2 sinks, a recessed toilet, a free-standing bath facing a window and a separate shower.
Other particularities are that the laundry area is located on the ground floor and the ceiling is 9' in bedroom #1, bathroom, washer-dryer area and entrance areas!
*Finished basement (optional $):
2 bedrooms, shower room, family room, office area, storage.
*If you wish to purchase the finished basement plan, please select this option in the shopping cart, in the "Selection of foundation type" section. If you do not select this option, you will receive the unfinished full basement option, at no extra charge.
This home is perfect for those on a tighter budget but still features the modern elements you're looking for! Desk, bench, island, lots of natural light... Will you be the lucky one? :)
Distinctive elements
Small, economical Country style house plan, one-story plus *optional finished basement ($)
Total of 1 to 3 bedrooms and 1 or 2 bathrooms, depending on the chosen *foundation.
Open floor plan to common areas on the ground floor.
Well-designed kitchen with cathedral ceiling, island and a dining table with corner seating area.
Cathedral ceiling in the kitchen and living room.
Laundry room on the ground floor.
Main bathroom with private access from the master bedroom, as well as a separate bath and shower and 2 sinks.
*Finished basement (optional $):
2 bedrooms, shower room, family room, office area, storage.
*If you wish to purchase the finished basement plan, please select this option in the shopping cart, in the "Selection of foundation type" section. If you do not select this option, you will receive the unfinished full basement option, at no extra charge.
Plan feature(s)
Open floor layout, Bench seat(s), Breakfast nook, Cathedral ceiling, Separate bath and shower, Double sinks, Island, Ceiling over 8', Planning desk, Gound floor laundry room, Self-Build
Plan architectural style(s)
. Farmhouse, . American, . Ranch, . Cottage, chalet, cabin, . Country, . Modern rustic, . Cape Cod, . Vacation and waterfront
Similar plans
Previously Viewed Plans
Thank you for your comment! It must be approved before being put online, please allow a period of 24 hours.
Error with google reCaptcha! Try again
Here is a brief description of our different plan packages. Please select the plan package that suits your needs. You can change the package at the next step, if necessary.
PDF VERSION OF PLAN:
Complete digital version of plan (pdf format) sent by email (original plan format 18" x 24'' or 24" x 36'')
5 copies of plan + PDF:
Includes: 5 copies of plan, plan in PDF format (reduced size version), materials list.
Foundation type
Additional foundation types are available, a fee may apply. Please indicate your choice on the online order form, or to our customer service representative, when placing your house plan order.
If your desired foundation type is not available, please contact our customer service to receive your free plan modification quote.
Explanation of bonus space types
UNFINISHED BONUS ROOM
The bonus rooms are often planned above the garage and are accessible from the house. They are designed to be converted as an office, a laundry area, a bathroom, a library corner or even an additional bedroom for which homeowners must make sure to have a window that complies with current codes & standards.
STORAGE AREA
Often located above the garage, our storage areas are used only as storage and are usually accessible from the garage via a retractable staircase.
Do you like this plan but want it to be modified to suit your needs?
To add a garage, another bedroom, finish the basement or any other modification, click here and let us know about your desired changes and to get your free quote for the modification of your plan.
Conditions of use
Important copyright notice! Please take note of these copyright conditions before printing:
By printing this house plan, cottage or garage or the floorplan(s), you confirm being informed that every house plan on this website is the exclusive property of Drummond House
Plans and is protected by Canadian copyright law. You are aware that these prints cannot be used to build or even obtain a building permit. The graphic representations of these
models are offered by Drummond House Plans for the sole purpose of allowing you to notate modifications of a model and then take it to one of the Drummond House Plans Canadian dealers for
modification of the plan.
The purchase of a house plan, cottage or garage from Drummond House Plans is mandatory if you wish to build any of our models. The plan purchase allows you to build a single unit; you cannot resell or give your plan to anyone once the house, cottage or garage has been built. If you wish to build the same house, cottage or garage more than once, you need to obtain the licence to this effect. Please contact us for more details.
All plans from Drummond House Plans can only be modified by a licensed Drummond House Plan Canadian dealer. If any other business or individual with no affiliation to Drummond House Plans modifies a Drummond House Plan on your behalf, please ensure this business or individual has a licence to modify this specific plan or you will be subject to prosecution on the same level as the business or individual who modified or reproduced the plan.
For more details, do not hesitate to contact u by e-mail or by phone at 1-800-567-1413.
I agree to respect the conditions above to not reproduce, modify or build a model from Drummond House Plans without previously purchasing a complete house plan.











