There are no shipping fees if you buy one of our 2 plan packages "PDF file format" or "5 sets of blueprints + PDF". Shipping charges may apply if you buy additional sets of blueprints.
House plan Rocheleau (2699)
2 to 4 bedroom floor plan, 2 story house, garage, pantry, sheltered terrace, optional finished basement ($)
Other useful information on this plan
Modern Farmhouse home with rustic accents and lots of natural light!
The ROCHELEAU house plan (plan # 2699) features 1882 sq.ft. built on 2 floors, in addition to a basement with optional layout proposal ($) thus bringing this beautiful house to a total of 3,137 sq.ft.!
This magnificent two-storey modern Farmhouse style home opens onto an imposing 2-story foyer and on the staircase leading to the second floor. Then an office arranged in front of the house is found near the front door. Access to the garage of the house is located directly next to a large mudroom as well as the laundry room.
The kitchen has a large pantry and a good size island, and it is open to the dining room and living room. The latter has a ceiling height of 18'6 '', as well as a fireplace with decorative shelves on each side and triple patio doors leading to the rear covered terrace. The dining room also has patio doors as well as several windows bringing a lot of natural light into the kitchen.
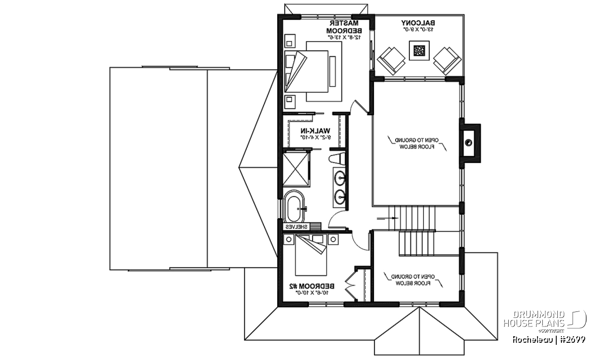
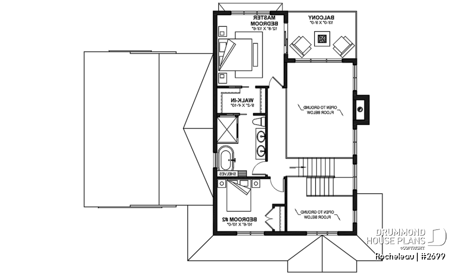
The master bedroom is upstairs and offers a private balcony for parents, a walk-in closet and direct access to the upstairs bathroom, which is shared by another bedroom (# 2). From the second floor, a mezzanine allows you to take a look at what is happening in the living room, on the ground floor.
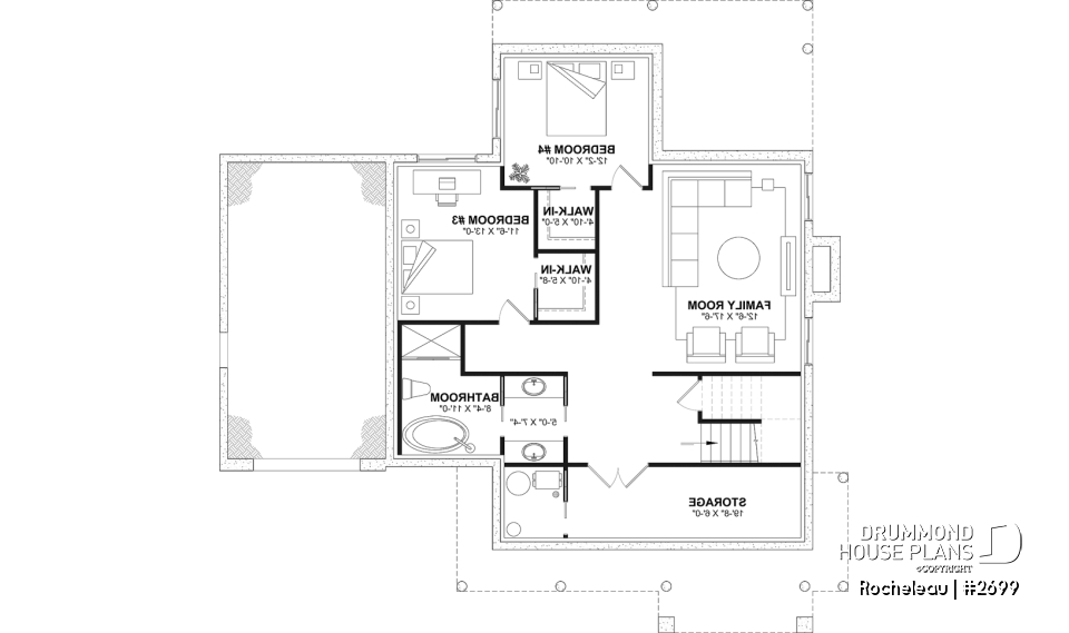
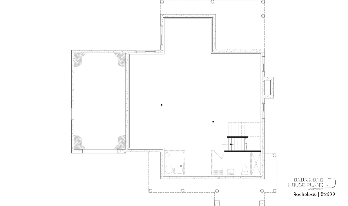
*Finished basement (optional $):
It offers 2 additional bedrooms (#3 and #4) as well as a family room, a full bathroom and a large storage.
*If you wish to purchase the finished basement plan, please select this option in the shopping cart, in the "Selection of foundation type" section. If you do not select this option, you will receive the unfinished full basement option, at no extra charge.
A single garage as well as a beautiful covered back porch complete this little gem of a home that will appeal to many families!
Distinctive elements
Budget-friendly modern farmhouse home with garage.
Depending on the finish of the basement (or not) possibility of 2 to 4+ bedrooms.
Access from the garage near the kitchen and mudroom.
2-story foyer.
Laundry room on the ground floor, near the mudroom.
Home office (or playroom depending on your needs).
9 'ceiling throughout the ground floor except in the entrance and in the living room (18'6' ').
Kitchen with ample counter space to create a coffee bar area.
Large central island that can accommodate a minimum of 5 guests!
Practical pantry.
Living room with fireplace and shelves provided on each side.
Powder room on the ground floor.
Abundant windows at the back of the house.
Parents' suite upstairs with private balcony, walk-in closet and access to the large bathroom. The latter offers 2 sinks in addition to the separate bath and shower.
Mezzanine upstairs open to the living room and the entrance of the house.
Single-car garage.
Large sheltered terrace at the back.
*Finished basement (optional $):
Basement allowing the development of 2 bedrooms and family room (or 3 bedrooms), in addition to a full bathroom.
Large storage also provided in the basement.
*If you wish to purchase the finished basement plan, please select this option in the shopping cart, in the "Selection of foundation type" section. If you do not select this option, you will receive the unfinished full basement option, at no extra charge.
Plan feature(s)
Balcony 2nd floor, Office / Study / Den, Gound floor laundry room, Master suite upstairs, Mud room, Ceiling over 8', Cathedral ceiling, Open floor layout, Bench seat(s), Fireplace, Shelves, Pantry, Deck, Separate bath and shower, Double sinks, Coffee bar, Mezzanine, 2-Story foyer
Plan architectural style(s)
. Farmhouse, Modern Craftsman, . Rustic, Modern farmhouse, . Transitional, . Country, . Modern rustic, . Vacation and waterfront, . Mountain
Similar plans
Previously Viewed Plans
Thank you for your comment! It must be approved before being put online, please allow a period of 24 hours.
Error with google reCaptcha! Try again
Here is a brief description of our different plan packages. Please select the plan package that suits your needs. You can change the package at the next step, if necessary.
PDF VERSION OF PLAN:
Complete digital version of plan (pdf format) sent by email (original plan format 18" x 24'' or 24" x 36'')
5 copies of plan + PDF:
Includes: 5 copies of plan, plan in PDF format (reduced size version), materials list.
Foundation type
Additional foundation types are available, a fee may apply. Please indicate your choice on the online order form, or to our customer service representative, when placing your house plan order.
If your desired foundation type is not available, please contact our customer service to receive your free plan modification quote.
Explanation of bonus space types
UNFINISHED BONUS ROOM
The bonus rooms are often planned above the garage and are accessible from the house. They are designed to be converted as an office, a laundry area, a bathroom, a library corner or even an additional bedroom for which homeowners must make sure to have a window that complies with current codes & standards.
STORAGE AREA
Often located above the garage, our storage areas are used only as storage and are usually accessible from the garage via a retractable staircase.
Do you like this plan but want it to be modified to suit your needs?
To add a garage, another bedroom, finish the basement or any other modification, click here and let us know about your desired changes and to get your free quote for the modification of your plan.
Conditions of use
Important copyright notice! Please take note of these copyright conditions before printing:
By printing this house plan, cottage or garage or the floorplan(s), you confirm being informed that every house plan on this website is the exclusive property of Drummond House
Plans and is protected by Canadian copyright law. You are aware that these prints cannot be used to build or even obtain a building permit. The graphic representations of these
models are offered by Drummond House Plans for the sole purpose of allowing you to notate modifications of a model and then take it to one of the Drummond House Plans Canadian dealers for
modification of the plan.
The purchase of a house plan, cottage or garage from Drummond House Plans is mandatory if you wish to build any of our models. The plan purchase allows you to build a single unit; you cannot resell or give your plan to anyone once the house, cottage or garage has been built. If you wish to build the same house, cottage or garage more than once, you need to obtain the licence to this effect. Please contact us for more details.
All plans from Drummond House Plans can only be modified by a licensed Drummond House Plan Canadian dealer. If any other business or individual with no affiliation to Drummond House Plans modifies a Drummond House Plan on your behalf, please ensure this business or individual has a licence to modify this specific plan or you will be subject to prosecution on the same level as the business or individual who modified or reproduced the plan.
For more details, do not hesitate to contact u by e-mail or by phone at 1-800-567-1413.
I agree to respect the conditions above to not reproduce, modify or build a model from Drummond House Plans without previously purchasing a complete house plan.




















