There are no shipping fees if you buy one of our 2 plan packages "PDF file format" or "5 sets of blueprints + PDF". Shipping charges may apply if you buy additional sets of blueprints.
House plan Maple Way 3 (3287-V2)
Farmhouse 4 to 5 bedrooms home, den, family & living rooms, opt. finished basement, master on main floor
Other useful information on this plan
Perfect family home with 2 bedrooms on the main floor and 2 bedrooms in the basement which is fully finished!
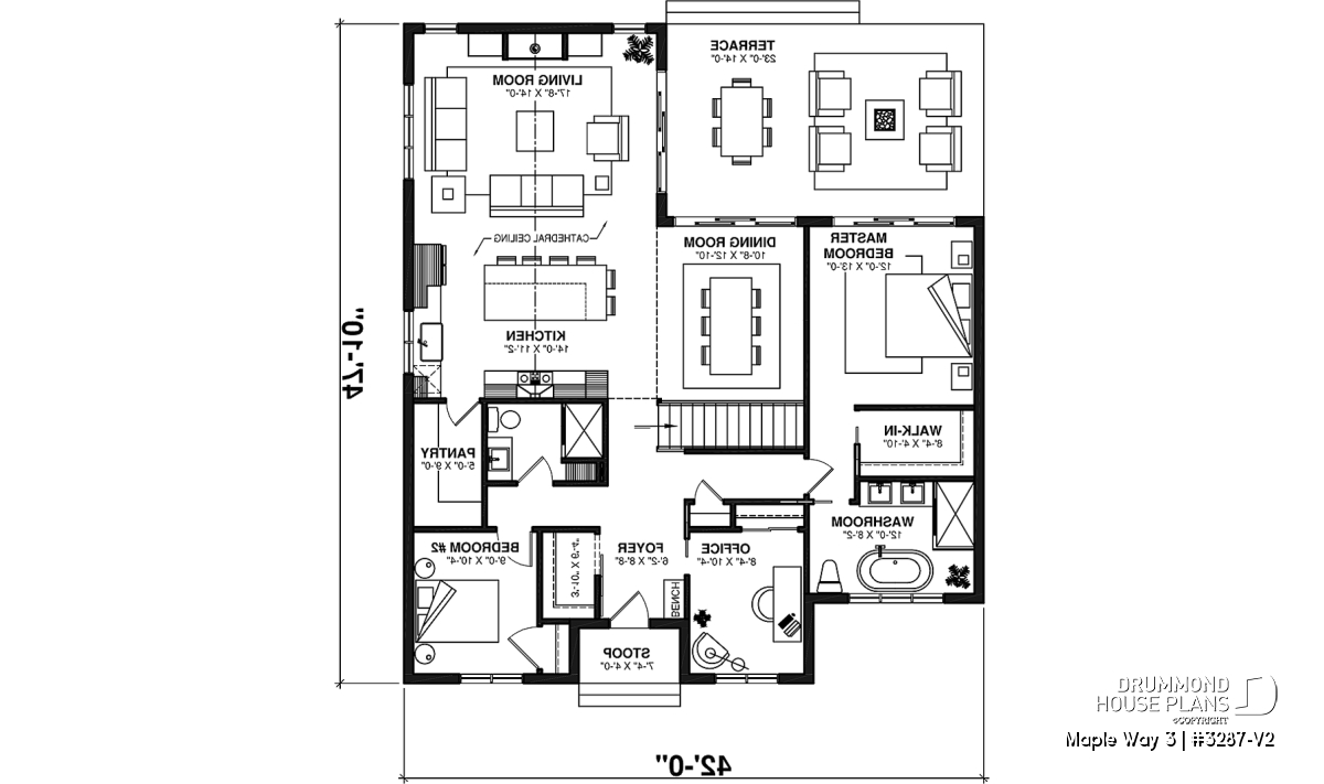
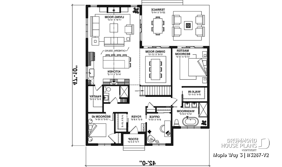
Beautiful Farmhouse MAPLE WAY 3 (#3287-V2) offers a total of 3170 sf. on the ground floor and in the fully finished basement. The ceilings are 9' everywhere on the ground floor, and there is a 16'2'' high cathedral ceiling in the kitchen and in the living room. This plan is the 3rd in the very popular MAPLE WAY collection, and the first without a garage. The latter could easily be added according to your needs, via our plan modification services.
The entrance opens onto a large walk-in closet and has a practical bench where you can put a handbag or simply sit down. Then immediately near the entrance is a home office. We have built a wardrobe there, allowing you versatility with this room for an additional bedroom, a nursery or a small playroom, for example. Then, on the right, a secondary bedroom (or office #2) and a practical shower room will delight a child or your guests!
The master suite has a walk-in closet, as well as a private and complete bathroom, with separate bath and shower, and two sinks. In addition, this bedroom offers direct access to the rear terrace. Then, at the back of the house you will find the common areas. The kitchen has a large island and a pantry (so popular!!), and it is open to the dining room on one side and the living room on the other. The latter offers a fireplace that is visible from the kitchen, ideal setting when preparing suppers in winter! The dining room and the living room receive a lot of natural light through windows and patio doors which are very abundant in this area.
An uncovered terrace is planned at the back of the house but not included on the house plan. In addition, it will be possible to have the plan modified, by one of our 26 offices, if you wish to add a sheltered terrace at the back (and/or a garage).
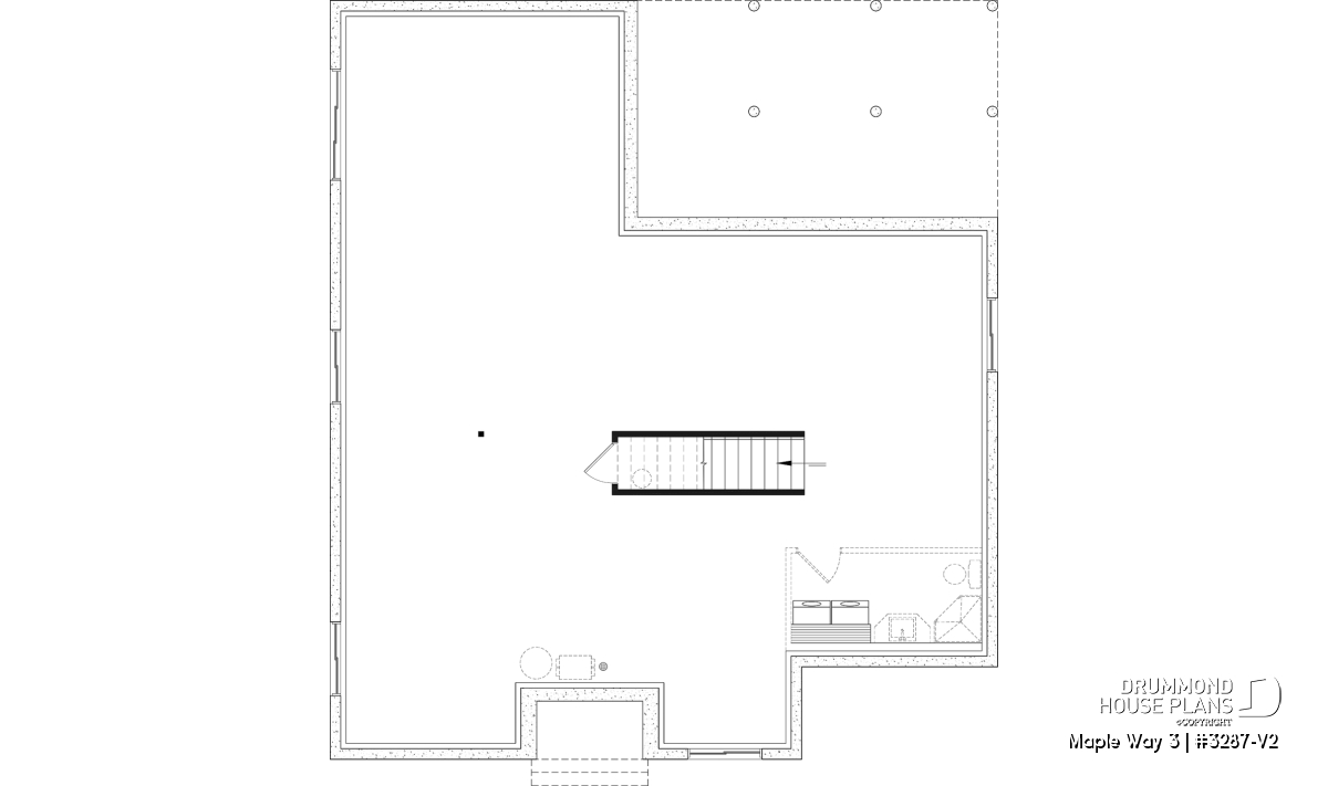
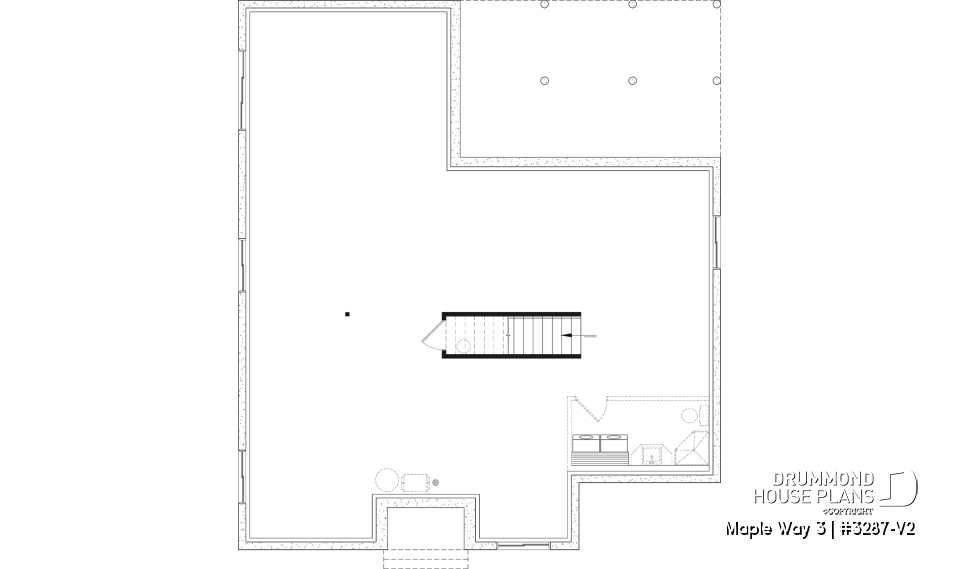
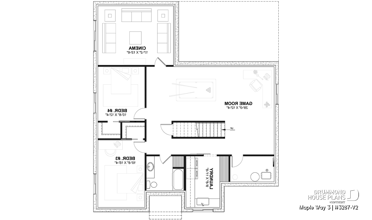
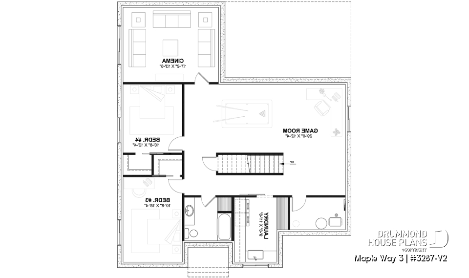
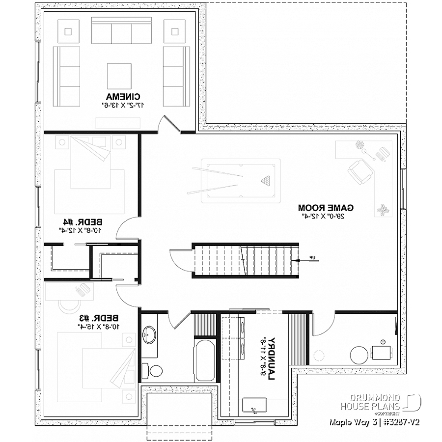
*Optional finished basement:
We have laid out the basement with a family thought by planning 2 additional bedrooms and a bathroom. Also, a home theater, a games room (or family room) as well as the laundry room and the mechanical room are found on this level.
We love MAPLE WAY 3 for the versatility of its spaces that will harmonize with the needs of your family!
---
*If you wish to purchase the finished basement plan, as presented on this plan page, please select this option in the shopping cart, in the "Selection of foundation type" section. If you do not select this option, you will receive the unfinished full basement option, at no extra charge.
Distinctive elements
Farmhouse-style single-storey home plan, combining charm and everyday functionality.
9’ ceilings throughout the main floor, with a striking cathedral ceiling reaching 16’2” in the kitchen and living room.
Abundant natural light in the dining area, living room, and primary bedroom.
Inviting kitchen with a large central island and walk-in pantry, open to the living room with a cozy fireplace.
Comfortable primary suite featuring a walk-in closet and a spacious private bathroom with separate tub and shower.
Home office located near the front entry, ideal for remote work or a flexible living space.
Functional entryway with a built-in bench and walk-in coat closet.
Secondary bedroom on the main floor, with a nearby shower room.
Large laundry room planned in the basement, offering generous space and organization.
Unfinished basement included in the base plan, ready for future development.
---
*Optional finished basement:
2 bedrooms, bathroom, family room or game room, laundry room, home theater, and storage space.
---
*If you wish to purchase the finished basement plan, as presented on this plan page, please select this option in the shopping cart, in the "Selection of foundation type" section. If you do not select this option, you will receive the unfinished full basement option, at no extra charge.
Plan feature(s)
Cathedral ceiling, Split bedrooms, Ceiling over 8', Pantry, Open floor layout, Island, Bench seat(s), Mud room, Office / Study / Den, Separate bath and shower, Double sinks, Master suite on main, Walk-in master bed., Fireplace, Media Room, Game room, Planning desk
Plan architectural style(s)
. Farmhouse, Modern farmhouse, . Transitional, . Vacation and waterfront, . L-Shaped, . Ranch, . Country, . Modern rustic
Similar plans
Previously Viewed Plans
Thank you for your comment! It must be approved before being put online, please allow a period of 24 hours.
Error with google reCaptcha! Try again
Here is a brief description of our different plan packages. Please select the plan package that suits your needs. You can change the package at the next step, if necessary.
PDF VERSION OF PLAN:
Complete digital version of plan (pdf format) sent by email (original plan format 18" x 24'' or 24" x 36'')
5 copies of plan + PDF:
Includes: 5 copies of plan, plan in PDF format (reduced size version), materials list.
Foundation type
Additional foundation types are available, a fee may apply. Please indicate your choice on the online order form, or to our customer service representative, when placing your house plan order.
If your desired foundation type is not available, please contact our customer service to receive your free plan modification quote.
Explanation of bonus space types
UNFINISHED BONUS ROOM
The bonus rooms are often planned above the garage and are accessible from the house. They are designed to be converted as an office, a laundry area, a bathroom, a library corner or even an additional bedroom for which homeowners must make sure to have a window that complies with current codes & standards.
STORAGE AREA
Often located above the garage, our storage areas are used only as storage and are usually accessible from the garage via a retractable staircase.
Do you like this plan but want it to be modified to suit your needs?
To add a garage, another bedroom, finish the basement or any other modification, click here and let us know about your desired changes and to get your free quote for the modification of your plan.
Conditions of use
Important copyright notice! Please take note of these copyright conditions before printing:
By printing this house plan, cottage or garage or the floorplan(s), you confirm being informed that every house plan on this website is the exclusive property of Drummond House
Plans and is protected by Canadian copyright law. You are aware that these prints cannot be used to build or even obtain a building permit. The graphic representations of these
models are offered by Drummond House Plans for the sole purpose of allowing you to notate modifications of a model and then take it to one of the Drummond House Plans Canadian dealers for
modification of the plan.
The purchase of a house plan, cottage or garage from Drummond House Plans is mandatory if you wish to build any of our models. The plan purchase allows you to build a single unit; you cannot resell or give your plan to anyone once the house, cottage or garage has been built. If you wish to build the same house, cottage or garage more than once, you need to obtain the licence to this effect. Please contact us for more details.
All plans from Drummond House Plans can only be modified by a licensed Drummond House Plan Canadian dealer. If any other business or individual with no affiliation to Drummond House Plans modifies a Drummond House Plan on your behalf, please ensure this business or individual has a licence to modify this specific plan or you will be subject to prosecution on the same level as the business or individual who modified or reproduced the plan.
For more details, do not hesitate to contact u by e-mail or by phone at 1-800-567-1413.
I agree to respect the conditions above to not reproduce, modify or build a model from Drummond House Plans without previously purchasing a complete house plan.














