There are no shipping fees if you buy one of our 2 plan packages "PDF file format" or "5 sets of blueprints + PDF". Shipping charges may apply if you buy additional sets of blueprints.
House plan Lotus 2 (3128-V1)
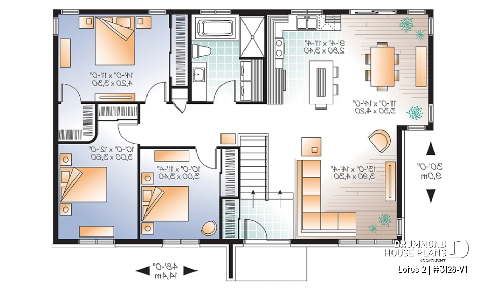
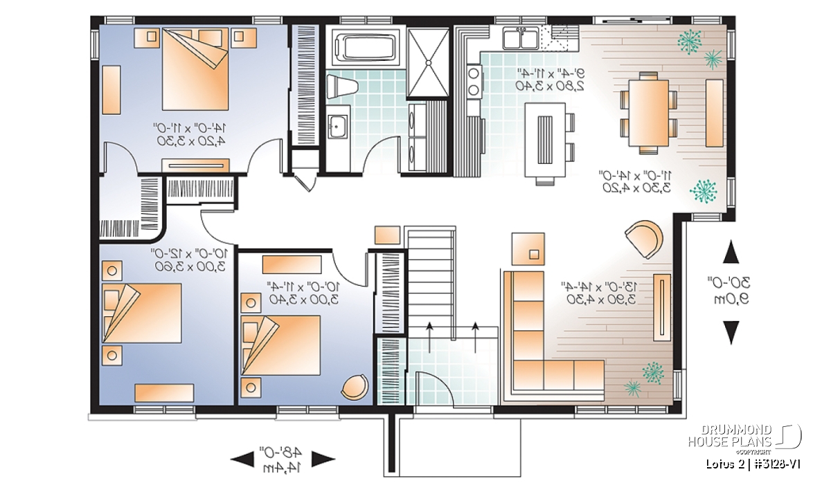
3 bedroom modern house plan, open living space, affordable to build, great look
Other useful information on this plan
Elegantly Simple Modern Bungalow, 3 bedroom on same floor
The simple lines of this three-bedroom bungalow are elevated in style by the use of contemporary windows and exterior finishes. Even though under 1400 square feet, there are no missing amenities!
An open concept living area is anchored by a kitchen with large island. The adjoining dining and living rooms are within conversation’s reach and the patio door is perfectly located to skip out to the barbeque or herb garden!
A generous bathroom includes both a soaker tub and spacious independent shower plus a laundry closet. No fighting over closet space in the master bedroom, thanks to his and hers closets. Two additional bedrooms round off the main level.
If more space is required, the plan includes and unfinished basement, ready for your inspiration.
A versatile plan for families or empty nesters sure to be liveable through all of life’s stages.
Distinctive elements
3 bedroom Contemporary house plan, open living space, affordable to build, great look. Three bedrooms on the ground level. Well-windowed activities area. Kitchen with central eating island. Bathroom with 3 ft x 5 ft shower and laundry closet. Master bedroom with two large closets.
Plan feature(s)
Gound floor laundry room, Island, Walk-in master bed., Separate bath and shower
Plan architectural style(s)
. Contemporary, . Modern / Design, . Ranch, . Mid-century
Similar plans
Previously Viewed Plans
Questions and comments
December 15
agaba augustus
provide me a house plann with ahouse of 4 bedromsz self contained with a swimming pool around the home
December 15
Customer service
Good day and thank you for your interest in this plan.
We would be happy to provide an estimate for the changes that you need to this or any other plan of your choice within two business days after receipt of this on line request.
I have attached the links for other models that might be of interest to you
2821
3928
3916
Please let me know if you have any other questions or comments.
Regards
Deb
August 25
Patrick
Hi,
I like Plan W3128-V1, and was wondering if it could be modified to accommodate 4 bedrooms and 3 bathrooms, with 1 of the bathrooms included in the master bedroom. Probably have an open plan between dining and living room, but have kitchen closed.
Thanks
Patrick
August 25
Customer service
Good day and thank you for taking the time to write.
We would be happy to provide a free estimate within two business days after receipt of this on line form for the changes that you require to make this plan conform to your specific needs.
Please let me know if I can further assist you
Regards
Deb
August 07
boniphace malima
nice plan
August 07
Customer service
Thank you!
Please let me know if you have any questions or other comments.
Deb
Thank you for your comment! It must be approved before being put online, please allow a period of 24 hours.
Error with google reCaptcha! Try again
Here is a brief description of our different plan packages. Please select the plan package that suits your needs. You can change the package at the next step, if necessary.
PDF VERSION OF PLAN:
Complete digital version of plan (pdf format) sent by email (original plan format 18" x 24'' or 24" x 36'')
5 copies of plan + PDF:
Includes: 5 copies of plan, plan in PDF format (reduced size version), materials list.
Foundation type
Additional foundation types are available, a fee may apply. Please indicate your choice on the online order form, or to our customer service representative, when placing your house plan order.
If your desired foundation type is not available, please contact our customer service to receive your free plan modification quote.
Explanation of bonus space types
UNFINISHED BONUS ROOM
The bonus rooms are often planned above the garage and are accessible from the house. They are designed to be converted as an office, a laundry area, a bathroom, a library corner or even an additional bedroom for which homeowners must make sure to have a window that complies with current codes & standards.
STORAGE AREA
Often located above the garage, our storage areas are used only as storage and are usually accessible from the garage via a retractable staircase.
Do you like this plan but want it to be modified to suit your needs?
To add a garage, another bedroom, finish the basement or any other modification, click here and let us know about your desired changes and to get your free quote for the modification of your plan.
Conditions of use
Important copyright notice! Please take note of these copyright conditions before printing:
By printing this house plan, cottage or garage or the floorplan(s), you confirm being informed that every house plan on this website is the exclusive property of Drummond House
Plans and is protected by Canadian copyright law. You are aware that these prints cannot be used to build or even obtain a building permit. The graphic representations of these
models are offered by Drummond House Plans for the sole purpose of allowing you to notate modifications of a model and then take it to one of the Drummond House Plans Canadian dealers for
modification of the plan.
The purchase of a house plan, cottage or garage from Drummond House Plans is mandatory if you wish to build any of our models. The plan purchase allows you to build a single unit; you cannot resell or give your plan to anyone once the house, cottage or garage has been built. If you wish to build the same house, cottage or garage more than once, you need to obtain the licence to this effect. Please contact us for more details.
All plans from Drummond House Plans can only be modified by a licensed Drummond House Plan Canadian dealer. If any other business or individual with no affiliation to Drummond House Plans modifies a Drummond House Plan on your behalf, please ensure this business or individual has a licence to modify this specific plan or you will be subject to prosecution on the same level as the business or individual who modified or reproduced the plan.
For more details, do not hesitate to contact u by e-mail or by phone at 1-800-567-1413.
I agree to respect the conditions above to not reproduce, modify or build a model from Drummond House Plans without previously purchasing a complete house plan.









December 15
agaba augustus
provide me a house plann with ahouse of 4 bedromsz self contained with a swimming pool around the home