There are no shipping fees if you buy one of our 2 plan packages "PDF file format" or "5 sets of blueprints + PDF". Shipping charges may apply if you buy additional sets of blueprints.
House plan Génération 2 (3299-V1)
Buy this planFrom 2130$ See prices and options
House plan Génération 2 (3299-V1)
Generational house plan with 3 bedrooms and 2 baths in main apartment
Buy this plan
Special: Free shipping!
Need help?
Come see us
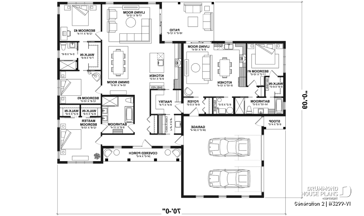
View the size of the rooms and height of the ceilings
| 1st level | ||
|---|---|---|
| Rooms | Sizes | Ceiling |
| Garage | 24'0" x 24'4" | ~ 9'0" |
| Covered porch | 6'8" x 4'0" | ~ 9'4" |
| Covered porch | 24'0" x 4'0" | ~ 9'4" |
| Covered deck | 16'0" x 12'0" | ~ 9'4" |
| Master suite | 12'8" x 13'6" | ~ 9'0" |
| Walk-in closet | 6'2" x 3'6" | ~ 9'0" |
| Walk-in closet | 6'2" x 3'6" | ~ 9'0" |
| Full bathroom | 9'8" x 11'4" | ~ 9'0" |
| Shower | 5'0" x 3'0" | N/A |
| Linen | 3'0" x 1'4" | N/A |
| Storage room | 2'0" x 5'8" | ~ 9'0" |
| Laundry room | 7'0" x 5'8" | ~ 9'0" |
| Kitchen | 9'8" x 14'0" | ~ 9'0" |
| Pantry | 9'4" x 7'4" | ~ 9'0" |
| Kitchen island | 4'4" x 6'0" | N/A |
| Dining room | 10'4" x 16'0" | ~ 9'0" |
| Bedroom | 12'8" x 10'0" | ~ 9'0" |
| Bedroom | 12'8" x 11'4" | ~ 9'0" |
| Living room | 17'8" x 12'0" | ~ 9'0" |
| Kitchen/dining room | 9'10" x 13'4" | ~ 9'0" |
| Living room | 9'4" x 16'4" | ~ 9'0" |
| Foyer | 6'6" x 5'0" | ~ 9'0" |
| Closet | 2'0" x 5'0" | ~ 9'0" |
| Full bathroom | 14'10" x 5'0" | ~ 9'0" |
| Shower | 3'0" x 5'0" | N/A |
| Linen | 2'0" x 1'6" | N/A |
| Storage | 1'8" x 3'0" | ~ 9'0" |
| Master suite | 11'2" x 10'0" | ~ 9'0" |
| Walk-in closet | 5'6" x 6'0" | ~ 9'0" |
| Mechanical room | 6'2" x 5'0" | ~ 9'0" |
| Jack and Jills | 5'4" x 8'6" | ~ 9'0" |
| Shower | 5'0" x 3'0" | N/A |
| Walk-in closet | 7'0" x 8'6" | ~ 9'0" |
General specifications
| Total living area | 2440 sq.ft. |
| 1st level | 2440 sq.ft. |
| Width | 70'0" |
| Depth | 60'0" |
| Ridge height from top of foundation | 26'4" |
| Exterior wall | 2 X 6 |
| Foundation type included in the plan | Floating Slab |
| Other available foundations (a fee may apply) | Crawl space, Monolithic Slab |
| Builder price code | MB |
Rooms specifications
| Bedroom(s) | 3, 4 |
| Full baths | 3 |
| Half baths | - |
| Garage type | Two-car garage (650 sq.ft.) |
| Living bonus space | - |
| Bonus storage | - |
| Covered porch area | 123 sq.ft. |
| Unit 1 (Main) | Unit 2 (In-Law) | |
| Total living area | 1719 sq.ft. | 736 sq.ft. |
| 1st level | 1719 sq.ft. | 736 sq.ft. |
| Width | 38' 8" | 32' 0" |
| Depth | 49' 6" | 23' 0" |
| Ridge height from top of foundation | 26' 4" | 26' 4" |
| Exterior wall | 2 X 6 | 2 X 6 |
| Foundation type | Floating Slab | Floating Slab |
| Bedroom(s) | 3 | 1 |
| Full baths | 1 | 1 |
| Half baths | 1 | - |
| Garage type | - | - |
| Living bonus space | - | - |
| Bonus storage | - | - |
General specifications
| Total living area | 2440 sq.ft. |
| 1st level | 2440 sq.ft. |
| Width | 70'0" |
| Depth | 60'0" |
| Ridge height from top of foundation | 26'4" |
| Exterior wall | 2 X 6 |
| Foundation type included in the plan | Floating Slab i |
| Other available foundations (a fee may apply) | Crawl space, Monolithic Slab |
| Builder price code | MB |
Rooms specifications
| Bedroom(s) | 3, 4 |
| Full baths | 3 |
| Half baths | - |
| Garage type | Two-car garage (650 sq.ft.) |
| Living bonus space | - i |
| Bonus storage | - i |
| Covered porch area | 123 sq.ft. |
Units specifications
| Unit 1 (Main) | Unit 2 (In-Law) | |
| Total living area | 1719 sq.ft. | 736 sq.ft. |
| 1st level | 1719 sq.ft. | 736 sq.ft. |
| Width | 38' 8" | 32' 0" |
| Depth | 49' 6" | 23' 0" |
| Ridge height from top of foundation | 26' 4" | 26' 4" |
| Exterior wall | 2 X 6 | 2 X 6 |
| Foundation type | Floating Slab | Floating Slab |
| Bedroom(s) | 3 | 1 |
| Full baths | 1 | 1 |
| Half baths | 1 | - |
| Garage type | - | - |
| Living bonus space | - | - |
| Bonus storage | - | - |
front
Photos represent a modified version of the original plan and are not available for sale. We invite you to get your free plan modification cost estimate if you would like any changes to the original plan.
Bathroom
Photos represent a modified version of the original plan and are not available for sale. We invite you to get your free plan modification cost estimate if you would like any changes to the original plan.
Bathroom
Photos represent a modified version of the original plan and are not available for sale. We invite you to get your free plan modification cost estimate if you would like any changes to the original plan.
Kitchen
Photos represent a modified version of the original plan and are not available for sale. We invite you to get your free plan modification cost estimate if you would like any changes to the original plan.
Bedroom
Photos represent a modified version of the original plan and are not available for sale. We invite you to get your free plan modification cost estimate if you would like any changes to the original plan.
Bedroom
Photos represent a modified version of the original plan and are not available for sale. We invite you to get your free plan modification cost estimate if you would like any changes to the original plan.
Dining room
Photos represent a modified version of the original plan and are not available for sale. We invite you to get your free plan modification cost estimate if you would like any changes to the original plan.
Sitting room
Photos represent a modified version of the original plan and are not available for sale. We invite you to get your free plan modification cost estimate if you would like any changes to the original plan.
Sitting room
Photos represent a modified version of the original plan and are not available for sale. We invite you to get your free plan modification cost estimate if you would like any changes to the original plan.
Activity sector
Photos represent a modified version of the original plan and are not available for sale. We invite you to get your free plan modification cost estimate if you would like any changes to the original plan.
Activity sector
Photos represent a modified version of the original plan and are not available for sale. We invite you to get your free plan modification cost estimate if you would like any changes to the original plan.
Activity sector
Photos represent a modified version of the original plan and are not available for sale. We invite you to get your free plan modification cost estimate if you would like any changes to the original plan.
Activity sector
Photos represent a modified version of the original plan and are not available for sale. We invite you to get your free plan modification cost estimate if you would like any changes to the original plan.
Other useful information on this plan
Comfortable multigenerational house gives lots of privacy to family members
.
Distinctive elements
Bi-generation Farmhouse style house plan with double garage.
9 'ceiling throughout.
Floating slab foundation, other types of foundation available.
Parents' lodging with 3 bedrooms and 2 bathrooms.
The 2 apartments share the laundry room & pantry.
Parents bedroom with double walk-in closet and access to the semi-private bathroom.
Bedrooms 2 and 3 share a walk-in closet and shower room (Jack & Jill).
All family spaces are open plan.
A 16 'x 12' sheltered patio is accessible from both units.
Access to grandparents' accommodation through the garage.
Plan feature(s)
Side load garage, Pantry, Jack & Jill bath, His/Hers walk-in, Separate bath and shower, Separate bath and shower, Open floor layout, Open floor layout, Deck, Deck, Double sinks, Island, Gound floor laundry room, Gound floor laundry room, Shelves, Walk-in master bed., Oversized garage
Plan architectural style(s)
Modern farmhouse, . American, . Ranch, . Farmhouse, . Country, . Modern rustic
Similar plans
Previously Viewed Plans
Thank you for your comment! It must be approved before being put online, please allow a period of 24 hours.
Error with google reCaptcha! Try again
Want to modify this plan?
Free plan modification quoteNeed help?
Contact usCome see us
Our 31 regional officesYou may also like
Similar plans
Description
Ground floor
Main apartment:
Entrance, kitchen, dining room, living room, master suite, 2 secondary bedrooms with Jill & Jack bathroom, laundry room.
Grand-parents' apartment:
Entrance, kitchen, dining and living room, main bedroom, storage.
Sheltered rear terrace accessible from both appartments.
House proposed on floating slab. Other types of foundation available, please contact our customer service.
Awards and
Recognition
Here is a brief description of our different plan packages. Please select the plan package that suits your needs. You can change the package at the next step, if necessary.
PDF VERSION OF PLAN:
Complete digital version of plan (pdf format) sent by email (original plan format 18" x 24'' or 24" x 36'')
5 copies of plan + PDF:
Includes: 5 copies of plan, plan in PDF format (reduced size version), materials list.
Foundation type
Additional foundation types are available, a fee may apply. Please indicate your choice on the online order form, or to our customer service representative, when placing your house plan order.
If your desired foundation type is not available, please contact our customer service to receive your free plan modification quote.
Explanation of bonus space types
UNFINISHED BONUS ROOM
The bonus rooms are often planned above the garage and are accessible from the house. They are designed to be converted as an office, a laundry area, a bathroom, a library corner or even an additional bedroom for which homeowners must make sure to have a window that complies with current codes & standards.
STORAGE AREA
Often located above the garage, our storage areas are used only as storage and are usually accessible from the garage via a retractable staircase.
Do you like this plan but want it to be modified to suit your needs?
To add a garage, another bedroom, finish the basement or any other modification, click here and let us know about your desired changes and to get your free quote for the modification of your plan.
Conditions of use
Important copyright notice! Please take note of these copyright conditions before printing:
By printing this house plan, cottage or garage or the floorplan(s), you confirm being informed that every house plan on this website is the exclusive property of Drummond House
Plans and is protected by Canadian copyright law. You are aware that these prints cannot be used to build or even obtain a building permit. The graphic representations of these
models are offered by Drummond House Plans for the sole purpose of allowing you to notate modifications of a model and then take it to one of the Drummond House Plans Canadian dealers for
modification of the plan.
The purchase of a house plan, cottage or garage from Drummond House Plans is mandatory if you wish to build any of our models. The plan purchase allows you to build a single unit; you cannot resell or give your plan to anyone once the house, cottage or garage has been built. If you wish to build the same house, cottage or garage more than once, you need to obtain the licence to this effect. Please contact us for more details.
All plans from Drummond House Plans can only be modified by a licensed Drummond House Plan Canadian dealer. If any other business or individual with no affiliation to Drummond House Plans modifies a Drummond House Plan on your behalf, please ensure this business or individual has a licence to modify this specific plan or you will be subject to prosecution on the same level as the business or individual who modified or reproduced the plan.
For more details, do not hesitate to contact u by e-mail or by phone at 1-800-567-1413.
I agree to respect the conditions above to not reproduce, modify or build a model from Drummond House Plans without previously purchasing a complete house plan.






















