There are no shipping fees if you buy one of our 2 plan packages "PDF file format" or "5 sets of blueprints + PDF". Shipping charges may apply if you buy additional sets of blueprints.
House plan Boho (3976)
Small modern 1-storey house plan, opt. finished basement for a total of 4 beds, 2 family rooms and 2.5 baths
Other useful information on this plan
Bright and modern house for a family with 3 children!
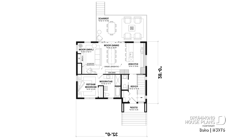
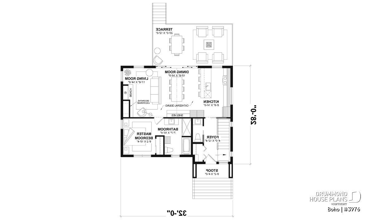
The compact modern home plan Boho (#3978) stands out for its clean design, abundant natural light, and smart layout—perfectly suited to today’s lifestyle. From the moment you arrive, the covered front porch provides a warm welcome while offering comfort and protection year-round, creating a polished and inviting first impression.
The functional front entry, complete with a practical coat closet and a powder room nearby, makes everyday organization easy and ensures added comfort for guests. The main floor has been thoughtfully designed to deliver both efficiency and quality of life, with a smooth flow between spaces and well-balanced proportions.
The primary suite, located on the main floor, serves as a peaceful retreat. It features a private bathroom with a separate bathtub and shower, offering a comfortable and relaxing atmosphere. At the heart of the home, a striking cathedral ceiling spans the kitchen, dining area, and living room, enhancing the sense of openness and creating a bright, airy environment.
Distinctive oversized windows in the kitchen and living room flood the living areas with natural light throughout the day. The inviting kitchen, designed for both daily living and entertaining, includes a coffee bar area and a convenient breakfast counter, quickly becoming a natural gathering spot. The sun-filled dining area, equipped with double patio doors, opens directly to the outdoors, strengthening the connection between indoor and outdoor living.
The warm and welcoming living room, featuring a gas fireplace and a decorative log display niche, sets the stage for cozy evenings and relaxing moments in any season. Every detail has been carefully considered to create a comfortable and functional living environment.
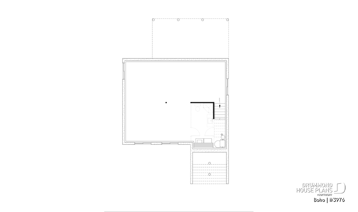
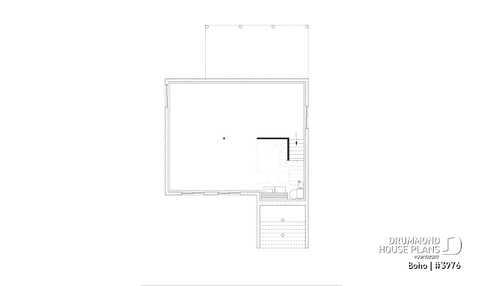
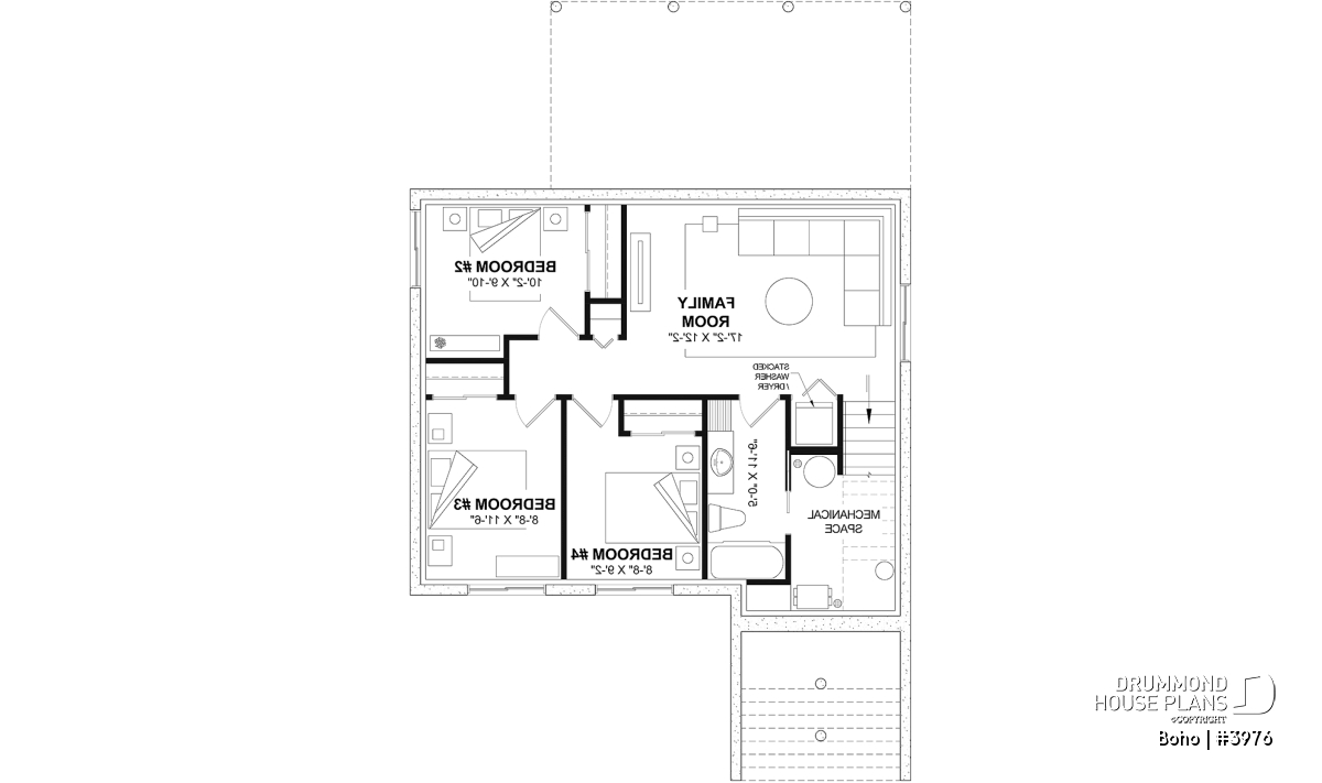
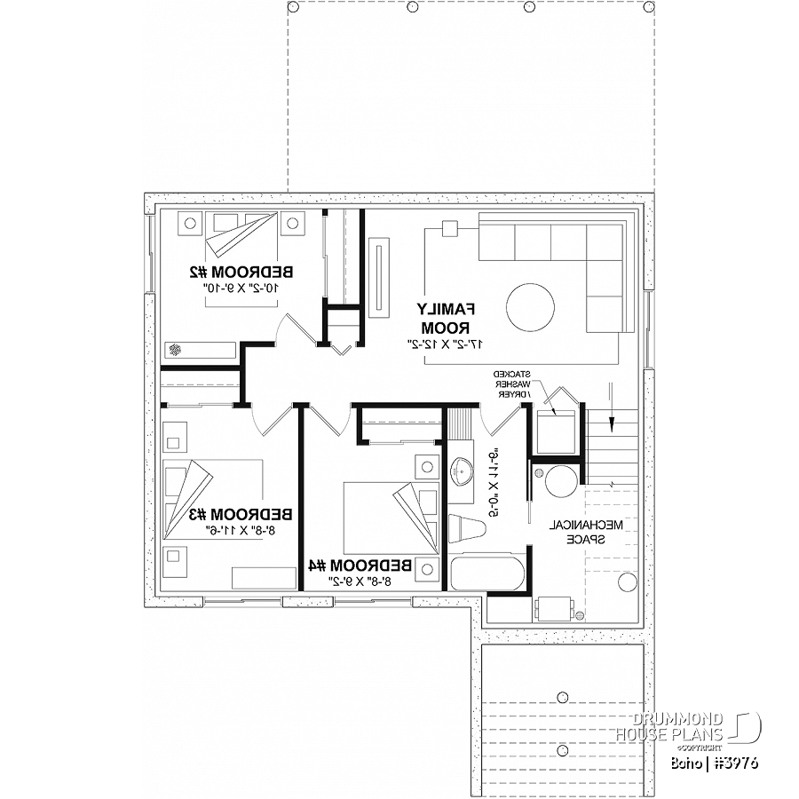
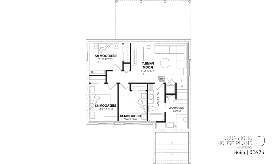
The unfinished basement, included in the base plan, offers excellent flexibility for future development. As an *option, it can be fully finished to add three well-sized bedrooms, bringing the total to four bedrooms, along with a family room ideal for leisure and entertainment, a full bathroom, a stacked washer and dryer area, and a mechanical room.
Compact, bright, and adaptable, the modern home design Boho (#3978) provides a thoughtfully designed living space that evolves with your needs—today and for years to come.
Distinctive elements
Small modern house plan very bright, offering the option of a fully finished basement for a total of 4 bedrooms.
Covered front porch, providing comfort and protection from the moment you arrive.
Functional front entry with a coat closet and a nearby powder room for guests.
Main-floor primary suite, featuring a private bathroom with separate bathtub and shower.
Cathedral ceiling at the heart of the home, spanning the kitchen, dining area, and living room, enhancing the sense of openness.
Distinctive oversized windows in the kitchen and living room, maximizing natural light.
Inviting kitchen with a coffee bar area and a practical breakfast counter.
Bright dining area with double patio doors leading outdoors.
Warm living room with a gas fireplace and a decorative log display niche.
Unfinished basement included in the base plan, offering great flexibility for future development.
---
*Optional finished basement:
Three well-sized bedrooms in the basement.
Shared family room, ideal for leisure and relaxation.
Full bathroom.
Stacked washer and dryer area and mechanical room.
---
*If you wish to purchase the finished basement plan, as presented on this plan page, please select this option in the shopping cart, in the "Selection of foundation type" section. If you do not select this option, you will receive the unfinished full basement option, at no extra charge.
Plan feature(s)
Open floor layout, Lunch counter, Master suite on main, Cathedral ceiling, Island, Separate bath and shower, Bench seat(s), Fireplace, Coffee bar, Shelves
Plan architectural style(s)
. Modern / Design, . Scandinavian, . Mid-century, . Vacation and waterfront, . Contemporary
Similar plans
Previously Viewed Plans
Thank you for your comment! It must be approved before being put online, please allow a period of 24 hours.
Error with google reCaptcha! Try again
Here is a brief description of our different plan packages. Please select the plan package that suits your needs. You can change the package at the next step, if necessary.
PDF VERSION OF PLAN:
Complete digital version of plan (pdf format) sent by email (original plan format 18" x 24'' or 24" x 36'')
5 copies of plan + PDF:
Includes: 5 copies of plan, plan in PDF format (reduced size version), materials list.
Foundation type
Additional foundation types are available, a fee may apply. Please indicate your choice on the online order form, or to our customer service representative, when placing your house plan order.
If your desired foundation type is not available, please contact our customer service to receive your free plan modification quote.
Explanation of bonus space types
UNFINISHED BONUS ROOM
The bonus rooms are often planned above the garage and are accessible from the house. They are designed to be converted as an office, a laundry area, a bathroom, a library corner or even an additional bedroom for which homeowners must make sure to have a window that complies with current codes & standards.
STORAGE AREA
Often located above the garage, our storage areas are used only as storage and are usually accessible from the garage via a retractable staircase.
Do you like this plan but want it to be modified to suit your needs?
To add a garage, another bedroom, finish the basement or any other modification, click here and let us know about your desired changes and to get your free quote for the modification of your plan.
Conditions of use
Important copyright notice! Please take note of these copyright conditions before printing:
By printing this house plan, cottage or garage or the floorplan(s), you confirm being informed that every house plan on this website is the exclusive property of Drummond House
Plans and is protected by Canadian copyright law. You are aware that these prints cannot be used to build or even obtain a building permit. The graphic representations of these
models are offered by Drummond House Plans for the sole purpose of allowing you to notate modifications of a model and then take it to one of the Drummond House Plans Canadian dealers for
modification of the plan.
The purchase of a house plan, cottage or garage from Drummond House Plans is mandatory if you wish to build any of our models. The plan purchase allows you to build a single unit; you cannot resell or give your plan to anyone once the house, cottage or garage has been built. If you wish to build the same house, cottage or garage more than once, you need to obtain the licence to this effect. Please contact us for more details.
All plans from Drummond House Plans can only be modified by a licensed Drummond House Plan Canadian dealer. If any other business or individual with no affiliation to Drummond House Plans modifies a Drummond House Plan on your behalf, please ensure this business or individual has a licence to modify this specific plan or you will be subject to prosecution on the same level as the business or individual who modified or reproduced the plan.
For more details, do not hesitate to contact u by e-mail or by phone at 1-800-567-1413.
I agree to respect the conditions above to not reproduce, modify or build a model from Drummond House Plans without previously purchasing a complete house plan.

















