There are no shipping fees if you buy one of our 2 plan packages "PDF file format" or "5 sets of blueprints + PDF". Shipping charges may apply if you buy additional sets of blueprints.
House plan Beausejour 3 (4571-V1)
Country cottage, 3 bedrooms, large kitchen island, planning desk, pantry, outdoor kitchen, large covered deck
Other useful information on this plan
New Country House Plan with with a fireplace in master bedroom!
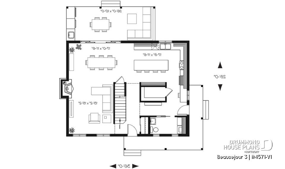
Impossible not to fall in love with this new country house plan, named Beausejour 3 or plan # 4571-V1. This new country house plan offers a multitude of covered balconies, a traditional and beautiful red brick exterior chimney, a very trendy dark metal roof as well as popular shades this year which are dark gray amalgamated with shades of white and wood. Also there is a large covered patio at the back, large enough to receive an outdoor kitchen, a table and 6 chairs as well as a lounge area allowing you to appreciate your back yard while being comfortably sheltered from the elements.
The ground floor has a two floor entrance with coat closet and a skylight offering lots of natural light. The open concept living room and dining room share a fireplace. The kitchen is also open to the dining room. The latter receives the light from an oversize patio door overlooking the rear balcony where it will be possible to arrange an outdoor kitchen as well as a dining area and lounge area.
The kitchen island can easily accommodates 4 guests, and the kitchen also includes a large pantry and a planning desk. A half bathroom with washer / dryer is conveniently located not far from the kitchen.
Upstairs and next to the family bathroom, the good size master bedroom (13'2 '' x 18 ') has a fireplace, a sloped ceiling and a large walk-in closet. The family bathroom offers a double vanity and an attached linen storage space. The toilet and the shower bath are separated from the two sinks allowing a better circulation in this room. Two secondary bedrooms with closet complete this magnificent new country house plan, Beausejour or plan # 4571-V1.
Distinctive elements
Beautiful country style home with modern rustic touches!
Covered wraparound porch on front and left elevations.
Rear covered deck with enough room to add an outdoor kitchen.
Two story entrace with a skylight and coat closet.
Kitchen with large pantry, planning desk and good size kitchen island.
Half bath and laundry area located near kitchen.
Open kitchen, dining room and living room concept, with a fireplace.
Slope ceiling on second floor.
Master bedroom with fireplace, large walk-in closet and located near family bathroom.
Family bathroom with double vanities.
Enclosed shower/bath and toilet for more privacy.
Two secondary bedrooms with closet.
Linen closet close to bathroom.
Unfinished daylight basement.
Plan feature(s)
Planning desk, Pantry, Deck, Gound floor laundry room, 2-Story foyer, Sloped ceiling, Fireplace, Warparound, Island, Double sinks, Walk-in master bed.
Plan architectural style(s)
. Country, . American, . Scandinavian, . Farmhouse, . Cape Cod, . Transitional, . Modern rustic
Similar plans
Previously Viewed Plans
Thank you for your comment! It must be approved before being put online, please allow a period of 24 hours.
Error with google reCaptcha! Try again
Here is a brief description of our different plan packages. Please select the plan package that suits your needs. You can change the package at the next step, if necessary.
PDF VERSION OF PLAN:
Complete digital version of plan (pdf format) sent by email (original plan format 18" x 24'' or 24" x 36'')
5 copies of plan + PDF:
Includes: 5 copies of plan, plan in PDF format (reduced size version), materials list.
Foundation type
Additional foundation types are available, a fee may apply. Please indicate your choice on the online order form, or to our customer service representative, when placing your house plan order.
If your desired foundation type is not available, please contact our customer service to receive your free plan modification quote.
Explanation of bonus space types
UNFINISHED BONUS ROOM
The bonus rooms are often planned above the garage and are accessible from the house. They are designed to be converted as an office, a laundry area, a bathroom, a library corner or even an additional bedroom for which homeowners must make sure to have a window that complies with current codes & standards.
STORAGE AREA
Often located above the garage, our storage areas are used only as storage and are usually accessible from the garage via a retractable staircase.
Do you like this plan but want it to be modified to suit your needs?
To add a garage, another bedroom, finish the basement or any other modification, click here and let us know about your desired changes and to get your free quote for the modification of your plan.
Conditions of use
Important copyright notice! Please take note of these copyright conditions before printing:
By printing this house plan, cottage or garage or the floorplan(s), you confirm being informed that every house plan on this website is the exclusive property of Drummond House
Plans and is protected by Canadian copyright law. You are aware that these prints cannot be used to build or even obtain a building permit. The graphic representations of these
models are offered by Drummond House Plans for the sole purpose of allowing you to notate modifications of a model and then take it to one of the Drummond House Plans Canadian dealers for
modification of the plan.
The purchase of a house plan, cottage or garage from Drummond House Plans is mandatory if you wish to build any of our models. The plan purchase allows you to build a single unit; you cannot resell or give your plan to anyone once the house, cottage or garage has been built. If you wish to build the same house, cottage or garage more than once, you need to obtain the licence to this effect. Please contact us for more details.
All plans from Drummond House Plans can only be modified by a licensed Drummond House Plan Canadian dealer. If any other business or individual with no affiliation to Drummond House Plans modifies a Drummond House Plan on your behalf, please ensure this business or individual has a licence to modify this specific plan or you will be subject to prosecution on the same level as the business or individual who modified or reproduced the plan.
For more details, do not hesitate to contact u by e-mail or by phone at 1-800-567-1413.
I agree to respect the conditions above to not reproduce, modify or build a model from Drummond House Plans without previously purchasing a complete house plan.

























