There are no shipping fees if you buy one of our 2 plan packages "PDF file format" or "5 sets of blueprints + PDF". Shipping charges may apply if you buy additional sets of blueprints.
House plan Pintendre (3289)
Mid-Century Modern One-story Home, Open floor plan, Large Kitchen Island, Pantry, One-Car Garage, 2 + Bedrooms
Other useful information on this plan
Small Mid-Century Modern Single-Story House Plan with Garage and Flexible Basement – PINTENDRE (#3289)
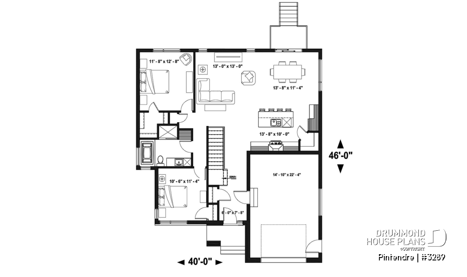
The PINTENDRE house plan (#3289) offers a modern single-story residential design defined by clean architectural lines, abundant natural light and a highly functional layout. Designed to support comfortable everyday living, this contemporary home plan combines simplicity, efficiency and long-term adaptability.
From the front entry, the layout immediately demonstrates thoughtful planning. A functional entryway with a coat closet provides convenient storage, while direct access to the attached garage enhances daily circulation and practicality. This transition space helps keep the main living areas organized and uncluttered.
The main living spaces are fully open and oriented toward the rear, creating a bright and inviting environment. The kitchen is both practical and well proportioned, featuring a walk-in pantry, a large central island, and a dining area positioned nearby for easy flow. This open arrangement encourages natural interaction between the kitchen, dining area and living room, making the space ideal for everyday routines and shared moments.
The living room benefits from excellent natural light and a layout that promotes comfort and relaxation. Large rear-facing windows reinforce the connection between indoor spaces and the surrounding environment, contributing to a calm and welcoming atmosphere.
The PINTENDRE (#3289) home plan includes two well-sized bedrooms, each offering comfortable proportions and privacy. The primary bedroom features a walk-in closet, adding valuable storage while maintaining a clean, uncluttered feel. A full bathroom with a separate shower completes the main level, providing a practical and modern daily setup.
The single-car garage, generously sized, integrates seamlessly with the overall architecture and offers additional storage potential. Below, the unfinished basement opens the door to future possibilities, allowing the home to adapt over time with additional living spaces as needs evolve.
With its Modern design, bright open layout and flexible lower level, the PINTENDRE house plan (#3289) stands out as a smart, well-balanced solution for homeowners seeking a modern single-story home with lasting versatility.
Distinctive elements
Mid-Century Modern home with an attached garage, offering abundant natural light throughout.
Functional front entry with coat closet and direct access to the garage from this area.
Open-concept living spaces oriented toward the rear, creating a bright and welcoming atmosphere.
Well-designed kitchen with walk-in pantry, large central island and adjacent dining area.
Two well-proportioned bedrooms, including a primary bedroom with a walk-in closet.
Full bathroom featuring a separate shower.
Single-car garage of generous size for everyday convenience.
Unfinished basement providing excellent potential for future living space.
Plan feature(s)
Laundry chute, Walk-in master bed., Pantry, Separate bath and shower, Open floor layout, Island
Plan architectural style(s)
. Mid-century, . Contemporary, . Transitional, . Modern rustic, . Modern / Design
Previously Viewed Plans
Thank you for your comment! It must be approved before being put online, please allow a period of 24 hours.
Error with google reCaptcha! Try again
Here is a brief description of our different plan packages. Please select the plan package that suits your needs. You can change the package at the next step, if necessary.
PDF VERSION OF PLAN:
Complete digital version of plan (pdf format) sent by email (original plan format 18" x 24'' or 24" x 36'')
5 copies of plan + PDF:
Includes: 5 copies of plan, plan in PDF format (reduced size version), materials list.
Foundation type
Additional foundation types are available, a fee may apply. Please indicate your choice on the online order form, or to our customer service representative, when placing your house plan order.
If your desired foundation type is not available, please contact our customer service to receive your free plan modification quote.
Explanation of bonus space types
UNFINISHED BONUS ROOM
The bonus rooms are often planned above the garage and are accessible from the house. They are designed to be converted as an office, a laundry area, a bathroom, a library corner or even an additional bedroom for which homeowners must make sure to have a window that complies with current codes & standards.
STORAGE AREA
Often located above the garage, our storage areas are used only as storage and are usually accessible from the garage via a retractable staircase.
Do you like this plan but want it to be modified to suit your needs?
To add a garage, another bedroom, finish the basement or any other modification, click here and let us know about your desired changes and to get your free quote for the modification of your plan.
Conditions of use
Important copyright notice! Please take note of these copyright conditions before printing:
By printing this house plan, cottage or garage or the floorplan(s), you confirm being informed that every house plan on this website is the exclusive property of Drummond House
Plans and is protected by Canadian copyright law. You are aware that these prints cannot be used to build or even obtain a building permit. The graphic representations of these
models are offered by Drummond House Plans for the sole purpose of allowing you to notate modifications of a model and then take it to one of the Drummond House Plans Canadian dealers for
modification of the plan.
The purchase of a house plan, cottage or garage from Drummond House Plans is mandatory if you wish to build any of our models. The plan purchase allows you to build a single unit; you cannot resell or give your plan to anyone once the house, cottage or garage has been built. If you wish to build the same house, cottage or garage more than once, you need to obtain the licence to this effect. Please contact us for more details.
All plans from Drummond House Plans can only be modified by a licensed Drummond House Plan Canadian dealer. If any other business or individual with no affiliation to Drummond House Plans modifies a Drummond House Plan on your behalf, please ensure this business or individual has a licence to modify this specific plan or you will be subject to prosecution on the same level as the business or individual who modified or reproduced the plan.
For more details, do not hesitate to contact u by e-mail or by phone at 1-800-567-1413.
I agree to respect the conditions above to not reproduce, modify or build a model from Drummond House Plans without previously purchasing a complete house plan.






