There are no shipping fees if you buy one of our 2 plan packages "PDF file format" or "5 sets of blueprints + PDF". Shipping charges may apply if you buy additional sets of blueprints.
House plan The Wentworth (2891)
Home with x-large family room & fireplace, home office, great master suite, cathedral ceiling, 2-car garage
Other useful information on this plan
A Noble and Comfortable Cottage
Remarkable lines, attractive and well-balanced volumes, abundant windows and generous exterior facing procure this home all the nobleness searched for in the conception of this design.
Once inside through the large foyer, comfortable rooms are strategically organized around a central staircase, thus minimizing hall space. We first enter a vast family room adorned with a cathedral ceiling and warmed by a fireplace, an indispensable amenity in a room this size. We step through to the kitchen, with central cook-top lunch counter, and a very original dining area with plenty of natural light. An independent half-bath and a laundry room are always appreciated on this level. Last, but not least, is a most enviable home office space occupying the turret at the front.
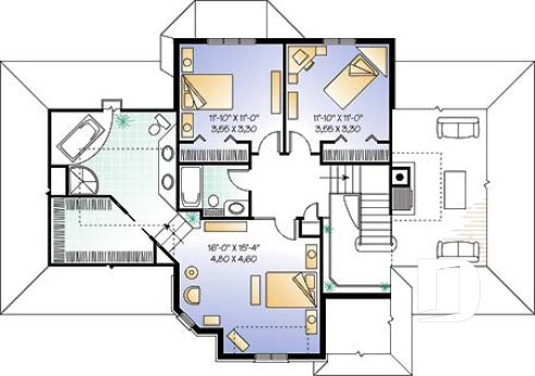
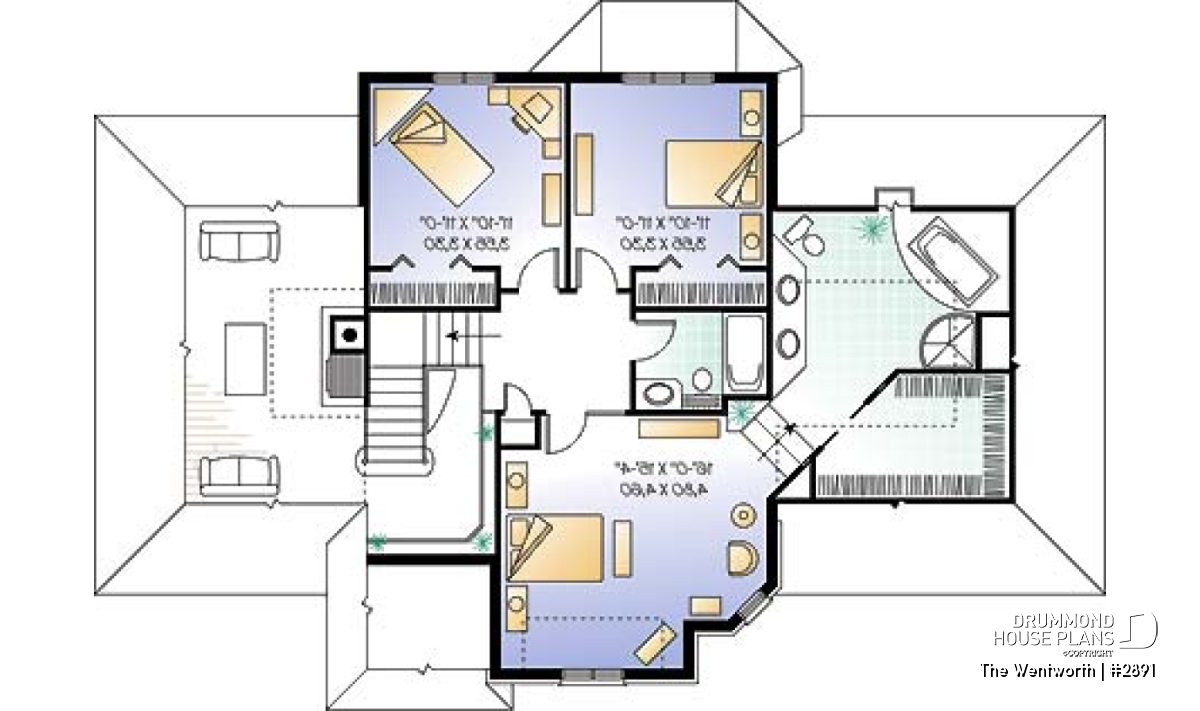
On the second level, we are charmed by three beautiful bedrooms. The very comfortable master suite boasts a very large walk-in closet, and a spacious bathroom. Two secondary bedrooms share a full bathroom of their own, an amenity most appreciated by families with teenagers.
Distinctive elements
Abundant and special fenestration, false balcony at 2nd level, home office of bedroom #4, corner bath and dual sinks in master bathroom, cathedral ceiling in family room, built-ins, oversized garage, special ceiling treatments.
Plan feature(s)
Fireplace, Cathedral ceiling, Office / Study / Den, 2-Story foyer, Gound floor laundry room, Island, Sloped ceiling, Separate bath and shower, Walk-in master bed., Master suite upstairs
Plan architectural style(s)
Similar plans
Previously Viewed Plans
Questions and comments
December 09
Victor L
Do you have agent in russia?
December 09
Customer service
Good day Mr. L and thank you for taking the time to write.
Although we do not have an agent in Russia, we have many clients from your country that have purchased plans from our Internet site.
You can buy your plans directly on line from our secure site or by telephone during business hours and the metric version of the plan and materials list is available if required.
We suggest purchase of the CAD electronic file, which can be modified to conform to your local requirements.
Please let me know if I can further assist you.
Regards
Deborah
September 11
Juliet
How much would it cost to build this house in the province of Quebec?
September 11
Customer service
Good day and thank you for your interest in this plan.
A ballpark estimate for building this home in Quebec starts at $435,000.
This includes the energy efficiency updates, ceramic in the entrance, kitchen (with melamine cabinetry) and bathrooms with hardwood flooring throughout the other rooms.
Excluded are the cost of the land and its excavation, taxes and hook-ups to municipal services.
Please let me know if you have any other questions or comments.
Deborah
Thank you for your comment! It must be approved before being put online, please allow a period of 24 hours.
Error with google reCaptcha! Try again
Here is a brief description of our different plan packages. Please select the plan package that suits your needs. You can change the package at the next step, if necessary.
PDF VERSION OF PLAN:
Complete digital version of plan (pdf format) sent by email (original plan format 18" x 24'' or 24" x 36'')
5 copies of plan + PDF:
Includes: 5 copies of plan, plan in PDF format (reduced size version), materials list.
Foundation type
Additional foundation types are available, a fee may apply. Please indicate your choice on the online order form, or to our customer service representative, when placing your house plan order.
If your desired foundation type is not available, please contact our customer service to receive your free plan modification quote.
Explanation of bonus space types
UNFINISHED BONUS ROOM
The bonus rooms are often planned above the garage and are accessible from the house. They are designed to be converted as an office, a laundry area, a bathroom, a library corner or even an additional bedroom for which homeowners must make sure to have a window that complies with current codes & standards.
STORAGE AREA
Often located above the garage, our storage areas are used only as storage and are usually accessible from the garage via a retractable staircase.
Do you like this plan but want it to be modified to suit your needs?
To add a garage, another bedroom, finish the basement or any other modification, click here and let us know about your desired changes and to get your free quote for the modification of your plan.
Conditions of use
Important copyright notice! Please take note of these copyright conditions before printing:
By printing this house plan, cottage or garage or the floorplan(s), you confirm being informed that every house plan on this website is the exclusive property of Drummond House
Plans and is protected by Canadian copyright law. You are aware that these prints cannot be used to build or even obtain a building permit. The graphic representations of these
models are offered by Drummond House Plans for the sole purpose of allowing you to notate modifications of a model and then take it to one of the Drummond House Plans Canadian dealers for
modification of the plan.
The purchase of a house plan, cottage or garage from Drummond House Plans is mandatory if you wish to build any of our models. The plan purchase allows you to build a single unit; you cannot resell or give your plan to anyone once the house, cottage or garage has been built. If you wish to build the same house, cottage or garage more than once, you need to obtain the licence to this effect. Please contact us for more details.
All plans from Drummond House Plans can only be modified by a licensed Drummond House Plan Canadian dealer. If any other business or individual with no affiliation to Drummond House Plans modifies a Drummond House Plan on your behalf, please ensure this business or individual has a licence to modify this specific plan or you will be subject to prosecution on the same level as the business or individual who modified or reproduced the plan.
For more details, do not hesitate to contact u by e-mail or by phone at 1-800-567-1413.
I agree to respect the conditions above to not reproduce, modify or build a model from Drummond House Plans without previously purchasing a complete house plan.










December 09
Victor L
Do you have agent in russia?