There are no shipping fees if you buy one of our 2 plan packages "PDF file format" or "5 sets of blueprints + PDF". Shipping charges may apply if you buy additional sets of blueprints.
House plan The Bunting (2180)
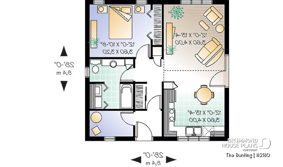
Low budget cabin style home with one bedroom, cathedral ceiling, open floor plan concept, laundry room
Other useful information on this plan
Small cabin or house plan with 1 bedroom
When the kids have flown the nest and less space is needed, many baby boomers take to right-sizing, which is to say having a house to suit their actual needs. This simple one-bedroom has a very efficient footprint and the fairytale charm of flower boxes on the windows, garden door to the side and vaulted ceiling in the activities area.
A comfortable bathroom includes a laundry cabinet. There is even a 5’4” x 8’8” storage room off the front entry.
This efficient cottage is economical to build and maintain and still provides full independence and private spaces.
Distinctive elements
Small bungalow plan offering a reasonable construction cost.
Country style, ideal as a last home, or small cottage.
Open area in the kitchen and living room.
Cathedral ceiling, giving a nice amplitude to the activity area.
Washer-dryer provided in the bathroom.
Side exit by French doors,
Storage adjoining the main entrance.
Foundation included: floating slab. Other foundation options available.
Plan feature(s)
Open floor layout, Cathedral ceiling, Gound floor laundry room, Mud room, Entrance hall, Self-Build
Plan architectural style(s)
. Country, . Cottage, chalet, cabin, . Cape Cod, . Vacation and waterfront, . Ranch, . Modern rustic, . American, . Farmhouse
Similar plans
Previously Viewed Plans
Questions and comments
May 22
Charlie Waggoner
Please send me a list of plan numbers that are suitable for handicapped individuals or what many are calling universal design. I am not interested in plans larger than 1200 sq. ft. In fact prefer under a thousand. Also need only one or two bedrooms at the most.
Thanks for your time and attention to this inquiry
Charlie Waggoner
May 22
Customer service
Good day Mr. Waggoner and thank you for your interest in our plans.
Although this is a conventional plan, it could be modified to provide barrier free access and we would be happy to return a free estimate for any changes that you require within two business days after receipt of this on line form.
The following plans have already been adapted to clients with reduced mobility but are somewhat larger than 1200 sq. ft. and could be modified to reduce the square footage to conform to your needs
2258
2178
3275
Please let me know if I can further assist you
Regards
Deb
February 17
ken
Hi there, where have you put the water heater in this design.
Is it possible to run in floor heating?
Thanks, Ken
February 17
Customer service
Good day and thank you for taking the time to write.
The water heater is located in the storage room on the front right side of the floor plan.
For information about the installation of in floor heating, your local contractor would be the best source. The standard foundation for this plan is a floating slab (stem wall foundation) but could be modified to a monolithic (slab on grade) foundation if that is preferred.
Please let me know if you have any other questions or comments.
Regards
Deb
Thank you for your comment! It must be approved before being put online, please allow a period of 24 hours.
Error with google reCaptcha! Try again
Here is a brief description of our different plan packages. Please select the plan package that suits your needs. You can change the package at the next step, if necessary.
PDF VERSION OF PLAN:
Complete digital version of plan (pdf format) sent by email (original plan format 18" x 24'' or 24" x 36'')
5 copies of plan + PDF:
Includes: 5 copies of plan, plan in PDF format (reduced size version), materials list.
Foundation type
Additional foundation types are available, a fee may apply. Please indicate your choice on the online order form, or to our customer service representative, when placing your house plan order.
If your desired foundation type is not available, please contact our customer service to receive your free plan modification quote.
Explanation of bonus space types
UNFINISHED BONUS ROOM
The bonus rooms are often planned above the garage and are accessible from the house. They are designed to be converted as an office, a laundry area, a bathroom, a library corner or even an additional bedroom for which homeowners must make sure to have a window that complies with current codes & standards.
STORAGE AREA
Often located above the garage, our storage areas are used only as storage and are usually accessible from the garage via a retractable staircase.
Do you like this plan but want it to be modified to suit your needs?
To add a garage, another bedroom, finish the basement or any other modification, click here and let us know about your desired changes and to get your free quote for the modification of your plan.
Conditions of use
Important copyright notice! Please take note of these copyright conditions before printing:
By printing this house plan, cottage or garage or the floorplan(s), you confirm being informed that every house plan on this website is the exclusive property of Drummond House
Plans and is protected by Canadian copyright law. You are aware that these prints cannot be used to build or even obtain a building permit. The graphic representations of these
models are offered by Drummond House Plans for the sole purpose of allowing you to notate modifications of a model and then take it to one of the Drummond House Plans Canadian dealers for
modification of the plan.
The purchase of a house plan, cottage or garage from Drummond House Plans is mandatory if you wish to build any of our models. The plan purchase allows you to build a single unit; you cannot resell or give your plan to anyone once the house, cottage or garage has been built. If you wish to build the same house, cottage or garage more than once, you need to obtain the licence to this effect. Please contact us for more details.
All plans from Drummond House Plans can only be modified by a licensed Drummond House Plan Canadian dealer. If any other business or individual with no affiliation to Drummond House Plans modifies a Drummond House Plan on your behalf, please ensure this business or individual has a licence to modify this specific plan or you will be subject to prosecution on the same level as the business or individual who modified or reproduced the plan.
For more details, do not hesitate to contact u by e-mail or by phone at 1-800-567-1413.
I agree to respect the conditions above to not reproduce, modify or build a model from Drummond House Plans without previously purchasing a complete house plan.












May 22
Charlie Waggoner
Please send me a list of plan numbers that are suitable for handicapped individuals or what many are calling universal design. I am not interested in plans larger than 1200 sq. ft. In fact prefer under a thousand. Also need only one or two bedrooms at the most.
Thanks for your time and attention to this inquiry
Charlie Waggoner