There are no shipping fees if you buy one of our 2 plan packages "PDF file format" or "5 sets of blueprints + PDF". Shipping charges may apply if you buy additional sets of blueprints.
House plan Remington (3229)
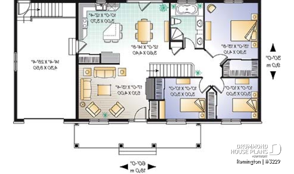
3 bedroom ranch house plan with 3 bedrooms, covered porch and garage
Other useful information on this plan
Classic 3 bedroom ranch style house plan with garage
This classic rancher is designed to maximize use of space by minimizing hallways, thus making the most of the modest 1350 sq. ft.
A generously wide porch will be appreciated for protection from sun and rain making it a natural place for many a visit. The entry opens directly to the living room and a coat closet immediately reduces clutter.
The living room area is a semi-open concept with a wide opening leading to the dining room and the kitchen with eating island. The island also provides a transition between kitchen and dining area and both have easy backyard access via a garden door.
The sleeping wing includes a rear-facing master bedroom with walk-in closet, two forward-facing bedrooms, a linen closet and 5-piece bathroom.
A full basement leaves ample space for laundry and your ideas for other living or storage spaces.
Distinctive elements
Nice covered front porch.
Access to basement from garage.
Central island / lunch counter in kitchen.
Nicely organized bathroom.
Hallway enlarged by the presence of stairwell.
Built-in television module in living room.
Plan feature(s)
Separate bath and shower, Double sinks, Basement access from garage, Island, Walk-in master bed.
Plan architectural style(s)
. Ranch, . Traditional, . American
Similar plans
Previously Viewed Plans
Questions and comments
October 15
don larson
How difficult would be be to have this house placed on a Crawsplace; and put the Furnace, HWH, and a Corner (two-sided fireplace) in the spot that is currently dedicated to the basement stairs?
One more question: Can this house be done with 9' ceilings without too much cost?
Thank you
don
October 15
Customer service
Good day and thank you for your interest in our plans.
The changes that you would like to make to this plan are possible, all you need to do is contact our modifications department.
I have attached the link to our on line form below
http://www.drummondhouseplans.com/plan-modification-services/online-estimate-form/plan/1002122.html
We will be happy to return a free estimate for the changes that you require within two business days after receipt of your request.
Please let me know if I can further assist you.
Regards
Deborah
Thank you for your comment! It must be approved before being put online, please allow a period of 24 hours.
Error with google reCaptcha! Try again
Here is a brief description of our different plan packages. Please select the plan package that suits your needs. You can change the package at the next step, if necessary.
PDF VERSION OF PLAN:
Complete digital version of plan (pdf format) sent by email (original plan format 18" x 24'' or 24" x 36'')
5 copies of plan + PDF:
Includes: 5 copies of plan, plan in PDF format (reduced size version), materials list.
Foundation type
Additional foundation types are available, a fee may apply. Please indicate your choice on the online order form, or to our customer service representative, when placing your house plan order.
If your desired foundation type is not available, please contact our customer service to receive your free plan modification quote.
Explanation of bonus space types
UNFINISHED BONUS ROOM
The bonus rooms are often planned above the garage and are accessible from the house. They are designed to be converted as an office, a laundry area, a bathroom, a library corner or even an additional bedroom for which homeowners must make sure to have a window that complies with current codes & standards.
STORAGE AREA
Often located above the garage, our storage areas are used only as storage and are usually accessible from the garage via a retractable staircase.
Do you like this plan but want it to be modified to suit your needs?
To add a garage, another bedroom, finish the basement or any other modification, click here and let us know about your desired changes and to get your free quote for the modification of your plan.
Conditions of use
Important copyright notice! Please take note of these copyright conditions before printing:
By printing this house plan, cottage or garage or the floorplan(s), you confirm being informed that every house plan on this website is the exclusive property of Drummond House
Plans and is protected by Canadian copyright law. You are aware that these prints cannot be used to build or even obtain a building permit. The graphic representations of these
models are offered by Drummond House Plans for the sole purpose of allowing you to notate modifications of a model and then take it to one of the Drummond House Plans Canadian dealers for
modification of the plan.
The purchase of a house plan, cottage or garage from Drummond House Plans is mandatory if you wish to build any of our models. The plan purchase allows you to build a single unit; you cannot resell or give your plan to anyone once the house, cottage or garage has been built. If you wish to build the same house, cottage or garage more than once, you need to obtain the licence to this effect. Please contact us for more details.
All plans from Drummond House Plans can only be modified by a licensed Drummond House Plan Canadian dealer. If any other business or individual with no affiliation to Drummond House Plans modifies a Drummond House Plan on your behalf, please ensure this business or individual has a licence to modify this specific plan or you will be subject to prosecution on the same level as the business or individual who modified or reproduced the plan.
For more details, do not hesitate to contact u by e-mail or by phone at 1-800-567-1413.
I agree to respect the conditions above to not reproduce, modify or build a model from Drummond House Plans without previously purchasing a complete house plan.






October 15
don larson
How difficult would be be to have this house placed on a Crawsplace; and put the Furnace, HWH, and a Corner (two-sided fireplace) in the spot that is currently dedicated to the basement stairs?
One more question: Can this house be done with 9' ceilings without too much cost?
Thank you
don