There are no shipping fees if you buy one of our 2 plan packages "PDF file format" or "5 sets of blueprints + PDF". Shipping charges may apply if you buy additional sets of blueprints.
House plan Pacifica (2851)
Large 4 bedroom house plans with indoor pool, 2-car garage with bonus space above, fireplaces, pantry
Other useful information on this plan
Classic & Functional Two-Story House Plan – Indoor Pool and Bonus Room
Discover this two-story traditional-style home plan, thoughtfully designed to combine timeless elegance with modern functionality. With its double garage and carefully arranged interior spaces, it meets the needs of families looking to blend comfort, prestige, and everyday practicality.
From the moment you arrive, a spacious front entry welcomes you and sets the tone: generous volumes, easy flow, and a warm ambiance. On the main floor, 9-foot ceilings create an open, airy feeling that enhances every room.
The practical, well-equipped galley kitchen features a functional pantry and a cozy breakfast nook—perfect for starting the day. Nearby, the formal dining room is ideal for hosting gatherings, while the double-sided fireplace shared between the living room and family room adds a touch of charm and conviviality to the entire living area.
A rare and distinctive feature, this home includes an indoor swimming pool with an adjoining shower room, a true wellness and leisure asset that turns every day into a mini escape, no matter the season.
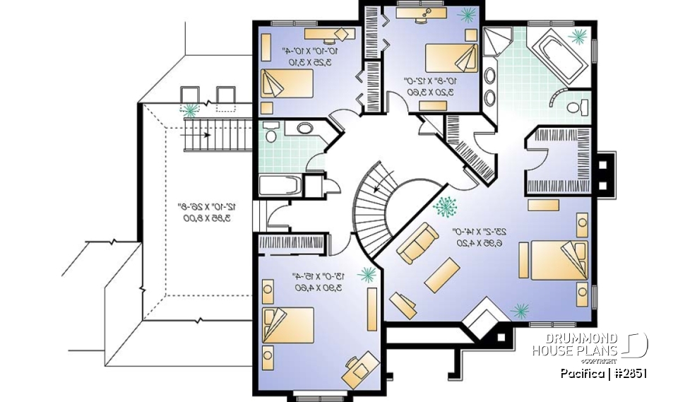
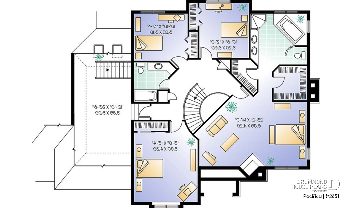
Upstairs, the primary suite unfolds like a private sanctuary with two spacious walk-in closets and a large private bathroom combining luxury and practicality. The three generously sized secondary bedrooms share a thoughtfully designed family bathroom, giving everyone their own space and making busy mornings easier.
A bonus room, accessible near the garage, completes the upper level and offers exceptional flexibility—use it as a playroom, home office, media room, or workout space. It adapts effortlessly to your family’s needs as they evolve.
This two-story traditional-style home plan perfectly blends classic architecture with contemporary features. Its generous spaces, abundant storage, and distinctive touches—such as the indoor pool and double-sided fireplace—make it an ideal choice for families seeking a unique, comfortable living environment that will add value and enjoyment for many years to come.
Distinctive elements
Two-Story Traditional-Style Home Plan with Double Garage
9-foot ceilings on the main floor.
Spacious front entry.
Galley kitchen with pantry and cozy breakfast nook.
Formal dining room.
Double-sided fireplace shared between the living room and family room.
Indoor swimming pool with adjoining shower room.
Upstairs primary suite with two walk-in closets and a large private bathroom.
Three generously sized secondary bedrooms share a bathroom.
Bonus room upstairs, accessible near the garage.
Plan feature(s)
Fireplace, Living bonus space, Pantry, Mezzanine, Ceiling over 8', Cathedral ceiling, Master suite upstairs, Gound floor laundry room, Deck, Breakfast nook, Formal dining room, His/Hers walk-in, Separate bath and shower
Plan architectural style(s)
. Traditional, . American, . European
Similar plans
Previously Viewed Plans
Questions and comments
March 16
Callie
I would like to see photos of the side elevations and any interior if this plan has actually been built somewhere.
March 16
Customer service
Good day and thank you for your interest in this plan
Since we do no actual construction, the only photos that we have are those which our clients have generously shared and there are unfortunately none on file at the present time for this model but we will post them to this Web page as soon as any become available.
The side elevations are part of the plan and the only elevation that is available is the rear, as seen on this page but I would be happy to answer any specific questions that you might have either in writing or during business hours at 1 (800) 567-5267
Please let me know if I can further assist you
Regards
Deb
Thank you for your comment! It must be approved before being put online, please allow a period of 24 hours.
Error with google reCaptcha! Try again
Here is a brief description of our different plan packages. Please select the plan package that suits your needs. You can change the package at the next step, if necessary.
PDF VERSION OF PLAN:
Complete digital version of plan (pdf format) sent by email (original plan format 18" x 24'' or 24" x 36'')
5 copies of plan + PDF:
Includes: 5 copies of plan, plan in PDF format (reduced size version), materials list.
Foundation type
Additional foundation types are available, a fee may apply. Please indicate your choice on the online order form, or to our customer service representative, when placing your house plan order.
If your desired foundation type is not available, please contact our customer service to receive your free plan modification quote.
Explanation of bonus space types
UNFINISHED BONUS ROOM
The bonus rooms are often planned above the garage and are accessible from the house. They are designed to be converted as an office, a laundry area, a bathroom, a library corner or even an additional bedroom for which homeowners must make sure to have a window that complies with current codes & standards.
STORAGE AREA
Often located above the garage, our storage areas are used only as storage and are usually accessible from the garage via a retractable staircase.
Do you like this plan but want it to be modified to suit your needs?
To add a garage, another bedroom, finish the basement or any other modification, click here and let us know about your desired changes and to get your free quote for the modification of your plan.
Conditions of use
Important copyright notice! Please take note of these copyright conditions before printing:
By printing this house plan, cottage or garage or the floorplan(s), you confirm being informed that every house plan on this website is the exclusive property of Drummond House
Plans and is protected by Canadian copyright law. You are aware that these prints cannot be used to build or even obtain a building permit. The graphic representations of these
models are offered by Drummond House Plans for the sole purpose of allowing you to notate modifications of a model and then take it to one of the Drummond House Plans Canadian dealers for
modification of the plan.
The purchase of a house plan, cottage or garage from Drummond House Plans is mandatory if you wish to build any of our models. The plan purchase allows you to build a single unit; you cannot resell or give your plan to anyone once the house, cottage or garage has been built. If you wish to build the same house, cottage or garage more than once, you need to obtain the licence to this effect. Please contact us for more details.
All plans from Drummond House Plans can only be modified by a licensed Drummond House Plan Canadian dealer. If any other business or individual with no affiliation to Drummond House Plans modifies a Drummond House Plan on your behalf, please ensure this business or individual has a licence to modify this specific plan or you will be subject to prosecution on the same level as the business or individual who modified or reproduced the plan.
For more details, do not hesitate to contact u by e-mail or by phone at 1-800-567-1413.
I agree to respect the conditions above to not reproduce, modify or build a model from Drummond House Plans without previously purchasing a complete house plan.







March 16
Callie
I would like to see photos of the side elevations and any interior if this plan has actually been built somewhere.