There are no shipping fees if you buy one of our 2 plan packages "PDF file format" or "5 sets of blueprints + PDF". Shipping charges may apply if you buy additional sets of blueprints.
House plan Hygge 3 (3286-V2)
1686 sq.ft. Scandinavian home: 3 bedrooms, owner’s suite, 11'9" split entry and bright open living
Other useful information on this plan
Modern Scandinavian Home Plan – 1686 sq.ft. with 3 Bedrooms, Luxurious Owner’s Suite, 11'9" Split Entry and Bright Open-Concept Living
This stunning Scandinavian-inspired contemporary home plan beautifully blends clean lines, warm materials and modern comfort. With 1686 sq.ft. of finished space on a single floor, an attached garage with an impressive 13'10" ceiling, and an unfinished basement ready to personalize, this design offers both elegance and everyday functionality—perfect for today’s families.
From the moment you arrive, the split-level entry makes an impact with its remarkable 11'9" ceiling height, creating an immediate sense of openness and brightness. This area includes a practical walk-in mudroom as well as a dedicated office nook, both benefiting from the dramatic ceiling height that enhances the airy, spacious feel. The rest of the home features 9' ceilings throughout, contributing to a warm, cohesive atmosphere.
The main level includes three bedrooms thoughtfully grouped on one floor, including a spectacular owner’s suite. This suite stands out with its large walk-in closet and private bathroom equipped with a separate tub, independent shower and dual vanities—offering comfort and convenience worthy of a boutique hotel. The two secondary bedrooms share a modern, well-organized shower room that includes a practical washer/dryer area, making everyday routines smooth and efficient.
The open-concept living area is one of the home’s most inviting features. The bright, welcoming kitchen offers a large central island and a walk-in pantry that maximizes storage and functionality. Fully open to the dining room and living room, it encourages interaction and a natural flow of family life. The living room, enhanced with a cozy fireplace and expansive rear windows, is flooded with natural light, creating an inspiring and relaxing atmosphere.
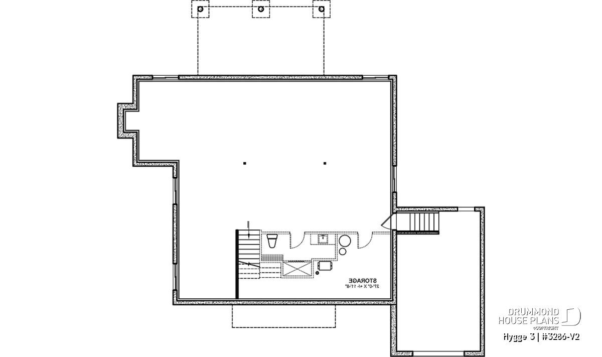
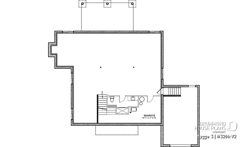
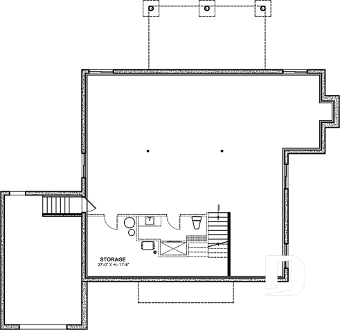
Everything inside and out has been designed with comfort and practicality in mind. Direct access to the basement from the garage is a major advantage, allowing easy movement of storage items or facilitating the future development of additional living spaces—such as a family room, workshop, gym or extra bedrooms.
Altogether, this Scandinavian-Hygge home plan offers a refined blend of modernity, simplicity and well-being. With its clean architecture, airy layout and bright living spaces, it provides a harmonious and highly functional environment—an ideal choice for families seeking a beautifully designed single-story home.
Distinctive elements
Home plan inspired by both Scandinavian and contemporary design, blending clean lines with modern comfort.
Bright split entry with an 11'9" ceiling, creating an immediate sense of openness.
Mudroom and office nook also featuring impressive 11'9" ceilings, ideal for a functional and airy workspace.
9' ceilings throughout the rest of the home for a warm and cohesive atmosphere.
Spacious primary suite with a generous walk-in closet and private bathroom for everyday comfort.
Two secondary bedrooms sharing a well-designed modern shower room.
Main-floor laundry room conveniently located for busy family routines.
Inviting kitchen with a large central island and pantry, maximizing storage and efficiency.
Living room enhanced by a cozy fireplace, adding warmth and character to the space.
Abundant natural light in the entire rear living area, highlighting the home’s open and inviting layout.
Garage access to the basement, perfect for storage or a future finished space.
Plan feature(s)
Gound floor laundry room, Master suite on main, Basement access from garage, Office / Study / Den, Pantry, Plafond avec fausses poutres, Fireplace, Double sinks, Walk-in master bed., Ceiling over 8', Island, Mud room, Separate bath and shower, Bench seat(s), Shelves
Plan architectural style(s)
. Scandinavian, Modern Craftsman, . Modern rustic, . Ranch, Modern farmhouse
Similar plans
Previously Viewed Plans
Thank you for your comment! It must be approved before being put online, please allow a period of 24 hours.
Error with google reCaptcha! Try again
Here is a brief description of our different plan packages. Please select the plan package that suits your needs. You can change the package at the next step, if necessary.
PDF VERSION OF PLAN:
Complete digital version of plan (pdf format) sent by email (original plan format 18" x 24'' or 24" x 36'')
5 copies of plan + PDF:
Includes: 5 copies of plan, plan in PDF format (reduced size version), materials list.
Foundation type
Additional foundation types are available, a fee may apply. Please indicate your choice on the online order form, or to our customer service representative, when placing your house plan order.
If your desired foundation type is not available, please contact our customer service to receive your free plan modification quote.
Explanation of bonus space types
UNFINISHED BONUS ROOM
The bonus rooms are often planned above the garage and are accessible from the house. They are designed to be converted as an office, a laundry area, a bathroom, a library corner or even an additional bedroom for which homeowners must make sure to have a window that complies with current codes & standards.
STORAGE AREA
Often located above the garage, our storage areas are used only as storage and are usually accessible from the garage via a retractable staircase.
Do you like this plan but want it to be modified to suit your needs?
To add a garage, another bedroom, finish the basement or any other modification, click here and let us know about your desired changes and to get your free quote for the modification of your plan.
Conditions of use
Important copyright notice! Please take note of these copyright conditions before printing:
By printing this house plan, cottage or garage or the floorplan(s), you confirm being informed that every house plan on this website is the exclusive property of Drummond House
Plans and is protected by Canadian copyright law. You are aware that these prints cannot be used to build or even obtain a building permit. The graphic representations of these
models are offered by Drummond House Plans for the sole purpose of allowing you to notate modifications of a model and then take it to one of the Drummond House Plans Canadian dealers for
modification of the plan.
The purchase of a house plan, cottage or garage from Drummond House Plans is mandatory if you wish to build any of our models. The plan purchase allows you to build a single unit; you cannot resell or give your plan to anyone once the house, cottage or garage has been built. If you wish to build the same house, cottage or garage more than once, you need to obtain the licence to this effect. Please contact us for more details.
All plans from Drummond House Plans can only be modified by a licensed Drummond House Plan Canadian dealer. If any other business or individual with no affiliation to Drummond House Plans modifies a Drummond House Plan on your behalf, please ensure this business or individual has a licence to modify this specific plan or you will be subject to prosecution on the same level as the business or individual who modified or reproduced the plan.
For more details, do not hesitate to contact u by e-mail or by phone at 1-800-567-1413.
I agree to respect the conditions above to not reproduce, modify or build a model from Drummond House Plans without previously purchasing a complete house plan.







