There are no shipping fees if you buy one of our 2 plan packages "PDF file format" or "5 sets of blueprints + PDF". Shipping charges may apply if you buy additional sets of blueprints.
House plan Gaillac (2278)
Buy this planFrom 2025$ See prices and options
House plan Gaillac (2278)
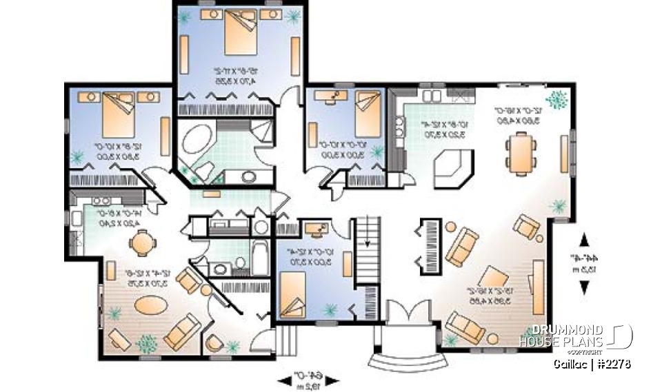
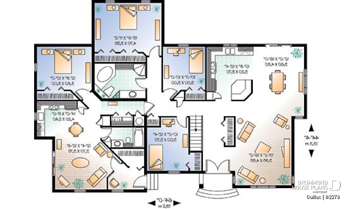
Intergenerational house plan, main unit with 3 bedrooms, separate entrance, beautiful floor plan
Buy this plan
Special: Free shipping!
Need help?
Come see us
View the size of the rooms and height of the ceilings
1st level | ||
---|---|---|
Rooms | Sizes | Ceiling |
Full bathroom | 9'8" x 5'0" | ~ 8'0" |
Full bathroom | 12'0" x 8'0" | ~ 8'0" |
Kitchen | 15'0" x 8'0" | ~ 8'0" |
Pantry | 2'0" x 2'0" | N/A |
Dining room | 12'0" x 16'0" | ~ 8'0" |
Living room | 12'4" x 12'6" | ~ 8'0" |
Bedroom | 15'8" x 11'2" | ~ 8'0" |
Bedroom | 12'8" x 10'0" | ~ 8'0" |
Bedroom | 10'0" x 10'0" | ~ 8'0" |
Linen | 2'0" x 2'0" | ~ 8'0" |
Foyer | 8'0" x 4'8" | ~ 8'0" |
Closet | 3'4" x 6'8" | ~ 8'0" |
Laundry room | 5'0" x 3'0" | ~ 8'0" |
Covered porch | 4'6" x 7'8" | N/A |
Deck | 10'0" x 6'0" | N/A |
Porch | 4'0" x 4'6" | N/A |
Deck | 4'4" x 12'6" | N/A |
Kitchen/dinette | 11'0" x 12'4" | ~ 8'0" |
Pantry | 2'3" x 2'0" | N/A |
Living room | 13'2" x 16'2" | ~ 11'0" |
Storage | 3'0" x 2'0" | ~ 8'0" |
Bedroom | 10'0" x 12'4" | ~ 8'0" |
Storage | 2'8" x 2'8" | ~ 8'0" |
Foyer | 4'7" x 12'8" | ~ 8'0" |
Closet | 2'0" x 6'6" | ~ 8'0" |
General specifications
Total living area | 2165 sq.ft. |
1st level | 2165 sq.ft. |
Width | 64'0" |
Depth | 44'4" |
Ridge height from top of foundation | 20'6" |
Exterior wall | 2 X 6 |
Foundation type included in the plan | Unfinished Basement |
Other available foundations (a fee may apply) | Floating Slab, Crawl space, Monolithic Slab |
Builder price code | MB |
Rooms specifications
Bedroom(s) | 3, 4 |
Full baths | 2 |
Half baths | - |
Garage type | - |
Living bonus space | - |
Bonus storage | - |
Covered porch area | 49 sq.ft. |
UNIT 1 (MAIN UNIT) | UNIT 2 (IN-LAW SUITE) | |
Total living area | 1478 sq.ft. | 687 sq.ft. |
1st level | 1478 sq.ft. | 687 sq.ft. |
Width | 50' 4" | 26' 4" |
Depth | 44' 4" | 34' 6" |
Ridge height from top of foundation | 20' 6" | 20' 6" |
Exterior wall | 2 X 6 | 2 X 6 |
Foundation type | Unfinished Basement | Unfinished Basement |
Bedroom(s) | 3 | 1 |
Full baths | 1 | 1 |
Half baths | - | - |
Garage type | - | - |
Living bonus space | - | - |
Bonus storage | - | - |
General specifications
Total living area | 2165 sq.ft. |
1st level | 2165 sq.ft. |
Width | 64'0" |
Depth | 44'4" |
Ridge height from top of foundation | 20'6" |
Exterior wall | 2 X 6 |
Foundation type included in the plan | Unfinished Basement i |
Other available foundations (a fee may apply) | Floating Slab, Crawl space, Monolithic Slab |
Builder price code | MB |
Rooms specifications
Bedroom(s) | 3, 4 |
Full baths | 2 |
Half baths | - |
Garage type | - |
Living bonus space | - i |
Bonus storage | - i |
Covered porch area | 49 sq.ft. |
Units specifications
UNIT 1 (MAIN UNIT) | UNIT 2 (IN-LAW SUITE) | |
Total living area | 1478 sq.ft. | 687 sq.ft. |
1st level | 1478 sq.ft. | 687 sq.ft. |
Width | 50' 4" | 26' 4" |
Depth | 44' 4" | 34' 6" |
Ridge height from top of foundation | 20' 6" | 20' 6" |
Exterior wall | 2 X 6 | 2 X 6 |
Foundation type | Unfinished Basement | Unfinished Basement |
Bedroom(s) | 3 | 1 |
Full baths | 1 | 1 |
Half baths | - | - |
Garage type | - | - |
Living bonus space | - | - |
Bonus storage | - | - |
Other useful information on this plan
Intergenerational house plan with 3 bedrooms on main unit
.
Distinctive elements
Three bedrooms on the main floor with another bedroom for the grand-parents. Possibility of sharing the laundry room with the rest of the family. Island lunch-counter in the kitchen. Corner bath. Foyer with storage area in the apartment.
Plan feature(s)
Open floor layout, Gound floor laundry room, Entrance hall, Island, Cathedral ceiling
Plan architectural style(s)
. Mediterranean, . Ranch, . Florida, . Traditional
Similar plans
Previously Viewed Plans
Questions and comments on this plan
April 01
Customer service
Good day Mr. Dutil and thank you for your interest in this plan.
The construction estimates appear on our French site are ballpark figures to build in the province of Quebec (Canada) and are not meant to represent costs elsewhere due to the differences in building codes and municipal regulations throughout the rest of Canada, North and South America, and other parts of the world.
Although you can get a rough idea by consulting the French site, it is clearly indicated that the cost can vary from 10% to 30% and it does not include the cost of the land and its excavation, taxes or hook-ups to municipal services, which in the case of this home starts at $277,000 for a self-managed project and $319,000 for a turn-key project.
The estimates are based on professional grade materials and include ceramic in the hallway, the kitchen and the bathrooms and hardwood flooring throughout the common areas and the bedrooms with wood grain melamine cabinetry. The construction estimate for the self managed project which is where the owner does all of the planning, scheduling and signature of contracts with the various specialized contractors as well as taking care of the physical installation of the vapor barrier, the insulation, the gyproc and the paint.
Please let me know if you have any other questions or comments.
Regards
Deb
January 14
nangala mujibelo H M
love this site
January 14
Customer service
Thank you for the compliment
We do our best to make our site a pleasure to navigate and are open to any comments or questions that you might have.
Have a wonderful day
Deborah
Questions and comments
April 01
ejan dutil
cout de construction approximative
April 01
Customer service
Good day Mr. Dutil and thank you for your interest in this plan.
The construction estimates appear on our French site are ballpark figures to build in the province of Quebec (Canada) and are not meant to represent costs elsewhere due to the differences in building codes and municipal regulations throughout the rest of Canada, North and South America, and other parts of the world.
Although you can get a rough idea by consulting the French site, it is clearly indicated that the cost can vary from 10% to 30% and it does not include the cost of the land and its excavation, taxes or hook-ups to municipal services, which in the case of this home starts at $277,000 for a self-managed project and $319,000 for a turn-key project.
The estimates are based on professional grade materials and include ceramic in the hallway, the kitchen and the bathrooms and hardwood flooring throughout the common areas and the bedrooms with wood grain melamine cabinetry. The construction estimate for the self managed project which is where the owner does all of the planning, scheduling and signature of contracts with the various specialized contractors as well as taking care of the physical installation of the vapor barrier, the insulation, the gyproc and the paint.
Please let me know if you have any other questions or comments.
Regards
Deb
January 14
nangala mujibelo H M
love this site
January 14
Customer service
Thank you for the compliment
We do our best to make our site a pleasure to navigate and are open to any comments or questions that you might have.
Have a wonderful day
Deborah
Thank you for your comment! It must be approved before being put online, please allow a period of 24 hours.
Error with google reCaptcha! Try again
Want to modify this plan?
Free plan modification quoteNeed help?
Contact usCome see us
Our 31 regional officesYou may also like
Similar plans
Description
Main house: entry hall with coat closet, family room, dining area, kitchen / breakfast area, 3 bedrooms, full bathroom. Grand-parent suite: separate entry, living room, kitchen/dinette, bedroom, full bathroom, laundry area. Access door to main house. Full basement.
Awards and
Recognition










Here is a brief description of our different plan packages. Please select the plan package that suits your needs. You can change the package at the next step, if necessary.
PDF VERSION OF PLAN:
Complete digital version of plan (pdf format) sent by email (original plan format 18" x 24'' or 24" x 36'')
5 copies of plan + PDF:
Includes: 5 copies of plan, plan in PDF format (reduced size version), materials list.
Foundation type
Additional foundation types are available, a fee may apply. Please indicate your choice on the online order form, or to our customer service representative, when placing your house plan order.
If your desired foundation type is not available, please contact our customer service to receive your free plan modification quote.
Explanation of bonus space types
UNFINISHED BONUS ROOM
The bonus rooms are often planned above the garage and are accessible from the house. They are designed to be converted as an office, a laundry area, a bathroom, a library corner or even an additional bedroom for which homeowners must make sure to have a window that complies with current codes & standards.
STORAGE AREA
Often located above the garage, our storage areas are used only as storage and are usually accessible from the garage via a retractable staircase.
Do you like this plan but want it to be modified to suit your needs?
To add a garage, another bedroom, finish the basement or any other modification, click here and let us know about your desired changes and to get your free quote for the modification of your plan.
Conditions of use
Important copyright notice! Please take note of these copyright conditions before printing:
By printing this house plan, cottage or garage or the floorplan(s), you confirm being informed that every house plan on this website is the exclusive property of Drummond House
Plans and is protected by Canadian copyright law. You are aware that these prints cannot be used to build or even obtain a building permit. The graphic representations of these
models are offered by Drummond House Plans for the sole purpose of allowing you to notate modifications of a model and then take it to one of the Drummond House Plans Canadian dealers for
modification of the plan.
The purchase of a house plan, cottage or garage from Drummond House Plans is mandatory if you wish to build any of our models. The plan purchase allows you to build a single unit; you cannot resell or give your plan to anyone once the house, cottage or garage has been built. If you wish to build the same house, cottage or garage more than once, you need to obtain the licence to this effect. Please contact us for more details.
All plans from Drummond House Plans can only be modified by a licensed Drummond House Plan Canadian dealer. If any other business or individual with no affiliation to Drummond House Plans modifies a Drummond House Plan on your behalf, please ensure this business or individual has a licence to modify this specific plan or you will be subject to prosecution on the same level as the business or individual who modified or reproduced the plan.
For more details, do not hesitate to contact u by e-mail or by phone at 1-800-567-1413.
I agree to respect the conditions above to not reproduce, modify or build a model from Drummond House Plans without previously purchasing a complete house plan.
April 01
ejan dutil
cout de construction approximative