There are no shipping fees if you buy one of our 2 plan packages "PDF file format" or "5 sets of blueprints + PDF". Shipping charges may apply if you buy additional sets of blueprints.
Playhouse plan Castle (9982)
Plan for a large children's playhouse to build yourself - Scandinavian-style tiny home
Virtual visit
Other useful information on this plan
Download your free plan and start building a magical little world your children will love!
A Dreamy, Scandinavian-Style Playhouse for Endless Adventures!
Give your children a magical little world to explore with this double playhouse featuring a Scandinavian-inspired design, based on the popular Pinot Plan #6121. Reimagined in miniature for little ones, it still impresses with its presence — a true modern-day castle in child-size form!
Its unique structure, made up of two gabled roofs connected by a central bridge, makes it so much more than a simple playhouse. It's a full-on adventure zone, where every corner invites a new game. The clean Nordic lines and soft, playful look allow it to blend beautifully into any outdoor setting — with just the right touch of charm and whimsy.
Designed to spark creativity and encourage active play, this grand playhouse includes a variety of exciting features:
– A main house for pretend play like cooking, school, or cabin life
– An integrated slide for those who love thrills
– A swing to soar a little higher
– A sandbox for digging, building, and daydreaming
– And even a climbing wall, perfect for little adventurers with energy to spare!
Every detail has been carefully designed to create a space that’s fun, safe, and adaptable to every child’s imagination. Whether it’s quiet play or wild adventures, this playhouse is sure to become the backdrop for some of their most cherished childhood memories.
Easily customizable with the materials and finishes of your choice, it's also a rewarding DIY project to build as a family — a wonderful opportunity to create a special place filled with laughter, stories, and shared moments.
A spectacular playhouse for playing, dreaming… and growing up beautifully!!
Distinctive elements
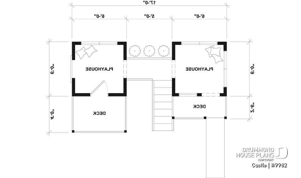
Adorable 17'-0" x 6'-0" Playhouse for Children
Easy to build yourself, even for beginner DIYers.
Offers approximately 84 sq. ft. of pure fun, spread over 2 floors.
Both levels feature 5'-0" ceilings, perfect for little ones.
Sturdy structure built with 2" x 4" framing and particle board panels.
The playhouse is charmingly adorned with various window openings, adding both character and natural light.
Plan architectural style(s)
. Scandinavian, . Contemporary, . Craftsman / Northwest, . Modern / Design, . Transitional
Similar plans
Previously Viewed Plans
Here is a brief description of our different plan packages. Please select the plan package that suits your needs. You can change the package at the next step, if necessary.
PDF VERSION OF PLAN:
Complete digital version of plan (pdf format) sent by email (original plan format 18" x 24'' or 24" x 36'')
5 copies of plan + PDF:
Includes: 5 copies of plan, plan in PDF format (reduced size version), materials list.
Foundation type
Additional foundation types are available, a fee may apply. Please indicate your choice on the online order form, or to our customer service representative, when placing your house plan order.
If your desired foundation type is not available, please contact our customer service to receive your free plan modification quote.
Explanation of bonus space types
UNFINISHED BONUS ROOM
The bonus rooms are often planned above the garage and are accessible from the house. They are designed to be converted as an office, a laundry area, a bathroom, a library corner or even an additional bedroom for which homeowners must make sure to have a window that complies with current codes & standards.
STORAGE AREA
Often located above the garage, our storage areas are used only as storage and are usually accessible from the garage via a retractable staircase.
Do you like this plan but want it to be modified to suit your needs?
To add a garage, another bedroom, finish the basement or any other modification, click here and let us know about your desired changes and to get your free quote for the modification of your plan.
Conditions of use
Important copyright notice! Please take note of these copyright conditions before printing:
By printing this house plan, cottage or garage or the floorplan(s), you confirm being informed that every house plan on this website is the exclusive property of Drummond House
Plans and is protected by Canadian copyright law. You are aware that these prints cannot be used to build or even obtain a building permit. The graphic representations of these
models are offered by Drummond House Plans for the sole purpose of allowing you to notate modifications of a model and then take it to one of the Drummond House Plans Canadian dealers for
modification of the plan.
The purchase of a house plan, cottage or garage from Drummond House Plans is mandatory if you wish to build any of our models. The plan purchase allows you to build a single unit; you cannot resell or give your plan to anyone once the house, cottage or garage has been built. If you wish to build the same house, cottage or garage more than once, you need to obtain the licence to this effect. Please contact us for more details.
All plans from Drummond House Plans can only be modified by a licensed Drummond House Plan Canadian dealer. If any other business or individual with no affiliation to Drummond House Plans modifies a Drummond House Plan on your behalf, please ensure this business or individual has a licence to modify this specific plan or you will be subject to prosecution on the same level as the business or individual who modified or reproduced the plan.
For more details, do not hesitate to contact u by e-mail or by phone at 1-800-567-1413.
I agree to respect the conditions above to not reproduce, modify or build a model from Drummond House Plans without previously purchasing a complete house plan.






