There are no shipping fees if you buy one of our 2 plan packages "PDF file format" or "5 sets of blueprints + PDF". Shipping charges may apply if you buy additional sets of blueprints.
House plan Carolina (3731)
2-storey Farmhouse home design with a 2-car garage, 4 to 6 bedrooms, fully finished walkout basement
Other useful information on this plan
The most beautiful two-story country house plan offering 6 bedrooms and a finished walkout basement!
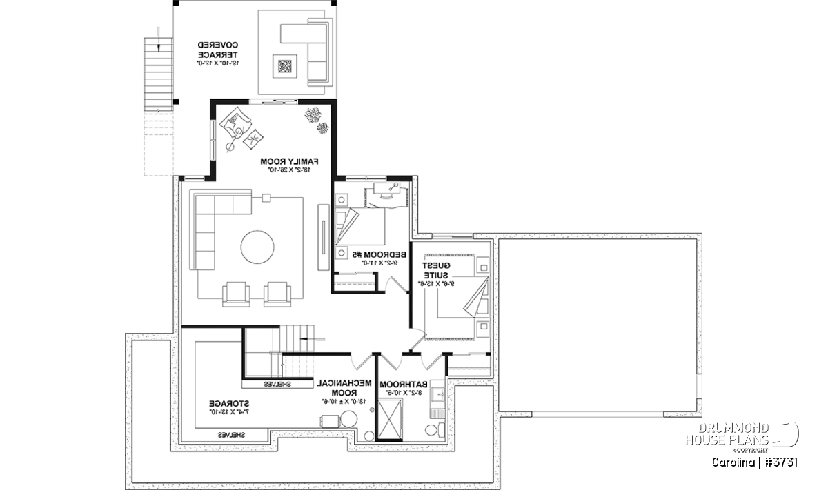
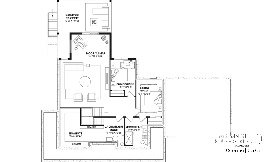
CAROLINA house plan (#3731) offers a spacious 3759 sq.ft. of living space, arranged on 3 floors, including a finished garden level. In addition, a double garage is planned, as well as two terraces. One is covered and located at garden level and the other is uncovered and located at main floor level.
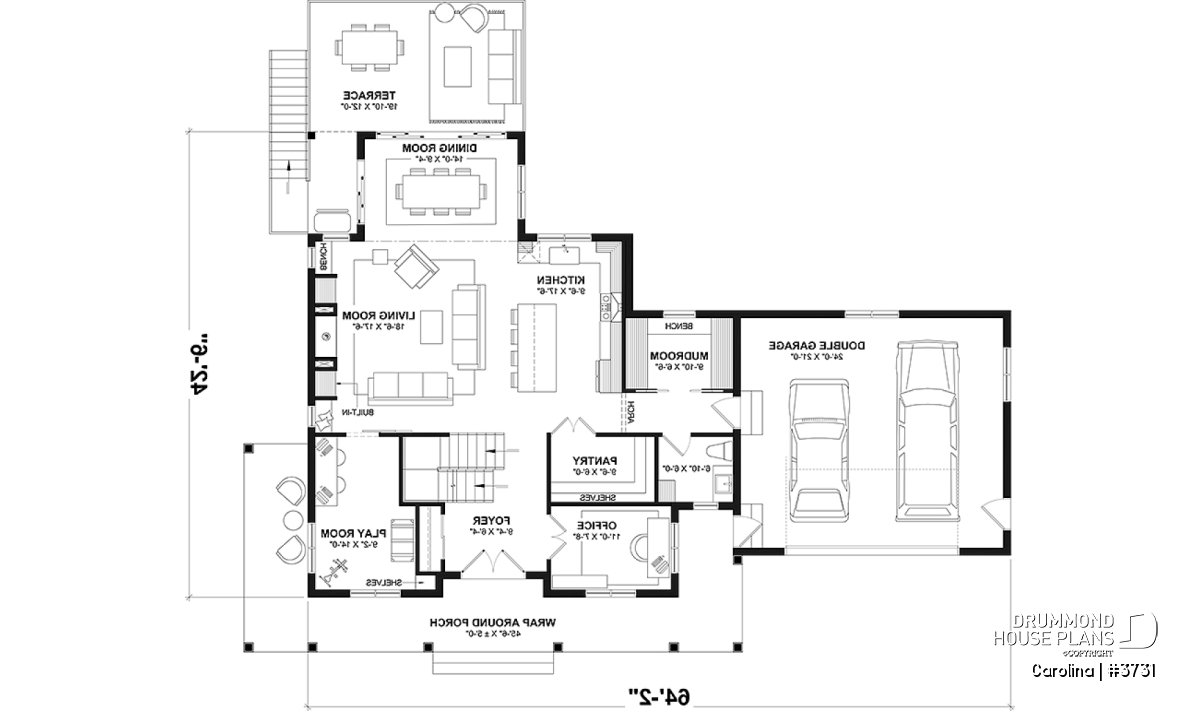
This magnificent house would be superb in a wooded environment, reminiscent of the country houses of the era. Although it has a country look, it offers complete contemporary amenities that are popular and sought after. For this reason you will find a large closet with seating space on the garage side as well as a large pantry (pantry) in the kitchen. In addition, pretty architectural arches, a large sliding door as well as integrated benches and furniture are located in different strategic locations throughout the house.
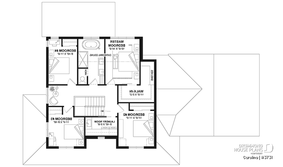
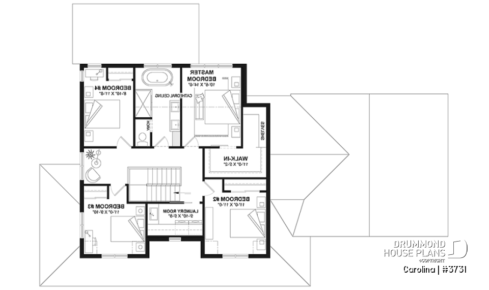
This design is also intended for larger families as it offer a total of 6 bedrooms as well as a more formal living room and a family room for family evenings. In addition, the laundry room is located upstairs, which is practical considering that this level has 4 bedrooms.
In short, if you have a beautiful, large family and an attraction for country houses with a traditional character, the CAROLINA house plan is for you!!
Distinctive elements
Country Farmhouse home plan with 2-car garage and beautiful large wrap around porch.
Total of 6 bedrooms if you finish the walkout level as suggested.
9' ceiling on the entire ground floor, and sloping ceiling in the dining room. Cathedral ceiling in the master bedroom and upstairs bathroom area.
Office and game room on the ground floor.
Large closet space with seating area at the entrance to the double garage.
Kitchen open to the living room and with large pantry.
Large uncovered terrace accessible from the dining room.
Fireplace with built-in furniture and seating areas on each side.
Large walk-in closet in the master bedroom.
The 3 secondary bedrooms upstairs are of a good size.
Laundry room upstairs.
Small reading nook provided upstairs.
Completely finished walkout basement, leading to a sheltered terrace.
A guest suite planned on this level, as well as an additional bedroom (bedroom #6), a family room and mechanical room.
Good size double garage leading to the mudroom.
Plan feature(s)
Warparound, Game room, Office / Study / Den, Cathedral ceiling, Second floor laundry room, Guest suite, Pantry, Bench seat(s), Mud room, Built-ins, Fireplace, Open floor layout, Island, Deck, Separate bath and shower, Double sinks, Ceiling over 8', Arch, Sloped ceiling, Walk-in master bed., Sliding barn door(s)
Plan architectural style(s)
. Farmhouse, Modern farmhouse, . Country, . Vacation and waterfront, . American, . Traditional
Similar plans
Previously Viewed Plans
Thank you for your comment! It must be approved before being put online, please allow a period of 24 hours.
Error with google reCaptcha! Try again
Here is a brief description of our different plan packages. Please select the plan package that suits your needs. You can change the package at the next step, if necessary.
PDF VERSION OF PLAN:
Complete digital version of plan (pdf format) sent by email (original plan format 18" x 24'' or 24" x 36'')
5 copies of plan + PDF:
Includes: 5 copies of plan, plan in PDF format (reduced size version), materials list.
Foundation type
Additional foundation types are available, a fee may apply. Please indicate your choice on the online order form, or to our customer service representative, when placing your house plan order.
If your desired foundation type is not available, please contact our customer service to receive your free plan modification quote.
Explanation of bonus space types
UNFINISHED BONUS ROOM
The bonus rooms are often planned above the garage and are accessible from the house. They are designed to be converted as an office, a laundry area, a bathroom, a library corner or even an additional bedroom for which homeowners must make sure to have a window that complies with current codes & standards.
STORAGE AREA
Often located above the garage, our storage areas are used only as storage and are usually accessible from the garage via a retractable staircase.
Do you like this plan but want it to be modified to suit your needs?
To add a garage, another bedroom, finish the basement or any other modification, click here and let us know about your desired changes and to get your free quote for the modification of your plan.
Conditions of use
Important copyright notice! Please take note of these copyright conditions before printing:
By printing this house plan, cottage or garage or the floorplan(s), you confirm being informed that every house plan on this website is the exclusive property of Drummond House
Plans and is protected by Canadian copyright law. You are aware that these prints cannot be used to build or even obtain a building permit. The graphic representations of these
models are offered by Drummond House Plans for the sole purpose of allowing you to notate modifications of a model and then take it to one of the Drummond House Plans Canadian dealers for
modification of the plan.
The purchase of a house plan, cottage or garage from Drummond House Plans is mandatory if you wish to build any of our models. The plan purchase allows you to build a single unit; you cannot resell or give your plan to anyone once the house, cottage or garage has been built. If you wish to build the same house, cottage or garage more than once, you need to obtain the licence to this effect. Please contact us for more details.
All plans from Drummond House Plans can only be modified by a licensed Drummond House Plan Canadian dealer. If any other business or individual with no affiliation to Drummond House Plans modifies a Drummond House Plan on your behalf, please ensure this business or individual has a licence to modify this specific plan or you will be subject to prosecution on the same level as the business or individual who modified or reproduced the plan.
For more details, do not hesitate to contact u by e-mail or by phone at 1-800-567-1413.
I agree to respect the conditions above to not reproduce, modify or build a model from Drummond House Plans without previously purchasing a complete house plan.



















