There are no shipping fees if you buy one of our 2 plan packages "PDF file format" or "5 sets of blueprints + PDF". Shipping charges may apply if you buy additional sets of blueprints.
House plan Wellwood (1585)
Country home with 3 bedrooms, formal dining, affordable house plan with great wraparound covered porch
Other useful information on this plan
Stunning 3 bedrooms, 2 bathrooms house plan with wraparound porch
Jaunty gables, bay window and a wraparound porch ensure a pleasing presence from many angles. Whether you are looking for a country cottage or urban oasis, this little charmer will be a welcome addition to any neighbourhood.
The front entrance welcomes you into the heart of activities while the side entry provides easy kitchen access. A kitchen island with breakfast bar is a great place for coffee or snacks and the laundry room is mere steps away.
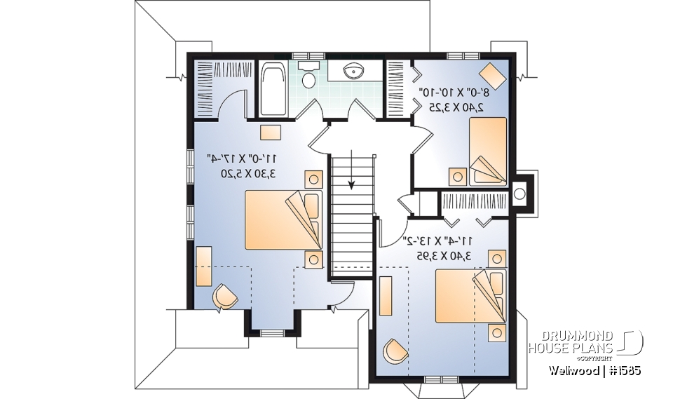
When slumber calls, it’s upstairs to the bedroom level. The master bedroom enjoys a walk-in closet, private bathroom access and charming dormer alcove. Two secondary bedrooms complete this level.
If more space is required, the basement is ready for your inspiration!
Distinctive elements
Covered wraparound porch. Very comfortable interior spaces. Country kitchen with lunch counter. Good sized foyer entrance. Dormer adds cachet to this comfortable master bedroom.
Plan feature(s)
Master suite upstairs, Mud room, Gound floor laundry room, Walk-in master bed., Island, Warparound, Sloped ceiling
Plan architectural style(s)
. Country, . Traditional, . American, . Farmhouse, Modern farmhouse, . Canadian
Similar plans
Previously Viewed Plans
Questions and comments
September 28
Nicholas
What is the door to the left on the master bedroom lead to
September 28
Customer service
Good morning,
Actually, this is a little storage area. However, note that it is in the slanted ceiling section therefore a not like a regular closet. The door to access is also slanted.
I hope this helps!
Jessica
800-567-5257 x 109
April 05
stacey cole
I have been looking for a house plan for quite some time now and this has to be one of my favorites. There are a couple of things I would want to rearrange upstairs but my biggest concern is if I can put in an airlock (closed) in the front instead of the open foyer without adding a lot of footage or none at all. Is this possible with this plan?
April 05
Customer service
Dear Mrs Cole,
Thank you for your interest in Drummond House Plans.
Any modification is possible to any of our plans. It is possible to modify this plan to include the airlock you are looking for. However, because of the interior staircase, it will be difficult to add it without increasing the square footage.
To discuss the modifications, you can contact our modification department at (800)567-5267.
Best Regards,
Doreen, Customer Service Department
Thank you for your comment! It must be approved before being put online, please allow a period of 24 hours.
Error with google reCaptcha! Try again
Here is a brief description of our different plan packages. Please select the plan package that suits your needs. You can change the package at the next step, if necessary.
PDF VERSION OF PLAN:
Complete digital version of plan (pdf format) sent by email (original plan format 18" x 24'' or 24" x 36'')
5 copies of plan + PDF:
Includes: 5 copies of plan, plan in PDF format (reduced size version), materials list.
Foundation type
Additional foundation types are available, a fee may apply. Please indicate your choice on the online order form, or to our customer service representative, when placing your house plan order.
If your desired foundation type is not available, please contact our customer service to receive your free plan modification quote.
Explanation of bonus space types
UNFINISHED BONUS ROOM
The bonus rooms are often planned above the garage and are accessible from the house. They are designed to be converted as an office, a laundry area, a bathroom, a library corner or even an additional bedroom for which homeowners must make sure to have a window that complies with current codes & standards.
STORAGE AREA
Often located above the garage, our storage areas are used only as storage and are usually accessible from the garage via a retractable staircase.
Do you like this plan but want it to be modified to suit your needs?
To add a garage, another bedroom, finish the basement or any other modification, click here and let us know about your desired changes and to get your free quote for the modification of your plan.
Conditions of use
Important copyright notice! Please take note of these copyright conditions before printing:
By printing this house plan, cottage or garage or the floorplan(s), you confirm being informed that every house plan on this website is the exclusive property of Drummond House
Plans and is protected by Canadian copyright law. You are aware that these prints cannot be used to build or even obtain a building permit. The graphic representations of these
models are offered by Drummond House Plans for the sole purpose of allowing you to notate modifications of a model and then take it to one of the Drummond House Plans Canadian dealers for
modification of the plan.
The purchase of a house plan, cottage or garage from Drummond House Plans is mandatory if you wish to build any of our models. The plan purchase allows you to build a single unit; you cannot resell or give your plan to anyone once the house, cottage or garage has been built. If you wish to build the same house, cottage or garage more than once, you need to obtain the licence to this effect. Please contact us for more details.
All plans from Drummond House Plans can only be modified by a licensed Drummond House Plan Canadian dealer. If any other business or individual with no affiliation to Drummond House Plans modifies a Drummond House Plan on your behalf, please ensure this business or individual has a licence to modify this specific plan or you will be subject to prosecution on the same level as the business or individual who modified or reproduced the plan.
For more details, do not hesitate to contact u by e-mail or by phone at 1-800-567-1413.
I agree to respect the conditions above to not reproduce, modify or build a model from Drummond House Plans without previously purchasing a complete house plan.









September 28
Nicholas
What is the door to the left on the master bedroom lead to