There are no shipping fees if you buy one of our 2 plan packages "PDF file format" or "5 sets of blueprints + PDF". Shipping charges may apply if you buy additional sets of blueprints.
House plan Merriwood (2884)
Beautiful 4 bedroom country style house plan, master ensuite, side-load 2-car garage, solarium
Other useful information on this plan
Country style 4 bedroom house plans with solarium
Very popular since its first appearance on the market, this model owes its popularity to an undeniable exterior charm, a most enviable solarium and four bedrooms. It presents a beautiful blend of materials and hues, attractive volumes and windows and a covered rounded balcony at the front as well as the rear.
Inside the foyer, we enter the home through French doors and notice the 9 foot ceiling throughout the main level. A large solarium adjoins the dining room. We also find an attractive kitchen and a living room with cozy fireplace, a focal point from the the foyer.
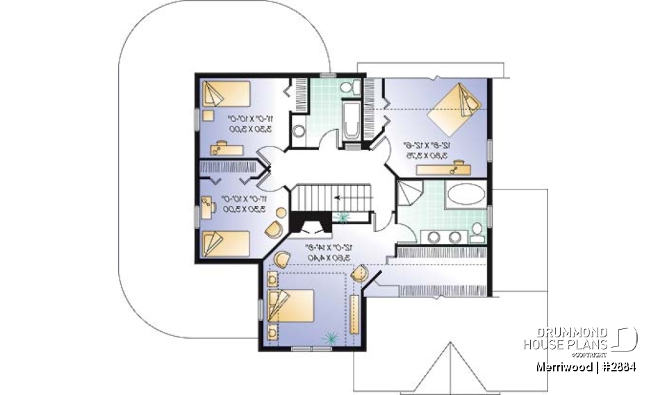
On the upper level, three beautiful bedrooms share a bathroom, while the master suite boasts a very large walk-in closet, its own private bathroom and mood-setting, cozy fireplace.
The discreet garage is only one of the many characteristics that add to the popularity of this model. For an American version of this model, which proposes the master suite on the main level, see model 2617.
Distinctive elements
Wraparound porch, abundant and special windowing, 2 bathrooms on 2nd level, side-entry garage, dual sinks in master bathroom, built-ins, multiple fireplaces, special ceiling treatments.
Plan feature(s)
Fireplace, Ceiling over 8', Gound floor laundry room, Panoramic view, Side entry garage, Pantry, Master suite upstairs, Deck, Entrance hall, Island, Walk-in master bed., Separate bath and shower, Double sinks
Plan architectural style(s)
. Country, . American, . Farmhouse, . Traditional, French Country
Similar plans
Previously Viewed Plans
Questions and comments
February 08
Jami
My husband adn I really like plan W2884. I have been searching for some interior pictures to get an of how open it is and to see if we want this plan or to work with you to make s few modifications. Where can I find some interior picutres other than just floor paln? thanks, Jami
February 08
Customer service
Good day and thank you for taking the time to write
Since we do no actual construction, the only pictures that we have of our models are those which our clients have so generously shared with us.
Unfortunately, we have no additional photos on file for this home so I will be unable to provide extra views of the inside.
Please let me know if you have any other questions or comments.
Regards
Deborah
June 05
Paul Boreham
Looking for plans with large front porch,3-4 bedrooms 2 car garage
June 06
Customer service
Dear Mr Boreham,
Thank you for your interest in Drummond House Plans.
Plan 2617, listed above on this page, is very similar to plan 2884.
Also, you can perform a more extensive search on our website with the desired criteria (such as the number of bedrooms, the size of the garage, a screened porch, a sunroom, or a deck) in the "Advanced Plan Search" section. You can access this section by clicking on "House Plan Search" at the top of our Homepage.
If you have further questions, please do not hesitate to contact me again.
Sincerely,
France, Customer Service Department
January 22
Jen B
I was looking to order these plans, but didn't know which ones I needed.... pdf vs cad...etc I would like some suggestions. As I would like to use these plans to build this dream home.
Thanks in advance
January 24
Customer service
Dear Jen,
Thank you for your interest in Drummond House Plans.
If you do not plan to make modifications to the plan, you will not need the CAD file (on a disc) or the Reproducible Master (printed on special paper). The PDF is sent via email. The advantage of that version is that you will receive it faster and you will be able to print it locally. You will be able to make up to 15 copies of the plan. As for the paper copies ( 5 or 8 sets), they would be useful for the city (they will need at least one or two sets), the bank (for your loan) and of course your builer (one or two sets also). Please note that more and more cities will require the PDF version of the plan. You can contact them to get the information as to what they need.
Hoping this will help. Please contact me again if you need further information.
Best Regards,
Doreen, Customer Service Department
Thank you for your comment! It must be approved before being put online, please allow a period of 24 hours.
Error with google reCaptcha! Try again
Here is a brief description of our different plan packages. Please select the plan package that suits your needs. You can change the package at the next step, if necessary.
PDF VERSION OF PLAN:
Complete digital version of plan (pdf format) sent by email (original plan format 18" x 24'' or 24" x 36'')
5 copies of plan + PDF:
Includes: 5 copies of plan, plan in PDF format (reduced size version), materials list.
Foundation type
Additional foundation types are available, a fee may apply. Please indicate your choice on the online order form, or to our customer service representative, when placing your house plan order.
If your desired foundation type is not available, please contact our customer service to receive your free plan modification quote.
Explanation of bonus space types
UNFINISHED BONUS ROOM
The bonus rooms are often planned above the garage and are accessible from the house. They are designed to be converted as an office, a laundry area, a bathroom, a library corner or even an additional bedroom for which homeowners must make sure to have a window that complies with current codes & standards.
STORAGE AREA
Often located above the garage, our storage areas are used only as storage and are usually accessible from the garage via a retractable staircase.
Do you like this plan but want it to be modified to suit your needs?
To add a garage, another bedroom, finish the basement or any other modification, click here and let us know about your desired changes and to get your free quote for the modification of your plan.
Conditions of use
Important copyright notice! Please take note of these copyright conditions before printing:
By printing this house plan, cottage or garage or the floorplan(s), you confirm being informed that every house plan on this website is the exclusive property of Drummond House
Plans and is protected by Canadian copyright law. You are aware that these prints cannot be used to build or even obtain a building permit. The graphic representations of these
models are offered by Drummond House Plans for the sole purpose of allowing you to notate modifications of a model and then take it to one of the Drummond House Plans Canadian dealers for
modification of the plan.
The purchase of a house plan, cottage or garage from Drummond House Plans is mandatory if you wish to build any of our models. The plan purchase allows you to build a single unit; you cannot resell or give your plan to anyone once the house, cottage or garage has been built. If you wish to build the same house, cottage or garage more than once, you need to obtain the licence to this effect. Please contact us for more details.
All plans from Drummond House Plans can only be modified by a licensed Drummond House Plan Canadian dealer. If any other business or individual with no affiliation to Drummond House Plans modifies a Drummond House Plan on your behalf, please ensure this business or individual has a licence to modify this specific plan or you will be subject to prosecution on the same level as the business or individual who modified or reproduced the plan.
For more details, do not hesitate to contact u by e-mail or by phone at 1-800-567-1413.
I agree to respect the conditions above to not reproduce, modify or build a model from Drummond House Plans without previously purchasing a complete house plan.









February 08
Jami
My husband adn I really like plan W2884. I have been searching for some interior pictures to get an of how open it is and to see if we want this plan or to work with you to make s few modifications. Where can I find some interior picutres other than just floor paln? thanks, Jami