There are no shipping fees if you buy one of our 2 plan packages "PDF file format" or "5 sets of blueprints + PDF". Shipping charges may apply if you buy additional sets of blueprints.
House plan Jordan (3514)
Farmhouse Modern Cottage stye house plan offering lots of natura light, 3 to 4 bedrooms, pantry, fireplace
Other useful information on this plan
Beautiful Farmhouse Cottage-style house design with panoramic views
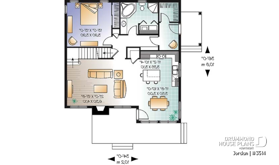
Inspired by a lot with a view from the front of the house, the orientation of this home permits a service entrance with walk-in closet that could be used as a mud room and an entirely open floor plan throughout the common area.
The perfect balance of windows is achieved on either side of the fireplace for a solarium feel in the dining room with outdoor access through patio doors to the terrace and the kitchen is compete with a convenient island.
8'6" ceilings throughout the main floor and a master suite with separate bath, corner shower and laundry area are perfect additions to the floor plan of this well thought out home.
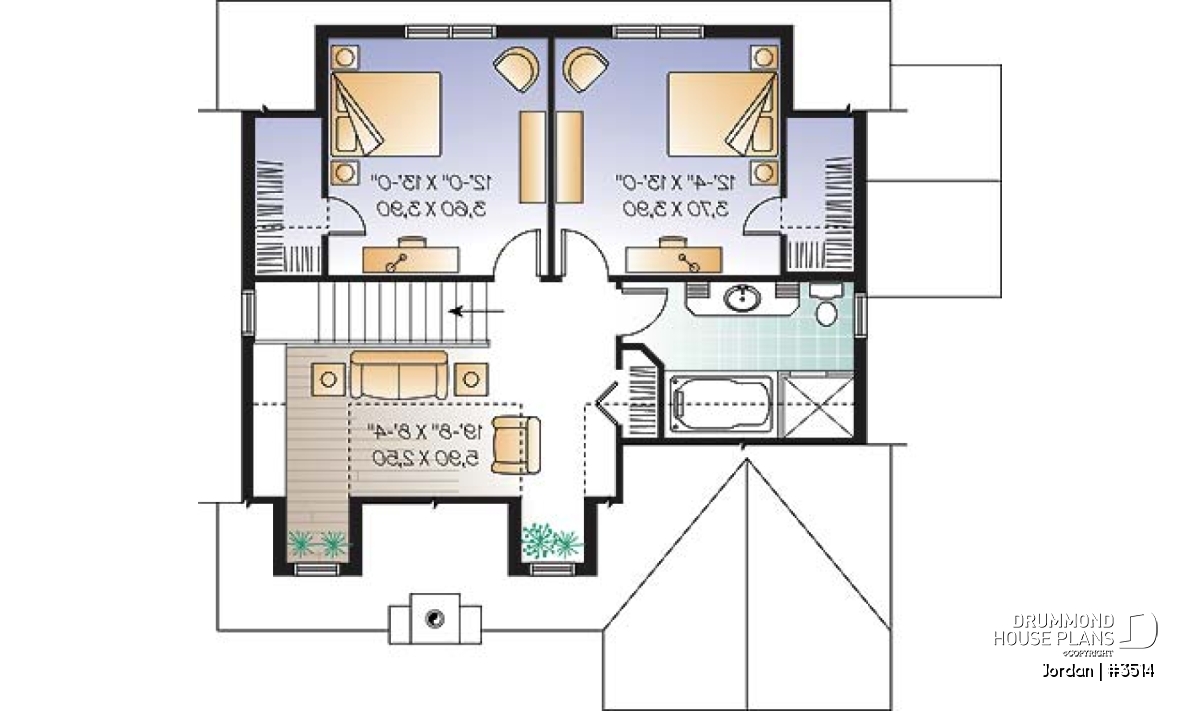
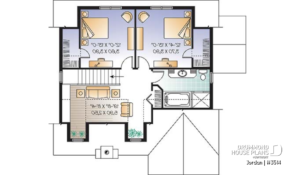
The stair configuration leading up to the second floor permits natural light to flow through. Two other bedrooms with abundant closet space along with a second living room under the dormers and a bathroom with shower are extra features designed to enhance the livability of this home.
If you are interested in adding a detached garage, plan 3983 is a perfect fit!
Distinctive elements
Ceiling at 8' 6`` on the first level. Entrance with walk-in closet. Bedroom #1 on the first level has an adjacent full bathroom. Living room with central fireplace. Island lunch-counter in the kitchen and beautifully fenestrated dining room. Two generous secondary bedrooms on the second level and game room adorned with two dormers.
Suggested garage plan no. 3983.
Plan feature(s)
Fireplace, Pantry, Island, Mud room, Master suite on main, Gound floor laundry room, Open floor layout, Separate bath and shower, Ceiling over 8', Sitting area, Sloped ceiling
Plan architectural style(s)
. Country, . Traditional, . Farmhouse, . Rustic, . Cape Cod
Similar plans
Previously Viewed Plans
Thank you for your comment! It must be approved before being put online, please allow a period of 24 hours.
Error with google reCaptcha! Try again
Here is a brief description of our different plan packages. Please select the plan package that suits your needs. You can change the package at the next step, if necessary.
PDF VERSION OF PLAN:
Complete digital version of plan (pdf format) sent by email (original plan format 18" x 24'' or 24" x 36'')
5 copies of plan + PDF:
Includes: 5 copies of plan, plan in PDF format (reduced size version), materials list.
Foundation type
Additional foundation types are available, a fee may apply. Please indicate your choice on the online order form, or to our customer service representative, when placing your house plan order.
If your desired foundation type is not available, please contact our customer service to receive your free plan modification quote.
Explanation of bonus space types
UNFINISHED BONUS ROOM
The bonus rooms are often planned above the garage and are accessible from the house. They are designed to be converted as an office, a laundry area, a bathroom, a library corner or even an additional bedroom for which homeowners must make sure to have a window that complies with current codes & standards.
STORAGE AREA
Often located above the garage, our storage areas are used only as storage and are usually accessible from the garage via a retractable staircase.
Do you like this plan but want it to be modified to suit your needs?
To add a garage, another bedroom, finish the basement or any other modification, click here and let us know about your desired changes and to get your free quote for the modification of your plan.
Conditions of use
Important copyright notice! Please take note of these copyright conditions before printing:
By printing this house plan, cottage or garage or the floorplan(s), you confirm being informed that every house plan on this website is the exclusive property of Drummond House
Plans and is protected by Canadian copyright law. You are aware that these prints cannot be used to build or even obtain a building permit. The graphic representations of these
models are offered by Drummond House Plans for the sole purpose of allowing you to notate modifications of a model and then take it to one of the Drummond House Plans Canadian dealers for
modification of the plan.
The purchase of a house plan, cottage or garage from Drummond House Plans is mandatory if you wish to build any of our models. The plan purchase allows you to build a single unit; you cannot resell or give your plan to anyone once the house, cottage or garage has been built. If you wish to build the same house, cottage or garage more than once, you need to obtain the licence to this effect. Please contact us for more details.
All plans from Drummond House Plans can only be modified by a licensed Drummond House Plan Canadian dealer. If any other business or individual with no affiliation to Drummond House Plans modifies a Drummond House Plan on your behalf, please ensure this business or individual has a licence to modify this specific plan or you will be subject to prosecution on the same level as the business or individual who modified or reproduced the plan.
For more details, do not hesitate to contact u by e-mail or by phone at 1-800-567-1413.
I agree to respect the conditions above to not reproduce, modify or build a model from Drummond House Plans without previously purchasing a complete house plan.










