There are no shipping fees if you buy one of our 2 plan packages "PDF file format" or "5 sets of blueprints + PDF". Shipping charges may apply if you buy additional sets of blueprints.
House plan Hudson (6111)
Home Design from the Maibec X Drummond House Plans' Collection Featuring: 3 Beds, Garage, Mudroom
Other useful information on this plan
FIRST HOME FROM THE MAIBEC X DRUMMOND HOUSE PLAN COLLECTION!
Discover the brand new plan HUDSON (# 6111), featuring several magnificent Maibec products giving this model a very nice look, both trendy and sophisticated! This Farmhouse style plan with modern accents offers 1511 sq.ft. on the ground floor, and just as much in its unfinished basement. In addition, a 317 sq.ft. single-car garage, with 10 'ceiling, offers convenient access to the house, near the kitchen area, ideal for the quick and convenient transfer of groceries, from your car to the kitchen! The ceiling on the ground floor is 9 ’throughout, giving a nice spaciousness to all the rooms.
The front entrance is large enough to accommodate a decorative bench as well as a few coat hooks for your visitors. The family can take advantage of a large walk-in mudroom accessible from both the front entrance and the garage entrance. Then, a little further to the left, you come to the central point of this large open concept space, the kitchen. The latter offers an island that can easily accommodate 4 guests, as well as a shelves, counter and storage area, serving as a pantry or a back kitchen! The family areas at the back of the house are bathed in magnificent natural light from abundant windows designed for this key area. The kitchen and living room are the perfect size to comfortably accommodate all the members of your family. The master bedroom and the two secondary bedrooms each have a walk-in closet. The family bathroom offers a separate tub and shower, plus two sinks, handy for busy mornings! Finally, a beautiful laundry room with soaking sink completes this ground floor perfectly fitted out for young families with children!
This plan designed for the Maibec x Drummond Drawings collection is available for sale as presented. However, if you wish to make some changes such as the layout of the basement, changing the type of foundation (slab, garden level or others), or others, you can complete the online modification request form. Once completed you will receive a free estimate from one of our 26 offices closest to you
Distinctive elements
House plan from the MAIBEC X DRUMMOND HOUSE PLAN collection.
Sophisticated Farmhouse style with modern accents.
9 'ceiling throughout.
Spacious entrance with bench and walk-in mudroom.
Practical access to the garage from the kitchen area.
Kitchen with large island and open to the dining room and the living room.
Parents bedroom with large walk-in closet.
Two secondary bedrooms each with a small walk-in closet.
Bathroom with separate bath and shower as well as 2 sinks.
Laundry room on the ground floor.
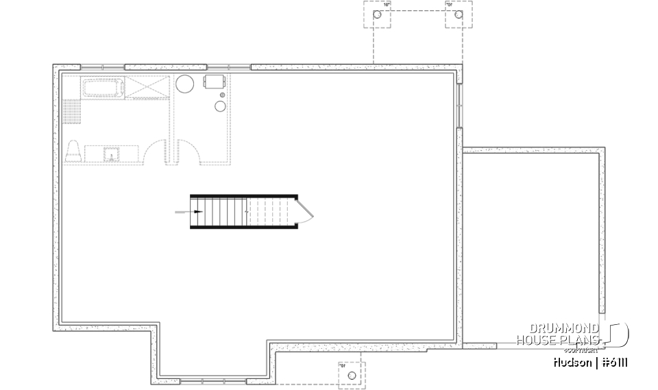
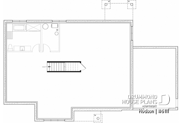
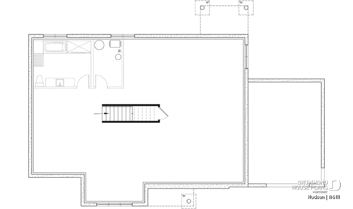
Unfinished basement, to be fitted out according to your futur needs.
Plan feature(s)
Mud room, Walk-in master bed., Gound floor laundry room, Open floor layout, Bench seat(s), Ceiling over 8', Shelves, Separate bath and shower, Double sinks, Butler's pantry, Pantry, Builder, Self-Build
Plan architectural style(s)
Modern farmhouse, . Farmhouse, . Country, . American, . Ranch, . Scandinavian
Similar plans
Previously Viewed Plans
Thank you for your comment! It must be approved before being put online, please allow a period of 24 hours.
Error with google reCaptcha! Try again
Here is a brief description of our different plan packages. Please select the plan package that suits your needs. You can change the package at the next step, if necessary.
PDF VERSION OF PLAN:
Complete digital version of plan (pdf format) sent by email (original plan format 18" x 24'' or 24" x 36'')
5 copies of plan + PDF:
Includes: 5 copies of plan, plan in PDF format (reduced size version), materials list.
Foundation type
Additional foundation types are available, a fee may apply. Please indicate your choice on the online order form, or to our customer service representative, when placing your house plan order.
If your desired foundation type is not available, please contact our customer service to receive your free plan modification quote.
Explanation of bonus space types
UNFINISHED BONUS ROOM
The bonus rooms are often planned above the garage and are accessible from the house. They are designed to be converted as an office, a laundry area, a bathroom, a library corner or even an additional bedroom for which homeowners must make sure to have a window that complies with current codes & standards.
STORAGE AREA
Often located above the garage, our storage areas are used only as storage and are usually accessible from the garage via a retractable staircase.
Do you like this plan but want it to be modified to suit your needs?
To add a garage, another bedroom, finish the basement or any other modification, click here and let us know about your desired changes and to get your free quote for the modification of your plan.
Conditions of use
Important copyright notice! Please take note of these copyright conditions before printing:
By printing this house plan, cottage or garage or the floorplan(s), you confirm being informed that every house plan on this website is the exclusive property of Drummond House
Plans and is protected by Canadian copyright law. You are aware that these prints cannot be used to build or even obtain a building permit. The graphic representations of these
models are offered by Drummond House Plans for the sole purpose of allowing you to notate modifications of a model and then take it to one of the Drummond House Plans Canadian dealers for
modification of the plan.
The purchase of a house plan, cottage or garage from Drummond House Plans is mandatory if you wish to build any of our models. The plan purchase allows you to build a single unit; you cannot resell or give your plan to anyone once the house, cottage or garage has been built. If you wish to build the same house, cottage or garage more than once, you need to obtain the licence to this effect. Please contact us for more details.
All plans from Drummond House Plans can only be modified by a licensed Drummond House Plan Canadian dealer. If any other business or individual with no affiliation to Drummond House Plans modifies a Drummond House Plan on your behalf, please ensure this business or individual has a licence to modify this specific plan or you will be subject to prosecution on the same level as the business or individual who modified or reproduced the plan.
For more details, do not hesitate to contact u by e-mail or by phone at 1-800-567-1413.
I agree to respect the conditions above to not reproduce, modify or build a model from Drummond House Plans without previously purchasing a complete house plan.





















