There are no shipping fees if you buy one of our 2 plan packages "PDF file format" or "5 sets of blueprints + PDF". Shipping charges may apply if you buy additional sets of blueprints.
House plan Ellington 2 (3867-V1)
Large, economical, 4 bedroom Craftsman home, great laundry & pantry area, master suite
Other useful information on this plan
Cost-Effective 4 Bedroom Craftsman Home Plan with great master suite
Due to the affordable cost of building original model 3867, we have received numerous requests for an alternate version with more amenities. The result? Model 3867-V1!
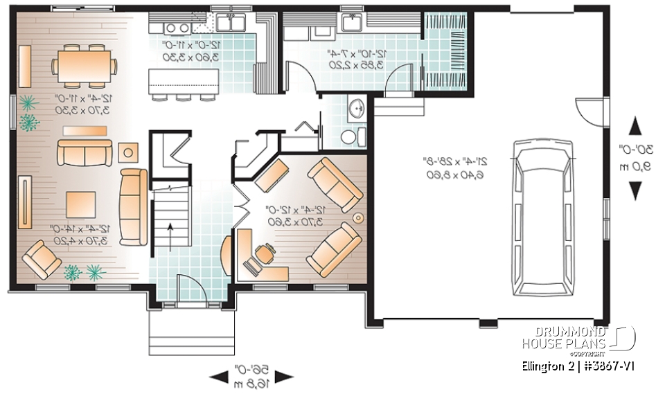
With today’s changing lifestyles, flexibility and adaptability are key so we begin the tour with the flex room by the front entry. Is it an office? A den? A guestroom? Is it all of the above? You choose whatever works best for you! The main living areas are arranged over an open concept triangle including a living room, dining room and contemporary kitchen with island and walk-in pantry. A roomy combination mud room/laundry room is locating conveniently off the double garage with includes a bonus workshop/storage area. A discreet powder room tops off the main floor amenities.
Upstairs, one finds a master suite with his and hers closets and a private bathroom with oversized shower. Three additional bedrooms share a second bathroom. This plan includes a crawl space which is simple to convert to a basement for additional living space.
The end result is a beautiful home which is economical to build and a joy to live in!
Distinctive elements
Office or flex room by main entry. Laundry / mudroom with walk-in closet between the garage and kitchen. Kitchen includes eating/prep island and walk-in pantry. Open concept living area. Additional 6' space in back of garage for storage or workshop. Four bedrooms upstairs including a master suite with private shower and two closets. 3-piece family bathroom with shower.
Plan feature(s)
Open floor layout, Gound floor laundry room, Office / Study / Den, Island, Pantry, Walk-in master bed., Master suite upstairs, Game room, Mud room
Plan architectural style(s)
. American, . Traditional, . Craftsman / Northwest, . Country, . Cape Cod, . Transitional
Similar plans
Previously Viewed Plans
Questions and comments
January 26
candice
hi, I could not find the "cost to build" button anywhere. What is the minimum for building this house?
January 26
Customer service
Good day and thank you for taking the time to write
There is no "cost to build" button on our site because we do not offer a construction cost by region breakdown.
Although we do no actual construction, the ballpark estimate to build this home in Quebec (Canada) starts at around $250,000.
This estimate is based on professional grade materials and includes ceramic in the foyer, the kitchen and the bathrooms with hardwood flooring throughout the common areas and in the bedrooms.
The kitchen cabinetry is wood grain melamine. This construction estimate to build in Quebec is for a turn key project.
The cost of the land and its excavation, taxes and hook-ups to municipal or other services is not included in the calculation and it is highly recommended to consult local contractors and materials suppliers to get a better idea of the actual cost to build in your area.
I hope that this provides some helpful information and I invite you to contact me if you have any other questions or comments
Regards
Deb
September 15
lyne
i'm looking for a house with 4-5 bedrooms at least 2 bathrooms and a basement do you have anything in mind or do you know any other sites that would help me..
thank you
September 17
Service à la clientele
Dear Lyne,
Thank you for your interest in Drummond House Plans.
We have at least 80 plans that meet your criteria. In the "Advanced Search" section, enter the options you mentionned and the result should be 80 plans.
Number of bedrooms 3 or 4+
Number of bathrooms 2 or 2½+
Basement: unfinished
Please keep in mind that any of our plans can be modified to meet your requirements. Do not hesitate to contact me again if you need further information. I will gladly answer any questions you may have.
Best Regards,
Doreen, Customer Service Department
Thank you for your comment! It must be approved before being put online, please allow a period of 24 hours.
Error with google reCaptcha! Try again
Here is a brief description of our different plan packages. Please select the plan package that suits your needs. You can change the package at the next step, if necessary.
PDF VERSION OF PLAN:
Complete digital version of plan (pdf format) sent by email (original plan format 18" x 24'' or 24" x 36'')
5 copies of plan + PDF:
Includes: 5 copies of plan, plan in PDF format (reduced size version), materials list.
Foundation type
Additional foundation types are available, a fee may apply. Please indicate your choice on the online order form, or to our customer service representative, when placing your house plan order.
If your desired foundation type is not available, please contact our customer service to receive your free plan modification quote.
Explanation of bonus space types
UNFINISHED BONUS ROOM
The bonus rooms are often planned above the garage and are accessible from the house. They are designed to be converted as an office, a laundry area, a bathroom, a library corner or even an additional bedroom for which homeowners must make sure to have a window that complies with current codes & standards.
STORAGE AREA
Often located above the garage, our storage areas are used only as storage and are usually accessible from the garage via a retractable staircase.
Do you like this plan but want it to be modified to suit your needs?
To add a garage, another bedroom, finish the basement or any other modification, click here and let us know about your desired changes and to get your free quote for the modification of your plan.
Conditions of use
Important copyright notice! Please take note of these copyright conditions before printing:
By printing this house plan, cottage or garage or the floorplan(s), you confirm being informed that every house plan on this website is the exclusive property of Drummond House
Plans and is protected by Canadian copyright law. You are aware that these prints cannot be used to build or even obtain a building permit. The graphic representations of these
models are offered by Drummond House Plans for the sole purpose of allowing you to notate modifications of a model and then take it to one of the Drummond House Plans Canadian dealers for
modification of the plan.
The purchase of a house plan, cottage or garage from Drummond House Plans is mandatory if you wish to build any of our models. The plan purchase allows you to build a single unit; you cannot resell or give your plan to anyone once the house, cottage or garage has been built. If you wish to build the same house, cottage or garage more than once, you need to obtain the licence to this effect. Please contact us for more details.
All plans from Drummond House Plans can only be modified by a licensed Drummond House Plan Canadian dealer. If any other business or individual with no affiliation to Drummond House Plans modifies a Drummond House Plan on your behalf, please ensure this business or individual has a licence to modify this specific plan or you will be subject to prosecution on the same level as the business or individual who modified or reproduced the plan.
For more details, do not hesitate to contact u by e-mail or by phone at 1-800-567-1413.
I agree to respect the conditions above to not reproduce, modify or build a model from Drummond House Plans without previously purchasing a complete house plan.










January 26
candice
hi, I could not find the "cost to build" button anywhere. What is the minimum for building this house?