There are no shipping fees if you buy one of our 2 plan packages "PDF file format" or "5 sets of blueprints + PDF". Shipping charges may apply if you buy additional sets of blueprints.
House plan Country Cottage (6116)
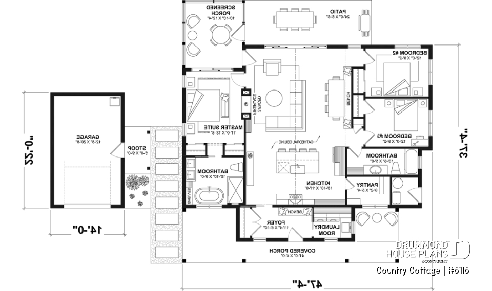
Country style one-story home on a slab, 3 beds, screened-in porch
Other useful information on this plan
Charming Country Ranch Home Plan: Comfort, Style & Smart Living
Experience the perfect blend of charm, comfort, and modern functionality with this beautifully designed country-style single-storey home plan. From the moment you arrive, the large fully covered front porch sets the tone—warm, welcoming, and ideal for outdoor living in any season. Built on a durable floating slab and designed without a basement, this home offers 1,538 sq.ft. of optimized living space (garage not included), crafted for today’s lifestyle and long-term peace of mind.
A Thoughtful Entryway and Smart Family-Focused Layout
The front entry is both practical and inviting, featuring a spacious coat closet and a built-in bench—perfect for keeping everyday items organized. Nearby, the conveniently located laundry room adds functionality right where families need it most.
At the heart of the home, the kitchen stands out with a central island and a generous pantry, offering excellent prep space and storage. The dining area includes a built-in bench, a smart design choice that maximizes floor space while creating a cozy and stylish eating area.
Warm Living Spaces and a Primary Suite Designed for Relaxation
A double-sided fireplace enhances both the living room and the primary suite, adding warmth, ambiance, and a touch of luxury. The primary bedroom offers direct access to the rear screened-in porch, creating a peaceful outdoor retreat. The private ensuite includes a separate tub and shower along with dual sinks—an elevated feature appreciated by modern homeowners.
Two additional secondary bedrooms share a full bathroom, making this home ideal for families, guests, or multi-generational living.
Outdoor Living and Practical Features You’ll Appreciate
At the back, the uncovered patio connects directly to the screened-in porch, providing flexible outdoor living options for dining, lounging, or entertaining. The mechanical room is accessible from the exterior, simplifying maintenance without disturbing the interior living areas.
To complete the home, a detached single garage is included with your purchase. This is the SIMSBURY (#6988) model from our garage plan collection—perfectly matched in style and offering valuable storage and parking space.
Distinctive elements
Country-style single-storey house plan with a large covered front porch.
Floor designed for construction without a basement, built on a floating slab.
Living area of 1,538 sq.ft., excluding the garage.
Front entry includes a spacious coat closet and a convenient sitting bench.
Laundry room located near the front entrance for added practicality.
Kitchen features a pantry and a central island.
Dining area maximizes interior space with a built-in bench option.
Fireplace is open to both the living room and the primary suite.
Primary suite offers direct access to the screened-in porch at the back of the house, plus a private bathroom with separate tub and shower, and two sinks.
Two secondary bedrooms share a full bathroom.
Rear patio is uncovered but directly connected to the screened-in porch.
Mechanical room is accessible from the exterior of the home.
Detached one-car garage plan is included with your purchase: this is the SIMSBURY (#6988) model from our garage plan collection.
Plan feature(s)
Screened porch, Open floor layout, Bench seat(s), Lunch counter, Fireplace, Warparound, Pantry, Island, Cathedral ceiling, Ceiling over 8', Separate bath and shower, Double sinks, Gound floor laundry room
Plan architectural style(s)
. Farmhouse, . American, . Traditional, . Country, . Vacation and waterfront
Similar plans
Previously Viewed Plans
Thank you for your comment! It must be approved before being put online, please allow a period of 24 hours.
Error with google reCaptcha! Try again
Here is a brief description of our different plan packages. Please select the plan package that suits your needs. You can change the package at the next step, if necessary.
PDF VERSION OF PLAN:
Complete digital version of plan (pdf format) sent by email (original plan format 18" x 24'' or 24" x 36'')
5 copies of plan + PDF:
Includes: 5 copies of plan, plan in PDF format (reduced size version), materials list.
Foundation type
Additional foundation types are available, a fee may apply. Please indicate your choice on the online order form, or to our customer service representative, when placing your house plan order.
If your desired foundation type is not available, please contact our customer service to receive your free plan modification quote.
Explanation of bonus space types
UNFINISHED BONUS ROOM
The bonus rooms are often planned above the garage and are accessible from the house. They are designed to be converted as an office, a laundry area, a bathroom, a library corner or even an additional bedroom for which homeowners must make sure to have a window that complies with current codes & standards.
STORAGE AREA
Often located above the garage, our storage areas are used only as storage and are usually accessible from the garage via a retractable staircase.
Do you like this plan but want it to be modified to suit your needs?
To add a garage, another bedroom, finish the basement or any other modification, click here and let us know about your desired changes and to get your free quote for the modification of your plan.
Conditions of use
Important copyright notice! Please take note of these copyright conditions before printing:
By printing this house plan, cottage or garage or the floorplan(s), you confirm being informed that every house plan on this website is the exclusive property of Drummond House
Plans and is protected by Canadian copyright law. You are aware that these prints cannot be used to build or even obtain a building permit. The graphic representations of these
models are offered by Drummond House Plans for the sole purpose of allowing you to notate modifications of a model and then take it to one of the Drummond House Plans Canadian dealers for
modification of the plan.
The purchase of a house plan, cottage or garage from Drummond House Plans is mandatory if you wish to build any of our models. The plan purchase allows you to build a single unit; you cannot resell or give your plan to anyone once the house, cottage or garage has been built. If you wish to build the same house, cottage or garage more than once, you need to obtain the licence to this effect. Please contact us for more details.
All plans from Drummond House Plans can only be modified by a licensed Drummond House Plan Canadian dealer. If any other business or individual with no affiliation to Drummond House Plans modifies a Drummond House Plan on your behalf, please ensure this business or individual has a licence to modify this specific plan or you will be subject to prosecution on the same level as the business or individual who modified or reproduced the plan.
For more details, do not hesitate to contact u by e-mail or by phone at 1-800-567-1413.
I agree to respect the conditions above to not reproduce, modify or build a model from Drummond House Plans without previously purchasing a complete house plan.























