There are no shipping fees if you buy one of our 2 plan packages "PDF file format" or "5 sets of blueprints + PDF". Shipping charges may apply if you buy additional sets of blueprints.
Playhouse plan Peanut (9983)
Small farmhouse-style DIY playhouse for children – Free mini house plan for kids
Virtual visit
Other useful information on this plan
Free Farmhouse-Style Playhouse Plan — A Cozy Little Hideaway with Timeless Charm
Inspired by our multigenerational house plan ROMIE (Plan #3073), this lovely farmhouse-style playhouse is sure to spark the imagination of both kids and grown-ups. With its gable roof, exposed beams, and wooden shutters, it exudes a warm, rustic ambiance—perfect for creating a comforting, creative little world.
Its classic look, reminiscent of old countryside homes, gives it undeniable charm, while the use of natural materials adds authenticity you can feel at first glance. Wood accents, raw textures, and clean lines come together to create a space that’s both inviting and beautiful.
Designed to blend seamlessly into any outdoor space—be it a backyard, garden, or woodland clearing—this playhouse becomes a magical landmark for children, where they can play, escape, dream, and bring endless stories to life.
Its compact size and simple structure also make it an ideal family DIY project. Whether you're an experienced builder or tackling your first construction with the kids, this little cabin will win you over with how easy it is to assemble and how rewarding the final result is.
Add a few cushions, toys, or seasonal decorations, and the magic happens! This playhouse quickly becomes a place for gathering, creativity, and lasting memories. And as your children grow, it can evolve—from a play corner to a mini reading nook or even a cozy teenage retreat.
A charming little architectural gem, built to child-size scale, designed to inspire big adventures… in a warm, simple, and beautiful setting!!
---
Download your free plan and start building a magical little world your children will love!
Distinctive elements
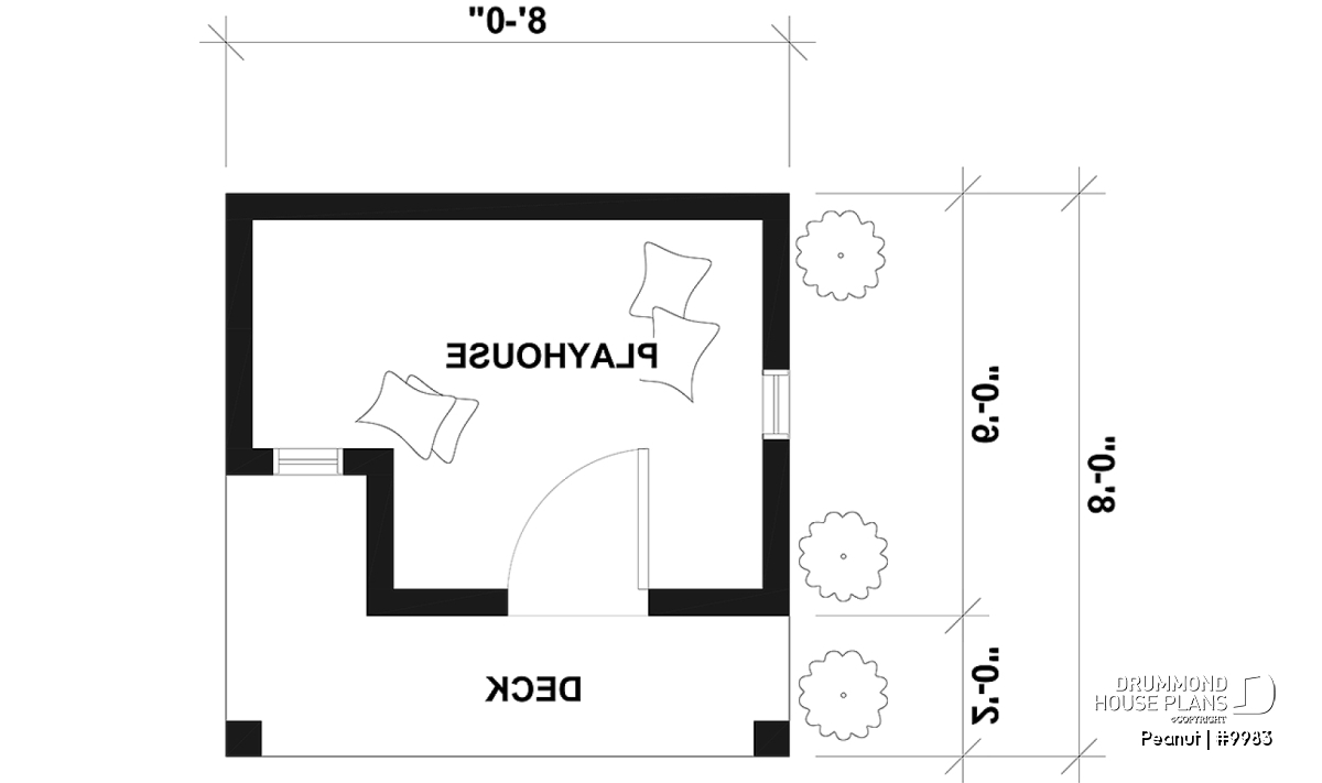
Small children's playhouse measuring 8'-0" x 6'-0", porch not included
Easy to build yourself, even for beginners.
Total interior space of approximately 44 sq. ft.
Comfortable ceiling height of 4'-6".
Sturdy 2" x 4" frame with particle board panels.
Includes a front door and two windows, one of which features a charming built-in sill.
Plan architectural style(s)
Similar plans
Previously Viewed Plans
Here is a brief description of our different plan packages. Please select the plan package that suits your needs. You can change the package at the next step, if necessary.
PDF VERSION OF PLAN:
Complete digital version of plan (pdf format) sent by email (original plan format 18" x 24'' or 24" x 36'')
5 copies of plan + PDF:
Includes: 5 copies of plan, plan in PDF format (reduced size version), materials list.
Foundation type
Additional foundation types are available, a fee may apply. Please indicate your choice on the online order form, or to our customer service representative, when placing your house plan order.
If your desired foundation type is not available, please contact our customer service to receive your free plan modification quote.
Explanation of bonus space types
UNFINISHED BONUS ROOM
The bonus rooms are often planned above the garage and are accessible from the house. They are designed to be converted as an office, a laundry area, a bathroom, a library corner or even an additional bedroom for which homeowners must make sure to have a window that complies with current codes & standards.
STORAGE AREA
Often located above the garage, our storage areas are used only as storage and are usually accessible from the garage via a retractable staircase.
Do you like this plan but want it to be modified to suit your needs?
To add a garage, another bedroom, finish the basement or any other modification, click here and let us know about your desired changes and to get your free quote for the modification of your plan.
Conditions of use
Important copyright notice! Please take note of these copyright conditions before printing:
By printing this house plan, cottage or garage or the floorplan(s), you confirm being informed that every house plan on this website is the exclusive property of Drummond House
Plans and is protected by Canadian copyright law. You are aware that these prints cannot be used to build or even obtain a building permit. The graphic representations of these
models are offered by Drummond House Plans for the sole purpose of allowing you to notate modifications of a model and then take it to one of the Drummond House Plans Canadian dealers for
modification of the plan.
The purchase of a house plan, cottage or garage from Drummond House Plans is mandatory if you wish to build any of our models. The plan purchase allows you to build a single unit; you cannot resell or give your plan to anyone once the house, cottage or garage has been built. If you wish to build the same house, cottage or garage more than once, you need to obtain the licence to this effect. Please contact us for more details.
All plans from Drummond House Plans can only be modified by a licensed Drummond House Plan Canadian dealer. If any other business or individual with no affiliation to Drummond House Plans modifies a Drummond House Plan on your behalf, please ensure this business or individual has a licence to modify this specific plan or you will be subject to prosecution on the same level as the business or individual who modified or reproduced the plan.
For more details, do not hesitate to contact u by e-mail or by phone at 1-800-567-1413.
I agree to respect the conditions above to not reproduce, modify or build a model from Drummond House Plans without previously purchasing a complete house plan.





