There are no shipping fees if you buy one of our 2 plan packages "PDF file format" or "5 sets of blueprints + PDF". Shipping charges may apply if you buy additional sets of blueprints.
House plan Lambert (3279)
Contemporary split-entry home design with 2 to 5 bedrooms, home office, garage and more!
Other useful information on this plan
Outstanding Contemporary split-entry house plan offering beautiful natural light in all its rooms!
This contemporary home stands out with its balanced architecture and intelligently designed spaces, offering a living environment that is modern, functional, and welcoming. From the moment you arrive, the attached garage and covered front porch create a polished first impression while providing year-round comfort.
The split entry immediately impresses with its 12-foot ceiling, delivering a strong sense of openness and natural light. A convenient coat closet is thoughtfully included to support everyday organization. The main floor has been carefully designed to maximize comfort and flow, making it ideal for both family living and entertaining.
The primary suite, located on the main floor, is a true retreat. It features a spacious walk-in closet that leads directly to the main bathroom. This bathroom includes a separate bathtub and shower, creating a relaxing, spa-like atmosphere. A particularly appreciated detail is the built-in laundry chute located in the walk-in closet, which leads directly to the basement laundry room, greatly simplifying daily routines.
A generously sized secondary bedroom on the main floor also includes its own walk-in closet, making it perfect for a child, guest, or flexible living space depending on your needs. The main living areas are arranged in an open-concept layout, where the living room and dining area connect seamlessly, encouraging interaction and shared moments.
The bright, modern kitchen—centered around a large island—quickly becomes the heart of the home. Both functional and inviting, it offers direct access to a spacious covered rear terrace, ideal for outdoor dining, summer evenings, or simply enjoying fresh air in any weather.
The well-proportioned single-car garage completes the main level, providing comfortable parking along with additional storage space. The unfinished basement, included in the base plan, offers excellent potential for future development.
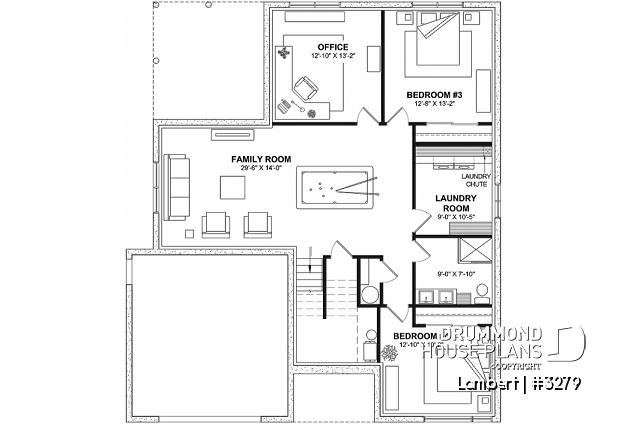
As an option, the basement can be fully finished to include two additional bedrooms, a bathroom with double vanity and large shower, a functional laundry room connected to the laundry chute, a versatile home office or fifth bedroom, and a large family or game room.
This thoughtfully designed contemporary home is built to evolve with your lifestyle, offering lasting comfort today—and for years to come.
Distinctive elements
Contemporary home design featuring an attached garage and a covered front porch for a welcoming curb appeal.
Impressive split entry with a 12’ ceiling and a convenient coat closet.
Main-floor primary suite with direct access to the bathroom through a spacious walk-in closet.
Built-in laundry chute located in the primary suite walk-in, leading directly to the basement laundry room.
Generously sized secondary bedroom on the main floor, complete with a walk-in closet.
Main bathroom featuring a separate bathtub and shower for added comfort.
Open-concept living room flowing seamlessly into the dining area.
Modern kitchen with a large central island and direct access to a spacious covered rear terrace.
Well-proportioned single-car garage, ideal for both parking and storage.
Unfinished basement included in the base plan.
---
*Optional finished basement:
Two additional bedrooms.
Full bathroom with double vanity and a large shower.
Functional laundry room, including the laundry chute from the primary suite.
Versatile home office (or bedroom #5).
Large family room or game room, perfect for entertainment and relaxation.
---
*If you wish to purchase the finished basement plan, as presented on this plan page, please select this option in the shopping cart, in the "Selection of foundation type" section. If you do not select this option, you will receive the unfinished full basement option, at no extra charge
Plan feature(s)
Laundry chute, Split bedrooms, Office / Study / Den, Master suite on main, Walk-in master bed., Separate bath and shower, Deck, Self-Build, Game room, Island, Open floor layout
Plan architectural style(s)
. Mid-century, . Modern / Design, . Modern rustic, . Contemporary, Modern Craftsman
Similar plans
Previously Viewed Plans
Thank you for your comment! It must be approved before being put online, please allow a period of 24 hours.
Error with google reCaptcha! Try again
Here is a brief description of our different plan packages. Please select the plan package that suits your needs. You can change the package at the next step, if necessary.
PDF VERSION OF PLAN:
Complete digital version of plan (pdf format) sent by email (original plan format 18" x 24'' or 24" x 36'')
5 copies of plan + PDF:
Includes: 5 copies of plan, plan in PDF format (reduced size version), materials list.
Foundation type
Additional foundation types are available, a fee may apply. Please indicate your choice on the online order form, or to our customer service representative, when placing your house plan order.
If your desired foundation type is not available, please contact our customer service to receive your free plan modification quote.
Explanation of bonus space types
UNFINISHED BONUS ROOM
The bonus rooms are often planned above the garage and are accessible from the house. They are designed to be converted as an office, a laundry area, a bathroom, a library corner or even an additional bedroom for which homeowners must make sure to have a window that complies with current codes & standards.
STORAGE AREA
Often located above the garage, our storage areas are used only as storage and are usually accessible from the garage via a retractable staircase.
Do you like this plan but want it to be modified to suit your needs?
To add a garage, another bedroom, finish the basement or any other modification, click here and let us know about your desired changes and to get your free quote for the modification of your plan.
Conditions of use
Important copyright notice! Please take note of these copyright conditions before printing:
By printing this house plan, cottage or garage or the floorplan(s), you confirm being informed that every house plan on this website is the exclusive property of Drummond House
Plans and is protected by Canadian copyright law. You are aware that these prints cannot be used to build or even obtain a building permit. The graphic representations of these
models are offered by Drummond House Plans for the sole purpose of allowing you to notate modifications of a model and then take it to one of the Drummond House Plans Canadian dealers for
modification of the plan.
The purchase of a house plan, cottage or garage from Drummond House Plans is mandatory if you wish to build any of our models. The plan purchase allows you to build a single unit; you cannot resell or give your plan to anyone once the house, cottage or garage has been built. If you wish to build the same house, cottage or garage more than once, you need to obtain the licence to this effect. Please contact us for more details.
All plans from Drummond House Plans can only be modified by a licensed Drummond House Plan Canadian dealer. If any other business or individual with no affiliation to Drummond House Plans modifies a Drummond House Plan on your behalf, please ensure this business or individual has a licence to modify this specific plan or you will be subject to prosecution on the same level as the business or individual who modified or reproduced the plan.
For more details, do not hesitate to contact u by e-mail or by phone at 1-800-567-1413.
I agree to respect the conditions above to not reproduce, modify or build a model from Drummond House Plans without previously purchasing a complete house plan.






