There are no shipping fees if you buy one of our 2 plan packages "PDF file format" or "5 sets of blueprints + PDF". Shipping charges may apply if you buy additional sets of blueprints.
House plan The Wynstone 2 (3923-V1)
Ski chalet style home plan with cathedral ceiling and mountain or lake view
Other useful information on this plan
Ski Chalet Style House Plan – Bright, Cozy & Designed for Mountain Views
This beautiful ski chalet-style house plan blends rustic charm with modern living. Perfect for a mountain lot, sloped terrain, or any site with a breathtaking view, this home design captures the essence of comfort and natural light throughout every season.
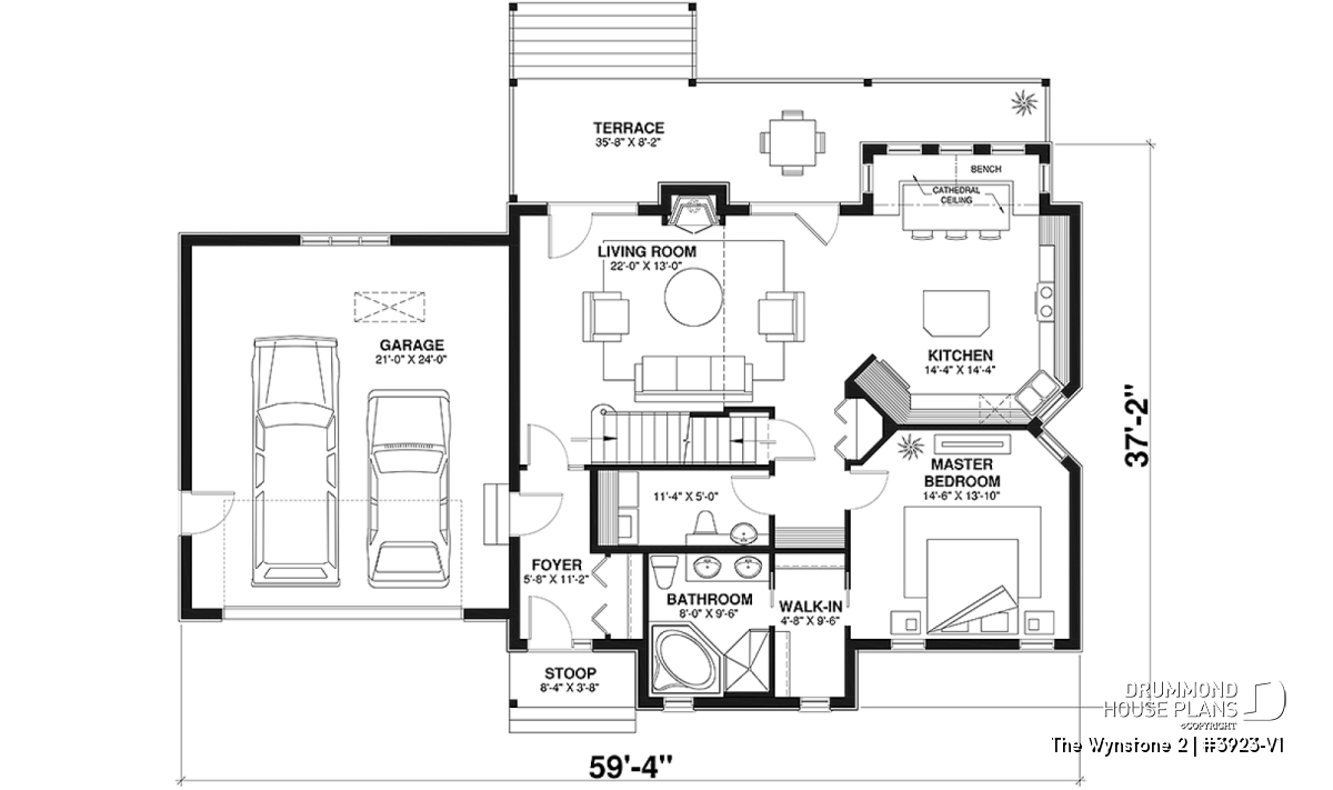
From the moment you step inside, the 9-foot ceilings create a spacious, airy atmosphere. The cathedral ceiling in the great room draws the eye upward, while large windows flood the space with sunlight and open the view to nature’s beauty. A centrally located fireplace becomes the heart of the home—warming both the space and the soul after a day of skiing, hiking, or relaxing outdoors.
The open-concept kitchen and dining area are both practical and inviting. The built-in banquette dining nook adds a cozy touch, ideal for family breakfasts or après-ski dinners with friends. Every detail of this plan celebrates light, warmth, and togetherness.
The main-floor primary suite offers privacy and comfort, featuring a private ensuite bathroom and a walk-in closet. On the same level, the combined powder room and laundry area makes daily living even more convenient.
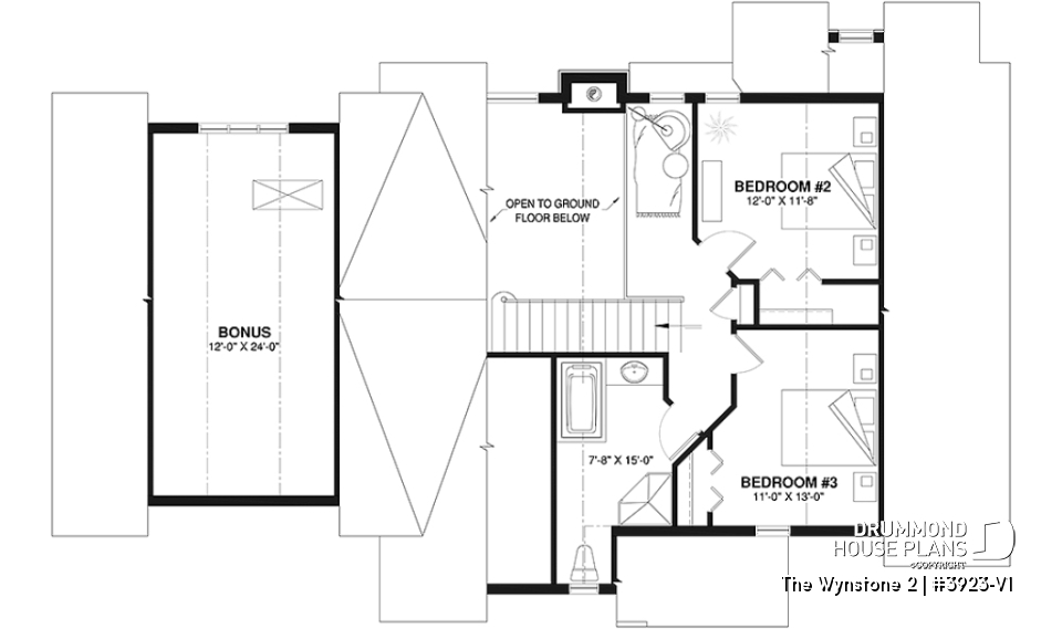
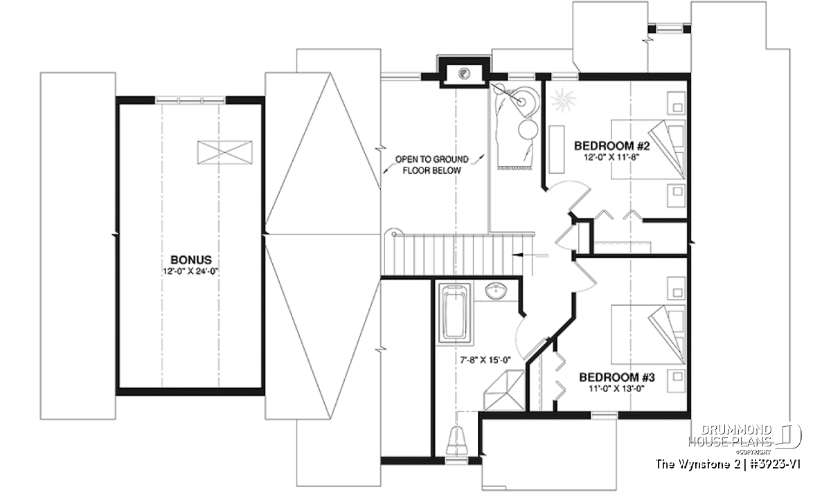
Upstairs, two spacious bedrooms share a full bathroom with a separate tub and shower. A charming mezzanine reading corner overlooks the living area—an ideal spot for a quiet morning coffee, a good book, or admiring the view through expansive windows.
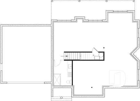
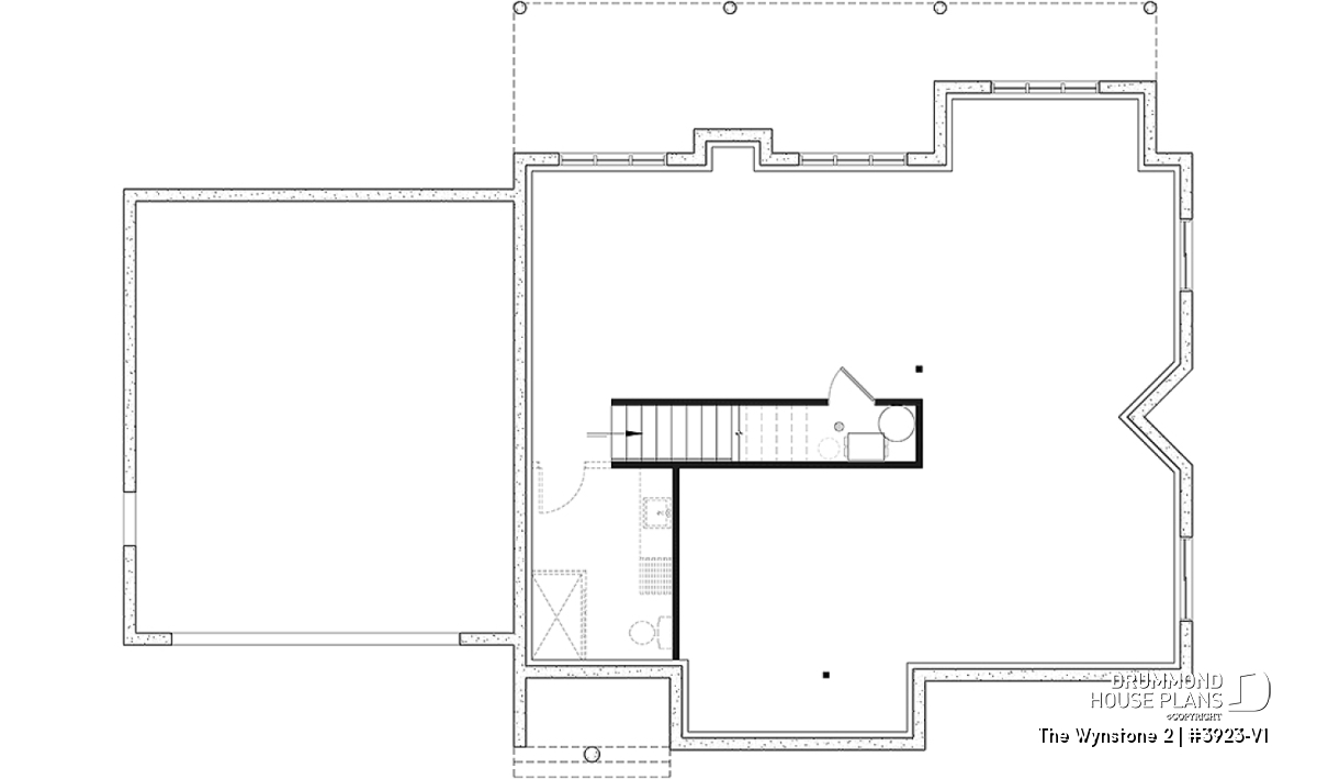
The unfinished basement provides flexible space to customize—whether for a family room, guest suite, or gym. The double garage includes smart overhead storage, perfect for skis, holiday décor, or seasonal gear.
This mountain chalet house plan offers the perfect balance of style, functionality, and natural beauty. Whether as a primary residence, a weekend getaway, or a ski-in retreat, it’s designed to bring comfort, light, and inspiration to your everyday life.
Let this timeless design become your sanctuary in the mountains—a place where modern comfort meets the simple joy of living close to nature.
Distinctive elements
Ski chalet–style house plan, perfect for the mountains.
Beautiful natural light at the back of the home.
Ideal for a lot with a view.
9’ ceiling on the main floor and a cathedral ceiling in the living room.
Inviting kitchen with a built-in breakfast nook.
Central fireplace visible from both the kitchen and the living room.
Main-floor primary suite with a private bathroom and walk-in closet.
Combined powder room and laundry area on the main floor.
Two upstairs bedrooms share a full bathroom with separate tub and shower.
Cozy reading nook on the mezzanine.
Unfinished basement ready to be customized to your needs.
Double garage with ceiling-access storage hatch.
Plan feature(s)
Mezzanine, Fireplace, Master suite on main, Walk-in master bed., Gound floor laundry room, Breakfast nook, Cathedral ceiling, Sloped ceiling, Open floor layout, Bench seat(s), Separate bath and shower, Double sinks, Planning desk
Plan architectural style(s)
. Mountain, . Vacation and waterfront, . Craftsman / Northwest, . Ski chalets, . Rustic, . American, . A-Frame, . Country, . Modern / Design, . Modern rustic, . Transitional, . Cottage, chalet, cabin
Similar plans
Previously Viewed Plans
Questions and comments
October 09
Ellen
Does plan number 3923V1 include a basement plan?
October 10
Jessica
Hello Ellen!
Yes, this plan comes standard with an unfinished basement foundation.
Let me know if you have any further questions or help with a future order. You can reach me at 800-567-5267 or [email protected]
Have a great day!
Jessica
July 09
Daniel Landry
Do you have a "BCIN" for building in Ontario?
July 10
Customer service
Hello Mr. Landry,
Yes we do offer this option at $250. You can select while buying online or mention it when placing your phone order: 1-800-567-5267
Thanks,
Marie
August 06
Joy
How do you access the bonus storage area?
August 06
Customer service
Good day and thank you for your interest in this plan.
The bonus storage area is accessed through a pull down staircase in the garage ceiling which is represented by the rectangle with an "X" in it.
Please let me know if you have any other questions or comments.
Regards
Deb
January 14
Shellee D.
How much would it cost to build this plan in Ohio, USA.
January 14
Customer service
Good day and thank you for taking the time to write.
Since we do no actual construction, the only estimate that we have on file is a ball park figure for building it in Quebec (Canada) that starts at around $350,000 which includes everything except land, taxes and hook-ups to municipal services.
I hope this information is helpful and I invite you to contact me with any other questions or comments that you might have.
Regards
Deborah
March 03
Michael Briand
would you be able to run me through a step by step on what the process is with buying a kit from you guy. Thanks alot.
March 03
Customer service
Dear Mr Briand,
Thank you for your interest in Drummond House Plans.
We provide the plans only. We do not build or provide building materials. You will have to find your builder or a prefab houses manufacturers.
Do not hesitate to contact me again if you need further information. I will gladly answer any questions you may have.
Regards,
Doreen, Customer Service Department
Thank you for your comment! It must be approved before being put online, please allow a period of 24 hours.
Error with google reCaptcha! Try again
Here is a brief description of our different plan packages. Please select the plan package that suits your needs. You can change the package at the next step, if necessary.
PDF VERSION OF PLAN:
Complete digital version of plan (pdf format) sent by email (original plan format 18" x 24'' or 24" x 36'')
5 copies of plan + PDF:
Includes: 5 copies of plan, plan in PDF format (reduced size version), materials list.
Foundation type
Additional foundation types are available, a fee may apply. Please indicate your choice on the online order form, or to our customer service representative, when placing your house plan order.
If your desired foundation type is not available, please contact our customer service to receive your free plan modification quote.
Explanation of bonus space types
UNFINISHED BONUS ROOM
The bonus rooms are often planned above the garage and are accessible from the house. They are designed to be converted as an office, a laundry area, a bathroom, a library corner or even an additional bedroom for which homeowners must make sure to have a window that complies with current codes & standards.
STORAGE AREA
Often located above the garage, our storage areas are used only as storage and are usually accessible from the garage via a retractable staircase.
Do you like this plan but want it to be modified to suit your needs?
To add a garage, another bedroom, finish the basement or any other modification, click here and let us know about your desired changes and to get your free quote for the modification of your plan.
Conditions of use
Important copyright notice! Please take note of these copyright conditions before printing:
By printing this house plan, cottage or garage or the floorplan(s), you confirm being informed that every house plan on this website is the exclusive property of Drummond House
Plans and is protected by Canadian copyright law. You are aware that these prints cannot be used to build or even obtain a building permit. The graphic representations of these
models are offered by Drummond House Plans for the sole purpose of allowing you to notate modifications of a model and then take it to one of the Drummond House Plans Canadian dealers for
modification of the plan.
The purchase of a house plan, cottage or garage from Drummond House Plans is mandatory if you wish to build any of our models. The plan purchase allows you to build a single unit; you cannot resell or give your plan to anyone once the house, cottage or garage has been built. If you wish to build the same house, cottage or garage more than once, you need to obtain the licence to this effect. Please contact us for more details.
All plans from Drummond House Plans can only be modified by a licensed Drummond House Plan Canadian dealer. If any other business or individual with no affiliation to Drummond House Plans modifies a Drummond House Plan on your behalf, please ensure this business or individual has a licence to modify this specific plan or you will be subject to prosecution on the same level as the business or individual who modified or reproduced the plan.
For more details, do not hesitate to contact u by e-mail or by phone at 1-800-567-1413.
I agree to respect the conditions above to not reproduce, modify or build a model from Drummond House Plans without previously purchasing a complete house plan.


















October 09
Ellen
Does plan number 3923V1 include a basement plan?