There are no shipping fees if you buy one of our 2 plan packages "PDF file format" or "5 sets of blueprints + PDF". Shipping charges may apply if you buy additional sets of blueprints.
House plan La Villa (3464)
Barn style house plan, 5 bedrooms, master suite, fireplace, garage, kitchen with pantry and island
Other useful information on this plan
Modern barn-style house plan with five bedrooms and lots of advantages!
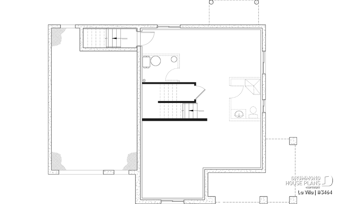
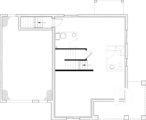
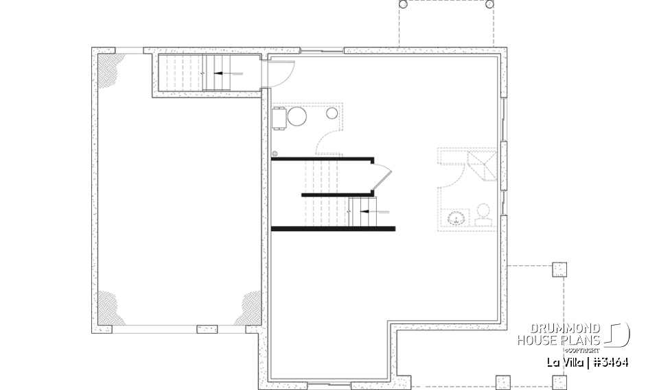
LA VILLA house plan (plan #3464) offers 2,297 sq. ft. on 2 floors, excluding the basement which is unfinished. In order to meet the bedroom needs of certain families, such as blended ones, Drummond House Plans offers this spacious floor plan that also offers a 17'-4'' x 28'-8'' garage wonderfully suited for a large family. Not to mention this covered front porch, on the front elevation which provides a very inviting touch to this home.
Inside, on the ground floor and at the front, a mudroom with a suitable walk-in coat closet and a nicely-sized living room with a corner fireplace. Then at the back, a kitchen-dining room area with plenty of windows with a table for eight guests, a lunch island and a corner pantry. Note here the presence of a 9' ceiling for the entire ground floor with direct access to the garage and also access to the basement from the garage.
Upstairs above the garage are five bedrooms including a master suite with a private bathroom, large shower and walk-in closet. For the children, we notice a bathroom with a double sink vanity as well as a toilet and bath area for even more functional use. Not to mention the laundry room that will certainly be appreciated on this floor where we find all the bedding and linens.
This house offers the comfort and privacy so sought after by members of large families!
Distinctive elements
Beautiful modern barn style house with garage.
9' ceiling on the ground floor.
Entrance mudroom with large walk-in closet and a bench.
Five bedrooms planned upstairs including a master suite with walk-in closet and private bathroom.
The children's bathroom, upstairs, has double sinks on one side, and toilet and bath on the other.
Kitchen with central lunch island and walk-in pantry.
Living room with corner fireplace.
Practical laundry room, located upstairs.
Garage with access to the basement.
Plan feature(s)
Second floor laundry room, Island, Pantry, Master suite upstairs, Ceiling over 8', Walk-in master bed., Double sinks, Fireplace, Basement access from garage, Bench seat(s), Shelves, Double sinks
Plan architectural style(s)
. Cape Cod, . Farmhouse, . Craftsman / Northwest, . American, . Country, . Vacation and waterfront
Similar plans
Previously Viewed Plans
Thank you for your comment! It must be approved before being put online, please allow a period of 24 hours.
Error with google reCaptcha! Try again
Here is a brief description of our different plan packages. Please select the plan package that suits your needs. You can change the package at the next step, if necessary.
PDF VERSION OF PLAN:
Complete digital version of plan (pdf format) sent by email (original plan format 18" x 24'' or 24" x 36'')
5 copies of plan + PDF:
Includes: 5 copies of plan, plan in PDF format (reduced size version), materials list.
Foundation type
Additional foundation types are available, a fee may apply. Please indicate your choice on the online order form, or to our customer service representative, when placing your house plan order.
If your desired foundation type is not available, please contact our customer service to receive your free plan modification quote.
Explanation of bonus space types
UNFINISHED BONUS ROOM
The bonus rooms are often planned above the garage and are accessible from the house. They are designed to be converted as an office, a laundry area, a bathroom, a library corner or even an additional bedroom for which homeowners must make sure to have a window that complies with current codes & standards.
STORAGE AREA
Often located above the garage, our storage areas are used only as storage and are usually accessible from the garage via a retractable staircase.
Do you like this plan but want it to be modified to suit your needs?
To add a garage, another bedroom, finish the basement or any other modification, click here and let us know about your desired changes and to get your free quote for the modification of your plan.
Conditions of use
Important copyright notice! Please take note of these copyright conditions before printing:
By printing this house plan, cottage or garage or the floorplan(s), you confirm being informed that every house plan on this website is the exclusive property of Drummond House
Plans and is protected by Canadian copyright law. You are aware that these prints cannot be used to build or even obtain a building permit. The graphic representations of these
models are offered by Drummond House Plans for the sole purpose of allowing you to notate modifications of a model and then take it to one of the Drummond House Plans Canadian dealers for
modification of the plan.
The purchase of a house plan, cottage or garage from Drummond House Plans is mandatory if you wish to build any of our models. The plan purchase allows you to build a single unit; you cannot resell or give your plan to anyone once the house, cottage or garage has been built. If you wish to build the same house, cottage or garage more than once, you need to obtain the licence to this effect. Please contact us for more details.
All plans from Drummond House Plans can only be modified by a licensed Drummond House Plan Canadian dealer. If any other business or individual with no affiliation to Drummond House Plans modifies a Drummond House Plan on your behalf, please ensure this business or individual has a licence to modify this specific plan or you will be subject to prosecution on the same level as the business or individual who modified or reproduced the plan.
For more details, do not hesitate to contact u by e-mail or by phone at 1-800-567-1413.
I agree to respect the conditions above to not reproduce, modify or build a model from Drummond House Plans without previously purchasing a complete house plan.






